黄浦江核心段 CAZ中央活动区
世博滨江 江景豪宅
上海浦东「保利世博天悦」
售楼处电话:400-969-2958(预约热线)
欢迎致电售楼处电话,专业一对一热情服务,让您用专业眼光去买房。
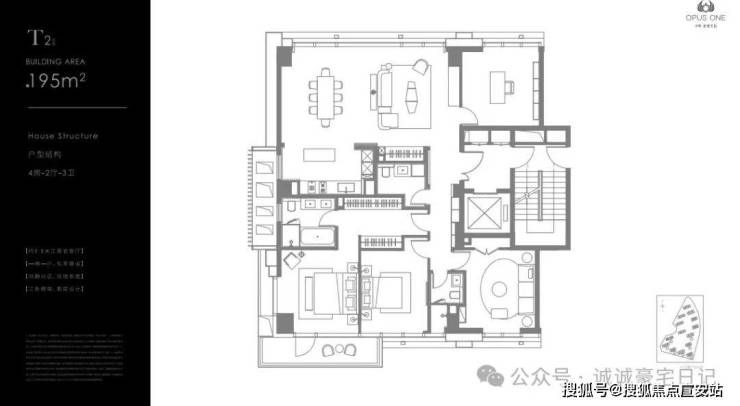
3#号楼加推
建面约240~251㎡ 4-5房
&建面约500㎡隐藏房源
主力户型总价约3500-5500万
实景准现房

·建面约251㎡中间套,整体瞰江面高达约14米,独有双层挑高露台,未来业主可以将其打造成为私家空中花园,在繁华都市中独享静谧自然。
项目即将加推的3#楼,还爆出“一亿一宅”的“隐藏户型”,王者降临上海“超亿俱乐部”
上海浦东「保利世博天悦」
售楼处电话:400-969-2958(预约热线)
欢迎致电售楼处电话,专业一对一热情服务,让您用专业眼光去买房。
·约35米L形巨幕观景台,双面瞰江带来前所未有的景观视野


示意效果图,过程稿仅供参考
相当于将纽约432 Park的顶层视野平移到了黄浦江,这样的大国景观台,未来不会再有!
业主在家里一抬头便是以江景和都市为主题的巨幅油画!
从清晨到日暮,无论是晨雾中的江轮剪影,还是夜幕下的两岸华灯,每一扇窗都是一幅名画,每一平方米都是城市的注脚

夜晚江景实拍
·4+1房&双豪华套房规制
OPUS ONE 500的双豪华套房尺度惊人,粗略预计面积均接近了55㎡
独立内玄关、阳台、起居厅、步入式衣帽间、双台盆浴缸卫生间一应俱全,既考虑了空间感又保持了独立性,创造出了一个高度聚合又能彼此独立的家庭化空间,尊贵私密空间在这里具象化!
·5个阳台,重新定义高端生活场景
客厅西侧的景观阳台、双豪华套房南侧的生活阳台(2个)、北侧瞰江的空中花园露台和书房阳台,在OPUS ONE 500,保利将江景、花园、星空和社交,统统装进生活半径
这些都只是OPUS ONE 500冰山一角,还有诸如2梯1户超大专属电梯厅、超大尺度的宴会厅等等,这里的每一处空间设计都让人眼前一亮!
示意效果图,过程稿仅供参考
毫不夸张地说,这座由LSD葛亚曦操刀打造的“空中行宫”带来的震撼,非真正亲临现场不能领略其绝代风采!


上海浦东「保利世博天悦」
售楼处电话:400-969-2958(预约热线)
欢迎致电售楼处电话,专业一对一热情服务,让您用专业眼光去买房。




上海浦东「保利世博天悦」
售楼处电话:400-969-2958(预约热线)
欢迎致电售楼处电话,专业一对一热情服务,让您用专业眼光去买房。

上海浦东「保利世博天悦」
售楼处电话:400-969-2958(预约热线)
欢迎致电售楼处电话,专业一对一热情服务,让您用专业眼光去买房。
近年来,购房者对于产品力和兑现力的要求越来越高。
然而在期房销售为主流的上海楼市,即便售楼处再美如画、样板房再高大上,仍然有很多购房者因为“降标减配、货不对板”而苦恼。
那么如何才能最大程度避免“赌博式”买房呢?
当然是所见即所得的实景准现房!
但遗憾的是,上海市区准现房销售的新盘少之又少!
如果再加上一个黄浦江第一排的条件,那么全上海有且只有一个答案:保利世博天悦!
黄浦江约80米,塔尖级江景视野!
从刚刚结束的四批次土拍来看,徐汇滨江地块彻底杀疯了,7家房企经过72轮争夺报价,溢价率直接拉满30%,最终售价很可能超过18万!
但是值得注意的是,该地块红线直线距离最近的黄浦江岸大约400米(数据来源百度地图),再加上南北两侧均有高层建筑物遮挡,除了高区之外基本没有江景。
而谈及江景,直线距离黄浦江约80米的保利世博天悦堪称“江景之王”!
从地图来看,项目与汤臣一品和中粮海景壹号等顶豪住区享有相同的视野与距离,同频一线黄浦江景。
无论是一线滨江的地段,还是前期约16.8万/㎡的均价,相较于徐汇滨江地块可能18万+的售价,保利世博天悦的质价比非常突出!
一线滨江实景豪宅,品质看得见!
全上海独一无二的“类幕墙设计”立面,搭配上海首例“开放式铝板设计”,打造黄浦江畔地标新名片!
凭借最近约80米的一线江景优势,将黄浦江天然水资源引入社区,打造约3000㎡水景,并规划约6万㎡社区景观,力求每一寸土地都能发挥出最大的生态效益和观赏价值!

高标准产品力,穿越周期的诚意!
从选材来看,各种奢侈品级石材随处可见,比如与北京钓鱼台国宾馆同款的意大利进口鱼肚白石材,造价高达约2万/㎡,被誉为“世界上最贵的石材之一”!
从配置来看,仅对业主开放的约2600㎡艺术会所,不仅涵盖恒温泳池、酒窖、会客厅、健身房及行政酒廊式高定私宴厅等功能,而且还可以提供提供高级定制服务,排场不输五星级酒店!
从设计来看,独创上海滨江首个空中泳池户型,利用中间套双层挑高空间,预留泳池条件,整体瞰江面高达约14米!
从装标来看,大金、霍尼韦尔、当代、嘉格纳、威乃达、唯宝等一系列国际顶豪品牌加持,莫说整个黄浦江畔,放眼全市都堪称没有对手!

Part
01
一线滨江豪宅加推!
作为当下最值得期待的一线滨江实景大宅,保利世博天悦一期开盘时最高约26万/㎡江景房当天即罄,由此可见高净值购房者对于项目的认可,如今三期房源加推在即,确实更加值得期待了。
上海浦东「保利世博天悦」
售楼处电话:400-969-2958(预约热线)
欢迎致电售楼处电话,专业一对一热情服务,让您用专业眼光去买房。


并且项目高区可以俯瞰黄浦江,相对于觉得大多数只能一面看江的滨江豪宅,保利世博天悦稀缺性与收藏价值更高!
装修标准这一块,保利世博天悦在整个黄浦江畔,乃至更是堪称全市都堪称没有对手!
且不提霍尼韦尔、当代、嘉格纳、威乃达、唯宝等一系列国际顶豪品牌,即便是在装修细节方面也能轻松拿捏竞品。
Part
02
一线滨江住宅,进阶更好的圈层!
保利世博天悦主力总价约2500-3000万,3000万以内甚至有机会选到看江房源!
与目前市面上绝大多数2500-3000万级项目,项目一线滨江的地段便已经赢在起跑线上了:
因为就算少量房源没有江景,但是社区就在江边啊,下楼就可以感受江景,同样的价格享受黄浦江核心段一线滨江的生活方式,散步、慢跑、滑板、骑行等等……
更重要的是,保利世博天悦还是为数不多可以双面瞰江的住宅,这也让项目的收藏价值大大提升。
Part
03
满级规划+全维度塔尖资源荟萃世博!
保利世博天悦位于浦东世博滨江板块,这里拥有两大满级“BUFF”叠加:世博滨江CAZ+世博-前滩城市主中心,未来期待值拉满!
中央活动区:“世博-前滩-徐汇滨江地区”
中央活动区作为上海未来发展的重要代表,将承担起全球城市核心功能的重要角色,成为城市形象的集中展示区域,为城市的发展注入新的活力和动力,堪称“市中心的中心”。
保利世博天悦不仅位于规划中的黄浦江核心段,而且地处与外滩、陆家嘴同能级的“世博-前滩-徐汇滨江地区”。
上海浦东「保利世博天悦」
售楼处电话:400-969-2958(预约热线)
欢迎致电售楼处电话,专业一对一热情服务,让您用专业眼光去买房。

城市主中心:“世博-前滩城市主中心”
同时,保利世博天悦所在的世博滨江已经全面升级为城市主中心!
3月26日,浦东新区土地市场座谈会公布:至2035年,浦东还将新增“世博-前滩城市主中心”,新增张江、金桥、川沙3个城市副中心。
城市主中心,从字面意义上来看,规划能级与南京西路、人民广场、新天地、外滩、陆家嘴等传统核心区并驾齐驱,使世博滨江能级进一步升级,将成为具备全球影响力的世界级滨水区。

如果说地段能级决定保利世博天悦的下限;板块内难以复制的满级资源,才是项目真正的价值护城河,无一不是汇聚了上海文化生活的精髓。
曾经的万国博览的盛会为区域注入了世界文化汇聚的底色,如今的世博板块不仅包含文化、艺术、博览、国际体育等多元化中心,还受益于CAZ集聚总部经济的功能定位,发展成为央企总部、国际企业聚集区和浦东第二政务办公中心,目前已有26家央企的近80家公司集聚世博片区。

保利世博天悦距离浦东内环直线约670米,离陆家嘴直线距离约4.5公里。
周边路网极为发达,“两桥两隧四地铁”(南浦大桥、卢浦大桥、西藏南路及打浦路隧道、6、7、8、19号线),西侧比邻世博大道、东侧比邻雪野路。
项目距离19号线华丰路站仅约300多米,可链接陆家嘴、北外滩等上海其他地标方向,便捷通勤处处快人一步。
作为上海唯一具备沿江演艺带集聚的地区,保利世博天悦项目周边坐拥13座世界顶级大型文化场馆,展演空间体量超过6万坐席。包括:梅德塞斯奔驰文化展示中心、BMW汽车文化体验中心、中华艺术宫、上海世博展览馆、上海大歌剧院、世博大舞台、万国体育中心、世界花卉园、温室花园以及中国首座国际顶级赛事标准的永久性马术赛场馆——国际马术中心等生态功能场馆等高能级文化场馆串珠成链。

据统计,世博地区每年承办的大型文体活动场次超过700场,占据浦东总活动数量的40%,占据全上海总活动数量的18%,每年吸引客流超千万人次!

值得一提的是,世博对岸的徐汇滨江将集中建设20多座艺术美术馆,与世博滨江隔江相望。
更重要的是,上海市正积极筹划建设首条跨江缆车,该缆车将横跨黄浦江,连接徐汇西岸与世博滨江板块,从而打造一条世界级的顶奢艺术带,展现黄浦江畔的独特魅力与艺术风采。

目前,世博片区已集聚了新开发银行(NDB)、世界核电运营者协会(英国)上海代表处(WANO)、法国国际商会上海代表处(ICC)等16家国际经济组织,主要集中在经贸规则、资源配置、国际仲裁三大领域,占浦东国际经济组织总数50%以上,为浦东提升国际形象和影响力、增强城市软实力等方面发挥了积极作用。

保利世博天悦南侧占据上海中心城区唯一一个“有山有水”的宝地:世博文化公园。
世博文化公园占地200公顷,已经是上海中心城区最大的城市公园。
从距离来看,项目直线距离世博文化公园仅约1.5公里,可直接俯瞰整个公园。
从规模来看,世博文化公园的占地面积是伦敦海德皇家花园的1.25倍,是世纪公园的1.42倍,是大宁公园的2.94倍!

更重要的是,世博文化公园还拥有上海中心城区内唯一“山景”。
公园内最大标志性景观“双子山”,由两座高度不等的山体组成,最高峰约48米,也是国内第一座高度超过40米的空腔人工仿自然山林。
上海浦东「保利世博天悦」
售楼处电话:400-969-2958(预约热线)
欢迎致电售楼处电话,专业一对一热情服务,让您用专业眼光去买房。
黄浦江核心段 CAZ中央活动区
世博滨江 江景豪宅
上海浦东「保利世博天悦」
售楼处电话:400-969-2958(预约热线)
欢迎致电售楼处电话,专业一对一热情服务,让您用专业眼光去买房。
还有部分房源可直接定
建面约174~400㎡大平层&复式
总价约2500万起
实景准现房

抵押贷款概述
在面对资金短缺的困境时,大多数人通常会选择两种方式来解决:一是寻求亲友的帮助,二是通过贷款机构获取资金。然而,与亲友间的债务关系往往伴随着复杂的情感因素,因此,许多人更倾向于选择贷款,这样能够更清晰地计算成本。贷款方式多样,包括信用贷款、担保贷款和抵押贷款。对于那些无法或不愿办理信用贷款的人来说,抵押贷款便成为了一种常规选择。
在民间借贷中,住房抵押贷款变得越来越重要。简而言之,住房抵押贷款就是将房产作为抵押物,向银行申请一定额度的资金。这个过程虽然看似简单,但其中涉及到的常识和细节却不容忽视。
02
抵押贷款条件及要求
◆ 抵押物产权要求
住房抵押贷款的抵押物必须具备清晰的产权。这包含两层含义:首先,抵押物必须拥有独立产权,即申请人在申请抵押贷款时,必须独立拥有房子的所有权。若房产为多人共有,则必须获得所有共有人的书面授权。集体产权和大部分小产权房产通常不被接受(尽管极少数地方农商行可能提供小产权自建房的抵押贷款)。其次,该房产的产权必须清晰无抵押,即房产未在供、未抵押、未为他人提供担保,其全部所有权归属于申请人。
◆ 个人征信要求
住房抵押贷款对个人征信也有一定要求。尽管抵押物为房产,但银行仍会关注借款人的征信记录,包括逾期天数、逾期次数、逾期金额以及查询次数等。不过,与信用贷款相比,抵押贷款的征信要求相对宽松一些。通常,征信一年内不能出现连续三个月的逾期,两年内累计逾期次数不超过六次,且三个月内机构查询次数不超过五次。
◆ 贷款金额核定
贷款金额的核定是住房抵押贷款的重要环节。贷款金额通常不超过房产价值的70%,具体额度会受到多种因素的影响,如房产购买时的价格、房龄、地段、周围房产均价、装修情况以及楼盘大小等。银行会指定评估机构对房产进行价格评估,并结合内部审核结果和申请人资质,最终确定贷款金额。
◆ 贷款利率与期限
利息与期限方面,住房抵押贷款的利率通常低于信用贷款。但具体利率还需根据不同银行来确定。此外,抵押贷款的期限最高可达30年,个人可申请的最高期限则与房龄相关。例如,房龄为20年的房产,最高期限为20年,但具体批贷年限还需银行审批。
◆ 贷款手续及时间
办理住房抵押贷款的手续相对繁琐,办理时间较长。由于涉及房产评估和产权抵押等环节,整个流程通常需要10个工作日到一个月不等。然而,某些商业银行已简化程序并与房管局建立特殊审批通道,从而缩短了审批时间至3个工作日左右。
◆ 还款方式选择
在还款方式上,住房抵押贷款提供了多种选择。除了常见的等额本息和等额本金外,许多银行还推出了先息后本的还款方式。这种方式的优点在于提高资金使用率,但利率可能会相对较高。申请人应根据自身资金安排和利益考量来选择合适的还款方式。
03
贷款用途及影响
◆ 贷款用途分类
贷款用途对住房抵押贷款而言具有显著影响,它不仅关乎贷款额度、期限,还直接影响贷款利率。目前,贷款用途主要分为个人消费、生意经营及投资三类。个人消费通常最受银行青睐,因其风险较低;而生意经营用途则可能面临银行更严格的审核。至于投资用途,一般包括商品房投资和其他投资。
◆ 贷款用途对审批的影响
需注意的是,国家禁止将贷款资金挪作首付款,并严格控制贷款资金流入房地产市场。同时,对于股票、外汇、期货等高风险投资,银行通常持禁止态度,因此投资用途通过审批的概率较低。银行在审批时也会考虑借款人的职业背景,例如企业法人一般不适宜申请消费贷。此外,借款人还需提供明确的用途证明。
04
申请材料及其他注意事项
◆ 申请材料要求
房产抵押贷款的申请资料与其他贷款类型基本一致,包括身份证明、工作与收入证明、婚姻状况证明、贷款用途证明以及其他财产证明(如有)。特别需要强调的是,工作与收入情况不仅对贷款的成功申请至关重要,而且对贷款额度和期限的确定也具有重大影响。在评估抵押贷款时,除了考虑房龄因素外,工作和收入证明也是银行决策的关键依据。
◆ 其他注意事项
A、一旦房产抵押贷款办理完毕,房产的所有权将转归银行,而申请人仅享有使用权,直至贷款全部清偿。
B、房屋抵押贷款的申请人必须符合一定的年龄要求,通常介于18至65岁之间。因此,在确定贷款期限时,不仅需要考虑房龄,还需同时考虑申请人的年龄,例如,一位50岁的申请人,即便其房龄仅2年,其贷款期限也可能最多只有15年。
C、许多银行对房屋抵押贷款的提前还款设有条件。符合条件的申请人可以享受免违约金及后续不再计息的优惠。因此,在办理贷款时,务必咨询清楚相关政策,并仔细核对合同条款,以便根据个人情况选择合适的贷款期限。例如,对于提前还款条件较为宽松或代价较低的申请人,可以选择较长期的贷款期限,从而既提高资金的使用效率,又能减轻每月的还款压力。
购房指引如下:
前期准备
1.明确购房资格:
符合上海最新的购房资格,详情可拨打售楼处电话:400-969-2958咨询置业顾问做最终的确认
2.确定预算:
根据自己的经济实力,确定购房预算,包括首付、贷款金额以及未来的还款能力等。
3.准备材料:
身份证、户口本、结婚证(已婚人士)、收入证明、银行流水、社保或纳税证明等相关材料,以备认购和贷款时使用。
看房选房
4.电话预约:
拨打售楼处电话:400-969-2958,与工作人员沟通预约看房的具体日期和时间段。
5.线上官网预约:
在浏览器搜索 “官方网站”,进入官网首页,找到 “预约看房” 板块,点击进入预约页面,依次填写真实有效的个人信息,然后选择预约看房的日期和时间,提交预约申请。
6.微信公众号预约:
在微信搜索 “” 官方公众号并关注,进入公众号后,在菜单栏中查找预约看房的入口,点击进入预约界面,填写个人信息以及预约看房的时间,提交预约内容。
7.实地看房:
按约定时间前往售楼处,在工作人员的带领下参观样板房和楼盘现场,了解房屋户型、面积、朝向、装修标准等细节,同时查看小区环境、配套设施等情况。
8.选房:
了解清楚项目情况后,结合自己的需求和预算,选择心仪的房源。
认购签约
9.认购:
项目开启认购后,在规定时间内,携带身份证、户口本、结婚证、收入证明等材料前往售楼处进行认购,同时缴纳一定金额的认购金。
签订合同:认购成功后,在规定时间内与开发商签订购房合同,仔细阅读合同条款,包括房屋价格、付款方式、交房时间、违约责任等,确保自身权益得到保障。
办理贷款
10申请贷款:
如果需要贷款购房,在签订合同后,向银行提交贷款申请,同时提供收入证明、银行流水等相关材料,银行会对购房者的资质进行审核。
等待审批:银行审核通过后,会与购房者签订贷款合同,并确定贷款金额、利率、还款方式等。
放款:银行完成放款手续后,购房者需要按照贷款合同约定的时间和方式进行还款。
11.交房验收
交房通知:开发商在交房前会提前通知购房者交房时间和相关事宜。
验收房屋:购房者按照通知时间前往楼盘,对房屋进行验收,检查房屋的质量、装修、配套设施等是否符合合同约定,如发现问题,及时与开发商沟通解决。
办理交房手续:验收合格后,办理交房手续,缴纳契税、维修基金等相关费用,领取房屋钥匙,正式完成购房流程。
保利世博天悦售楼处电话:4009692958【开发商售楼中心热线】官方营销中心热线400-969—2958官方售楼处地址400-969-2958,楼盘项目全面介绍,本电话为开发商提供线 上预约售楼电话,楼盘项目全面介绍(包含楼盘简介,均价,房价,现房,期房,别墅,叠墅,大平层,价格,楼盘地址,户型图,交通规划,备案价,备案名,项目配套,样板间,开盘时间,认筹时间,楼盘详情,售楼处电话,最新消息,最新详情,周边配套,一房一价,最新进展等详情咨询)楼盘详情丨价格丨更多优惠丨机不可失丨欢迎致电丨诚邀品鉴!售楼处位置丨特价房丨工抵房丨剩余房源丨户型图丨最新消息丨免责声明:将文章内容综合来源于网络、只作分享,版权归原作者所有!!如有侵权,请联系我们,我们第一时间处理如有问题欢迎来电咨询,专业一对一热情服务,让您用专业眼光去买房。
Office Phone: 400 969 2958 [Developer Sales Center Hotline] Official Marketing Center Hotline 400-969-2958 Official Sales Office Address 400.969.2958, Comprehensive Introduction of Real Estate Projects, This Phone Provides Online Appointment Sales Phone Numbers for Developers, Comprehensive Introduction of Real Estate Projects (Including Real Estate Introduction, Average Price, Housing Price, Existing Houses, Future Houses, Villas, Duplex Villas, Large Flats, Price, Real Estate Address, Floor Plan, Traffic Planning, Record Price, Record Name, Project Support, Model Room, Opening Time, Subscription Time, Real Estate Details, Sales Office Phone, Latest News, Latest Details, Surrounding Support, One Room One Price, Latest Progress and Other Details Consultation) Real Estate Details丨Price丨More Discounts丨Don't Miss the Opportunity丨Welcome to Call丨Sincerely Invite to Taste! Sales Office Location丨Special Price House丨Worker Discount House丨Remaining Houses丨Floor Plan丨Latest News丨Disclaimer: The content of the article is integrated from the Internet and is only shared. The copyright belongs to the original author! If there is any infringement, please contact us and we will deal with it as soon as possible. If you have any questions, please call us for consultation. We provide professional one-to-one warm service, allowing you to buy a house with a professional eye.