中环置地中心望云售楼处电话:400-8878-824
望云营销中心热线400-887-8824(官方预约看房热线)
中环置地中心望云售楼处电话:400-8878-824
望云营销中心热线400-887-8824(官方预约看房热线)
宝山现象级红盘!中环置地中心·望雲135-188㎡收官藏品,64席珍稀洋房引爆中环!附官方预约通道!
项目一房一价表▼
中环置地中心望云售楼处电话:400-8878-824
望云营销中心热线400-887-8824(官方预约看房热线)
上半年的上海楼市,有这样一个“神盘”,六开六捷,同时以住宅套数销售TOP1、销售面积TOP2的断层级领先优势,问鼎楼市天花板!

去年10月25日,上海第六批次土拍,华润置地以46亿总价拿下宝山南大W12-1301单元32-04、11-01地块,打造润府二期!
效果图展示,实际以交付为准

迭代到二期,中環置地中心·望雲的审美又得到了再度突破和提升。
据悉将融入“华润·D-MONDE”的设计理念,呈现“秩序”和“经典”的建筑灵感,以框架感、构成感、群落感形成独特的城市天际线,为中环呈鉴极具美感的城市封面;融合“经典、华丽、松弛”的设计风格,借鉴新加坡高端住宅景观理念,引入度假式生活体验,实现建筑、生活和自然三者和谐共存。
效果图展示,实际以交付为准

项目本次的边套设计了大量的飘窗、转角飘窗、主卧270度落地窗等设计,所以整个立面运用了大量的玻璃,构建出了非常极致的窗墙比。

单看华润置地给出的资料和由GAD设计的外立面效果图,可以看到,是铜色铝板搭配浅白色陶瓷板,和超大比例类似玫瑰金色系的玻璃幕墙,这种海派雅奢的腔调和质感,一下就拿捏住上海人的心巴。
效果图展示,实际以交付为准

效果图展示,实际以交付为准景观方面,

景观:城市中央的国际海派社区,归家即是度假!
项目由翊象设计主创设计团队操刀设计。
整个社区以主景花园联动自然教室、休闲交谊与艺术空间,形成婉转游园的酒店式迎宾水院。
效果图仅供参考,具体以实际交付为准
同时,以超奢戏水池与尊享休闲会所为核心,联动架空层,串联休憩廊架与横向端景,打造核心奢享场景。
另外,整个项目拥有包括泛会所(戏水池、健身场所)、场景化网红架空层泛会所等全维社交场景。

效果图仅供参考,具体以实际交付为准
该宗地块与华润置地中心润府相邻,将打造全新万象汇TOD综合体——中環置地中心·望雲
32-04地块,规划8幢住宅,总高8-26F,可售套数约580套左右。

2#、7#、8#有连廊,其中2#预估是3梯5户,7#、8#是3梯6户。其余楼栋无连廊,1梯2户;
5#、6#总高8层,无架空层,其余楼栋1层均有架空;9#、10#总高17F,其余楼栋总高22-26F;
该地块无保障房,地面无车位,人车分流。
11-01地块是商业、住宅混合地块。

规划3栋总高17-29层住宅,商业部分有2栋总高30F的酒店、23F的综合楼、以及2栋3F的商业;
住宅和商业部分通过公共通道分隔;
住宅部分人车分流,无地面车位。车行入口在西侧祁健路上。

「丰翔路站TOD!北上海商业旗舰曝光」
项目推售详情
据悉,中環置地中心·望雲推出约108-188㎡3-4房,本次加推5、6、9幢楼,户型建面约135-188㎡3-4房,望雲楼尊9#建面约188㎡,即将点燃南大!现望雲实景示范区-雲境美学生活馆已全城开放,恭迎品鉴。
产品方面,相比一期润府,望雲的户型设计可谓一脉相承,切中购房者“痛点”;在室内装修上的品质呈现,其审美也得到了进一步提升。
项目全套户型图如下:
108㎡的入门级三房,起步门槛相比润府提高不少。
这个户型,入户玄关收纳、双开间的阳台、宽大的U型厨房,和套房主卧带步入式衣帽间+全景式飘窗,是比较突出的亮点;

中环置地中心望云约108㎡3房样板间实拍▼
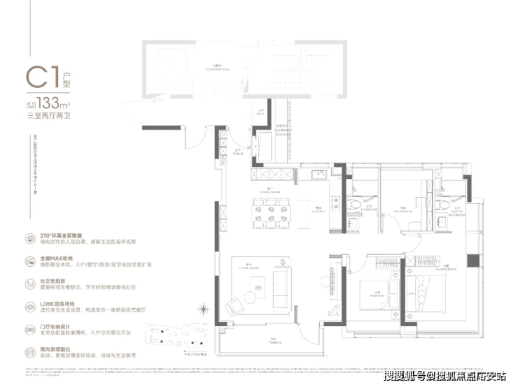
133㎡可以说是108㎡的进阶款,同样的三房两厅两卫,大面宽横厅、半开放式厨房设置岛台,加上主卧L型飘窗,再一次验证了华润置地豪宅化的产品思路。

中环置地中心望云约133㎡3房样板间实拍▼
宝山现象级红盘!中环置地中心·望雲135-188㎡收官藏品,64席珍稀洋房引爆中环!附官方预约通道!
来到165㎡个户型,已经上升到上海主流的大户型改善面积段,但看设计思路,可以看出是为满足多胎家庭成长而服务的。
近日中寰置地中心·望雲开放了165㎡样板间,楼典实地参观感受一番下来,整个户型动静分区的布局空间感很出众,人性化收纳设计细节很多,几乎每个房间都做了开窗面极大的飘窗,另外,装标也在润府的基础上升级了不少。

首先推开入户门,映入视线的是LDKB一体化客餐厅,家庭的核心活动区域,整个户型动静分区的布局一览无余,无走廊设计,空间利用率极高,走下来显得十分敞阔。

其次是收纳空间非常丰富,玄关、餐边柜、厨房、卫浴、主卧、阳台六大功能空间,随处可见。
比如,厨房配了珍珠白吊柜、三组抽屉式拉篮合理搭配,调料架收纳、大容量踢脚抽、清洁用品收纳区,米面粮油、碗碟刀叉都可完美隐身。
下图蓝色为收纳区域,绿色部分即飘窗区域:

入户门厅也非常讲究,定制级的玄关柜,包括鞋柜+收纳柜+卡座+衣帽区,整齐有序。

此外,像私享的入户梯厅可以做家庭小型储藏库;沙发后面的空间可以摆放大体量壁柜;大面宽阳台两侧也可作为定制储藏空间;



整个户型的飘窗面积总和达到了约14.3㎡。
其中主卧的270°转角飘窗就有约5.7m²,通过与外立面的结合,直接做了梳妆台和储物柜,拓展了飘窗的实用性。


同时室内精装交付标准上,也再度升级,从墙面、地板到厨卫品牌,都是国内外一线品牌。


188户型2梯2户,有独立的电梯厅。4房3卫设计,还是3明卫,这两点还是不错的。
客餐厅净面宽约5.45m、进深约6.85m左右。北侧是厨房和家政间,南侧是净面宽约5m的阳台。
南次卧也是套间设计,而且也是明卫,设计上还是用了心思的。卧室部分净面宽约2.9m、进深约3.7m。根据测算,可以放置6尺的床(宽度约1.8m)+2个床头柜(宽度约45cm/个)+衣柜(深约60cm)是可以的。
主卧转角落地窗+飘窗,也算是非常少见的了。净面宽约3.6m,不算进门的衣柜,进深大约5.7m左右。根据测算,可以放置宽约2m的床+2个床头柜(宽度约45cm/个)是可以的。
宝山现象级红盘!中环置地中心·望雲135-188㎡收官藏品,64席珍稀洋房引爆中环!附官方预约通道!
项目区位配套
中环置地中心地处宝山南大板块!作为宝山4个重点发展区域之一,南大同时也是上海北部最大的待开发区域之一。
待开发,也就意味着尚未建成!但不管是从规划还是位置来看,南大都是上海少有的能兼顾产业和居住的板块之一。
首先南大被称为中心城区一块不可多得的“大衣料子”,总开发体量约540万方,包含两大TOD及约250米天际地标,规划绿地面积占比高达43%(来源:上海宝山)!
和其他区域边拆边建式的零散开发不同,而是统一拆改后再集中规划,这样的开发形式,也决定了这里的规划从一开始就会相对完整且高能级。
比如它的产业先行,整个区域内分布了不少的科创产业。

而且,从2035总体规划中,其实也能看出来,南大定位很高,属于全市重点推进的整体转型区域,是宝山建设上海科创中心主阵地的核心载体。

所以不管是放在全上海还是宝山,这都是一块举足轻重的产业基地。
而除此之外,前面也提到,南大板块规划的绿地面积占比高达43%。特色公园40余个,人均绿色面积约39.38㎡,是上海人均绿地面积的约3倍。未来可能会是一个超越碧云的大型生态居住区。(数据来源:上海宝山区政府官网)

也就是说,在这个重点产业区域,其实早就考虑到了与生活相融的问题。
讲真,在环线外的空白区域这样规划不是难事,但在上海的中环附近,近乎预留了一半的土地给到绿化,给到生活,这算的上是一件吃力不讨好的事儿。
但南大有宜人的生态,而且还是高规格。
中环置地中心·望雲位于南大智慧城C位,周边生活配套非常成熟且距离相对较近,未来随着板块规划逐步兑现,地段价值将会更加凸显。

交通配套方面:北侧丰翔路、西侧祁健路、东侧汇丰路已建成通车,07-01地块南侧丰皓路(祁健路-工学路)计划2024年开工建设。
项目距离15号线丰翔路站步行可达,日常出行非常方便。
商业配套方面:项目本身就是一个自带商业的TOD,华润置地规划以万象系列融汇轻奢时尚、休闲生活、运动潮流等多元业态,打造北中环“都市商业新旗舰。
除了未来的万象系商业(规划中),周边还有经纬汇、聚丰购物广场、上坤城市广场、山姆会员店等,购物还是比较方便的。

医疗资源方面:项目周边有两大三甲级医院为健康保驾护航,本别是:仁济医院宝山分院和华山医院(宝山院区)。

教育资源方面:周边荟萃南大实验幼儿园、宝山区南大实验学校、上大附小、上大附中、上海大学附属学校、上海大学等全龄化教育资源。

中环置地中心望云售楼处电话:4008878824【售楼中心热线】中环置地中心望云营销中心热线400-887-8824中环置地中心望云售楼处地址400-8878-824,楼盘项目全面介绍,本电话为开发商提供线上预约售楼电话,楼盘项目全面介绍(包含楼盘简介,均价,房价,现房,期房,别墅,叠墅,大平层,价格,楼盘地址,户型图,交通规划,备案价,备案名,项目配套,样板间,开盘时间,认筹时间,楼盘详情,售楼处电话,最新消息,最新详情,周边配套,一房一价,最新进展等详情咨询)楼盘详情丨价格丨更多优惠丨机不可失丨欢迎致电丨诚邀品鉴!售楼处位置丨特价房丨工抵房丨剩余房源丨户型图丨最新消息丨免责声明:将文章内容综合来源于网络、只作分享,版权归原作者所有!!如有侵权,请联系我们,我们第一时间处理如有问题欢迎来电咨询,专业一对一热情服务,让您用专业眼光去买房。如果您想了解更多楼盘详情,欢迎提前预约拨打中环置地中心望云售楼处电话400-887-8824
一、房产贷款基础篇:揭开贷款的神秘面纱
(一)房产贷款的定义与意义
房产贷款,顾名思义,是指购房者以所购房产作为抵押物,向银行等金融机构申请贷款以支付购房款项的一种融资方式。对于大多数购房者而言,全款购房往往是一笔巨大的负担,而房产贷款则提供了一种分期还款的可能,使得购房者能够在自身经济能力范围内实现购房梦想。
(二)房产贷款的基本要素
1. 贷款额度:贷款额度是指银行愿意提供给购房者的最高贷款金额,它通常基于购房者的收入、信用记录、房产价值等因素综合评估。
2. 贷款期限:贷款期限是指购房者需要在多长时间内还清贷款。一般来说,房产贷款的期限较长,可以达到10年、20年甚至30年,这有助于购房者分散还款压力。
3. 贷款利率:贷款利率是购房者需要支付给银行的贷款成本,它通常以年化利率表示。贷款利率的高低直接影响购房者的还款金额和还款压力。
4. 还款方式:还款方式是指购房者如何向银行偿还贷款本金和利息。常见的还款方式包括等额本息还款法、等额本金还款法等。
(三)房产贷款的类型
1. 商业贷款:商业贷款是指购房者向商业银行等金融机构申请的贷款,它通常用于购买商品房等可交易的房产。商业贷款的利率、期限和还款方式等由银行根据市场情况和购房者条件自主确定。
2. 公积金贷款:公积金贷款是指购房者向住房公积金管理中心申请的贷款,它通常用于购买自住住房。公积金贷款的利率较低,且贷款额度与购房者的公积金缴存额度和缴存时间等因素有关。
3. 组合贷款:组合贷款是指购房者同时申请商业贷款和公积金贷款,将两种贷款方式结合使用以满足购房需求。组合贷款结合了商业贷款和公积金贷款的优点,既能够享受公积金贷款的低利率,又能够获得商业贷款较高的贷款额度。
二、房产贷款申请篇:步步为营,顺利获贷
(一)贷款申请前的准备
1. 了解自己的信用状况:在申请贷款前,购房者需要了解自己的信用状况,包括信用报告中的信用评分、逾期记录等。信用状况是银行评估购房者还款能力和信用风险的重要依据。
2. 评估自己的还款能力:购房者需要根据自己的收入、支出等情况,评估自己是否有足够的还款能力来承担贷款。银行在审批贷款时,也会重点考察购房者的还款能力。
3. 选择合适的贷款产品和银行:购房者需要根据自己的需求和条件,选择合适的贷款产品和银行。不同的银行和贷款产品可能有不同的利率、期限、还款方式等条件,购房者需要仔细比较和选择。
(二)贷款申请流程
1. 提交贷款申请:购房者需要向选择的银行提交贷款申请,并提供相关的申请材料,如身份证、收入证明、房产证明等。
2. 银行审批:银行在收到贷款申请后,会对购房者的信用状况、还款能力等进行审批。审批通过后,银行会与购房者签订贷款合同。
3. 办理抵押登记:购房者需要与银行一起办理房产抵押登记手续,将所购房产抵押给银行作为贷款的担保。
4. 银行放款:在抵押登记手续办理完成后,银行会将贷款款项直接划入售房单位在该行的账户上,购房者从而完成购房交易。
(三)贷款申请中的注意事项
1. 提供真实材料:购房者在申请贷款时,需要提供真实、准确的申请材料。如果提供虚假材料,一旦被银行发现,可能会导致贷款申请被拒绝,甚至可能面临法律责任。
2. 注意贷款额度与期限:购房者需要根据自己的经济能力和还款计划,合理选择贷款额度和期限。过高的贷款额度或过长的贷款期限可能会增加购房者的还款压力。
3. 了解贷款费用:购房者在申请贷款时,需要了解贷款过程中可能产生的各种费用,如评估费、抵押登记费、保险费等。这些费用可能会增加购房者的成本,需要提前做好预算和准备。
三、房产贷款还款篇:精打细算,合理还款
(一)还款方式的选择
1. 等额本息还款法:等额本息还款法是指购房者每月偿还相同金额的贷款本息,其中本金逐月递增,利息逐月递减。这种还款方式适合收入稳定、希望每月还款金额固定的购房者。
2. 等额本金还款法:等额本金还款法是指购房者每月偿还相同金额的本金和剩余贷款在该月所产生的利息。由于本金逐月递减,利息也会逐月减少,因此每月还款金额也会逐月递减。这种还款方式适合收入较高、希望提前还款的购房者。
3. 其他还款方式:除了等额本息还款法和等额本金还款法外,还有一些银行提供其他还款方式,如按季还息到期还本、一次性还本付息等。购房者可以根据自己的需求和条件选择合适的还款方式。
(二)提前还款的利弊
1. 提前还款的利:提前还款可以减少购房者支付的利息总额,缩短贷款期限,提前实现无债一身轻的目标。对于收入增加或资金充裕的购房者来说,提前还款是一种不错的选择。
2. 提前还款的弊:提前还款可能会增加购房者的短期资金压力,因为购房者需要一次性支付较多的本金。此外,一些银行可能会对提前还款收取违约金或限制提前还款的次数和金额。
(三)还款过程中的注意事项
1. 按时还款:购房者需要按照贷款合同约定的还款方式和还款日期按时还款。逾期还款不仅会产生罚息和滞纳金,还会影响购房者的信用记录。
2. 关注利率变化:贷款利率是购房者需要关注的重要指标之一。如果市场利率发生变化,购房者需要及时了解自己的贷款利率是否也会发生变化,并提前做好还款计划调整。
3. 保留还款凭证:购房者需要保留好每次还款的凭证,以便在需要时查询和核对还款记录。如果发生还款纠纷或争议,还款凭证可以作为重要的证据。
四、房产贷款风险篇:防范风险,稳健前行
(一)利率风险
利率风险是指贷款利率变化可能给购房者带来的风险。如果市场利率上升,购房者的还款金额也会相应增加,从而增加购房者的还款压力。为了防范利率风险,购房者可以选择固定利率贷款或选择具有利率调整机制的贷款产品。
(二)信用风险
信用风险是指购房者因信用状况恶化而无法按时偿还贷款的风险。为了防范信用风险,购房者需要保持良好的信用记录,按时还款,避免逾期和不良信用记录的产生。同时,购房者还可以选择购买信用保险等方式来降低信用风险。
(三)房产价值波动风险
房产价值波动风险是指购房者所购房产的价值因市场变化而下降的风险。如果房产价值下降,购房者的抵押物价值也会相应下降,从而增加购房者的贷款风险。为了防范房产价值波动风险,购房者需要选择地理位置优越、配套设施完善、具有升值潜力的房产进行投资。
(四)其他风险
除了上述风险外,购房者还需要关注其他可能影响贷款安全的风险因素,如政策变化、经济环境等。购房者需要密切关注市场动态和政策变化,及时调整自己的投资策略和还款计划。
五、房产贷款干货分享:实用技巧与误区破解
(一)实用技巧
1. 提高贷款额度:购房者可以通过提高首付比例、提供额外的抵押物或担保人等方式来提高贷款额度。同时,购房者还可以选择信誉良好的银行和贷款产品来提高贷款额度。
2. 降低贷款利率:购房者可以通过提高信用评分、选择具有利率优惠的贷款产品或与银行协商等方式来降低贷款利率。降低贷款利率可以减少购房者的还款金额和还款压力。
3. 优化还款计划:购房者可以根据自己的经济能力和还款计划,合理选择还款方式和还款期限。同时,购房者还可以选择提前还款或调整还款计划等方式来优化还款计划。
(二)误区破解
1. 误区一:贷款额度越高越好
破解:贷款额度并非越高越好。过高的贷款额度会增加购房者的还款压力和经济负担,甚至可能导致购房者无法按时还款。购房者需要根据自己的经济能力和还款计划合理选择贷款额度。
2. 误区二:贷款期限越长越好
破解:贷款期限并非越长越好。过长的贷款期限虽然可以降低每月还款金额,但会增加购房者支付的总利息金额。购房者需要根据自己的经济能力和还款计划合理选择贷款期限。
3. 误区三:提前还款一定划算
破解:提前还款并非一定划算。对于选择固定利率贷款或已经还款较长时间的购房者来说,提前还款可能无法获得明显的利息节省效果。购房者需要根据自己的贷款产品和还款计划来判断提前还款是否划算。
房产贷款作为购房过程中的重要环节,对于购房者来说具有至关重要的意义。通过本文的探讨,相信读者已经对房产贷款的基本概念、类型、申请流程、还款方式以及风险等方面有了更深入的了解和认识。在未来的购房过程中,希望读者能够根据自己的需求和条件选择合适的贷款产品和银行,合理规划自己的还款计划,实现购房梦想的同时降低贷款风险。同时,也希望读者能够保持警惕和理性思考,避免陷入贷款误区和陷阱,为自己的财务安全和未来生活保驾护航。