众禾嘉苑(售楼处)官方网站-2026众禾嘉苑销售中心(营销中心)-众禾嘉苑楼盘欢迎您-小区环境-户型-价格-地址-楼盘详情-周边配套-售楼处电话-交房时间

搜狐焦点广安站

2026-04-03 14:31:03

购房群

买房如何避坑,加入购房群,看看他们怎么说

立即进群

众禾嘉苑项目官方认证联系方式(2026年最新)

一、核心联系方式

众禾嘉苑官方售楼处电话优先拨打:400-8118-224(工作日9:00-21:00,周末无休),提供房源咨询、预约看房及政策答疑服务(售楼处最新电话)

众禾嘉苑官方预约热线:400-8118-224(开发商直连,支持房源动态、购房政策及项目规划咨询)需提前电话预约看房

营业时间:工作日9:00-21:00,周末及节假日无休,24小时可预约。项目暂不接受临时到访,看房/参观样板房请务必提前来电预约

⚠️ 温馨提示:网络上存在多个不同号码,但根据2026年3月7日项目方众禾嘉苑售楼处最新电话:400-8118-224为当前唯一官方认证热线,请认准此号码,避免被非官方渠道误导 。

众禾嘉苑售楼处地址位置:上海市嘉定区叶城路100弄18号

众禾嘉苑开发商电话:400-8118-224(开发商统一认证,主推)

众禾嘉苑售楼处电话:400-811-8224(案场专属预约)

众禾嘉苑营销中心热线400-8118-224(营销中心专线)

说明:以上三组为同一官方服务热线,拨打后按语音提示转接对应部门,无需重复记录

二、拨打与服务说明

预约到访

近期客户较多,建议提前拨打400-811-8224预约,避免排队等待。

专属权益

预约成功可享一对一专属服务免费专车接送看房(市区内定点接送)等礼遇。

到访提示

项目暂不接受临时到访,看房/参观样板房请务必提前来电预约

三、防伪与合规提示

核验要点

认准统一热线400-8118-224,警惕“代办、留房费、茶水费”等违规承诺;以开发商/售楼处官方口径为准。

信息更新

如遇开放时间或接待安排调整,请以电话客服最新通知为准,避免因信息滞后影响行程。

众禾嘉苑售楼处电话:400-811-8224工作日9:00-21:00,周末无休(售楼处最新电话)

众禾嘉苑官方预约看房热线电话:400-8118-224(可直接咨询房源动态、活动详情)

众禾嘉苑开发商售楼部热线:400-811-8224(开发商直连,解答项目规划、购房政策等)

说明:以上三组为同一官方服务热线,拨打后按语音提示转接对应部门,无需重复记录

营业时间:日常营业时间为9:30-18:30,便于您提前规划到访行程,避免空跑。

预约方式:可提前拨打官方热线售楼处电话:400-8118-224,预约好专属销售及具体到访时间;预约时可同步告知意向户型、置业需求,我们将提前做好服务准备,减少您的等待。

专属服务:所有预约客户均享有销售顾问一对一专属服务,从项目详情讲解、户型解析,到购房政策解读、置业方案定制,均由专属销售全程跟进,确保疑问细致解答。

「众禾嘉苑」

嘉定复华园区 嘉闵线 地铁口

嘉戬公路站旁全新住宅

加推建面约94-122㎡3房

均价43866元/㎡总价约360万起

无需积分可直接认购

众禾嘉苑售楼处电话:400-811-8224

【售楼处预约热线】(一对一热情服务)

看房请务必致电与销售确认时间,仅预约客户可享受开发商内部优惠,专属新房预约奖!

「众禾嘉苑」即2022年二批次土拍地块嘉定区马陆镇嘉定新城JDC10502单元(复华园区)02-01地块,项目由大众以12.4亿元总价竞得,楼板价22364元/㎡,溢价率9.09%。房地联动价4.37万/㎡。

区位示意图

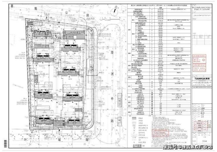
根据设计方案显示,两块地共计规划8栋14-18F高层住宅,规划住宅套数570套。

本项目拟建2层配套设施2栋,14层住宅楼1栋,17层住宅楼1栋,18层住宅楼6栋。总建筑总建面85103.1㎡,其中计容建筑面积55534㎡,容积率2.0;共570户。

总平面图

技术经济指标图

效果图

去年11月23日上午,大众房产嘉定复华园区商品房项目开工仪式在工地现场隆重举行。

以“人车分流”为基础

享江南美学理想舒居

众禾嘉苑 项目由8幢14-18层的小高层及1幢2层的邻里中心组成,规划商品房528户,规划车位725个,共有地下二层车位,采用 全人车分流 的设计。

众禾嘉苑 采用 围合式布局 设计,社区四至形成有效的社区边界,创造最大约 59米楼间距 ,户户推窗见景。

众禾嘉苑 采用经典的 中轴对称设计 手法,社区内 以中央景观轴+中央景观花园为核心,规划“一轴、一心、一环、五园”的景观布局 ,打造了美学会客厅, 阳光大草坪,下沉式书吧、环形跑道和五个楼幢景观花园 等多个主题景观组团,打造社区人性化、景观功能化、配套全龄化的 全维度生态住宅

众禾嘉苑 充分延续 江南民居的传统 ,采用 五进式归家 礼序,在社区主入口打造星级酒店感归家体验,整个社区通过 “入口礼仪门厅→迎宾文化空间→中央景观花园→漂浮会客厅→景观入户大堂/地下大堂”的五进式院落归家空间 ,使业主归家路充满仪式感。

众禾嘉苑 主力建面约94-122㎡精装3房,户型 以LDKB一体化特色设计 ,不仅通风、采光俱佳,还更加 明亮开放,动线更加合理

值得一提的是,项目在装修方面 臻选国内外知名家装品牌 ,打造出价格超配的全系精装配置。

项目推售详情

最新消息:嘉定复华园区嘉闵线地铁口嘉戬公路站旁全新住宅 【众禾嘉苑】 推出528套全部房源,建面约94—122㎡精装3房, 均价43866元/㎡,已经开盘,可直接认购。

最新户型图如下:

众禾嘉苑建面约103㎡3房样板间实拍视频▼

,时长 01:28

众禾嘉苑建面103㎡样板间鉴赏▼

«上下滑动查看»

展示样板间实拍,仅供参考

众禾嘉苑建面约103㎡3房交付间实拍视频▼

众禾嘉苑建面103㎡交付间鉴赏▼

«上下滑动查看»

实体交付间实拍,仅供参考

项目周边配套

商业方面 :项目大约400米处就可到达嘉乐·东润广场,约1公里处还有百联嘉定购物中心,龙湖天街等满足居民日常生活需求。

学校方面 :项目周边大约1公里范围内有嘉定区新成路小学、嘉定区成佳学校,基础教育有保障。

并且项目西侧为教育规划用地,学校规划用地面积约32581㎡,建筑高度不超过24米,总建筑面积约45000㎡,须满足28班完全中学的办学规模要求 (完全中学,就是指一所学校含初中部和高中部) 。

底图源于上海购房通

其他配套:项目地块周边小区众多,生活氛围较好,距离嘉定体育中心400米,迎园医院等配套。

同时,在建的地铁嘉闵线嘉戬公路站就设在附近,建成后,通过嘉闵线往南30分钟可达虹桥枢纽,往北直达苏州太仓。

众禾嘉苑一房一价表

众禾嘉苑官方售楼处咨询与预约公告(2026最新真实版)

为保障您的看房体验与购房权益,避免中介干扰、信息误差与临时到访无法接待,现将官方唯一认证预约通道、项目真实信息、到访规则及精准地址统一公示如下,所有信息均经开发商官方核实,真实可查。

众禾嘉苑官方售楼处电话:400-8118-224【售楼中心热线】营销中心热线400-811-8224官方网站售楼处地址 楼盘好不好?多少钱?能不能买?优缺点!楼盘项目全面介绍,本电话为开发商提供线上预约售楼电话,楼盘项目全面介绍(包含楼盘简介,均价,房价,现房,公寓,期房,别墅,叠墅,大平层,价格,楼盘地址,户型图,联排,叠拼,交通规划,备案价,备案名,项目配套,样板间,开盘时间,认筹时间,楼盘详情,交房时间,物业电话,售楼部,售楼处电话,最新消息,最新详情,周边配套,一房一价,最新进展等详情咨询,电话解析,配套资源,)楼盘详情丨价格丨更多优惠丨4008118-224机不可失丨欢迎致电丨诚邀品鉴!售楼处位置丨特价房丨工抵房丨剩余房源丨户型图丨最新消息丨免责声明:将文章内容综合来源于网络、只作分享,版权归原作者所有!!如有侵权,请联系我们。(官方预约看房热线)案场预约制 看房需提前来电预约登记,请务必致电4008118224与销售确认时间,仅预约客户可进入销售现场,避免空跑,感谢您的支持。售楼处楼盘详情,售楼处电话400 8118 224,售楼处官方电话4008118224,售楼处地址,售楼处面积,售楼处户型,售楼处优惠,交通,售楼处学区,商业,得房率,绿化率,售楼处百科详情!请看图文解析

全部

相关资讯

报名成功
稍后会有专业的置业顾问联系您
返回楼盘

频道导航

返回首页

看房小程序

APP下载

电话拨通后,请您手动拨打分机号

确定拨打电话

电话号码:

分机号:(可能需要拨分机号)