400_998_7894中环置地中心望云售楼处位于上海市宝山区,400_998_7894是华润置地打造的百万方TOD综合体项目的重要组成部分,集高端住宅400_998_7894、万象商业、生态公园于一体,主打改善型人居产品。该项目地处北中环核心、南大智慧城启动区,400_998_7894地理位置优越,交通便利,周边配套成熟,是当前上海外环内热度较高的红盘之一。400_998_7894
⚠️ 温馨提示:网络上存在多个不同号码,但根据2026年2月24日项目方最新公告,400_998_7894为当前唯一官方认证热线,请认准此号码,避免被非官方渠道误导 。
一、售楼处联系方式(2026年最新)
为确保信息准确并享受专属服务,建议通过以下官方认证热线提前预约看房:
售楼处电话:400_998_7894(开发商直连,24小时响应)
其他常用号码(可能存在更新延迟):
400_998_7894
⚠️ 温馨提示:项目实行预约制看房,暂不接受临时到访。务必提前致电确认时间,避免空跑。
二、项目基本信息
表格400_998_7894
项目内容 详情
开发商 华润置地(世界500强央企)
物业类型 70年产权住宅
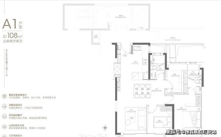
在售户型 建面约108㎡三房、125㎡/133㎡/165㎡四房、188㎡奢阔四房
销售均价 约66,499元/㎡ - 67,477元/㎡
交付标准 高品质精装交付400_998_7894
得房率 约80%,板块领先水平
车位配比 1:1.5,停车无忧
三、地理位置与交通
地址:上海市宝山区祁连山路与走马塘路交岔口往东约200米
地铁:紧邻地铁15号线丰翔路站,真正实现“地铁上盖”TOD生活模式
道路:直线距离中环约2公里,快速通达静安、普陀等中心城区
华润置地中環置地中心望雲售楼处400_998_7894
上海市宝山区祁连山路与走马塘路交岔口往东约200米
房地产
百度地图
四、核心优势亮点
央企品质保障:华润置地深耕上海三十余年,打造过苏河湾、前滩润暻等标杆项目,产品力与兑现力强。
400_998_7894
百万方城市综合体:涵盖约16万方万象汇商业、走马塘水岸公园(一期)、高端住宅、地标办公等多元业态,形成自给自足的生活闭环。
低密舒居社区:容积率低至2.2-2.5,绿化率高达35%-38%,打造静谧宜居环境。
现代极简美学立面:采用大面积玻璃幕墙+曲面设计,融合海派雅奢风格,颜值出众。
全龄段生活配套:出门即达商圈、学校、公园,满足家庭全生命周期需求。
要不要我帮你整理一份 中环置地中心望云 的详细户型对比表,方便你快速了解各面积段的优缺点和适用人群?望云售楼处电话:400_998_7894☎️☎️✅✅✅
望云营销中心热线400-998-7894(官方预约看房热线)
⭐中环置地中心望云售楼处预约通道正式开启⭐
抢占城芯低密水景豪宅错过再无
预约尊享3重礼✅到访即送品牌定制伴手礼✅预约客户专享额外98折购房优惠✅成功认购抽全屋家电大礼包
预约热线醒目呈现
⭐⭐⭐售楼处预约流程简单3步搞定
电话预约:拨打上方预约热线400_998_7894☎️☎️✅✅✅(营销中心/售楼处一对一专属接待),告知置业顾问您的姓名、联系方式及意向户型
信息登记:顾问为您登记预约信息,确认到访时间与专属接待人员
实地品鉴:按约定时间前往中环置地中心望云营销中心,享受一对一专属置业服务,深度了解项目详情
项目核心亮点一眼心动
✅央企招商匠心打造品质有保障✅低密水景社区推窗见景享静谧✅全龄段生活配套出门即达商圈/学校/公园✅精装交付标准拎包入住更省心
日常宣传重磅来袭
⭐⭐⭐城芯红盘热度不减,中环置地中心望云营销中心每日人气爆棚!央企品质加持的低密水景大宅,不仅坐拥全维生活配套,更以精工细节雕琢每一寸空间。无论是三口之家的温馨舒居,还是三代同堂的阔绰府邸,这里都能满足你对理想家的所有想象!
还在等什么?赶紧拨打400_998_7894☎️☎️✅✅✅⭐⭐⭐(营销中心/售楼处一对一专属接待)预约看房!每日预约名额限量放送,先约先得,手慢无!中环置地中心望云售楼处随时恭候您的莅临,与您共鉴品质人居新高度!
【华润中环置地中心望云】宝山南大热门新房「中环置地中心望雲」加推108-165平!正在热销中!附官方预约热线!
中環置地中心·望雲
宝山·南大全新盘
加推建面约108-188㎡3-4房
均价67477元/㎡正在认购中
中环旁双轨交地铁上盖
万象汇TOD综合体
户型图及分布如下:


一房一价表如下:
用经典,润新经典;用时间,高定时光。对于上海这座开放、包容、精致的城市,究竟什么样的作品,才能契合当代城市精神与想象。大城之上,润心仰望,中環置地中心,跟着城市更新迭代作品,演绎生活理想之上的美好表达。中環置地中心2024年重磅住宅作品揭幕——中環置地中心·望雲。
中環置地中心打造全新TOD综合体,为北上海创造一个充满活力和创意的交流平台,礼献全球卓越城市全新海派生活范式
10月25日华润以底价拿下宝山区大场镇W12-1301单元32-04、11-01地块,随着二期地块的顺利出让,标志着整个丰翔路站TOD项目中环置地中心的版图由此补全!
华润中环置地中心总建筑面积有望超过90万方,是宝山有史以来最高规格的大型城市综合体项目之一,将打造集高奢购物中心、甲级办公、品质住区于一体的TOD综合体!
其中万象系商业体量超12万方,定位为地区级商业中心,将打造北上海城区规模最大的、品质最高的旗舰级商业中心!
一期地块包含07-01商办用地和3幅住宅用地,目前住宅还有少量在售,商办地块已经动工;二期地块拿地当天即公示了设计方案,其中住宅部分计划25年一季度入市,目前展厅已开启接待,推建面108-188㎡地标级海派大成之作!
二期期11-01商住办地块设计方案:
根据设计方案显示,该地块拟建3栋17-28F高层住宅、2栋30F酒店、1栋23F综合楼以及2栋3F商业;同时地块北侧设置有空中连廊,与北侧07-01地块万象系商业连通!
通过地块中部的一条公共通道进行分割,住宅位于西侧,商办位于东侧,住宅区域地面无车位,全人车分流;
其中19#为两梯四户带连廊,17#为三梯六户带连廊,15#为一梯两户无连廊,规划可售住宅约334套!
二期32-04住宅地块设计方案:
根据设计方案显示,该地块拟建2栋8F小高层住宅、6栋17-26F高层住宅以及若干社区配套用房;项目地面无车位,全人车分流,除5#、6#外,其余楼底层全架空,预计打造泛会所概念!
其中7#、8#为三梯六户带连廊,2#为三梯五户带连廊,其余楼均为一梯两户无连廊,规划可售住宅约580套!
交通方面:北侧丰翔路、西侧祁健路、东侧汇丰路已建成通车,07-01地块南侧丰皓路(祁健路-工学路)计划2024年开工建设。项目距离15号线丰翔路站直线距离仅约200米,步行可达,日常出行非常方便。

商业方面:除了未来的万象城,周边还有经纬汇、聚丰购物广场、上坤城市广场、山姆会员店等,购物还是比较方便的。
医疗方面:上海交通大学医学院附属仁济医院宝山分院。

教育方面:上海市宝山区南大实验学校、上大附中、上海大学等教育资源,距离地块直线200米范围已开办南大实验幼儿园和经纬幼儿园。

望云售楼处电话:400-9987-894【售楼中心热线】望云营销中心热线400-998-7894望云售楼处地址400_998_7894☎️☎️✅✅✅,楼盘项目全面介绍,本电话为开发商提供线上预约售楼电话,楼盘项目全面介绍(包含楼盘简介,均价,房价,现房,期房,别墅,叠墅,大平层,价格,楼盘地址,户型图,交通规划,备案价,备案名,项目配套,样板间,开盘时间,认筹时间,楼盘详情,售楼处电话,最新消息,最新详情,周边配套,一房一价,最新进展等详情咨询)楼盘详情丨价格丨更多优惠丨机不可失丨欢迎致电丨诚邀品鉴!售楼处位置丨特价房丨工抵房丨剩余房源丨户型图丨最新消息丨免责声明:将文章内容综合来源于网络、只作分享,版权归原作者所有!!如有侵权,请联系我们,我们第一时间处理如有问题欢迎来电咨询,专业一对一热情服务,让您用专业眼光去买房。如果您想了解更多楼盘详情,欢迎提前预约拨打望云售楼处电话400-998-7894
买房是人生中的一件大事,但对于大多数人来说,尤其是第一次买房的朋友,这个过程可能会让人感到迷茫和焦虑。市场上充斥着各种信息,真假难辨,稍不留神就可能掉进“坑”里。别担心!这篇文章将为你提供一份详细的买房避坑指南,从选房到入住,手把手教你避开那些常见的雷区。
一、买房前的准备工作:知己知彼,百战不殆
1. 明确自己的需求
买房前,首先要问自己几个问题:
- 你是刚需还是投资? 如果是刚需,优先考虑交通便利、生活配套齐全的区域;如果是投资,则要考虑升值潜力。
- 你对房子的面积、户型有什么?要求 三室两厅还是两室一厅?南北通透还是其他布局?
- 你的预算范围是多少? 包括房价、税费、装修费等。
明确需求后,才能有的放矢地去选房。
2. 调查市场行情
- 了解房价走势:通过房产网站、中介或朋友推荐,掌握目标区域的房价水平及涨跌趋势。
- 关注政策动态:比如限购、限贷、首付比例等政策变化都会影响你的购房计划。
- 比较不同楼盘:同一区域内不同楼盘的价格、品质、开发商背景等都有差异,货比三家才能买到性价比高的房子。
3. 准备好首付和相关费用
- 首付:一般为房价的20%-50%,具体比例因城市和政策而异。
- 税费:契税、维修基金、交易手续费等都需要提前准备。
- 装修预算:如果买的是毛坯房,装修费用也需要纳入考虑。
二、选房阶段:细节决定成败
1. 地段是关键
- 交通便利:尽量选择地铁沿线或公交站点附近的小区。
- 生活配套完善:周边是否有超市、医院、学校、银行等设施。
- 未来发展潜力:比如是否靠近 CBD、新区或规划中的大型商业综合体。
2. 房屋本身的质量
- 户型设计:采光、通风、动静分区是否合理。
- 房屋结构:检查是否存在裂缝、渗水等问题。
- 隐蔽工程:如水电管道、墙体保温等,可以通过物业或邻居了解。
3. 开发商和物业公司
- 开发商资质:选择信誉良好的品牌开发商,避免买到烂尾楼。
- 物业公司口碑:好的物业公司能保障小区的安全和环境整洁。
三、看房阶段:眼见为实
1. 实地考察
- 看样板间:注意样板间的装修是否过度美化,与实际交付差距有多大。
- 看实体楼:观察建筑外观、施工进度、周边环境等。
- 看小区环境:绿化率、停车位数量、公共设施是否齐全。
2. 询问业主
- 如果是二手房,可以向邻居了解小区的管理情况、是否存在安全隐患等。
- 如果是新房,可以向已入住的业主了解交房质量和物业服务。
四、签约阶段:合同条款要仔细
1. 确认合同内容
- 房屋面积:建筑面积、套内面积是否与宣传一致。
- 交房时间:明确交房日期及违约责任。
- 装修标准:如果是精装房,要明确装修材料的品牌和档次。
- 附加条款:比如车位、储物间等是否包含在房价中。
2. 注意隐藏费用
- 物业费:了解物业费的收费标准及包含的服务内容。
- 维修基金:这笔费用通常由业主缴纳,用于房屋共用部位的维修。
五、收房阶段:验房是关键
1. 验房注意事项
- 检查房屋质量:墙面、地面、天花板是否有裂缝或脱落。
- 检查门窗:开关是否顺畅,密封性是否良好。
- 检查水电设施:水龙头、马桶、电路开关是否正常。
- 检查配套设施:电梯、消防设施、燃气管道等是否齐全。
2. 索要相关证件
- 房产证:确认产权归属是否清晰。
- 竣工验收报告:确保房屋符合国家标准。
六、入住阶段:后续事项要做好
1. 办理落户和过户手续
- 及时办理房产过户手续,确保自己的权益。
- 如果需要落户,提前咨询当地派出所的落户政策。
2. 装修注意事项
- 选择正规装修公司:避免低价陷阱。
- 签订装修合同:明确工期、材料、付款方式等细节。
3. 注意邻里关系
- 入住后主动与邻居打招呼,建立良好的邻里关系。
- 遵守小区公约,避免噪音扰民。
结语
买房是一项复杂的系统工程,从选房到入住的每一个环节都可能隐藏着“坑”。但只要做好充分的准备工作,保持清醒的头脑,就能避开这些雷区,买到心如意的房子称。希望这篇文章能为你提供一些实用的参考,让你的买房之路更加顺利!
感谢您阅读本文!如果您喜欢我的内容,请关注我的账号,以便获取更多精彩文章。同时,也欢迎点赞、收藏、评论
Buying a house is a complex systematic project, and every step from selecting a property to moving in may hide "pitfalls." However, with thorough preparation and a clear mind, you can avoid these minefields and find your ideal home. We hope this article provides practical guidance to make your home-buying journey smoother!
Thank you for reading! If you enjoyed the content, please follow my account for more great articles. Likes, saves, and comments are also welcome!
Wang Yun Sales Office Hotline: 400_998_7894☎️☎️✅✅✅
【Sales Office Appointment Hotline】 (One-on-one warm service)
For property viewings, please call to confirm the time with a sales representative. Only pre-registered clients are eligible for developer-exclusive discounts and new home appointment rewards!