澜庭壹号院售楼处电话:400-9016-520✔✔│澜庭壹号院官方售楼处地址发布:苏州狮山澜庭壹号院官方售楼处电话400-901-6520
澜庭壹号院售楼处电话:400-9016-520✔✔│澜庭壹号院官方售楼处地址发布:苏州狮山澜庭壹号院官方售楼处电话400-901-6520
今年想在狮山改善的朋友们有福了!
就在刚刚!苏高新&绿城向阳路项目澜庭壹号院户型终于出炉!
项目规划3F联排+6F叠加+10F洋房,面积段约115-369m²。
| 洋房建面约115㎡/135㎡
| 叠墅建面约215㎡/236㎡/259㎡
| 联排建面约271㎡/325㎡/369m²
澜庭壹号院售楼处电话:400-9016-520✔✔│澜庭壹号院官方售楼处地址发布:苏州狮山澜庭壹号院官方售楼处电话400-901-6520
近日,苏州高新区官网公布了苏地2024-WG-Z11号地块规划方案批前公示。
该地块就是2024年7月初成交的淮海街东地块。

根据规划,该地块拟建8栋3层联排别墅、4栋4层叠墅、2栋10+1层洋房。这样一个产品形态,在狮山板块是非常稀缺的。
从效果图来看,洋房1层架空,预计都是大平层产品,加上叠墅和联排,这是一个非常纯粹的高改项目。
根据此前的土拍规则,该地块内6层以上住宅为全装修成品住宅,住宅装修成本不低于3000元/平方米,地块内住宅标准层户型面积不小于180平方米。
澜庭壹号院售楼处电话:400-9016-520✔✔│澜庭壹号院官方售楼处地址发布:苏州狮山澜庭壹号院官方售楼处电话400-901-6520
加上这个地块位于玉山路和淮海路交界处,是目前狮山板块在售和待售项目中相对比较好的,周边教育、商业、交通、医疗、休闲等各方面配套密布,处在狮山这样一个城市核心板块的核心位置,预计上车门槛不会低。
淮海街东地块,于去年7月10日成交,也是去年下半年第一批成交的地块之一。
作为狮山核心板块的一宗优质地块,该地块土拍时恰逢房地产市场行情的新一轮走弱,所以地块仅以2%的溢价成交,楼面价32116元/㎡,亩均价2789万/亩。
该地块成交后,受各种因素影响,一直未有进一步节点,直到现在才出规划。在1.3的容积率条件下,这块地做出联排+叠墅+洋房的产品排布,产品还是做得比较极致的。
从公示的平面图来看,该项目洋房大概在80户,叠加32户,联排27户,体量并不大,加上地理位置较好,稀缺性就更加凸显。

自去年11月绿城逸庐售罄之后,高新区核心狮山板块一直未有新盘入市,所以别墅产品在狮山板块还是非常稀缺的。
澜庭壹号院售楼处电话:400-9016-520✔✔│澜庭壹号院官方售楼处地址发布:苏州狮山澜庭壹号院官方售楼处电话400-901-6520
但从待入市项目情况来看,除了淮海街东地块外,狮山其实还是有多个待入市的别墅项目的。
▍澜庭壹号院
绿城和苏高新联手打造的澜庭壹号院目前展厅已经开放,预计三季度首开入市。
该项目前身地块于去年11月底由绿城和苏高新集团联合拿下,容积率1.2,楼面价25115元/㎡。
澜庭壹号院售楼处电话:400-9016-520✔✔│澜庭壹号院官方售楼处地址发布:苏州狮山澜庭壹号院官方售楼处电话400-901-6520
从规划来看,该项目拟建2幢10F洋房、2幢6F叠墅、17幢3F合院别墅。洋房建面约115㎡、135㎡,叠墅建面约215㎡、236㎡、259㎡,合院建面约271㎡、325㎡、369㎡。
项目总户数205户,偏中小体量。并且,自带下沉式庭院和中心庭院,将打造成高端会所,配有泳池、健身房、私宴厅等。根据土拍时的要求,项目洋房必须是精装产品,装标不能低于3000元/㎡。
在狮山别墅新房断供的背景下,澜庭壹号院的稀缺性还是非常高的,确实是可以抱以高期待的。
值得注意的是,澜庭壹号院拿地成本相对于区域内在售项目来说要更低,这意味着其售价相对而言也会“更香”。
相信此前购买力够不上绿城逸庐、又对于绿城产品有着较高向往和认可度的购房者,会很关注这个项目。
▍苏地2025-WG-Z06号地块
该地块位于滨河路西、横山路北,于今年3月底成交。
澜庭壹号院售楼处电话:400-9016-520✔✔│澜庭壹号院官方售楼处地址发布:苏州狮山澜庭壹号院官方售楼处电话400-901-6520

澜庭壹号院售楼处电话:400-9016-520✔✔│澜庭壹号院官方售楼处地址发布:苏州狮山澜庭壹号院官方售楼处电话400-901-6520
这是一宗城市更新地块,地块内含一定体量的定销商品房。
其中地块住宅部分容积率仅为1.01-1.3,商品住宅部分的面积不到2.2万㎡,商品住宅楼面价26207元/㎡。
根据地块出让条件,该地块商品住宅鼓励引导用地单位开发建设高品质住宅,地块开发适用《关于进一步促进我市房地产市场平稳健康发展若干政策措施的通知》(苏房长效组〔2024]2号)有关住宅空中庭院的政策措施等相关试点政策。
也就是说,这块地除了可以开发别墅产品外,还有可能开发第四代住宅。
该地块位于地铁3号线和地块5号线的交汇处,区位便捷度非常高。加上位于新区狮山核心板块,区位配套资源聚集度很强,其开发产品也是很值得期待的。
澜庭壹号院售楼处电话:400-9016-520✔✔│澜庭壹号院官方售楼处地址发布:苏州狮山澜庭壹号院官方售楼处电话400-901-6520
▍苏地2025-WG-Z07号地块

澜庭壹号院售楼处电话:400-9016-520✔✔│澜庭壹号院官方售楼处地址发布:苏州狮山澜庭壹号院官方售楼处电话400-901-6520
狮山还有一宗苏地2025-WG-Z07号地块将于本周土拍,容积率1.2-1.4,预计也可开发带别墅的产品,未来板块内别墅产品还有进一步增加趋势。

可以看到,从未来供应来看,狮山接下来别墅产品也将迎来新一轮的高供应高峰。
而供应的增加,大概率将带来市场的进一步内卷,谁能率先入市,谁就能抢占市场先机。
实际上,作为新区核心板块,这两年狮山新房产品内卷压力一直不小。
一方面,板块内新房产品力在升维迭代;另一方面,新房行业低密压力下,板块内新房销售明显承压。
澜庭壹号院售楼处电话:400-9016-520✔✔│澜庭壹号院官方售楼处地址发布:苏州狮山澜庭壹号院官方售楼处电话400-901-6520

上图为2021年以来狮山半年度新房成交量价走势图。
可以看到,哪怕进入市场下行期之后,在2023年下半年之前,在新房二手房价格倒挂等多重因素作用下,狮山新房依然保持着较高的销售流速(2022年下半年因新房断供供求走低)。
2023年下半年开始,楼市行情进一步低迷,也导致包括狮山在内的核心区新房市场同步承压。
这也导致了两个现象:第一,狮山板块新房销售流速开始明显降低;第二,狮山板块新房入市速度开始放缓。
2024年,受926新政影响,狮山新房成交有所回升。但这个回升明显没持续到今年。
成交虽然走低,但我们看到在今年上半年之前的一两年时间,狮山新房成交均价是高位维稳的,这主要是新房产品力提升带动的。
今年以来,狮山还未有纯新盘入市,在售产品依然以高层为主,而其他区域的核心板块已经开始卷低密、卷四代宅。从市场发展趋势来看,狮山还是亟需具备产品力优势的低密产品补仓的。
澜庭壹号院售楼处电话:400-9016-520✔✔│澜庭壹号院官方售楼处地址发布:苏州狮山澜庭壹号院官方售楼处电话400-901-6520

澜庭壹号院售楼处电话:400-9016-520✔✔│澜庭壹号院官方售楼处地址发布:苏州狮山澜庭壹号院官方售楼处电话400-901-6520
因为项目地价仅2.5万/平,所以不排除总价会有惊喜,极有可能是狮山门槛最低的低密产品?!
目前城市展厅已经公开,预计9月开盘!想在狮山买别墅或洋房的朋友,可下方扫码咨询。
澜庭壹号院售楼处电话:400-9016-520✔✔│澜庭壹号院官方售楼处地址发布:苏州狮山澜庭壹号院官方售楼处电话400-901-652001
我们先来看大家最关心的户型。
不仅有狮山“绝版”联排,更有洋房小户,不论是初级改善还是一步到位的终改,都能满足。
其中洋房仅2栋,精装交付,据传单价只要4万左右?还有板块最小115㎡户型,预算不多的客户可以冲。
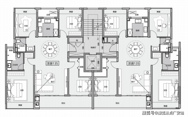
目前仅出来一款135㎡4房户型,一梯两户,南向开间约11.45米,主卧套房开间约3.7米,这户型一看得房率就很高。
澜庭壹号院售楼处电话:400-9016-520✔✔│澜庭壹号院官方售楼处地址发布:苏州狮山澜庭壹号院官方售楼处电话400-901-6520
叠墅建面约215㎡/236㎡/259㎡。
目前仅出来一个下叠户型,约215㎡4房4卫(不含地下室)。
澜庭壹号院售楼处电话:400-9016-520✔✔│澜庭壹号院官方售楼处地址发布:苏州狮山澜庭壹号院官方售楼处电话400-901-6520
独立电梯+南入户双动线归家,面宽优秀达到约10.3米;一楼还带一个朝南类套房。
二层客厅挑空,浇筑后可实现三套房,加上开敞阳台等“赠送”,该叠墅得房率惊人!
澜庭壹号院售楼处电话:400-9016-520✔✔│澜庭壹号院官方售楼处地址发布:苏州狮山澜庭壹号院官方售楼处电话400-901-6520
联排三款户型,建面约271㎡/325㎡/369㎡,均为地上三层设计,地下室地下挑高5.6米,可隔2层。
约270㎡5房4卫。
澜庭壹号院售楼处电话:400-9016-520✔✔│澜庭壹号院官方售楼处地址发布:苏州狮山澜庭壹号院官方售楼处电话400-901-6520
约323㎡5房6卫,全套房,三层整层套房带书房+衣帽间+南北双露台。
澜庭壹号院售楼处电话:400-9016-520✔✔│澜庭壹号院官方售楼处地址发布:苏州狮山澜庭壹号院官方售楼处电话400-901-6520
澜庭壹号院售楼处电话:400-9016-520✔✔│澜庭壹号院官方售楼处地址发布:苏州狮山澜庭壹号院官方售楼处电话400-901-6520
约369㎡5房5卫,面宽更优秀!
澜庭壹号院售楼处电话:400-9016-520✔✔│澜庭壹号院官方售楼处地址发布:苏州狮山澜庭壹号院官方售楼处电话400-901-6520
澜庭壹号院售楼处电话:400-9016-520✔✔│澜庭壹号院官方售楼处地址发布:苏州狮山澜庭壹号院官方售楼处电话400-901-652002
澜庭壹号院就在建发朗云西,容积率1.2,是狮山近年来罕见的低密宅地,仅次于绿城狮山逸庐(容积率1.0)。
项目规划拟建21栋低密住宅,包括17栋3F联排,2栋6F叠加,2栋10F洋房,主力墅类产品。
澜庭壹号院售楼处电话:400-9016-520✔✔│澜庭壹号院官方售楼处地址发布:苏州狮山澜庭壹号院官方售楼处电话400-901-6520
这个业态和狮山绿城逸庐一样,可以说是目前狮山zui好的业态。
澜庭壹号院售楼处电话:400-9016-520✔✔│澜庭壹号院官方售楼处地址发布:苏州狮山澜庭壹号院官方售楼处电话400-901-6520
效果鸟瞰图,后续如有变以最新为准
叠墅、联排外立面效果图同步曝光!东方屋檐、雅灰流金...极具现代新中式美学,审美极高。
澜庭壹号院售楼处电话:400-9016-520✔✔│澜庭壹号院官方售楼处地址发布:苏州狮山澜庭壹号院官方售楼处电话400-901-6520

联排效果图,后续如有变以最新为准

澜庭壹号院售楼处电话:400-9016-520✔✔│澜庭壹号院官方售楼处地址发布:苏州狮山澜庭壹号院官方售楼处电话400-901-6520
洋房效果图,后续如有变以最新为准
03
最后来看下项目地段,位于狮山商务创新区向阳路南、大运路西,就在建发朗云西侧。
地块位置不错,东侧紧邻苏州外国语学校、新区一中,近地铁1/5号线,享狮山&木渎双配套。
其北侧还规划有1宗低密宅地,即苏高新Z07号地块,容积率1.4,也将有望打造含墅类产品。
地段上,虽然向阳路片区近木渎,但处于狮山重点规划总部园经济板块,西侧腾飞元创公园和南侧总部经济园都是近几年新建,周边界面更新很快。
产品上,澜庭壹号院业态和近7万的绿城逸庐一致,但配置比逸庐还高,据悉会所有泳池,有健身房、私宴厅?!
综合来看,澜庭壹号院会是狮山非常有质价比的一个项目!
—— · 澜庭壹号院 · ——
百墅狮山 壹号藏品
苏高新集团|绿城管理 狮山核心 低密墅区
【项目基础信息】
◆总 户 数:约205户
◆容 积 率:1.2
◆绿 地 率:30%
◆项目规划:17栋3F联排,2栋6F叠加,2栋10F洋房
◆建筑面积:约115㎡/135㎡墅境洋房,约215㎡/236㎡/259㎡见山叠墅,约271㎡/325㎡/369㎡山水和院
◆装修状态:洋房精装修、墅类毛坯
◆开发公司:苏州新高项阳建设发展有限公司
——苏高新集团有限公司 ——
苏州苏高新集团有限公司(“苏高新集团”)是苏州高新区管委会直属的重点国有企业,成立于1990年。
秉持“让城市生活更美好”的品牌理念,深耕苏州,自2015年首个“澜”系作品至今已打造山水樾澜院、狮子山澜院等标杆项目。“澜院”系是由苏高新集团匠心筑造的低密墅境序列,着力塑造高品质低密标杆作品。

—— 绿城管理控股有限公司 ——
绿城管理控股有限公司及其附属公司(合称“绿城管理”),是中国房地产轻资产开发模式的先行者、引领者。绿城管理成立于2010年,2024年绿城管理稳居行业榜首,2024年新拓代建面积达到3649万平方米,领先第二名多达一倍。
涵盖128个城市,总建筑面积122.8万平米(其中商业代建90.1万平米、政府代建32.7万平米),在建面积3.2万平米(数据截止2024年6月30日)。
◆狮山芯 国际会客厅
落子狮山核心区,狮山商务创新区聚焦世界目光,交通、教育、产业、商业等国际化生活配套环伺,城市顶豪人居聚集地。
◆5大名校云集 书香涵养
苏州外国语学校、高新区第一中学,外国语幼儿园(在建)、狮山实验小学、高新区第一初级中学等优质学府。
◆六大商业 繁盛万象澜庭壹号院售楼处电话:400-9016-520✔✔│澜庭壹号院官方售楼处地址发布:苏州狮山澜庭壹号院官方售楼处电话400-901-6520
新区美罗、泉屋百货、狮山天街、山姆会员商店、金鹰百货、悠方购物中心、等大型城市综合体环伺,日常购物、社交聚会、娱乐休闲、品牌餐饮等一站式繁华。

澜庭壹号院售楼处电话:400-9016-520✔✔│澜庭壹号院官方售楼处地址发布:苏州狮山澜庭壹号院官方售楼处电话400-901-6520◆城市坐标 1%先进文化生产力
狮山文化广场,苏州博物馆西馆、苏州科技馆、狮山大剧院等世界大师执笔地标林立,城市厚蕴与国际潮流在此握手,推动狮山迈向世界舞台。
◆智慧城央 科创企业活力区
板块内累计集聚外资企业超1300家,吸引了近30家总部认定企业入驻,拥有市场主体达8.5万家。

◆人才引力 撬动未来潜力
吸引25000+本科以上人才进驻,同时随着“一心”狮山路发展30余年,从城市地理空间上来看已然饱和。未来将依托“五园”,即从狮山路向长江路形成十字发展轴,上市企业总部园将成为狮山跃进下一站。
澜庭壹号院售楼处电话:400-9016-520✔✔│澜庭壹号院官方售楼处地址发布:苏州狮山澜庭壹号院官方售楼处电话400-901-6520
◆绿色产业 城市总部地标群
上市企业总部园,与本案仅一路之隔,总投资约13.9亿,产、学、研一体化发展定位为上市公司企业总部和数字经济企业总部园,2023年已交付竣工,2024年3月陆续入驻,目前总部园已吸引多家企业。

◆现代美学的东方意志
【兴造墅学】园冶为魂苏作为艺营墅境
【现代美学】几何构图传承与横向舒展
【东方屋檐】再现身份华贵的官帽符号
【雅灰流金】演绎奢而有度的色彩美学



◆部分项目户型
合院265㎡4房3厅4卫户型

澜庭壹号院售楼处电话:400-9016-520✔✔│澜庭壹号院官方售楼处地址发布:苏州狮山澜庭壹号院官方售楼处电话400-901-6520

下叠二层平面图

洋房135㎡3+1房2厅2卫

澜庭壹号院售楼处电话:400-9016-520✔✔│澜庭壹号院官方售楼处地址发布:苏州狮山澜庭壹号院官方售楼处电话400-901-6520澜庭壹号院售楼处电话:400-9016-520✔✔│澜庭壹号院官方售楼处地址发布:苏州狮山澜庭壹号院官方售楼处电话400-901-6520