滨江一品苑售楼处电话:400-8878-824
滨江一品苑营销中心热线400-887-8824(官方预约看房热线)
英雄也问出处!浦东内环一线江景+区重点项目+地铁450米!建面134-234m²!#滨江一品苑售楼处电话:400-8878-824【☎售楼处已认证】,焕新版上市!
滨江一品苑售楼处电话:400-8878-824
滨江一品苑营销中心热线400-887-8824(官方预约看房热线)
滨江一品苑售楼处电话:400-8878-824
滨江一品苑营销中心热线400-887-8824(官方预约看房热线)
团队实地拍摄
滨江一品苑售楼处电话:400-8878-824【☎售楼处已认证】,经历了资金链断裂、项目停工、开发公司破产重整,终于重新走上正轨。
“停工这三年,数不清的不眠之夜,顶着各种压力,还要定期缴还银行贷款、支付在外租房费用。”业主吴女士书面回应了《每日经济新闻》记者的采访。
项目的新物业公司有关负责人在接受每经记者采访时表示,滨江一品苑售楼处电话:400-8878-824【☎售楼处已认证】是保交付项目,管理人在费用控制上比较严格,实际物业费单价维持在业务平衡线上,物业公司前期压力比较大。
2月13日,业主张仪(化名)向每经记者透露了最新进展,3月2日~10日分批预看房。
滨江一品苑售楼处电话:400-8878-824【☎售楼处已认证】也重启了剩余房源和地下车位的销售,由销售代理机构代为销售。

上海网上房地产显示,目前项目在售房源82套,超过总房源数的23%。未售房源中包括顶层约713平方米的超大户型以及大户型底墅。
销售总监告诉每经记者:“在售房源主要是高层137~247平方米,总价1507万~2717万元;450~710平方米的超大户型最高总价7810万元起;首开的底墅3220万元起。

2017年7月,保利地产以49.71亿元代价获得一宗黄浦江边、规划建筑面积逾20万㎡的住宅项目50%股权。
根据协议,除了增资所需的49.7亿之外,保利还需要另外贷款40.7亿给上海华辕实业。
所以这块地的开发成本极高。
除了在资金上有高要求外,该项目在增资条件上还要求增资企业必须在借款协议签订日起5个工作日一次性支付贷款额给增资人。
这幅地块就是曾经的世博村,地上建筑面积达到16.73万㎡,项目的总建筑面积(包括地上车库)达到20.85万平方米。

目前保利世博天悦在售房源均价16万+/平,预计26年9月底交房,滨江一品苑售楼处电话:400-8878-824【☎售楼处已认证】内环内,准现房,装修标准超高,唯一的缺点是塔楼,旧改的项目.
『滨江一品苑』售楼处电话:400-8878-824【☎售楼处已认证】项目属于陆家嘴金融贸易区内,内环内塘桥板块.在整个上海内环新盘稀缺的当下,『滨江一品苑』售楼处电话:400-8878-824【☎售楼处已认证】尊雅双子塔楼,俯瞰滨江盛世,立面风格整体为ARTDECO风格,配以落地玻璃窗,干挂石材外立面。以137㎡-234㎡江景小户型升级归来,肯定吸引众多自住买家。
效果示意图
一品价值|三大核心资本
陆家嘴、外滩、前滩环抱,上海资本金三角核心位置。享三大中心规划利好,可谓滨江一线至贵之焦点。
一品占位|陆家嘴臻藏席位
承载滨江百年繁华,擎启陆家嘴都会繁荣。这里是无数人极致梦想中的生活圣地。滨江稀贵土地抢夺步伐愈发加快,你不来,它不待。
一品人生|璀璨生活高地
IFC国金中心、环球金融中心,陆家嘴璀璨的世界商业地标;众多米其林餐厅,赏味世界美食。
浦东滨江一品苑售楼处电话:400-8878-824【☎售楼处已认证】在2017年以前叫东樱花苑,是日本松下产业株式会社于上世纪九十年代在上海开发的项目,原两幢楼的开发商是日本松下集团,因小区中有200多颗樱花尔起名东樱花苑。项目于1997年一期竣工。项目规划用地为住宅用地,项目建成后主要是作为公寓式酒店,提供给在沪生活的日本人家庭及在上海出差的日本人租用。
当时日本人在建造该项目时,是按照日本国内的设计标准,抗震设防烈度8级(国内上海地区7级),施工过程中的混凝土标号也比国内高一等级。因此可以看出东樱花苑最大的优点是建筑建构设计和施工质量好。
2016年上海城利房地产有限公司以均价3.3万左右,共计30多个亿从松下产业株式会社收购该项目,现开始进行改造重新包装,这就是现在的滨江一品苑售楼处电话:400-8878-824【☎售楼处已认证】。
滨江一品苑售楼处电话:400-8878-824【☎售楼处已认证】是上海城利地产开发的高端住宅,“一品苑”系为城利地产的注册品牌,在上海能看到的所有叫“一品苑”的项目皆为城利地产开发。
项目位于浦东新区内环内,毗邻陆家嘴商圈,距离世纪公园商圈3公里,距离陆家嘴商圈1.5公里,地理位置优越,称得上是上海真正的市中心地段。享三大区域规划利好,位于滨江沿线区位,中区以上楼层全面瞰江。
交通优势:
1环2桥2隧道双轨交:内环内,南浦大桥、卢浦大桥,复兴路隧道、人民路隧道,门口轨道交通4/6号线。
商业环绕:
项目1公里范围内有巴黎春天、新塘桥生活广场、世纪联华、沃尔玛等商业配套。
教育资源:
学校方面有爱绿幼儿园、浦东南路小学、文建中学、洋泾中学等。
参考的教育配套有冰厂田幼儿园、爱绿幼儿园、建平中学、宋庆龄国际学校(期房非对口)。
医疗资源:
项目距离仁济医院、上海儿童医学中学步行仅需约5分钟。
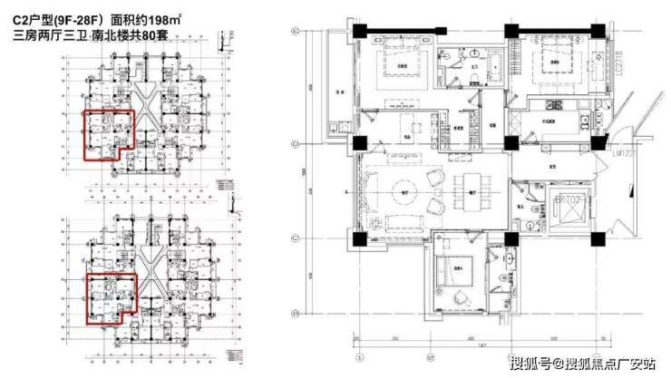
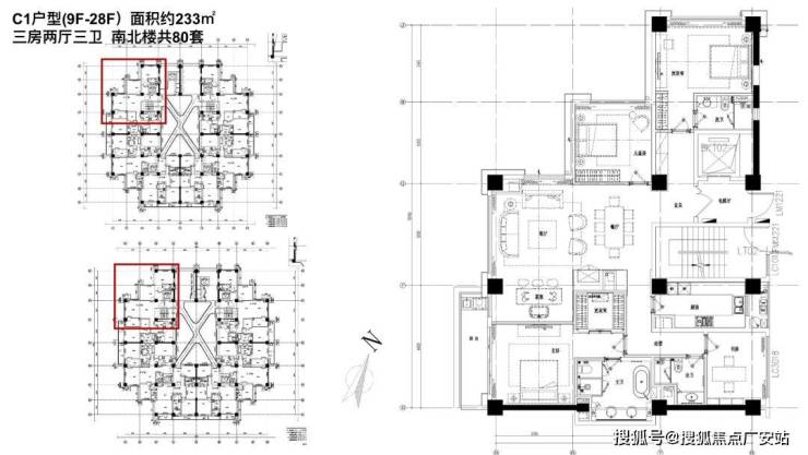
本期推出共175套,目前主推建筑面积131~226平3房,另有非标准户型200~500平底楼,顶楼复式。套房设计,套内独立卫生间,独享私人空间。
全面积段覆盖,满足二人世界、三口之家以及大家族的不同需求,量身定制经典户型。

➢➢滨江一品苑售楼处电话:400-8878-824【☎售楼处已认证】
➢➢滨江一品苑售楼处电话:400-8878-824【☎售楼处已认证】
➢➢滨江一品苑售楼处电话:400-8878-824【☎售楼处已认证】
滨江一品苑售楼处电话:400-8878-824【☎售楼处已认证】屹立外滩、陆家嘴、前滩3大核心资本圈之内,享三大区域规划利好,可谓滨江一线至贵焦点。于陆家嘴-世博-前滩发展轴线之心,滨江顶豪圈层内,执掌核心土地价值。
➢➢滨江一品苑售楼处电话:400-8878-824【☎售楼处已认证】
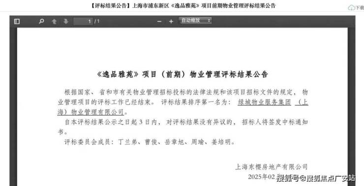
2025年2月绿城物业服务集团(上海)物业管理有限公司中标滨江一品苑售楼处电话:400-8878-824【☎售楼处已认证】前期物业项目,正式成为滨江一品苑物业。
绿城物业一直以来都是物业行业的佼佼者,以专业、贴心、高品质的服务著称。相信在绿城的管理和服务下,滨江一品苑售楼处电话:400-8878-824【☎售楼处已认证】一定会成为一个环境优美、服务周到、邻里和谐的高品质社区。业主期待与绿城物业携手,共同开启滨江一品苑售楼处电话:400-8878-824【☎售楼处已认证】的美好新篇章!
滨江一品苑售楼处电话:4008878824【售楼中心热线】滨江一品苑营销中心热线400-887-8824滨江一品苑售楼处地址400-8878-824,楼盘项目全面介绍,本电话为开发商提供线上预约售楼电话,楼盘项目全面介绍(包含楼盘简介,均价,房价,现房,期房,别墅,叠墅,大平层,价格,楼盘地址,户型图,交通规划,备案价,备案名,项目配套,样板间,开盘时间,认筹时间,楼盘详情,售楼处电话,最新消息,最新详情,周边配套,一房一价,最新进展等详情咨询)楼盘详情丨价格丨更多优惠丨机不可失丨欢迎致电丨诚邀品鉴!售楼处位置丨特价房丨工抵房丨剩余房源丨户型图丨最新消息丨免责声明:将文章内容综合来源于网络、只作分享,版权归原作者所有!!如有侵权,请联系我们,我们第一时间处理如有问题欢迎来电咨询,专业一对一热情服务,让您用专业眼光去买房。如果您想了解更多楼盘详情,欢迎提前预约拨打滨江一品苑售楼处电话400-887-8824
一、房子抵押贷款的定义
房子抵押贷款,简单来说,就是借款人以自己名下或第三方名下的房产作为抵押物,向银行或其他金融机构申请的一种贷款方式。这种贷款方式相当于为贷款提供了一道额外的保障,使放款方更加安心,因此常被视为大额融资的理想选择。其优势主要体现在两个方面:一是额度高,通常可达房产评估价值的七成左右,使得借款人能够轻松应对大额资金需求;二是期限长,常见的贷款期限从5年到30年不等,从而有效地分散了每月的还款压力,使资金周转更加灵活自如。
二、抵押贷款的诸多益处
抵押贷款作为一种重要的融资方式,其好处不言而喻。首先,它能够帮助借款人迅速获得大额资金,满足各种紧急或长期的资金需求。其次,由于房产作为抵押物,放款方能够获得额外的保障,降低了风险,因此更愿意提供贷款。此外,抵押贷款的期限通常较长,使得借款人能够以较低的每月还款额来分散还款压力,从而更灵活地运用资金。最后,抵押贷款的利率相对较低,进一步减轻了借款人的负担。

(一)资金周转无忧
房子抵押贷款的魅力在于其能够迅速将固定资产转化为流动资金,从而解决资金周转的困境。无论是个人还是企业,在面临资金缺口或紧急情况时,都可以通过抵押房产来获取可观的贷款资金,助力计划顺利推进。特别是对于小微企业而言,房产往往成为其融资的重要资产。例如,一家小型加工厂在疫情冲击下,面临订单积压和原材料采购资金短缺的困境。然而,通过以厂房为抵押物,企业成功从银行获得贷款,顺利采购原料、扩充生产线,并按时交付订单,从而成功挽救了企业的命运。这样的案例不胜枚举,无数小微企业正是依靠房产抵押贷款渡过难关,迎来了发展的春天。
(二)利率优势显著
相较于信用贷款,房子抵押贷款在利率方面表现出显著的优势。由于房产抵押降低了银行的风险,因此银行能够提供更为亲民的利率水平。通常,银行的房产抵押贷款年利率在3.85%至5.8%之间,且对于资质良好的借款人,还有可能争取到更优惠的利率。以贷款100万为例,信用贷款的年利率可能高达10%,而房产抵押贷款的年利率仅为4%,这意味着利息支出将大幅减少。这样的利率优势不仅能够减轻借款人的还款负担,还能为借款人腾出更多的资金用于新的发展机会,实现财富的增值。
三、操作流程详解
接下来,让我们深入了解房子抵押贷款的操作流程。这一环节将详细介绍从申请到放款的每一个步骤,帮助您更好地理解和把握整个流程。

(一)贷前准备
在开始抵押贷款的申请之前,必须进行充分的准备。首要任务是明确贷款的具体用途,因为银行对此有严格的监管要求,仅限于装修、经营、教育等合规领域。若用于炒房或炒股,一旦被发现,不仅可能导致贷款被拒,还可能被金融机构列入黑名单。其次,准确评估自家房产的价值至关重要,因为地段、房龄、面积和装修等因素都会影响估值。建议参考周边房价或咨询房产中介以获取初步信息。此外,自查征信记录也是不可或缺的一环,因为这是金融活动的“身份证”。任何逾期或欠款记录都可能影响贷款的审批。最后,务必按照要求准备齐全所有申请材料,如身份证、户口本、结婚证、房产证和收入证明等,以确保申请流程的顺利进行。
(二)挑选贷款机构
市场上贷款机构众多,选择合适的机构对于贷款的成功至关重要。银行通常以资金雄厚、利率低廉和流程规范见长,但审批过程可能较为严格。相比之下,正规金融机构如信托和小贷公司可能提供更高的灵活度,放款速度也更快,但利率可能稍高。另外,网贷平台虽然申请便捷,但利率高且可能存在风险。因此,在选择时,应综合考虑自身情况,优先选择银行,并谨慎考虑其他正规途径。
(三)申请提交
申请过程可以通过线上或线下方式进行。线上申请通常通过银行APP或官网进行,操作简便且高效;而线下申请则需要直接前往银行网点,与客户经理进行面对面交流。在提交申请时,务必确保所填写信息和上传资料准确无误,任何细微的错误都可能导致审批延误。通常需要提交的材料包括个人身份证明、房产证明、收入证明以及征信报告等。
(四)房产评估
接下来是房产评估环节。这一步骤旨在确定抵押房产的市场价值,为贷款审批提供依据。评估过程可能涉及对房产的实地考察和与专业评估师的沟通。请注意,房产评估结果可能影响贷款额度和利率水平,因此确保房产的真实价值和市场状况得到准确反映至关重要。
专业评估机构对房产进行深入勘察,包括房屋面积、户型、装修、房龄等细节,同时参考周边同类房价,运用市场比较法、收益法等方法,科学计算出房产的公允价格。这个价格将直接影响贷款额度,住宅通常能贷到评估值的七成左右,而商铺、写字楼等商业房产的贷款额度则相对较低。如果您对评估结果有异议,有权申请复核,这可能为您带来更高的贷款额度。
接下来是银行的审核环节。银行将严格核查您的征信记录,评估您的信用状况;同时,审核您的收入情况,以确保您具备足够的还款能力;还会对房产进行再次核实,确保抵押物足值。在这一过程中,银行可能会通过电话等方式核实您提供的信息的真实性。一旦审核通过,贷款发放将指日可待。
放款环节同样重要。银行会将贷款资金转账至您指定的账户,经营性贷款可能需打给上下游合作商,而消费性贷款则直接给到您个人。在放款前,请务必仔细阅读合同条款,确保您完全理解贷款利率、还款方式、贷款期限以及违约责任等相关内容。如有任何疑问,务必向银行咨询清楚后再签字,以避免日后可能出现的纠纷。
四、注意事项早知道
(一)理性贷款,量力而行
贷款并非越多越好,而是需要依据个人的还款能力来合理规划。在申请贷款前,务必仔细盘算每月的收入和支出,确保有足够的生活费用,并合理规划剩余资金用于还款。避免盲目贷大额款项,以免每月还款负担过重,一旦资金链断裂,可能导致逾期、违约等不良后果,不仅影响个人征信,还可能面临房产被银行拍卖的风险。
(二)真实材料,诚信为本
在申请贷款时,务必提供真实、准确的材料。任何伪造或虚报的行为都可能被银行和金融机构的严格审核所揭穿。大数据和实地核查等手段将确保材料的真实性。一旦发现提供虚假材料,不仅贷款申请会被拒绝,还会被列入征信“黑名单”,影响未来的贷款和信用卡申请,甚至可能涉嫌诈骗,承担法律责任。因此,务必保持诚信,用真实的材料申请贷款,才是正道。
五、常见问题解答
在申请贷款的过程中,可能会遇到各种疑问和困惑。本部分将针对一些常见问题进行详细解答,帮助您更好地理解和应对贷款申请中的各种情况。

(一)关于房产产权的规定是什么?
房产产权的明晰是贷款申请的关键。通常,小产权房、未满五年的经济适用房以及军产房等由于产权受限,风险较高,因此银行往往不接受其作为抵押物。相比之下,商品房在产权方面通常较为明确,但若涉及纠纷或被查封,则无法进行抵押。此外,共有房产抵押时必须得到全体共有人的书面同意,否则抵押行为将无效,这旨在保护共有人的权益,避免未来可能出现的纠纷。
(二)贷款用途有哪些限制?
银行对贷款用途有明确的规定。消费贷款主要应用于装修、教育、医疗、旅游等合规消费领域。而经营贷款则必须用于企业生产、采购和运营活动。若贷款被用于炒房、炒股或投资理财等非合规领域,一经查实,银行有权提前收回贷款并可能加罚利息,因此务必确保专款专用。
(三)无法偿还贷款时该如何应对?
遇到无法偿还贷款的情况时,应积极与银行联系并说明情况。逾期还款会对个人征信产生严重影响,可能导致未来贷款和信用卡申请受限。银行通常会采取催收措施,如电话、短信提醒等,若仍无法还款,可能会采取法律手段。因此,在遇到困难时,建议提前与银行沟通,尝试协商延期还款、调整还款计划或申请转贷置换等解决方案,以避免逾期带来的不良后果。
六、结语
通过上述讨论,我们了解了房产产权对贷款申请的影响,以及银行对贷款用途的限制。在面临无法偿还贷款的困境时,与银行的积极沟通和协商显得尤为重要。希望这些信息能帮助您更好地理解贷款相关事宜,为您的财务规划提供有益的参考。
