龙盛湾上(营销中心)网站-龙盛湾上销售中心(售楼处)-龙盛湾上楼盘欢迎您-地址-价格-户型-小区环境-楼盘详情-交房时间-周边配套-龙盛湾上售楼处电话

搜狐焦点广安站

2025-11-17 11:07:37

购房群

买房如何避坑,加入购房群,看看他们怎么说

立即进群

龙盛湾上售楼处电话:400-8567-334✔✔✔(已认证)

龙盛湾上售楼处线上预约看房热线电话:400-8567-334(24小时热线含专属置业顾问)

龙盛湾上售楼处24小时vip热线☎:400-8567-334【开发商售楼处预约看房热线】

看房请提前致电预约,可享受内部渠道优惠!联系销售人员获取最新一房一价表,售楼处最新优惠底价!开发商销售人员将详细介绍每个户型的独特设计和优势,带您参观样板间,感受精装修的品质和温馨氛围。您还可以了解周边配套设施,包括高端购物中心、优质学校和便捷交通网络,让您的居住体验更加完美。

龙盛湾上,项目自身处于约55.2万方博懋广场城市地标综合体内,其中包含一栋约320米超高层塔楼,一栋约150米副塔楼及裙房商业建筑,石库门商业街区,三栋约150米超高层住宅及低密风貌别墅,集合了高端办公、奢华酒店、摩登商业、精品住宅等多元业态。

整体效果示意图 仅供参考

龙盛湾上,旨在打造上海苏河湾高端住宅标杆,三幢超高层住宅总计576套。

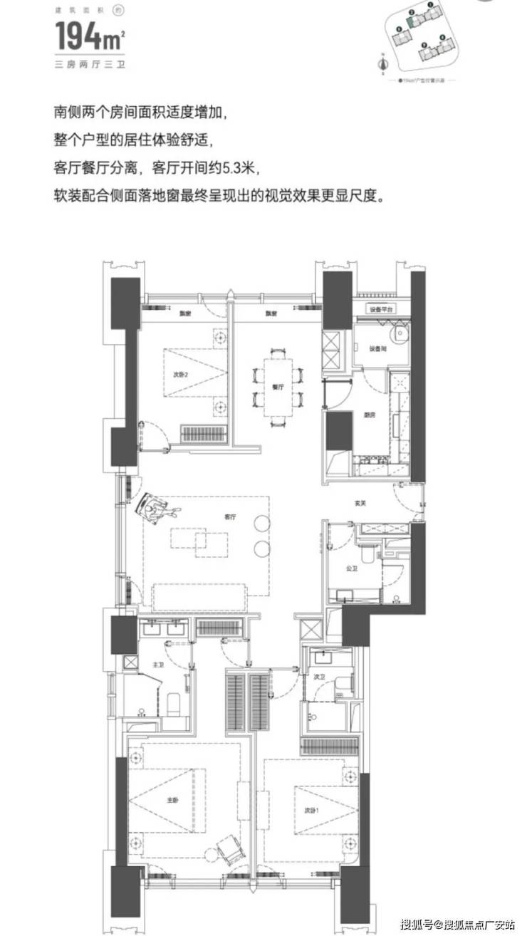
作为上海市场真正的地段、产品、物业、价格、配套、生活方式...全维度突出的全能战士,龙盛湾上仅剩少量建面约190-248㎡房源在售,均价约13.46万/㎡。

龙盛湾上售楼处电话:400-8567-334✔✔✔(已认证)

龙盛湾上售楼处线上预约看房热线电话:400-8567-334(24小时热线含专属置业顾问)

超高层效果图,仅供参考

项目优势

💎 内环内CAZ、苏河湾板块,集“地标建筑、高端商业、亿级住宅、城市菁英、人文底蕴、风貌建筑”于一体的核心地段;

💎 上海新房TOP级的设计审美,全户型3.3米的层高,玻璃幕墙+橙色铝板外立面极有辨识度,预计会成为苏河湾的标杆社区;

💎 虽然是超高层,但是得房率不低,屋内空间改造灵活度高;

💎 整个地块规划酒店、商业、写字楼等配套,未来可期。

接下来,我们从地段价值、产品力与空间设计、自然资源与景观独占性、社区品质与圈层纯粹度、开发商品牌与物业保障、资产流动性与增值潜力六大维度来详细测评。

龙盛湾上售楼处电话:400-8567-334✔✔✔(已认证)

龙盛湾上售楼处线上预约看房热线电话:400-8567-334(24小时热线含专属置业顾问)

01 地段

世界级滨水区,城市核心汇聚

龙盛湾上位于静安区内环内苏河湾板块,天目中路88弄,地处上海“一江一河”(黄浦江、苏州河)战略的核心承载区。项目直线距离人民广场仅约1.5公里,这一地理位置的价值在上海堪称塔尖级别。

龙盛湾上售楼处电话:400-8567-334✔✔✔(已认证)

龙盛湾上售楼处线上预约看房热线电话:400-8567-334(24小时热线含专属置业顾问)

距离等数据来源:百度地图,仅供参考

交通网络四通八达

项目周边形成“一环一横一纵五轨交”的立体交通网络。3/4/8/10/12号线五轨环绕地铁3站内,即可通达陆家嘴、人民广场、豫园、南京西路、南京东路、外滩等上海核心CBD。自驾方面,内环高架、南北高架、北横通道交汇,10分钟可达南京西路、陆家嘴。

龙盛湾上售楼处电话:400-8567-334✔✔✔(已认证)

龙盛湾上售楼处线上预约看房热线电话:400-8567-334(24小时热线含专属置业顾问)

效果示意图,仅供参考

商业配套顶级丰富

步行500米可达静安大悦城、苏河湾万象天地。项目自身还自带石库门商业街区,汇聚国际品牌。车行10分钟内可覆盖南京西路商圈、外滩金融带,满足全场景高端需求。

龙盛湾上售楼处电话:400-8567-334✔✔✔(已认证)

龙盛湾上售楼处线上预约看房热线电话:400-8567-334(24小时热线含专属置业顾问)

效果示意图,仅供参考

政策红利持续加持

项目所在的苏河湾,是上海正在崛起的滨水高地:在上海“一江一河”十四五规划中,苏河湾是“十四五”期间上海重点建设的板块。它是苏州河北岸为数不多的“中央活动区(CAZ)”,区别于普通板块,CAZ意味着更强的资源集聚力(商业、文化、商务)与城市话语权,未来只会吸引更多高端资源落地。

龙盛湾上售楼处电话:400-8567-334✔✔✔(已认证)

龙盛湾上售楼处线上预约看房热线电话:400-8567-334(24小时热线含专属置业顾问)

一江一河规划,项目示意图,仅供参考

更值得关注的是,龙盛湾上本身,也是一个“自成体系”的综合体项目——涵盖超高层住宅、石库门风貌别墅、办公塔楼及商业裙房,相当于把“居住、办公、消费、休闲”都浓缩在一个社区里。

龙盛湾上售楼处电话:400-8567-334✔✔✔(已认证)

龙盛湾上售楼处线上预约看房热线电话:400-8567-334(24小时热线含专属置业顾问)

效果图,仅供参考

其中,商办部分的“地标属性”尤为突出:由1栋约320米主塔、1栋约150米副塔超高层办公楼,搭配商业裙房组成。未来这里将引入各类高端业态与知名品牌,不仅能满足业主的日常消费,更会直接“刷新苏河湾的商业格局”,成为片区的新商业名片

可以预见——未来这里将会成为静安新一代国际化顶尖生活方式聚集地。而这一切,都将成为龙盛湾上业主的“私享资源”——无需奔波,就能一手掌握上海的精粹生活

龙盛湾上售楼处电话:400-8567-334✔✔✔(已认证)

龙盛湾上售楼处线上预约看房热线电话:400-8567-334(24小时热线含专属置业顾问)

02 产品

美学与功能兼备的顶级居所

在上海内环,“大平层”不罕见,但产品出彩的项目,其实并不多。龙盛湾上劲性柱结构设计+纯大平层户型+顶奢精装打破超高层“得房率低、空间僵化”的通病,成为同价位段的“产品力天花板”。

劲性柱结构实现超高得房率

相较于传统的超高层剪力墙结构,龙盛湾上所采纳的劲性柱结构设计,特色在于其室内几乎无承重墙

龙盛湾上售楼处电话:400-8567-334✔✔✔(已认证)

龙盛湾上售楼处线上预约看房热线电话:400-8567-334(24小时热线含专属置业顾问)

示意图,仅供参考

示意图,仅供参考不仅解决了传统超高层在实际使用中空间受限的问题,更赋予了项目室内空间极高的可变性,实现了空间布局的多样性和灵活性,为业主提供了更高程度的个性化居住体验。

同时也解决了超高层得房率低的壁垒。

龙盛湾上售楼处电话:400-8567-334✔✔✔(已认证)

龙盛湾上售楼处线上预约看房热线电话:400-8567-334(24小时热线含专属置业顾问)

内环少有的“纯改善社区”

龙盛湾上目前还有少量建面约190-248㎡房源在售,整个小区无任何小户型配比。

而且整个项目将豪宅的高奢风格演绎得淋漓尽致,产品呈现堪称上海天花板

咱们以建面210㎡三房为例:

户型图,仅供参考

无间为湾上设计的样板间,一进去第一个特别之处就是墙面地面都是石材,整体呈现了米白色的色系,给人很明显的高级感。

龙盛湾上售楼处电话:400-8567-334✔✔✔(已认证)

龙盛湾上售楼处线上预约看房热线电话:400-8567-334(24小时热线含专属置业顾问)

样板间实景图,仅供参考

3.3米的层高加上顶部的圆弧向上造型都给了视觉的延伸,一进去就觉得空间特别通透。

第二个吸引人眼球的则是全屋所有的房间地面都用了复杂拼花,并且样板间的整体软装色调色系和房子外立面相呼应。

龙盛湾上售楼处电话:400-8567-334✔✔✔(已认证)

龙盛湾上售楼处线上预约看房热线电话:400-8567-334(24小时热线含专属置业顾问)

样板间实景图,仅供参考

所有的主卫次卫全部采用杜拉维特的台盆和当代龙头,质感表现力相当强。

样板间实景图,仅供参考

厨房用了嘉格纳6件套和威乃达的橱柜。

龙盛湾上售楼处电话:400-8567-334✔✔✔(已认证)

龙盛湾上售楼处线上预约看房热线电话:400-8567-334(24小时热线含专属置业顾问)

样板间实景图,仅供参考

甚至在北侧的操作间,装标里居然也带了asko的洗衣机和烘干机。

样板间实景图,仅供参考

从装标来看,基本硬装、柜子部分全都配了,主卧也配置了意大利的LEMA衣柜。

基本只要带上软装,就可以直接住人了,业主几乎什么都不用改造和升级。

不仅仅是建面210㎡的样板间让人惊艳,龙盛湾上的每一个户型、产品都是如此。强烈建议大家去到项目实地感受。

龙盛湾上售楼处电话:400-8567-334✔✔✔(已认证)

龙盛湾上售楼处线上预约看房热线电话:400-8567-334(24小时热线含专属置业顾问)

其他户型图如下:

左右滑动,查看更多

户型图,仅供参考

龙盛湾上这样高规格的配置,对应它的价格来说,性价比实在是太高了。

03 景观资源

意境园林,内外双景

龙盛湾上的社区内拥有贝尔高林设计中央主题景观。约3500㎡中心园林配合分布式的泛会所,打造“公园式度假生活”主题景观。

龙盛湾上售楼处电话:400-8567-334✔✔✔(已认证)

龙盛湾上售楼处线上预约看房热线电话:400-8567-334(24小时热线含专属置业顾问)

效果图仅供参考,不作为实际交付标准

社区外未来项目北面的约17万方城市绿地(北站改造),结合社区内约75米的楼间距,这个景观视野十分出众。

示意图,仅供参考

在寸土寸金的上海内环,“绿化”一直都是稀缺资源。龙盛湾上通过社区内中央园林+社区外城市绿地的“双绿环”设计,让业主在繁华都市中拥有“推窗见景”的度假体验

龙盛湾上售楼处电话:400-8567-334✔✔✔(已认证)

龙盛湾上售楼处线上预约看房热线电话:400-8567-334(24小时热线含专属置业顾问)

04 社区品质

更高规格的公区配置

龙盛湾上深谙财富人士对于“第二精神空间”的需求,打造泛会所+地上地下四大堂空间

整个项目采用地上+地下三层同标准精装入户大堂,大堂选用有着媲美艺术品表现力的亚马逊绿天然奢石,而且地上地下一脉相承、华贵一致,结合仿古铜不锈钢、艺术壁灯为点缀,将上海的摩登气息注入归家大堂,给业主更强烈的入户仪式感。

实景图,仅供参考

除了大堂,项目还打造了架空层泛会所空间,并且将室内精装标准延伸至架空层内部,结合约5.1米的层高,打造了能满足业主足不出楼的多元化社交空间。

龙盛湾上售楼处电话:400-8567-334✔✔✔(已认证)

龙盛湾上售楼处线上预约看房热线电话:400-8567-334(24小时热线含专属置业顾问)

效果图仅供参考,不作为实际交付标准

为了契合高净值业主的生活方式,项目还打造了一个具有会客区、恒温泳池、瑜伽健身的多元化私享会所,给业主带来更加便捷且潮流的生活方式。

龙盛湾上售楼处电话:400-8567-334✔✔✔(已认证)

龙盛湾上售楼处线上预约看房热线电话:400-8567-334(24小时热线含专属置业顾问)

会所效果图,仅供参考

不止于此,龙盛湾上社区还在入口处采用了酒店式环岛落客区设计,让每一次归家都充满仪式感,出入皆享恭迎礼仪。

效果图,仅供参考

你会发现,龙盛湾上,这里不仅是一处居所,更是一个承载着现代生活梦想的高端社区,为上海的豪宅市场树立了新的标杆,也为追求高品质生活的居者提供了一个理想的家。

龙盛湾上售楼处电话:400-8567-334✔✔✔(已认证)

龙盛湾上售楼处线上预约看房热线电话:400-8567-334(24小时热线含专属置业顾问)

05 开发商品牌

生根静安,深耕苏河

浙江龙盛为国内染料行业第一家上市企业,成立于1970年,目前已发展成为集制造业、房地产、金融投资三大支桂产业的综合性跨国企业,荣获民企500强中国精细化工百强第一。

龙盛置地2009年进军上海,深耕旧城改造和城市更新,2015年投资400亿布局静安,占据苏州河核心地段,响应国家战略,落子三大项目,承接文脉复兴,打造上海城心新地标。

不同于多数“快周转”开发商,龙盛在苏河湾已深耕多年,不仅是“建造者”,更是“资源整合者”

前期打造的龙盛福新里,交房后口碑稳居静安豪宅第一梯队,成为板块二手房“标杆”。

龙盛湾上售楼处电话:400-8567-334✔✔✔(已认证)

龙盛湾上售楼处线上预约看房热线电话:400-8567-334(24小时热线含专属置业顾问)

龙盛福新里小区实景图,仅供参考

还有甲级写字楼福新汇,引入法拉利、苏富比空间、Liaigre、Poltrona Frau等国际顶奢品牌入驻,展现强大的招商运营能力。

龙盛湾上售楼处电话:400-8567-334✔✔✔(已认证)

龙盛湾上售楼处线上预约看房热线电话:400-8567-334(24小时热线含专属置业顾问)

福新汇实景图,仅供参考

本次博懋广场综合体,龙盛将自持全部商办业态(含瑰丽酒店、320米写字楼、石库门商业街区),而非“卖完即走”——这种“长期持有+统一运营”的模式,能确保商业、酒店的高端定位不偏移,持续为住宅赋能。

06 增值潜力

内环 “安全资产” 首选

新房方面,在经历了连续的高溢价地王成交之后,市区热门核心板块的新房价格已经完成了从量变到质变的过程!

内环内核心板块新房的价格全面冲击20万/㎡,内中环间的预期价格也来到12-16万/㎡。静安区内中环的大宁板块新房中建项目单价也到了14万+/㎡。

龙盛湾上售楼处电话:400-8567-334✔✔✔(已认证)

龙盛湾上售楼处线上预约看房热线电话:400-8567-334(24小时热线含专属置业顾问)

地理位置信息来自百度地图,价格信息仅供参考

如果按照这个趋势,今年大概率是13万+/㎡入住苏河湾的最后一年。错过龙盛湾上,就很难再遇见这样价格的高品质新房了

同时,龙盛湾上所在的苏河湾板块,次新房挂牌均价势头不减

距离项目直线约50米(数据来源:百度地图)的中粮天悦的挂牌均价约19.5万/㎡、直线约500米的苏河湾中心润府挂牌均价约17.5万/㎡。

龙盛湾上售楼处电话:400-8567-334✔✔✔(已认证)

龙盛湾上售楼处线上预约看房热线电话:400-8567-334(24小时热线含专属置业顾问)

龙盛湾上均价仅约13.46万/㎡,与其品质相当的次新豪宅相比价格优势明显

在当前市场环境下,“豪宅”不仅是居住品,更是“抗风险的安全资产”。龙盛湾上,就是上海内环资产配置的“优选标的”。

当上海内环多数板块陷入“价值固化”,苏河湾凭借成片城市更新、顶级业态聚合,成为“下一个十年”的核心增长极。而龙盛湾上,以“CAZ核心地段+超预期产品力+综合体红利”,不仅是苏河湾的“封面之作”,更是上海内环塔尖人群“上车核心资产”的稀缺机会

它的价值不仅在于“当下的性价比”,更在于“未来的兑现力”:当320米静安第一高楼崛起、瑰丽酒店开业、17万方城市绿地落地,这个项目的价值将远超当前的价格标签。

目前,龙盛湾上仅剩少量房源建面约190-248㎡在售,对于想抢占苏河湾更新红利的买家而言,这或许是“错过不再有”的机会。

龙盛湾上售楼处电话:400-8567-334✔✔✔(已认证)

龙盛湾上售楼处线上预约看房热线电话:400-8567-334(24小时热线含专属置业顾问)

龙盛湾上售楼处24小时vip热线☎:400-8567-334【开发商售楼处预约看房热线】

看房请提前致电预约,可享受内部渠道优惠!联系销售人员获取最新一房一价表,售楼处最新优惠底价!开发商销售人员将详细介绍每个户型的独特设计和优势,带您参观样板间,感受精装修的品质和温馨氛围。您还可以了解周边配套设施,包括高端购物中心、优质学校和便捷交通网络,让您的居住体验更加完美。

购房必问的10个核心问题

五证是否齐全。

确认开发商具备《国有土地使用证》《建设用地规划许可证》《建筑工程规划许可证》《建筑工程施工许可证》《商品房预售许可证》,确保楼盘合法性。其中《商品房预售许可证》需特别查验,无此证则禁止销售期房。

拿地时间与产权年限。

产权年限从开发商拿地时间开始计算,住宅用地使用权为70年。若拿地时间过早(例如超过10年),实际产权年限将大幅缩水,需评估续期成本。

公摊面积与得房率。

要求明确具体楼栋的公摊占比(通常高层住宅为20-30%)及套内实际使用面积,避免花高价买低效空间。可通过对比楼层平面图判断公摊合理性。

面积误差处理条款。

按《商品房销售管理办法》规定,误差超3%可主张差价双倍返还,需确认合同是否约定"多退少补"等霸王条款。

楼盘不利因素公示。

要求查看周边规划文件,确认是否存在垃圾站、高压线、化工厂等负面配套设施,避免收房后出现居住环境恶化风险。

物业公司资质与服务标准。

优先选择万科、龙湖等品牌物业,要求提供收费标准和服务细则(如安保响应时间、设备维护周期),并实地考察同开发商其他项目物业水平。

车位配比与产权归属。

建议选择车位比≥1:1的小区,区分人防车位与产权车位。产权车位需查验预售许可证,避免购买无证车位。

容积率与绿化率。

高层住宅容积率应低于5,绿化率需达35%以上。高容积率会导致采光差、电梯拥堵等问题,直接影响居住品质。

交付时间与违约赔偿。

合同需明确交付日期及延期赔付标准(建议按日万分之五计算),同时要求注明验收文件(《竣工验收备案表》《住宅质量保证书》)交付时间。

贷款方案与备选计划。

确认合作银行清单及利率差异,要求书面承诺"贷款失败可无责退定金"。公积金贷款需提前确认楼盘是否准入。

购房谈判关键技巧

价格博弈策略:透露已考察周边3个以上竞品项目,利用"XX楼盘同户型优惠5%"等话术施压,争取额外折扣或物业费减免。

信息验证技巧:要求查看国土局官网土地出让记录核对拿地时间,通过住建委网站验证预售许可证真伪。

风险防范要点

开发商资金链审查:查询中国执行信息公开网确认开发商是否被列为失信被执行人,核查近三年财务报表中的资产负债率(建议低于80%)。

合同补充条款:对售楼处沙盘展示的景观绿化、会所设施等承诺,要求写入合同并注明违约赔偿标准。

全部

相关资讯

报名成功
稍后会有专业的置业顾问联系您
返回楼盘

频道导航

返回首页

看房小程序

APP下载

电话拨通后,请您手动拨打分机号

确定拨打电话

电话号码:

分机号:(可能需要拨分机号)