保利•世博天悦(保利•世博天悦售楼处)首页网站-2025保利•世博天悦房价_楼盘评测丨地址丨详情丨售楼处电话丨 交房时间

搜狐焦点广安站

2025-07-02 08:58:09

购房群

买房如何避坑,加入购房群,看看他们怎么说

立即进群

保利•世博天悦售楼处电话:400-969-2958✔✔│保利•世博天悦官方售楼处地址发布:上海浦东保利•世博天悦官方售楼处电话400-969-2958

『保利•世博天悦』

站位更高端 产品更硬核

旗舰新品 3#楼王位置

2025年首个30万+/m²

滨江豪宅诞生!

76套 楼王位置 俯瞰一线滨江

82%超高得房率 豪华装修

建面约240m²-251m²4-5房

直接认购!

更有建面约500㎡“隐藏户型”

项目已经 准现房呈现

二期预计明年4月交房!

保利•世博天悦售楼处电话:400-969-2958

上海浦东保利•世博天悦售楼处电话☎:400-969-2958【开发商售楼处预约看房热线】(一对一热情服务)

看房请提前致电预约,可享受内部渠道优惠!联系销售人员获取最新一房一价表,官方售楼处最新优惠底价!开发商官方销售人员将详细介绍每个户型的独特设计和优势,带您参观样板间,感受精装修的品质和温馨氛围。您还可以了解周边配套设施,包括高端购物中心、优质学校和便捷交通网络,让您的居住体验更加完美。

💥💥💥重磅加推💥💥💥

保利世博天悦售楼处电话:400-969-2958

保利世博天悦售楼处电话:400-969-2958

PolyWorldExpoTianyueSalesOfficePhone:400-969-2958

#世博滨江超一线江景豪宅11号楼震撼加推!

#The11thbuildingoftheExpoRiversideSuperFirstLineRiverViewLuxuryResidencehasbeenlaunched!

•稀缺位置:11号楼位于小区绝佳位置,北向是12号楼洋房,南向瞰白莲泾公园,西面一线江景,东面万平园林,360°全景观视野

•Scarcelocation:Building11islocatedinanexcellentlocationinthecommunity,withthewestern-stylehouseofBuilding12facingnorth,overlookingBailianjingParktothesouth,ariverviewtothewest,a10000squaremetergardentotheeast,anda360°panoramicview

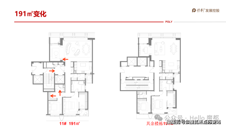
•户型面积:190-207㎡大户型,3-4房设计,满足高端需求

•Unitsize:190-207squaremeters,largeunitwith3-4bedroomsdesignedtomeethigh-endneeds

•总价区间:总价2700-5500万,西边套单价14-27万,东边套10楼看江单价18-19万

•Totalpricerange:totalpriceof27-55millionyuan,unitpriceof140000-270000yuanforthewestsideapartment,andunitpriceof180000-190000yuanfortheeastsideapartmentonthe10thflooroverlookingtheriver

•交房时间:预计2025年9月30日交付,准现房,所见即所得

Deliverytime:ExpectedtobedeliveredonSeptember30,2025,readytomovein,whatyouseeiswhatyouget

#大师设计,高端配套,稀缺超一线江景,稀缺机会,不容错过!

#Masterdesign,high-endsupportingfacilities,scarcetop-notchriverviews,scarceopportunities,nottobemissed!

保利世博天悦售楼处电话:400-969-2958

保利世博天悦售楼处电话:400-969-2958

保利•世博天悦售楼处电话:400-969-2958

上海浦东保利•世博天悦售楼处电话☎:400-969-2958【开发商售楼处预约看房热线】(一对一热情服务)

保利世博天悦售楼处电话:400-969-2958

保利世博天悦售楼处电话:400-969-2958

保利世博天悦售楼处电话:400-969-2958

保利•世博天悦售楼处电话:400-969-2958

上海浦东保利•世博天悦售楼处电话☎:400-969-2958【开发商售楼处预约看房热线】(一对一热情服务)

保利·世博天悦11#双面瞰江王座

仅60席孤篇藏品ONE&ONLY

约191-207㎡三房/四房一梯一户

准现房(交付时间不晚于2025年9月30日)

保利世博天悦售楼处电话:400-969-2958

保利世博天悦售楼处电话:400-969-2958

保利世博天悦售楼处电话:400-969-2958

11号楼陆家嘴视野

保利•世博天悦售楼处电话:400-969-2958

上海浦东保利•世博天悦售楼处电话☎:400-969-2958【开发商售楼处预约看房热线】(一对一热情服务)

保利世博天悦售楼处电话:400-969-2958

11号楼西侧看江视野

保利世博天悦售楼处电话:400-969-2958

保利•世博天悦售楼处电话:400-969-2958

上海浦东保利•世博天悦售楼处电话☎:400-969-2958【开发商售楼处预约看房热线】(一对一热情服务)

*约80m一线近江

*双面瞰江景观王座

*15F小高层

*约82%高得房率

*2.0超低密容积率

*360°全维度景观视野

*270°环幕采光(边套)

*LEED&WELL双金预认证

保利世博天悦售楼处电话:400-969-2958

保利世博天悦售楼处电话:400-969-2958

保利世博天悦售楼处电话:400-969-2958

保利•世博天悦售楼处电话:400-969-2958

上海浦东保利•世博天悦售楼处电话☎:400-969-2958【开发商售楼处预约看房热线】(一对一热情服务)

保利世博天悦售楼处电话:400-969-2958

Part1.唯此双面江景视野

保利世博天悦售楼处电话:400-969-2958北向瞰江,对望陆家嘴天际线,南向白莲泾公园

西面瞰江,俯瞰梅赛德斯奔驰文化中心,东面超万平景观园林

全实景呈现准现房,所见即所得

保利世博天悦售楼处电话:400-969-2958

保利世博天悦售楼处电话:400-969-2958

保利•世博天悦售楼处电话:400-969-2958

上海浦东保利•世博天悦售楼处电话☎:400-969-2958【开发商售楼处预约看房热线】(一对一热情服务)

保利世博天悦售楼处电话:400-969-2958

保利•世博天悦售楼处电话:400-969-2958

上海浦东保利•世博天悦售楼处电话☎:400-969-2958【开发商售楼处预约看房热线】(一对一热情服务)

保利世博天悦售楼处电话:400-969-2958

保利•世博天悦售楼处电话:400-969-2958

上海浦东保利•世博天悦售楼处电话☎:400-969-2958【开发商售楼处预约看房热线】(一对一热情服务)

Part2.唯此地王潮下黄金收藏窗口期

上海三次土拍落幕,地王频出,内环核心即将进入30w+时代

一江一河战略下,滨江是4000万+全球顶级城市中央恒产

2025年“准现房”,是顶豪市场中罕见的“确定性资产”

保利世博天悦售楼处电话:400-969-2958

PolyWorldExpoTianyueSalesOfficePhone:400-969-2958

Part3.唯此大国文化艺术带

Part3.Onlythisgreatcountry'sculturalandartisticbelt

比邻世博水岸、世博文化公园,奢享滨江惬意大境

AdjacenttotheExpoWaterfrontandExpoCulturalPark,enjoytheluxuriousriversidescenery

汇聚中华艺术宫、世博中心等的文化秀场,文体生活丰富璀璨

AculturalshowcasethatgatherstheChinaArtPalace,WorldExpoCenter,andotherculturalvenues,witharichandbrilliantculturalandsportslife

太古里、国金中心、世博天地,鼎级商业拥享

TaikooLi,GuojinCenter,andWorldExpoCenter,enjoyingtop-notchcommercialamenities

保利世博天悦售楼处电话:400-969-2958

Part4.唯此内外双园谧境

外部6大公园串联,城市森意绿境

内部约6万方园林,近3000方水景贯穿

内外双园环抱,浓荫静谧

保利世博天悦售楼处电话:400-969-2958

保利•世博天悦售楼处电话:400-969-2958

上海浦东保利•世博天悦售楼处电话☎:400-969-2958【开发商售楼处预约看房热线】(一对一热情服务)

Part5.唯此全球大师合著

新加坡CICADA、SCDA曾仕乾、CCD等5大国际团队联合匠著

4年设计打磨、3年实景勘研

以城市公建级建筑标准,铸就永恒

保利世博天悦售楼处电话:400-969-2958

Part6.唯此一线大牌奢装

甄选嘉格纳/威乃达/当代/唯宝/大金/霍尼韦尔

威能/怡口/比利时欧家/德系诺托/旭格等一线家装大牌,尽显生活格调

保利世博天悦售楼处电话:400-969-2958

【户型信息】

保利•世博天悦售楼处电话:400-969-2958

上海浦东保利•世博天悦售楼处电话☎:400-969-2958【开发商售楼处预约看房热线】(一对一热情服务)

保利世博天悦售楼处电话:400-969-2958

保利世博天悦售楼处电话:400-969-2958

保利世博天悦售楼处电话:400-969-2958

保利•世博天悦售楼处电话:400-969-2958

上海浦东保利•世博天悦售楼处电话☎:400-969-2958【开发商售楼处预约看房热线】(一对一热情服务)

保利世博天悦售楼处电话:400-969-2958

保利•世博天悦售楼处电话:400-969-2958

上海浦东保利•世博天悦售楼处电话☎:400-969-2958【开发商售楼处预约看房热线】(一对一热情服务)

保利世博天悦售楼处电话:400-969-2958

保利•世博天悦售楼处电话:400-969-2958

上海浦东保利•世博天悦售楼处电话☎:400-969-2958【开发商售楼处预约看房热线】(一对一热情服务)

保利•世博天悦售楼处电话:400-969-2958

上海浦东保利•世博天悦售楼处电话☎:400-969-2958【开发商售楼处预约看房热线】(一对一热情服务)

看房请提前致电预约,可享受内部渠道优惠!联系销售人员获取最新一房一价表,官方售楼处最新优惠底价!开发商官方销售人员将详细介绍每个户型的独特设计和优势,带您参观样板间,感受精装修的品质和温馨氛围。您还可以了解周边配套设施,包括高端购物中心、优质学校和便捷交通网络,让您的居住体验更加完美。

抵押贷款概述

在面对资金短缺的困境时,大多数人通常会选择两种方式来解决:一是寻求亲友的帮助,二是通过贷款机构获取资金。然而,与亲友间的债务关系往往伴随着复杂的情感因素,因此,许多人更倾向于选择贷款,这样能够更清晰地计算成本。贷款方式多样,包括信用贷款、担保贷款和抵押贷款。对于那些无法或不愿办理信用贷款的人来说,抵押贷款便成为了一种常规选择。

·

在民间借贷中,住房抵押贷款变得越来越重要。简而言之,住房抵押贷款就是将房产作为抵押物,向银行申请一定额度的资金。这个过程虽然看似简单,但其中涉及到的常识和细节却不容忽视。

02

抵押贷款条件及要求

◆ 抵押物产权要求

住房抵押贷款的抵押物必须具备清晰的产权。这包含两层含义:首先,抵押物必须拥有独立产权,即申请人在申请抵押贷款时,必须独立拥有房子的所有权。若房产为多人共有,则必须获得所有共有人的书面授权。集体产权和大部分小产权房产通常不被接受(尽管极少数地方农商行可能提供小产权自建房的抵押贷款)。其次,该房产的产权必须清晰无抵押,即房产未在供、未抵押、未为他人提供担保,其全部所有权归属于申请人。

◆ 个人征信要求

住房抵押贷款对个人征信也有一定要求。尽管抵押物为房产,但银行仍会关注借款人的征信记录,包括逾期天数、逾期次数、逾期金额以及查询次数等。不过,与信用贷款相比,抵押贷款的征信要求相对宽松一些。通常,征信一年内不能出现连续三个月的逾期,两年内累计逾期次数不超过六次,且三个月内机构查询次数不超过五次。

◆ 贷款金额核定

贷款金额的核定是住房抵押贷款的重要环节。贷款金额通常不超过房产价值的70%,具体额度会受到多种因素的影响,如房产购买时的价格、房龄、地段、周围房产均价、装修情况以及楼盘大小等。银行会指定评估机构对房产进行价格评估,并结合内部审核结果和申请人资质,最终确定贷款金额。

◆ 贷款利率与期限

利息与期限方面,住房抵押贷款的利率通常低于信用贷款。但具体利率还需根据不同银行来确定。此外,抵押贷款的期限最高可达30年,个人可申请的最高期限则与房龄相关。例如,房龄为20年的房产,最高期限为20年,但具体批贷年限还需银行审批。

◆ 贷款手续及时间

办理住房抵押贷款的手续相对繁琐,办理时间较长。由于涉及房产评估和产权抵押等环节,整个流程通常需要10个工作日到一个月不等。然而,某些商业银行已简化程序并与房管局建立特殊审批通道,从而缩短了审批时间至3个工作日左右。

◆ 还款方式选择

在还款方式上,住房抵押贷款提供了多种选择。除了常见的等额本息和等额本金外,许多银行还推出了先息后本的还款方式。这种方式的优点在于提高资金使用率,但利率可能会相对较高。申请人应根据自身资金安排和利益考量来选择合适的还款方式

03

贷款用途及影响

◆ 贷款用途分类

贷款用途对住房抵押贷款而言具有显著影响,它不仅关乎贷款额度、期限,还直接影响贷款利率。目前,贷款用途主要分为个人消费、生意经营及投资三类。个人消费通常最受银行青睐,因其风险较低;而生意经营用途则可能面临银行更严格的审核。至于投资用途,一般包括商品房投资和其他投资。

◆ 贷款用途对审批的影响

需注意的是,国家禁止将贷款资金挪作首付款,并严格控制贷款资金流入房地产市场。同时,对于股票、外汇、期货等高风险投资,银行通常持禁止态度,因此投资用途通过审批的概率较低。银行在审批时也会考虑借款人的职业背景,例如企业法人一般不适宜申请消费贷。此外,借款人还需提供明确的用途证明。

04

申请材料及其他注意事项

◆ 申请材料要求

房产抵押贷款的申请资料与其他贷款类型基本一致,包括身份证明、工作与收入证明、婚姻状况证明、贷款用途证明以及其他财产证明(如有)。特别需要强调的是,工作与收入情况不仅对贷款的成功申请至关重要,而且对贷款额度和期限的确定也具有重大影响。在评估抵押贷款时,除了考虑房龄因素外,工作和收入证明也是银行决策的关键依据。

◆ 其他注意事项

A、一旦房产抵押贷款办理完毕,房产的所有权将转归银行,而申请人仅享有使用权,直至贷款全部清偿。

B、房屋抵押贷款的申请人必须符合一定的年龄要求,通常介于18至65岁之间。因此,在确定贷款期限时,不仅需要考虑房龄,还需同时考虑申请人的年龄,例如,一位50岁的申请人,即便其房龄仅2年,其贷款期限也可能最多只有15年。

C、许多银行对房屋抵押贷款的提前还款设有条件。符合条件的申请人可以享受免违约金及后续不再计息的优惠。因此,在办理贷款时,务必咨询清楚相关政策,并仔细核对合同条款,以便根据个人情况选择合适的贷款期限。例如,对于提前还款条件较为宽松或代价较低的申请人,可以选择较长期的贷款期限,从而既提高资金的使用效率,又能减轻每月的还款压力。

购房指引如下:

前期准备

1.明确购房资格:

符合上海最新的购房资格,详情可拨打售楼处电话:400-969-2958咨询置业顾问做最终的确认

2.确定预算:

根据自己的经济实力,确定购房预算,包括首付、贷款金额以及未来的还款能力等。

3.准备材料:

身份证、户口本、结婚证(已婚人士)、收入证明、银行流水、社保或纳税证明等相关材料,以备认购和贷款时使用。

看房选房

4.电话预约:

拨打售楼处电话:400-969-2958,与工作人员沟通预约看房的具体日期和时间段。

5.线上官网预约:

在浏览器搜索 “官方网站”,进入官网首页,找到 “预约看房” 板块,点击进入预约页面,依次填写真实有效的个人信息,然后选择预约看房的日期和时间,提交预约申请。

6.微信公众号预约:

在微信搜索 “” 官方公众号并关注,进入公众号后,在菜单栏中查找预约看房的入口,点击进入预约界面,填写个人信息以及预约看房的时间,提交预约内容。

7.实地看房:

按约定时间前往售楼处,在工作人员的带领下参观样板房和楼盘现场,了解房屋户型、面积、朝向、装修标准等细节,同时查看小区环境、配套设施等情况。

8.选房:

了解清楚项目情况后,结合自己的需求和预算,选择心仪的房源。

认购签约

9.认购:

项目开启认购后,在规定时间内,携带身份证、户口本、结婚证、收入证明等材料前往售楼处进行认购,同时缴纳一定金额的认购金。

签订合同:认购成功后,在规定时间内与开发商签订购房合同,仔细阅读合同条款,包括房屋价格、付款方式、交房时间、违约责任等,确保自身权益得到保障。

办理贷款

10申请贷款:

如果需要贷款购房,在签订合同后,向银行提交贷款申请,同时提供收入证明、银行流水等相关材料,银行会对购房者的资质进行审核。

等待审批:银行审核通过后,会与购房者签订贷款合同,并确定贷款金额、利率、还款方式等。

放款:银行完成放款手续后,购房者需要按照贷款合同约定的时间和方式进行还款。

11.交房验收

交房通知:开发商在交房前会提前通知购房者交房时间和相关事宜。

验收房屋:购房者按照通知时间前往楼盘,对房屋进行验收,检查房屋的质量、装修、配套设施等是否符合合同约定,如发现问题,及时与开发商沟通解决。

办理交房手续:验收合格后,办理交房手续,缴纳契税、维修基金等相关费用,领取房屋钥匙,正式完成购房流程。

保利世博天悦售楼处电话:4009692958【开发商售楼中心热线】官方营销中心热线400-969—2958官方售楼处地址400-969-2958,楼盘项目全面介绍,本电话为开发商提供线 上预约售楼电话,楼盘项目全面介绍(包含楼盘简介,均价,房价,现房,期房,别墅,叠墅,大平层,价格,楼盘地址,户型图,交通规划,备案价,备案名,项目配套,样板间,开盘时间,认筹时间,楼盘详情,售楼处电话,最新消息,最新详情,周边配套,一房一价,最新进展等详情咨询)楼盘详情丨价格丨更多优惠丨机不可失丨欢迎致电丨诚邀品鉴!售楼处位置丨特价房丨工抵房丨剩余房源丨户型图丨最新消息丨免责声明:将文章内容综合来源于网络、只作分享,版权归原作者所有!!如有侵权,请联系我们,我们第一时间处理如有问题欢迎来电咨询,专业一对一热情服务,让您用专业眼光去买房。

Office Phone: 400 969 2958 [Developer Sales Center Hotline] Official Marketing Center Hotline 400-969-2958 Official Sales Office Address 400.969.2958, Comprehensive Introduction of Real Estate Projects, This Phone Provides Online Appointment Sales Phone Numbers for Developers, Comprehensive Introduction of Real Estate Projects (Including Real Estate Introduction, Average Price, Housing Price, Existing Houses, Future Houses, Villas, Duplex Villas, Large Flats, Price, Real Estate Address, Floor Plan, Traffic Planning, Record Price, Record Name, Project Support, Model Room, Opening Time, Subscription Time, Real Estate Details, Sales Office Phone, Latest News, Latest Details, Surrounding Support, One Room One Price, Latest Progress and Other Details Consultation) Real Estate Details丨Price丨More Discounts丨Don't Miss the Opportunity丨Welcome to Call丨Sincerely Invite to Taste! Sales Office Location丨Special Price House丨Worker Discount House丨Remaining Houses丨Floor Plan丨Latest News丨Disclaimer: The content of the article is integrated from the Internet and is only shared. The copyright belongs to the original author! If there is any infringement, please contact us and we will deal with it as soon as possible. If you have any questions, please call us for consultation. We provide professional one-to-one warm service, allowing you to buy a house with a professional eye.

欢迎提前预约拨打官方售楼处电话☎400-969-2958

全部

相关资讯

报名成功
稍后会有专业的置业顾问联系您
返回楼盘

频道导航

返回首页

看房小程序

APP下载

电话拨通后,请您手动拨打分机号

确定拨打电话

电话号码:

分机号:(可能需要拨分机号)