中海姑苏第(售楼处)-中海姑苏第售楼中心首页网站丨2025中海姑苏第欢迎您丨最新楼盘详情

搜狐焦点广安站

2025-04-22 10:57:55

购房群

买房如何避坑,加入购房群,看看他们怎么说

立即进群

中海姑苏第售楼电话400-8657-114

如有问题欢迎来电咨询,来电即可享受买房优惠!预约来电尊享购房优惠,可预约案场内部销售人员,400-8657-114✔✔✔专业一对一热情服务,让您用专业眼光去买房

姑苏城芯 胥江龙湖天街旁 央企中海实力匠造

约130、155、180m²隐奢大宅 186席 限量臻藏

中海姑苏第

售楼处电话☎:400-811-8224✔✔欢迎来电咨询!

可预约销售人员,专业一对一热情服务,让您用专业眼光去买房。

【项目基础信息】

总占地面积:约1.6万方

总户数:186套

容积率:1.8

绿化面积:约30%

车位配比:约1:2(371个)

物业:中海物业

产品类型:6栋14-17F小高层

产品面积: 130平3房两厅两卫、155平四房两厅两卫、180平四房两厅三卫

装修标准:精装修交付

【品牌-央企中海】

(1)时间的海中海姑苏第 :我司隶属于中国建筑集团,44年90余城服务超300万家庭

中海姑苏第售楼电话400-8657-114

①央企背景:中海姑苏第我司于1979年成立于香港,隶属于中国建筑集团,中国建筑位于世界500强第13位。基于央企背景,我们母公司中国建筑和我们中海地产有幸参与了一系列世界级、国家级的重要项目,比如世界第一高楼迪拜塔、香港迪士尼、雄安第一标雄安市民服务中心、水立方、中央电视台、港珠澳大桥等等。

【中海姑苏第售楼处电话】400-811-8224

②全球布局:44年布局全球90余城,业务遍布内地、港澳、美国、英国、澳大利亚等多个国家和地区,服务超300万家庭.

③三大产业:目前已经构建了包含住宅开发、城市运营、创意设计及现代服务三大产业群。

(2)幸福的海:“8大幸福理念”、“168个幸福触点”和“1个幸福后盾”,中海物业,上市公司,13个香港政府机构的御用管家,大量世界500强公司指定物业服务商

【中海姑苏第售楼处电话】400-811-8224

(3)城市的海:中海姑苏第深耕苏州19年35子,曾连续多年苏州市场占有率领先。中海地产深耕苏州19年,在6大区累计开发项目35个,连续多年斩获苏城市场占有率领先。在拿地的眼光上,我们一直与城市发展同频共振。

我们在姑苏区布局了多个代表项目,包括了①胥江府:中海在姑苏区首个作品,也是苏州新中式社区的代表作品。②凤凰熙岸:也在本案附近,曾多次斩获板块销冠。③竹辉环宇荟:苏州首个滨水园林开放式街区,新晋网红打卡点,引入了苏州高端的酒店之一金普顿酒店,本案隐奢的设计灵感也参考了这一酒店的风格。

中海姑苏第是苏州中海重回姑苏城心的又一里程碑式,力争打造成古城高端住区中的标杆作品。

【地段-千年姑苏 主城核心贵地】

中海姑苏第本案位于苏州的政治、文化、旅游中心—古城姑苏区,姑苏区是国家历史文化名城保护区,是苏州最早发展的区域,2500年吴文化历史发源地,自古就是繁华盛地。

姑苏区文化底蕴浓厚,9座古典园林被列入《世界文化遗产名录》,拥有500多个各级文物保护单位、260多处控制保护古建筑、800多处古构筑物,非物质文化遗产”俯拾即是。

中海姑苏第售楼电话400-8657-114

中海姑苏第售楼电话400-8657-114

同时,中海姑苏第姑苏区又是苏州政府“一城四核”规划战略的核心,近几年为苏州土地供应最少的区域,板块内开发的住宅小区更是屈指可数,且大部分项目位于下游的平江、沧浪板块。无论城市如何对外扩张,这座城市的”心”仍然在姑苏区。它的土地面积有限;它的情结记忆不可迁移;它的文化积淀无可替代。新兴园区可复制,古城区稀缺属性永远独一无二。

【配套-姑苏繁华之源 精粹高阶生活】

中海姑苏第本案所处的板块为姑苏胥江豪宅生活带,此板块西至云庭,北至劳动路,南至胥江,东至胥江天街。(朴注:言外之意就是你们万科璞拾胥江、仁恒小岛这些项目都不是胥江豪宅生活带)

城市功能配套完善醇熟,核心商业、教育、医疗等资源丰盛汇集。是古城区少有的集“通商园游住”为一体的稀缺住区,集合了狮山的配套+园区的界面+古城的内核,可以说是集姑苏繁华精粹于一身。(朴注:这一段总结的很好)

【通】交通上,呈现两轨六轴的格局。

【中海姑苏第售楼处电话】400-811-8224

双轨TOD,紧邻地铁2号线(南北向)和5号线(东西向)(朴注:双轨交汇的新盘,在苏州很少很少),无缝对接1/3/4号线,将来5站路就可以到火车站,5站换乘到新区狮山,8站抵达园区湖西。贯穿苏州东西和南北量大动脉,方便触达全城,本项目也是内环稀缺的双轨站交汇的新盘项目。

六轴则指本项目紧邻劳动路、桐泾南路,链接城市大动脉干将西路、西环、南环、人民路,半小时内通达全城。

🕍【商】商业上,中海姑苏第位于刚开业的胥江天街西侧,是家门口的商业综合体。胥江龙湖天街是“商业重回古城”战略第一枪,超300家品牌入驻,拥有超30%姑苏首店。

每座天街对周边房产价值的提升作用非常强,以星湖天街为例,中海上园湾之前售价3.5万/㎡左右,天街开业后至今最新的二手价格已经飙升到4.9万/㎡。本项目旁边的天街开业不久,未来可期。本项目同步靠近美罗、泰华等商圈,前往新区天街、泉屋也很便利。

【园】景观上,项目中海姑苏第家门口即是大花园——劳动公园,南侧临近姑苏区最大的市级公园——桐泾公园。

【游】文娱上,举步可达南侧胥江沿河景观带,临近平江历史文化街区,畅游平江路、拙政园、苏州博物馆、城墙博物馆等蜚声海内外的知名景点。

【住】在教育上,姑苏区自古以来教育氛围浓厚,人才辈出。项目周边胥江小学、胥江实验中学。医疗上,临近三甲苏大附属第二医院(曾获得全国三级公立医院考核第二名)。

【项目价值点】

从价值来看,本项目板块是价值较高且较为保值的。

例如仁恒公园世纪大高层户型近期成交价格为4.8-5.1万/㎡,海胥澜庭大高层均价4.65万/㎡,最新的成交价也要4.9万/㎡。

中海姑苏第售楼电话400-8657-114

本项目是14-17F的小高层,业态价值要高于周边二手房,且社区规划理念,产品设计也均领先于上述二手产品,价值不言而喻,186席古城资产,机不可失。

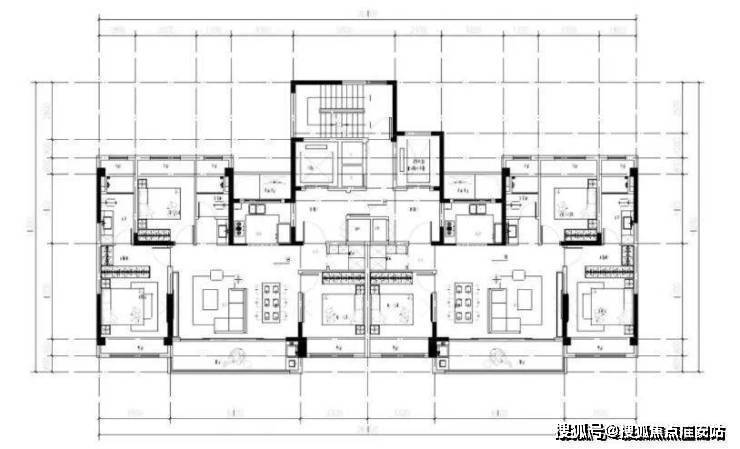
【项目户型图 中海姑苏第】(朴注:从公区设计来看,这几个户型得房率上要吃亏,也未能做到类一梯一户的设计,这个项目的定位偏保守了些)

🎖130平(三房两厅两卫)

🎖155平(四房两厅两卫)

🎖180平(四房两厅三卫)

中海姑苏第售楼电话400-8657-114

中海姑苏第售楼电话400-8657-114中海姑苏第售楼电话400-8657-114

中海姑苏第售楼电话400-8657-114

【中海姑苏第售楼处电话】400-811-8224

中海姑苏第售楼电话400-8657-114

中海姑苏第售楼电话400-8657-114

中海姑苏第售楼电话400-8657-114

『项目地址』

首开胥江龙湖天街北馆1号口中海展厅

项目名称: 中海姑苏第

中海姑苏第

中海姑苏第售楼电话400-8657-114

如有问题欢迎来电咨询,来电即可享受买房优惠!预约来电尊享购房优惠,可预约案场内部销售人员,400-8657-114✔✔✔专业一对一热情服务,让您用专业眼光去买房

全部

相关资讯

报名成功
稍后会有专业的置业顾问联系您
返回楼盘

频道导航

返回首页

看房小程序

APP下载

电话拨通后,请您手动拨打分机号

确定拨打电话

电话号码:

分机号:(可能需要拨分机号)