龙盛湾上(售楼处电话)龙盛湾上售楼处欢迎您|上海静安龙盛湾上楼盘评测-龙盛湾上详情|户型配套

搜狐焦点广安站

2025-07-04 09:10:52

购房群

买房如何避坑,加入购房群,看看他们怎么说

立即进群

龙盛湾上售楼处电话:400-8558-224✔✔│龙盛湾上官方售楼处地址发布:上海静安龙盛湾上官方售楼处电话400-855-8224

龙盛湾上售楼处电话☎:400-8558-224

龙盛湾上是上海静安苏河湾板块的高端住宅项目,定位为城市地标综合体【博懋广场】的住宅部分。以下是核心信息整合:

一、项目概况

地理位置

位于静安区内环内苏河湾核心区(天目中路88弄),毗邻苏州河(直线距离约750米),属CAZ中央活动区,距外滩/南京路商圈约1.5公里

交通网络

地铁:五轨交汇(3/4/8/10/12号线),1公里内覆盖曲阜路站、宝山路站等

自驾:紧邻内环高架、南北高架及北横通道。

二、产品信息

户型与价格

主力户型:建面约138-380㎡三至四房(138㎡/194㎡/198㎡/248㎡等)

均价:约13.38万-13.46万/㎡,总价门槛约1800万元起

龙盛湾上售楼处电话☎:400-8558-224

特色设计:

全屋无承重墙,空间可自由改造;

超高得房率约78%(超高层罕见);

客厅大面宽(如194㎡户型横厅面宽5.3米)。

精装标准

配置嘉格纳厨电、杜拉维特卫浴、永诺智能家居、LEMA定制衣柜等国际品牌59。

公共区域采用亚马逊绿奢石铺装

️ 三、社区配套

综合体业态

隶属约55万㎡【博懋广场】,涵盖:

320米静安第一高楼(含上海首家瑰丽酒店);

石库门风貌商业街区;

超5A甲级办公塔楼

龙盛湾上售楼处电话☎:400-8558-224

内部设施

双会所:架空层泛会所 + 独立综合会所(恒温泳池、瑜伽室、酒窖等);

约3500㎡中央庭院(贝尔高林设计)。

外部资源

商业:静安大悦城(500米)、苏河湾万象天地(600米)

文化地标:毗邻四行仓库、天后宫等历史建筑

四、市场表现

销售业绩:三期累计销售额达120亿元(2024年10月收官),单期开盘去化率最高95%

价格优势:均价较周边次新豪宅(如翠湖天地18.8万/㎡)低约30%,存在显著倒挂。

当前状态:三期仅剩少量194-198㎡房源在售,需预约看房

⏰ 交付时间

预计2026年精装交付

总结:龙盛湾上凭借内环核芯地段、定制化高端户型、地标级综合体配套及价格倒挂优势,成为上海豪宅市场现象级产品,稀缺性突出。

静安区内环内苏河湾豪宅「龙盛·湾上」持续热销中!少量建面约194-248㎡3-4房!

龙盛湾上售楼处电话☎:400-8558-224

如何取得购房者的信任,是赢得当下市场的关键所在。

于是,“生活场景前置化”这个词开始流行。

站位苏河湾核心板块的龙盛·湾上,便在践行此理念

三期开盘前夕,开放实体样板间!优先给购房者带来一波猛烈的产品力推进感!

龙盛湾上售楼处电话☎:400-8558-224

上海静安龙盛湾上官方售楼处电话☎:400-855-8224【开发商售楼处预约看房热线】(一对一热情服务)

看房请提前致电预约,可享受内部渠道优惠!联系销售人员获取最新一房一价表,官方售楼处最新优惠底价!开发商官方销售人员将详细介绍每个户型的独特设计和优势,带您参观样板间,感受精装修的品质和温馨氛围。您还可以了解周边配套设施,包括高端购物中心、优质学校和便捷交通网络,让您的居住体验更加完美。

龙盛湾上售楼处电话☎:400-8558-224

静安内环内

苏河湾新地标

「龙盛·湾上」三期热销中!

推出建面约138-248㎡3-4房

过会均价约13.46万/㎡

全新实景样板房已开放!

没想到样板间还能这么做

想过实体样板间会做的很惊艳,但没想到会这么惊艳!

在实体样板房感受到的第一波冲击来自项目外立面。

不同于许多常规项目,龙盛·湾上在外立面上大胆突破,金属框架配以大面积玻璃幕墙,辨识度极强,堪称静安苏河湾崭新的“视觉符号”!

龙盛湾上售楼处电话☎:400-8558-224✔✔✔【预约☎】

上海静安龙盛湾上官方售楼处电话☎:400-855-8224【开发商售楼处预约看房热线】(一对一热情服务)

施工中的外立面实拍图

对产品室内的期待,也是从高颜值的外立面开始的。

龙盛湾上售楼处电话☎:400-8558-224

果不其然,内部空间处处都充满“反工业化”的定制感。

进入实景样板房,入目首先看到的是“艺术感满满”的入户大门。

大门是BUNKER意大利原装进口系统装甲门,广泛运用于欧洲豪宅市场。大门整体色调偏棕色,没有过多图案花纹,简单却也耐看,配合门两侧肌理清晰可辨的石壁,扑面而来全是安全感和高级感。

实体样板间大门实拍图

相比市面上常见大门,湾上再升一级!关门以后,门底部的弹性密封条会自动弹出,确保门缝完全密封,进一步提升隔音效果。

龙盛湾上售楼处电话☎:400-8558-224

整个空间设计更是主打一个“尽量弱化线条,展现更完美的整体感”

全屋地面、墙面大量铺砌石材,且色调和谐统一,为业主的高级品味提供了绝佳展演空间。龙盛湾上售楼处电话☎:400-8558-224

实体样板间客厅实拍图

客餐厅地板选择了源自土耳其的新白金石材,铺设工艺先进,以至于几乎完全看不到缝隙,浑然天成一种自然流畅的视觉美。

实体样板间细节实拍图

卧室则采用拼接更加细腻的实木复合地板,且更多采用斜拼,工艺复杂,精奢质感纤毫毕现。

龙盛湾上售楼处电话☎:400-8558-224✔✔✔【预约☎】

上海静安龙盛湾上官方售楼处电话☎:400-855-8224【开发商售楼处预约看房热线】(一对一热情服务)

实体样板间细节实拍图

这样设计繁复精致的卧室地板,在上海新房中其实非常罕见。

为什么罕见呢?

答案很简单:越是复杂的工艺越费钱。

但龙盛·湾上还是做了。

为了让整个项目更有质感,龙盛·湾上还在一些我们平时很容易忽略的地方下苦功夫。

比如,门把手。

细致到掌心。

湾上把它做成了金属圆形带花纹的,更美观的同时,握感也更好,真的

龙盛湾上售楼处电话☎:400-8558-224

实体样板间细节实拍图

比如,皮革包裹的收纳衣柜。

龙盛湾上售楼处电话☎:400-8558-224

皮革,在湾上的样板间,出境频率很高。

当然,这也很容易理解。

皮革自然纹理的美感能够轻松融入整个家装,提升各种家居色彩搭配,营造出一种高端而温馨的生活氛围。

龙盛湾上售楼处电话☎:400-8558-224✔✔✔【预约☎】

上海静安龙盛湾上官方售楼处电话☎:400-855-8224【开发商售楼处预约看房热线】(一对一热情服务)

实体样板间细节实拍图

再比如,定制化开关。

面板采用优质纯金属材质和先进的激光镂空雕刻技术,能够清晰显示每个按键的功能的同时,又展现一种高科技感。

实体样板间细节实拍图

实体样板间细节实拍图

有人说:好的厨卫,能减少你买房之后80%的烦恼。

这两个部分,当然要压轴介绍。

龙盛湾上售楼处电话☎:400-8558-224✔✔✔【预约☎】

上海静安龙盛湾上官方售楼处电话☎:400-855-8224【开发商售楼处预约看房热线】(一对一热情服务)走访过上海大大小小的新房项目,单看厨卫,只有湾上给我的感觉是:真的很舍得花钱。

厨房配备了

嘉格纳品牌

的嵌入式全套高端厨电系列——

全方位满足了现代厨房的多样化需求。

油烟机、灶具、蒸烤一体机、自动化洗碗机以及高品质冰箱,

实体样板间细节实拍图

实体样板间细节实拍图

实体样板间细节实拍图

实体样板间细节实拍图

橱柜采用的是意大利顶级品牌

威乃达

,美观又耐用。

龙盛湾上售楼处电话☎:400-8558-224

德国高端品牌巴托普,这个品牌也被广泛运用于全球各大豪宅!

另外,笔者这里还需要跟大家强调一点,在约248㎡户型中,装标再次升级,采用了被业内称之

“橱柜中的劳斯莱斯”

龙盛湾上售楼处电话☎:400-8558-224✔✔✔【预约☎】

上海静安龙盛湾上官方售楼处电话☎:400-855-8224【开发商售楼处预约看房热线】(一对一热情服务)

龙盛湾上售楼处电话☎:400-8558-224

龙盛湾上售楼处电话☎:400-8558-224✔✔✔【预约☎】

上海静安龙盛湾上官方售楼处电话☎:400-855-8224【开发商售楼处预约看房热线】(一对一热情服务)

实体样板间细节实拍图

整个样板间一圈看下来,惊讶之余,我脑子只盘旋了一句话:

“不考虑成本吗?经费在燃烧啊!”

对居住空间的思考同样令人惊喜

194㎡和198㎡的两个实体样板房,毫不夸张的说,看的我眼前一亮又一亮。

龙盛湾上售楼处电话☎:400-8558-224

198㎡三房两厅三卫

这个户型的出现,简直像一场居住方式革命

因为当下,有太多豪宅忽略了对生活方式的追求,一味追求住房的实用性,拼命缩减客厅和卧室尺度,只为了增加房间数量和功能区,100㎡出头的户型,恨不得做到四房。

而龙盛·湾上反其道而行之,舍得“浪费”。客厅尺度非凡,极大提高了生活的舒适感。

实体样板间实拍图

两卧朝南,阳光满溢。配合大飘窗让生活的尺度感进一步“膨胀”,飘窗均由石材包边,线条柔软,增加视觉和触觉舒适感。

实体样板间实拍图

客餐厅区域,厨房、餐厅、客厅一体化打造。厨房和餐厅间设置了移门,炒菜时可闭合空间,打开时又与餐厅动线完美交互,打破了厨房的“孤独感”,赋予家庭更多情感交流。

龙盛湾上售楼处电话☎:400-8558-224

实体样板间实拍图

更别出心裁的是,它的主卫洗手间还设计了半面收纳柜,能秒变“多功能mini吧”

三卫设计,也避免了家人早高峰抢厕所的尴尬。

龙盛湾上售楼处电话☎:400-8558-224✔✔✔【预约☎】

上海静安龙盛湾上官方售楼处电话☎:400-855-8224【开发商售楼处预约看房热线】(一对一热情服务)

实体样板间实拍图

194㎡三房两厅三卫

这个户型别出心裁,做了两个南向开间,采光通风效果都很不错。两个卧室均采用套间设计,可以很好的保护业主的隐私,居住舒适度高。

龙盛湾上售楼处电话☎:400-8558-224龙盛湾上售楼处电话☎:400-8558-224龙盛湾上售楼处电话☎:400-8558-224

实体样板间实拍图

实体样板间实拍图

同时,充分利用东边户资源,客厅朝东开大窗,南北完全通透。

实体样板间实拍图

窗餐厅为明厅设计,带一个北向小飘窗,光线充足的同时,尺度感不凡。

龙盛湾上售楼处电话☎:400-8558-224

实体样板间实拍图

这两个样板间,最难能可贵之处在于,每个场景都不是悬浮的想象,而是一条条具体的线索,指向充满情调和高级感的生活方式。

而它们的底色,是流水线之外,开发商龙盛置地对生活态度的缩影。

更多户型图抢鲜看!

龙盛湾上售楼处电话☎:400-8558-224龙盛湾上售楼处电话☎:400-8558-224龙盛湾上售楼处电话☎:400-8558-224

龙盛湾上售楼处电话☎:400-8558-224✔✔✔【预约☎】

上海静安龙盛湾上官方售楼处电话☎:400-855-8224【开发商售楼处预约看房热线】(一对一热情服务)

龙盛湾上售楼处电话☎:400-8558-224

今年上半年,中央高层会议曾指出,地产业“要结合房地产市场供求关系的新变化、人民群众对优质住房的新期待……抓紧构建房地产发展新模式,促进房地产高质量发展”。

而龙盛湾上每寸空间,都基于对中国高净值家庭生活方式的全新洞察,完美回应高端改善群体“对优质住房的新期待”

这一点,从户型上也能看出一二。

03

更懂生活的开发商

更有价值的生活场

斯蒂芬·霍尔曾说过:“居住的价值,隐藏于其中最核心的是其与城市之间的关系,只有那些既能享受稀缺自然资源,又有俯瞰城市繁华背景的区域,才是最有价值的居所。”

在全球地产界,有条通行的“豪宅6要素”和斯蒂芬·霍尔的观点不谋而合。

所谓“豪宅6要素”,即:城市经济、地段价值、山水资源、人文教育、大师精著、高端品质。

龙盛·湾上竟能一一对号入座!

它的“地段价值”毋庸多疑,静安是上海老“顶流”,已经长红几十年。

至于“城市经济”静安区蝉联八年中心城区榜首的一般公共预算收入足以说明一二。

数据来源:上海统计公众号《2023年上海市国民经济和社会发展统计公报》

上观新闻《解析2023年上海中心城区经济数据》

至于“山水资源”,项目距离苏州河直线仅约600米(数据来源:百度地图)。

龙盛湾上售楼处电话☎:400-8558-224龙盛湾上售楼处电话☎:400-8558-224

从家门口到苏河畔,一路上有不仅有大悦城、万象天地等商业,更点缀着没顶画廊、suhe haus苏河皓司、苏富比空间等艺术机构,整个街区充满浓郁人文艺术氛围。

龙盛湾上售楼处电话☎:400-8558-224龙盛湾上售楼处电话☎:400-8558-224龙盛湾上售楼处电话☎:400-8558-224龙盛湾上售楼处电话☎:400-8558-224

明月清风无价,苏河湾的夜景更是无价。

龙盛湾上售楼处电话☎:400-8558-224✔✔✔【预约☎】

上海静安龙盛湾上官方售楼处电话☎:400-855-8224【开发商售楼处预约看房热线】(一对一热情服务)

静安内环内

苏河湾新地标

「龙盛·湾上」三期尾盘

推出建面约138-248㎡3-4房

过会均价约13.46万/㎡

龙盛湾上售楼处电话☎:400-8558-224✔✔✔【预约☎】

上海静安龙盛湾上官方售楼处电话☎:400-855-8224【开发商售楼处预约看房热线】(一对一热情服务)

【上海静安龙盛湾上】

售楼处电话☎:400-8558-224【售楼处预约热线】(一对一热情服务)

看房请务必提前致电销售确认时间,只有预约客户才能享受开发商提供的内部优惠以及专属的老客户推荐奖励!我们提供专业的一对一热情服务,助您以专业视角挑选理想的房产。

龙盛湾上售楼处电话:400-8558-224✔✔│龙盛湾上官方售楼处地址发布:上海静安龙盛湾上官方售楼处电话400-855-8224

龙盛湾上售楼处电话☎:400-8558-224

龙盛湾上是上海静安苏河湾板块的高端住宅项目,定位为城市地标综合体【博懋广场】的住宅部分。以下是核心信息整合:

一、项目概况

地理位置

位于静安区内环内苏河湾核心区(天目中路88弄),毗邻苏州河(直线距离约750米),属CAZ中央活动区,距外滩/南京路商圈约1.5公里

交通网络

地铁:五轨交汇(3/4/8/10/12号线),1公里内覆盖曲阜路站、宝山路站等

自驾:紧邻内环高架、南北高架及北横通道。

二、产品信息

户型与价格

主力户型:建面约138-380㎡三至四房(138㎡/194㎡/198㎡/248㎡等)

均价:约13.38万-13.46万/㎡,总价门槛约1800万元起

龙盛湾上售楼处电话☎:400-8558-224

特色设计:

全屋无承重墙,空间可自由改造;

超高得房率约78%(超高层罕见);

客厅大面宽(如194㎡户型横厅面宽5.3米)。

精装标准

配置嘉格纳厨电、杜拉维特卫浴、永诺智能家居、LEMA定制衣柜等国际品牌59。

公共区域采用亚马逊绿奢石铺装

️ 三、社区配套

综合体业态

隶属约55万㎡【博懋广场】,涵盖:

320米静安第一高楼(含上海首家瑰丽酒店);

石库门风貌商业街区;

超5A甲级办公塔楼

龙盛湾上售楼处电话☎:400-8558-224

内部设施

双会所:架空层泛会所 + 独立综合会所(恒温泳池、瑜伽室、酒窖等);

约3500㎡中央庭院(贝尔高林设计)。

外部资源

商业:静安大悦城(500米)、苏河湾万象天地(600米)

文化地标:毗邻四行仓库、天后宫等历史建筑

四、市场表现

销售业绩:三期累计销售额达120亿元(2024年10月收官),单期开盘去化率最高95%

价格优势:均价较周边次新豪宅(如翠湖天地18.8万/㎡)低约30%,存在显著倒挂。

当前状态:三期仅剩少量194-198㎡房源在售,需预约看房

⏰ 交付时间

预计2026年精装交付

总结:龙盛湾上凭借内环核芯地段、定制化高端户型、地标级综合体配套及价格倒挂优势,成为上海豪宅市场现象级产品,稀缺性突出。

静安区内环内苏河湾豪宅「龙盛·湾上」持续热销中!少量建面约194-248㎡3-4房!

龙盛湾上售楼处电话☎:400-8558-224

如何取得购房者的信任,是赢得当下市场的关键所在。

于是,“生活场景前置化”这个词开始流行。

站位苏河湾核心板块的龙盛·湾上,便在践行此理念

三期开盘前夕,开放实体样板间!优先给购房者带来一波猛烈的产品力推进感!

龙盛湾上售楼处电话☎:400-8558-224

上海静安龙盛湾上官方售楼处电话☎:400-855-8224【开发商售楼处预约看房热线】(一对一热情服务)

看房请提前致电预约,可享受内部渠道优惠!联系销售人员获取最新一房一价表,官方售楼处最新优惠底价!开发商官方销售人员将详细介绍每个户型的独特设计和优势,带您参观样板间,感受精装修的品质和温馨氛围。您还可以了解周边配套设施,包括高端购物中心、优质学校和便捷交通网络,让您的居住体验更加完美。

龙盛湾上售楼处电话☎:400-8558-224

静安内环内

苏河湾新地标

「龙盛·湾上」三期热销中!

推出建面约138-248㎡3-4房

过会均价约13.46万/㎡

全新实景样板房已开放!

没想到样板间还能这么做

想过实体样板间会做的很惊艳,但没想到会这么惊艳!

在实体样板房感受到的第一波冲击来自项目外立面。

不同于许多常规项目,龙盛·湾上在外立面上大胆突破,金属框架配以大面积玻璃幕墙,辨识度极强,堪称静安苏河湾崭新的“视觉符号”!

龙盛湾上售楼处电话☎:400-8558-224✔✔✔【预约☎】

上海静安龙盛湾上官方售楼处电话☎:400-855-8224【开发商售楼处预约看房热线】(一对一热情服务)

施工中的外立面实拍图

对产品室内的期待,也是从高颜值的外立面开始的。

龙盛湾上售楼处电话☎:400-8558-224

果不其然,内部空间处处都充满“反工业化”的定制感。

进入实景样板房,入目首先看到的是“艺术感满满”的入户大门。

大门是BUNKER意大利原装进口系统装甲门,广泛运用于欧洲豪宅市场。大门整体色调偏棕色,没有过多图案花纹,简单却也耐看,配合门两侧肌理清晰可辨的石壁,扑面而来全是安全感和高级感。

实体样板间大门实拍图

相比市面上常见大门,湾上再升一级!关门以后,门底部的弹性密封条会自动弹出,确保门缝完全密封,进一步提升隔音效果。

龙盛湾上售楼处电话☎:400-8558-224

整个空间设计更是主打一个“尽量弱化线条,展现更完美的整体感”

全屋地面、墙面大量铺砌石材,且色调和谐统一,为业主的高级品味提供了绝佳展演空间。龙盛湾上售楼处电话☎:400-8558-224

实体样板间客厅实拍图

客餐厅地板选择了源自土耳其的新白金石材,铺设工艺先进,以至于几乎完全看不到缝隙,浑然天成一种自然流畅的视觉美。

实体样板间细节实拍图

卧室则采用拼接更加细腻的实木复合地板,且更多采用斜拼,工艺复杂,精奢质感纤毫毕现。

龙盛湾上售楼处电话☎:400-8558-224✔✔✔【预约☎】

上海静安龙盛湾上官方售楼处电话☎:400-855-8224【开发商售楼处预约看房热线】(一对一热情服务)

实体样板间细节实拍图

这样设计繁复精致的卧室地板,在上海新房中其实非常罕见。

为什么罕见呢?

答案很简单:越是复杂的工艺越费钱。

但龙盛·湾上还是做了。

为了让整个项目更有质感,龙盛·湾上还在一些我们平时很容易忽略的地方下苦功夫。

比如,门把手。

细致到掌心。

湾上把它做成了金属圆形带花纹的,更美观的同时,握感也更好,真的

龙盛湾上售楼处电话☎:400-8558-224

实体样板间细节实拍图

比如,皮革包裹的收纳衣柜。

龙盛湾上售楼处电话☎:400-8558-224

皮革,在湾上的样板间,出境频率很高。

当然,这也很容易理解。

皮革自然纹理的美感能够轻松融入整个家装,提升各种家居色彩搭配,营造出一种高端而温馨的生活氛围。

龙盛湾上售楼处电话☎:400-8558-224✔✔✔【预约☎】

上海静安龙盛湾上官方售楼处电话☎:400-855-8224【开发商售楼处预约看房热线】(一对一热情服务)

实体样板间细节实拍图

再比如,定制化开关。

面板采用优质纯金属材质和先进的激光镂空雕刻技术,能够清晰显示每个按键的功能的同时,又展现一种高科技感。

实体样板间细节实拍图

实体样板间细节实拍图

有人说:好的厨卫,能减少你买房之后80%的烦恼。

这两个部分,当然要压轴介绍。

龙盛湾上售楼处电话☎:400-8558-224✔✔✔【预约☎】

上海静安龙盛湾上官方售楼处电话☎:400-855-8224【开发商售楼处预约看房热线】(一对一热情服务)走访过上海大大小小的新房项目,单看厨卫,只有湾上给我的感觉是:真的很舍得花钱。

厨房配备了

嘉格纳品牌

的嵌入式全套高端厨电系列——

全方位满足了现代厨房的多样化需求。

油烟机、灶具、蒸烤一体机、自动化洗碗机以及高品质冰箱,

实体样板间细节实拍图

实体样板间细节实拍图

实体样板间细节实拍图

实体样板间细节实拍图

橱柜采用的是意大利顶级品牌

威乃达

,美观又耐用。

龙盛湾上售楼处电话☎:400-8558-224

德国高端品牌巴托普,这个品牌也被广泛运用于全球各大豪宅!

另外,笔者这里还需要跟大家强调一点,在约248㎡户型中,装标再次升级,采用了被业内称之

“橱柜中的劳斯莱斯”

龙盛湾上售楼处电话☎:400-8558-224✔✔✔【预约☎】

上海静安龙盛湾上官方售楼处电话☎:400-855-8224【开发商售楼处预约看房热线】(一对一热情服务)

龙盛湾上售楼处电话☎:400-8558-224

龙盛湾上售楼处电话☎:400-8558-224✔✔✔【预约☎】

上海静安龙盛湾上官方售楼处电话☎:400-855-8224【开发商售楼处预约看房热线】(一对一热情服务)

实体样板间细节实拍图

整个样板间一圈看下来,惊讶之余,我脑子只盘旋了一句话:

“不考虑成本吗?经费在燃烧啊!”

对居住空间的思考同样令人惊喜

194㎡和198㎡的两个实体样板房,毫不夸张的说,看的我眼前一亮又一亮。

龙盛湾上售楼处电话☎:400-8558-224

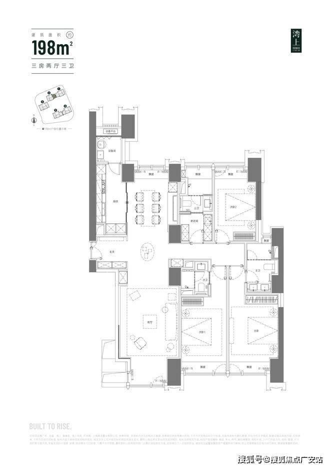
198㎡三房两厅三卫

这个户型的出现,简直像一场居住方式革命

因为当下,有太多豪宅忽略了对生活方式的追求,一味追求住房的实用性,拼命缩减客厅和卧室尺度,只为了增加房间数量和功能区,100㎡出头的户型,恨不得做到四房。

而龙盛·湾上反其道而行之,舍得“浪费”。客厅尺度非凡,极大提高了生活的舒适感。

实体样板间实拍图

两卧朝南,阳光满溢。配合大飘窗让生活的尺度感进一步“膨胀”,飘窗均由石材包边,线条柔软,增加视觉和触觉舒适感。

实体样板间实拍图

客餐厅区域,厨房、餐厅、客厅一体化打造。厨房和餐厅间设置了移门,炒菜时可闭合空间,打开时又与餐厅动线完美交互,打破了厨房的“孤独感”,赋予家庭更多情感交流。

龙盛湾上售楼处电话☎:400-8558-224

实体样板间实拍图

更别出心裁的是,它的主卫洗手间还设计了半面收纳柜,能秒变“多功能mini吧”

三卫设计,也避免了家人早高峰抢厕所的尴尬。

龙盛湾上售楼处电话☎:400-8558-224✔✔✔【预约☎】

上海静安龙盛湾上官方售楼处电话☎:400-855-8224【开发商售楼处预约看房热线】(一对一热情服务)

实体样板间实拍图

194㎡三房两厅三卫

这个户型别出心裁,做了两个南向开间,采光通风效果都很不错。两个卧室均采用套间设计,可以很好的保护业主的隐私,居住舒适度高。

龙盛湾上售楼处电话☎:400-8558-224龙盛湾上售楼处电话☎:400-8558-224龙盛湾上售楼处电话☎:400-8558-224

实体样板间实拍图

实体样板间实拍图

同时,充分利用东边户资源,客厅朝东开大窗,南北完全通透。

实体样板间实拍图

窗餐厅为明厅设计,带一个北向小飘窗,光线充足的同时,尺度感不凡。

龙盛湾上售楼处电话☎:400-8558-224

实体样板间实拍图

这两个样板间,最难能可贵之处在于,每个场景都不是悬浮的想象,而是一条条具体的线索,指向充满情调和高级感的生活方式。

而它们的底色,是流水线之外,开发商龙盛置地对生活态度的缩影。

更多户型图抢鲜看!

龙盛湾上售楼处电话☎:400-8558-224龙盛湾上售楼处电话☎:400-8558-224龙盛湾上售楼处电话☎:400-8558-224

龙盛湾上售楼处电话☎:400-8558-224✔✔✔【预约☎】

上海静安龙盛湾上官方售楼处电话☎:400-855-8224【开发商售楼处预约看房热线】(一对一热情服务)

龙盛湾上售楼处电话☎:400-8558-224

今年上半年,中央高层会议曾指出,地产业“要结合房地产市场供求关系的新变化、人民群众对优质住房的新期待……抓紧构建房地产发展新模式,促进房地产高质量发展”。

而龙盛湾上每寸空间,都基于对中国高净值家庭生活方式的全新洞察,完美回应高端改善群体“对优质住房的新期待”

这一点,从户型上也能看出一二。

03

更懂生活的开发商

更有价值的生活场

斯蒂芬·霍尔曾说过:“居住的价值,隐藏于其中最核心的是其与城市之间的关系,只有那些既能享受稀缺自然资源,又有俯瞰城市繁华背景的区域,才是最有价值的居所。”

在全球地产界,有条通行的“豪宅6要素”和斯蒂芬·霍尔的观点不谋而合。

所谓“豪宅6要素”,即:城市经济、地段价值、山水资源、人文教育、大师精著、高端品质。

龙盛·湾上竟能一一对号入座!

它的“地段价值”毋庸多疑,静安是上海老“顶流”,已经长红几十年。

至于“城市经济”静安区蝉联八年中心城区榜首的一般公共预算收入足以说明一二。

数据来源:上海统计公众号《2023年上海市国民经济和社会发展统计公报》

上观新闻《解析2023年上海中心城区经济数据》

至于“山水资源”,项目距离苏州河直线仅约600米(数据来源:百度地图)。

龙盛湾上售楼处电话☎:400-8558-224龙盛湾上售楼处电话☎:400-8558-224

从家门口到苏河畔,一路上有不仅有大悦城、万象天地等商业,更点缀着没顶画廊、suhe haus苏河皓司、苏富比空间等艺术机构,整个街区充满浓郁人文艺术氛围。

龙盛湾上售楼处电话☎:400-8558-224龙盛湾上售楼处电话☎:400-8558-224龙盛湾上售楼处电话☎:400-8558-224龙盛湾上售楼处电话☎:400-8558-224

明月清风无价,苏河湾的夜景更是无价。

龙盛湾上售楼处电话☎:400-8558-224✔✔✔【预约☎】

上海静安龙盛湾上官方售楼处电话☎:400-855-8224【开发商售楼处预约看房热线】(一对一热情服务)

静安内环内

苏河湾新地标

「龙盛·湾上」三期尾盘

推出建面约138-248㎡3-4房

过会均价约13.46万/㎡

龙盛湾上售楼处电话☎:400-8558-224✔✔✔【预约☎】

上海静安龙盛湾上官方售楼处电话☎:400-855-8224【开发商售楼处预约看房热线】(一对一热情服务)

【上海静安龙盛湾上】

售楼处电话☎:400-8558-224【售楼处预约热线】(一对一热情服务)

看房请务必提前致电销售确认时间,只有预约客户才能享受开发商提供的内部优惠以及专属的老客户推荐奖励!我们提供专业的一对一热情服务,助您以专业视角挑选理想的房产。

全部

相关资讯

报名成功
稍后会有专业的置业顾问联系您
返回楼盘

频道导航

返回首页

看房小程序

APP下载

电话拨通后,请您手动拨打分机号

确定拨打电话

电话号码:

分机号:(可能需要拨分机号)