招商中旅观境售楼处电话:400-8558-224✔✔│招商中旅观境官方售楼处地址发布:上海宝山招商中旅观境官方售楼处电话400-855-8224
北上海TOD精奢人居标杆
7号线潘广路站66万方TOD大城全面进阶
招商中旅·观境
加推89-110㎡产品 共计142套
89㎡户型首次推出
过会均价47466元/㎡ 比前期便宜3000
前期少量110-144㎡3-4房在售
同内环豪宅同级别的精装标准
超配酒廊,泳池,健身等功能的星级会所
下沉庭院、架空层、酒店式入口、奢华公区···
招商中旅观境售楼处电话☎:400-8558-224
上海宝山招商中旅观境官方售楼处电话☎:400-855-8224✔✔✔(预约看房热线)
看房请提前致电预约,可享受内部渠道优惠!联系销售人员获取最新一房一价表,官方售楼处最新优惠底价!开发商官方销售人员将详细介绍每个户型的独特设计和优势,带您参观样板间,感受精装修的品质和温馨氛围。您还可以了解周边配套设施,包括高端购物中心、优质学校和便捷交通网络,让您的居住体验更加完美。
招商中旅观境售楼处电话☎:400-8558-224
招商中旅观境售楼处电话☎:400-8558-224
01、
基本信息
招商中旅观境售楼处电话☎:400-8558-224✔✔✔【预约☎】
上海宝山招商中旅观境官方售楼处电话☎:400-855-8224✔✔✔(预约看房热线)
2024年7月9日,招商蛇口&中旅投资拿下宝山顾村7号线潘广路站旁地块。
楼板价:约22252元/㎡,地块四至范围:东至0314-06 地块(公共绿地),南至0314-06 地块(公共绿地),西至0308-01 地块(公共绿地),北至言观路。
流体美学:以设计艺术品的态度来建造房子
项目采用鎏金塔冠造型,灵感来源于国际邮轮港的曲线,流光美学的外立面,既有辨识度又有质感,是未来业主身份的象征。阳光倾泻而下,在不同光影与环境下,让家成为一件艺术品。
镜面美学:不仅美观还很实用
整个建筑立面,被大面积的镜面玻璃覆盖,于外赋予建筑如同钻石一般的光感,于内极大地拓宽了室内的视野,让自然光线无拘无束地洒入每一个空间。
立面部分,微弧造型,配置超大窗墙比,非对称线条勾勒经典比例建筑体量,消解了建筑的庄严和冷峻,赋予更强的立体感,犹如画框一般,多了一份艺术沉淀。
招商中旅观境售楼处电话☎:400-8558-224
同时,将轻法雅奢的圆润线条贯彻于大门雨棚、入户门头之间,赋予建筑艺术灵动之意,重塑大城人居美学。
社区上,项目享四重酒店式归家
第一重:约70⽶超⼤尺度酒店感门庭,打造酒店般的港湾式落客。
第⼆重:酒店式礼品⼤堂,以星级酒店审美融合⾮遗技艺,每次回家宛如⼊住酒店的check in。
第三重:浮岛⽔庭,下沉式中庭花园,以⽔境、浮岛、密林,构建都市中的谧境。
第四重:⼊户单元门头延续奢华酒店的美学质感。
招商中旅·观境,带来的不仅仅是美学体验上的升级,本次地块更是配置了约2000㎡的无边际高定会所,带来全方位的奢享升级。
据悉,未来该会所,将成为业主日常休闲的好去处,配置了行政酒廊、无边泳池、健身房和私宴厅等功能。
想象一下,未来业主下楼即可运动休闲,高端的健身器材,丰富的健身配套,都可以满足业主日常的健康所需;亦或是接纳来客,喝杯咖啡洽谈商务;或者年末预定晚宴等等……
招商中旅观境售楼处电话☎:400-8558-224✔✔✔【预约☎】
上海宝山招商中旅观境官方售楼处电话☎:400-855-8224✔✔✔(预约看房热线)
多功能场景,足以满足业主的各类需求。要知道,在外环,配置泳池会所的商品房项目,屈指可数,上海星河湾、颛桥紫薇花园……虽然在外环,但这些配备了泳池会所的楼盘,都是一线豪宅标准。
酒店级礼序,塑造度假园林生活
酒店级礼序,绝不仅仅是简单说说。招商中旅·观境所做的,是归家礼制、社区景观等方方面面的全面奢享高定。
先说归家礼制,四重酒店式归家:
第一重,配置约70米宽酒店感门厅,回家的第一眼,就有强烈视觉冲击,港湾式落客,尊贵感油然而生;
第二重,星级酒店式的礼宾大堂,挑高带来的庄重感,每次回家都像来到五星级酒店check in;
招商中旅观境售楼处电话☎:400-8558-224
未来业主出行等车,也完全可以在此稍作等候,奢石的奢华感,辅以温润的灯光,宁静安逸。
招商中旅观境售楼处电话☎:400-8558-224✔✔✔【预约☎】
上海宝山招商中旅观境官方售楼处电话☎:400-855-8224✔✔✔(预约看房热线)
第三重,下沉式的中庭花园,⽔境、浮岛、密林,构建都市中的谧境,摩登的水院,华灯映入水池,映出池底的金光色,雍容华贵,畅享宁静;
第四重,来到入户门厅,奢石铝板塑造厚重感,弧形的屋檐,带来流线型的美感。
整一套归家仪式下来,生活的烦忧,统统抛诸脑后,只剩下家的温馨。
招商中旅观境售楼处电话☎:400-8558-224✔✔✔【预约☎】
上海宝山招商中旅观境官方售楼处电话☎:400-855-8224✔✔✔(预约看房热线)02、
推售信息
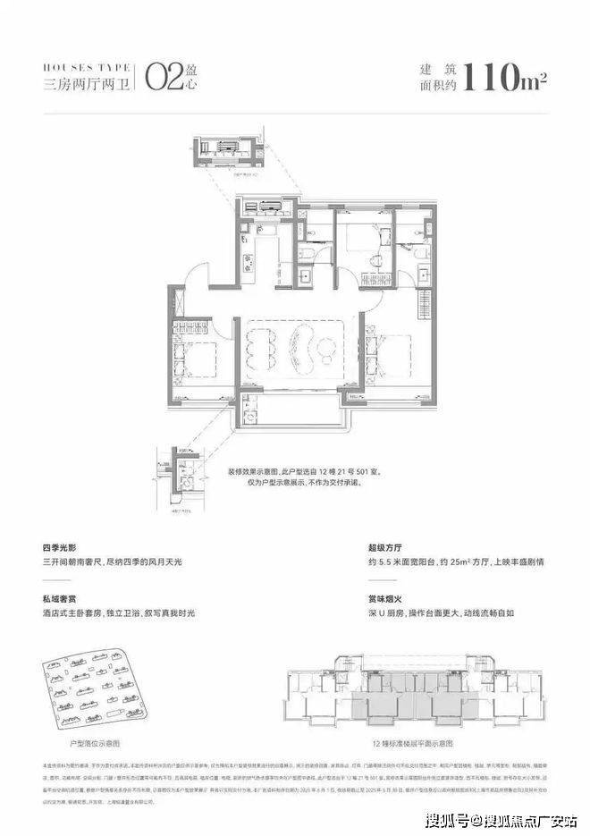
招商中旅·观境加推89-110㎡3房,过会均价47466元/㎡,共计142套,89㎡户型首次推出,前期建面约110-144㎡少量房源在售。
招商中旅观境售楼处电话☎:400-8558-224
大横厅+约5.5米面宽的阳台,尺度感惊人。
并且,在撑起气场的同时,也能为生活增添更多的场景想象。
3房4飘窗1阳台的设计,更是延伸了套内的视野,也增加了实际的居住空间。
尤其是边套约270度的无柱飘窗,更是尺度感和实用性拉满。
招商中旅观境售楼处电话☎:400-8558-224✔✔✔【预约☎】
上海宝山招商中旅观境官方售楼处电话☎:400-855-8224✔✔✔(预约看房热线)
整个户型是四开间朝南+南北通透的飞机户型。
在传统的四房领域,2房朝北几乎是逃不掉的问题,但在招商中旅·观境,做到了三间卧室朝南,并且主卧拥有一个约270度的主卧无柱转角飘窗。
整个户型的采光、通风、实际使用空间拉满。
细节方面,主卧套房设计,保证了私密性。主卫的双台盆设计更是相当贴心。能实现男女主人共同洗漱的温馨场景。
总的来说,从格调、定位、风格、用料、宜居性、社区配套的丰富性..各个角度来看,招商中旅·观境都能称得上是北境的TOP1。
招商中旅观境售楼处电话☎:400-8558-224✔✔✔【预约☎】
上海宝山招商中旅观境官方售楼处电话☎:400-855-8224✔✔✔(预约看房热线)03、
区域版块
北上海能级兑现 新顾城开启中心时代
❍上海南北转型战略 宝山树立北上海门户定位
宝山作为上海链接长三角北翼门户,打造现代化、创新型、⽣态化国际⼤都市主城区和绿⾊低碳转型样板区,在上海南北转型契机之下, 融入沿海沿江经济带,能级再度提升。
❍6大TOD+超级目的地 宝山主城规划加速兑现
宝山汇聚了招商等众多最具实力的开发力量,筹划丰翔路,潘广路、南大路、宝山站、通南路、呼兰路6大TOD,在上海各区中遥遥领先。
❍新顾城 北上海崛起的必然节点
新顾城定位为上海北部产城相融合、配套高标准、宜居多元化的大型居住社区,必然承接宝山产业升级转型和创新发展的海量人才居住需求,成为北上海宜居核心。简单说一下项目,招商中旅·观境毗邻7号线潘广路站,2站顾村公园,并途经上大、长寿路,直达静安寺。
大家知道,这里规划了招商花园城X,招商时代乐章也在隔壁,可以说共筑潘广路TOD大城。
上一个招商花园城X项目位于浦东曹路,秉持“X+商业”差异化策略,打造了曹路市集、室外36米的“天环飞瀑”、屋顶星际跑道等特色场景,并以超200个的全业态品牌数量,超50%的区域首店,成功点燃区域消费热情。
开业当日,曹路招商花园城客流破10万人次(工作日),开业前4天总客流超58万人次、总销售额逾3500万元。而这一次潘广路的招商花园城X商业会比曹路更高能级、更大体量。【20+主次力店 共创城市奇幻之旅】

预计引入20+主次力店,在X+商业理念,塑造缤纷场景,创造多元体验,带你开启城市中的奇幻之旅。招商中旅观境售楼处电话☎:400-8558-224
❍人文x生态:超级场景 打卡多元体验
家附近的微度假。引入海洋馆、冰雪世界、恐龙园等IP场景赋能,打造沉浸式空间,北上海城市微度假的一道靓丽名片。
商业上,附近还有龙湖天街商业中⼼、正⼤乐城、宝龙⼴场、旭辉U天地。
招商中旅观境售楼处电话☎:400-8558-224✔✔✔【预约☎】
上海宝山招商中旅观境官方售楼处电话☎:400-855-8224✔✔✔(预约看房热线)
【上海宝山招商中旅观境】
售楼处电话☎:400-8558-224【售楼处预约热线】(一对一热情服务)
看房请务必提前致电销售确认时间,只有预约客户才能享受开发商提供的内部优惠以及专属的老客户推荐奖励!我们提供专业的一对一热情服务,助您以专业视角挑选理想的房产。
招商中旅观境售楼处电话:4008558224【开发商售楼中心热线】招商中旅观境营销中心热线400-8558-224招商中旅观境售楼处地址400-8558-224,楼盘项目全面介绍,本电话为开发商提供线 上预约售楼电话,楼盘项目全面介绍(包含楼盘简介,均价,房价,现房,期房,别墅,叠墅,大平层,价格,楼盘地址,户型图,交通规划,备案价,备案名,项目配套,样板间,开盘时间,认筹时间,楼盘详情,售楼处电话,最新消息,最新详情,周边配套,一房一价,最新进展等详情咨询)楼盘详情丨价格丨更多优惠丨机不可失丨欢迎致电丨诚邀品鉴!售楼处位置丨特价房丨工抵房丨剩余房源丨户型图丨最新消息丨免责声明:将文章内容综合来源于网络、只作分享,版权归原作者所有!!如有侵权,请联系我们,我们第一时间处理如有问题欢迎来电咨询,专业一对一热情服务,让您用专业眼光去买房。如果您想了解更多楼盘详情,欢迎提前预约拨打招商中旅观境售楼处电话☎400_855_8224✔✔✔
关键词
股票解除限售;市场流动性;公司治理;股价波动;投资策略
一、引言
股票解除限售,是指原本被限制交易的股票在满足一定条件后获得自由流通的权利。这一制度安排在资本市场中扮演着重要角色,其影响涉及市场流动性、公司治理、股价波动等多个方面。对于投资者而言,股票解除限售既可能带来投资机遇,也可能引发潜在风险。因此,深入探讨股票解除限售的利弊,对于投资者制定合理的投资策略具有重要意义。
二、股票解除限售的基本概念与制度背景
2.1 股票解除限售的基本概念
股票解除限售,是指原本被限制交易的股票在满足一定条件后获得自由流通的权利。这些限制可能源于公司上市时的承诺、股权激励计划、定向增发等安排。
2.2 股票解除限售的制度背景
股票解除限售的制度背景主要源于对市场稳定性的考虑。在股票上市初期,为了防止股价因大量抛售而剧烈波动,维护市场稳定,公司往往会对特定股东的股票进行限售处理。
三、股票解除限售的利处分析
3.1 提高市场流动性
股票解除限售后,市场上的股票供应增加,交易量也会相应提升。这有助于提高市场的流动性,使得投资者更容易买入和卖出股票,提升整体市场效率。
以全志科技为例,2025年6月16日,该公司有23.01万股限制性股票解除限售上市流通,涉及激励对象12人。此次解除限售虽然占公司总股本的比例较小(0.03%),但仍然在一定程度上增加了市场的股票供应,提升了市场的流动性。
3.2 释放公司的真实价值
通过解除限售股票,市场可以更准确地反映公司的实际价值。如果公司经营良好,股价将稳步上涨,投资者信心增强;反之,股价下跌也能及时反映公司的经营状况,促使公司进行调整。
例如,某公司在解除限售股票后,由于业绩表现优异,市场对其未来发展前景充满信心,股价稳步上涨。这反映了市场对公司真实价值的认可,也体现了股票解除限售在释放公司真实价值方面的积极作用。
3.3 促进公司治理透明
股票解除限售通常伴随着信息披露的增加,公司需要更加透明地展示其经营状况和未来规划。这有助于提高公司治理水平,增强投资者的信任。
以特瑞斯为例,2025年6月10日,该公司发布股票解除限售公告,涉及常州鑫峰瑞企业管理合伙企业(有限合伙)和郑安力两名股东。此次解除限售不仅增加了市场的股票供应,还促使公司更加透明地展示其经营状况和未来规划,提高了公司治理水平。
四、股票解除限售的弊端分析
4.1 增加股价波动风险
大量股票解禁后,部分股东可能选择抛售股票,导致市场上供大于求,股价短期内可能出现剧烈波动。这对于持股较多的投资者来说,可能意味着不小的损失。
以某公司为例,在解除限售股票后,由于部分股东大量抛售股票,导致股价短期内大幅下跌。这给持股较多的投资者带来了不小的损失,也体现了股票解除限售在增加股价波动风险方面的弊端。
4.2 稀释股东权益
股票解除限售意味着市场上新增的股票数量增加,这可能导致每股收益(EPS)被稀释,从而影响股票的内在价值。
例如,某公司在解除限售股票后,由于新增股票数量的增加,导致每股收益被稀释。这影响了股票的内在价值,也给投资者带来了潜在的风险。
4.3 可能反映公司经营问题
大量解除限售股票的抛售,往往是内部股东对公司未来前景缺乏信心的表现。这可能是公司经营出现问题的信号,投资者需要警惕潜在的风险。
以恒拓开源为例,2025年6月12日,该公司有37.84万股股票解除限售上市流通,涉及股东武洲一名。此次解除限售虽然占公司总股本的比例较小(0.27%),但如果武洲选择大量抛售股票,可能引发市场对公司未来前景的担忧,进而影响股价。
五、股票解除限售的案例分析
5.1 全志科技案例
全志科技(300458.SZ)在2025年6月16日有23.01万股限制性股票解除限售上市流通,涉及激励对象12人。
00001.
解除限售原因:此次解除限售属于2023年限制性股票激励计划第一类限制性股票的第二个解除限售期。
00002.
00003.
市场影响:虽然此次解除限售占公司总股本的比例较小(0.03%),但仍然在一定程度上增加了市场的股票供应,提升了市场的流动性。同时,由于全志科技2025年一季报净利润同比增长86.51%,行情表现在半导体公司中排名第14,市场对其未来发展前景充满信心,因此此次解除限售并未对股价造成明显冲击。
00004.
00005.
启示:对于业绩表现优异、市场信心充足的公司来说,股票解除限售可能并不会对股价造成明显冲击,反而有助于提升市场的流动性。
00006.
5.2 特瑞斯案例
特瑞斯(证券代码:834014)在2025年6月10日发布股票解除限售公告,涉及常州鑫峰瑞企业管理合伙企业(有限合伙)和郑安力两名股东。
00001.
解除限售原因:此次解除限售属于离职董事、监事、高级管理人员解除限售(B)。
00002.
00003.
市场影响:此次解除限售占公司总股本的0.8874%,虽然比例不大,但仍然增加了市场的股票供应。然而,由于特瑞斯在业绩方面表现稳定,且申请解除限售的股东不存在尚未履约的承诺、非经营性资金占用等情形,因此此次解除限售并未对股价造成明显冲击。
00004.
00005.
启示:对于业绩表现稳定、股东行为规范的公司来说,股票解除限售可能并不会对股价造成明显冲击,反而有助于提升公司治理水平。
00006.
5.3 恒拓开源案例
恒拓开源(证券代码:834415)在2025年6月12日有37.84万股股票解除限售上市流通,涉及股东武洲一名。
00001.
解除限售原因:此次解除限售属于离职董事、监事、高级管理人员解除限售。
00002.
00003.
市场影响:此次解除限售占公司总股本的0.27%,比例较小。^[9]^然而,由于恒拓开源在业绩方面表现波动较大,且申请解除限售的股东为离职高管,因此市场对其未来前景可能存在一定的担忧。如果武洲选择大量抛售股票,可能引发股价的短期波动。
00004.
00005.
启示:对于业绩表现波动较大、股东行为可能引发市场担忧的公司来说,股票解除限售可能带来一定的股价波动风险。
00006.
六、投资者应对股票解除限售的策略
6.1 分析解除限售的原因
投资者在面对股票解除限售时,首先要分析股东抛售的原因。是因为个人资金需求,还是对公司未来的不信任?只有深入分析解除限售的原因,才能更好地判断其对股价的影响。
6.2 关注公司基本面
无论股票是否解除限售,公司的基本面都是决定股价长期走势的关键因素。投资者应该关注公司的业绩表现、行业前景、治理结构等方面,以判断公司的长期发展潜力。
6.3 制定合理的投资策略
根据自身的投资目标和风险承受能力,投资者应该制定合理的投资策略。在股票解除限售的情况下,可以考虑以下几种策略:
00001.
长期持有:如果相信公司的长期发展前景,选择继续持有股票,忽略短期的波动。
00002.
00003.
分批卖出:逐步卖出股票,避免一次性抛售带来的价格冲击。
00004.
00005.
分散投资:通过分散投资,降低单一股票解除限售带来的风险。
00006.
6.4 保持冷静,避免情绪化操作
在股票解除限售带来的市场波动中,投资者容易被情绪左右,做出冲动的投资决策。因此,投资者应该保持冷静,理性分析市场情况,避免情绪化操作。
七、股票解除限售的监管与政策建议
7.1 加强信息披露监管
为了保障投资者的知情权,监管部门应该加强对上市公司信息披露的监管。要求上市公司在股票解除限售前及时、准确地披露相关信息,包括解除限售的股票数量、股东情况、解除限售的原因等。
7.2 完善限售股减持制度
为了防止股东在股票解除限售后大量抛售股票,引发股价波动,监管部门应该完善限售股减持制度。例如,可以规定股东在解除限售后一定期限内不得减持股票,或者对减持数量进行限制等。
7.3 加强投资者教育
为了提高投资者的风险意识和投资能力,监管部门应该加强投资者教育。通过开展投资者教育活动、发布投资者教育资料等方式,帮助投资者了解股票解除限售的相关知识,掌握合理的投资策略。
八、结论
股票解除限售作为资本市场中一项重要的制度安排,其影响深远且复杂。对于投资者而言,股票解除限售既可能带来投资机遇,也可能引发潜在风险。因此,投资者应该深入分析股票解除限售的原因、影响及市场情况,制定合理的投资策略。同时,监管部门也应该加强信息披露监管、完善限售股减持制度、加强投资者教育等工作,以保障资本市场的稳定健康发展。