面世前就商改住,投控花漾云岩一期最新规划平面图曝光

搜狐焦点贵阳站

2024-04-08 09:43:00

购房群

买房如何避坑,加入购房群,看看他们怎么说

立即进群

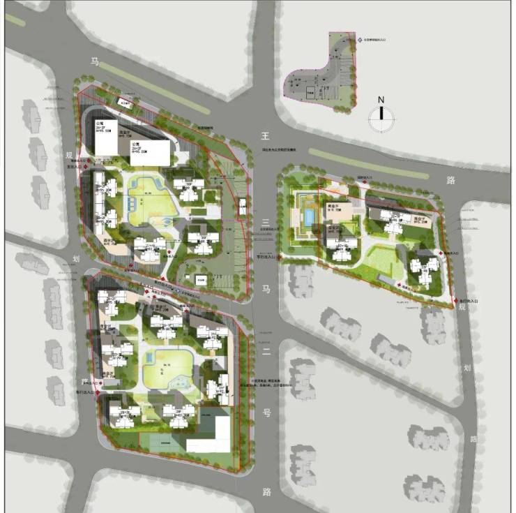
4月7日,贵阳市自然资源和规划局公示了云岩区三马组团投控·花漾云岩项目一期即G(22)127号地块项目商品房去库存方案。

根据方案,投控·花漾云岩项目一期由贵阳云居工程管理有限公司开发,原规划计容用地面积7.10公顷,计容建筑面积24.85万平方米,容积率3.5,绿地率30.8%,建筑密度33.8%,商住比为27:73

调规前

调规后

规划调整后,项目计容用地规模、综合容积率,以及计容建筑面积较原方案不变,商住比变为8:92,商业建筑较原方案减少4.72万方,居住建筑增加4.24万方,配套建筑增加0.66万方,人口规模约0.63万人。

调规前

调规后

同时,项目配套幼儿园由9班增加至12班,新增配12班小学,满足幼儿园、小学就学需求,中学由附近金马街中小学(初中12班)、三十中(36班)满足就学需求。

另外,根据变更后的规划平面图,投控·花漾云岩项目一期共包含12栋高层住宅,最高楼栋33层,最低楼栋25层,所有楼栋均为T4塔楼,户型方面不排除有带错层露台的户型存在,同时也可能有跃层户型存在。

据了解,投控·花漾云岩整个项目总建面约83万方,共分为A、B、C、D、E、F共6个地块。

其中,A、B、C地块即为G(22)127号地块为一期用地,于2022年12月被贵阳产控产城发展投资运营有限公司获取,成交楼面价2757元/平米

D、E、F地块即为G(23)105号地块为二期用地,于2023年12月被贵阳投控云居置业有限责任公司获取,成交楼面价4413元/平米

而根据此前G(23)105号地块的挂牌信息,该地块本身就要求竞得人在临近地块内同步配建一所36班九年一贯制学校

因此,本次项目新增配建一所12班小学,算是为项目“超配”了教育资源,使得整个投控·花漾云岩项目的配套教育资源更加完善了。

根据贵阳产业发展控股集团有限公司官网此前公开信息,目前,投控·花漾云岩项目营销中心已启动建设。

来源:樾筑

全部
报名成功
稍后会有专业的置业顾问联系您
返回楼盘

频道导航

返回首页

看房小程序

APP下载

电话拨通后,请您手动拨打分机号

确定拨打电话

电话号码:

分机号:(可能需要拨分机号)