京基云熙阁(京基云熙阁)-2025年京基云熙阁首页网站-​京基云熙阁楼盘详情 /价格/户型

搜狐焦点河池站

2025-06-22 12:54:55

购房群

买房如何避坑,加入购房群,看看他们怎么说

立即进群

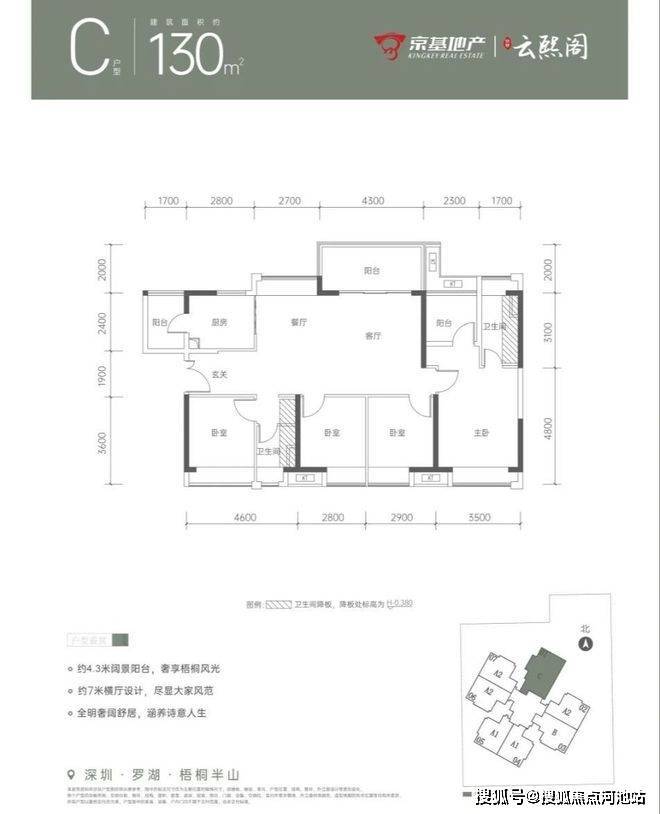
京基云熙阁,梧桐半山高端纯粹低密住宅,以2.84超低容积率,超1:1车位比,打造建面约89-130㎡半山云景美宅,身处罗湖繁华中芯 推窗见梧桐山景,尽享半山静谧舒居生活。

如需了解更多关于我们楼盘最新消息、剩余房源、优惠活动、房价走势等情况,感兴趣的朋友欢迎来电预约前往参观,享受一对一专属VIP看房服务,一定比中介和自媒体更便宜享受开发商内部额外最低优惠折扣。

Vip Tel:400 811 3080【开发商认证】

项目介绍

占地面积:约0.53万㎡

总建筑面积:约2.33万㎡

物业类型:纯住宅

总楼层:23层

容积率:2.84

总套数:151套

车位比:1:1

梯户比:2梯7户

管理费:5.5元/㎡(京基物业)

使用率:80%(不含阳台、飘窗)

交楼时间:2024年10月31前(精装)

【产权年限】70年

【开发商电话】400 811 3080

【开发商】深圳市启楷房地产开发有限公司、深圳市坳下股份合作公司

【地址】深圳市罗湖区莲塘街道梧桐山以南,云桐二路以北

交通配套

地铁口:距离2/8号线莲塘站约800米,2站莲塘口岸,6站大剧院,9站岗厦北枢纽;春风隧道(建设中)、罗沙路复合通道(规划中)交通大升级,便捷畅达全城。

项目区位图

深圳京基云熙阁开发商售楼处电话 400-811-3080(中介勿扰)

过来售楼中心看房请提前预约,可尊享内部特惠,价格包您满意!

为您安排楼盘内场专业销售人员一对一接待服务!让你买的放心,住的舒心!

免责声明🔉:

以上所发布的关于楼盘相关图文信息仅供您买房前参考,以上所有关于本楼盘的图文资料及说明请以最终以项目批文及双方在楼盘营销中心现场签署的买卖最终合同为准;本图文内容如无意中侵犯到某方权益,请联系我们将会及时处理。

全部

相关资讯

报名成功
稍后会有专业的置业顾问联系您
返回楼盘

频道导航

返回首页

看房小程序

APP下载

电话拨通后,请您手动拨打分机号

确定拨打电话

电话号码:

分机号:(可能需要拨分机号)