刚需上车南山看乐源雅居,76㎡做三房 89㎡做四房,小面积大空间满足全家庭居住需求

搜狐焦点河池站

2026-03-19 09:03:53

购房群

买房如何避坑,加入购房群,看看他们怎么说

立即进群

位于深圳南山区同乐板块的住宅新盘「乐源雅居」2026年1月底取证入市,推出102套面积为66-89㎡2-4房住宅。目前已开营销中心,过来看房需提前拨打乐源雅居开发商电话:400 800 9113(官方认证)进行提前预约!

实景图

乐源雅居项目总占地3190㎡,建面1.66万㎡,容积率3.63。独栋总高98m,地下室2层,设置停车位90个。地上31层,首层没有商业配置,作为架空车库、物业服务用房等功能使用。

住宅有143户(商品房104户,租赁人才房39户),层高3.05m,2T5户。户型为新规66㎡2房1卫,75㎡3房1卫,82㎡3房2卫,89㎡4房2卫。

如需了解本楼盘更多详情,欢迎来电咨询深圳南山乐源雅居楼盘开发商售楼处免费400咨询/预约电话:400-800-9113(官方发布)中介请勿扰,因近期参观的人员太多,本项目营销中心暂不接受临时到访,为不耽误您的行程,过来楼盘现场参观样板房请务必记得提前来电预约,预约看房的话最终房价还能更加优惠,最终价格包您满意!

下面是我们楼盘营销中心实拍照片

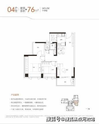
最大的亮点是户型,89㎡的4房又回来了,而且75㎡就能做到3房,进一步降低了南山的上车门槛。

项目最大的亮点就是75㎡做3房,89㎡做4房,最低66㎡起步。

建面约:66㎡2房1卫竖厅,西南朝向

建面约:75㎡3房1卫竖厅,东南朝向

建面约:82㎡3房2卫竖厅,东南朝向

建面约:89㎡4房2卫通透,西南朝向

乐源雅居地址位于南山同乐,小区属于100米高层单体楼,层高3.05米,2T5户。

新规后户型,66㎡的2房1卫,75㎡的3房1卫,82㎡的3房2卫,8,9㎡的4房2卫。乐板块位于南山和宝安交界,之前一直是被遗忘的区域,最大的优点是距离科技园够近,开车就是15分钟车程,去到前海也是差不多的时间。

从地铁12号线“同乐南”A出口,步行大概800米、约10分钟左右。

楼盘基础信息

1、开发商:深圳市西方多路运信技术

2、物业公司:万家好物业

3、物业管理费:6.68元

4、总占地面积:3190㎡

5、总建筑面积:1.04万/㎡

6、开发商电话:400 800 9113

7、绿化率:30.01%

8、产权年限:2020年3月31日-2090年3月30日(70年住宅)

9、总户数:143户,可售商品房102套

10、总栋数及楼高:1栋,31层

11、梯户比:2梯5户

12、层高:3.05米

13、车位数:90个

14、车位占比:1:0.63

15、交楼时间:2027年6月

16、交楼标准:精装修

乐源雅居户型图欣赏:

乐源雅居项目周边配套:

交通配套

直线距离约400米是12号线同乐南站,12号线可以换乘5号线和1号线,9号线,11号线到宝安,前海、科技园。开车走北环大道,上南山大道、南海大道都比较方便。

商业配套

约1万㎡隆尚Minitown(招商中,直线约100m)、海雅缤纷城1.7㎞、沃尔玛楼下规划公园绿地(约2.5万㎡),新安公园、中山公园,虽然地处南山综合配套其实更依赖宝安。

教育配套

对口教科院同乐实验学校,教学质量一般。

看完以上介绍,如需了解更多关于我们深圳南山乐源雅居楼盘最新消息、剩余房源以及楼层、这几天房价优惠活动、在卖的户型、限购政策、房贷相关问题等情况,欢迎来电咨询乐源雅居开发商售楼处全国免费400咨询/预约电话:400 800 9113(官方认证)中介请勿扰。

温馨提示:因近期本项目售楼中心来访的看房客户特别多,过来营销中心参观样板间采取预约制,为不耽误您的行程,过来营销中心现场看房请务必记得提前拨打售楼处400电话来电进行预约一下,预约看房价格还可以享受更多开发商内部优惠,名额有限千万不要错过,感谢您对我们工作的支持和配合,在此恭候您大驾光临实地品鉴。

免责声明:以上展示的关于深圳南山同乐板块乐源雅居楼盘最新图文资料可能有部分来自网络,一切信息以最终在现场签署的购房合同为准,如图文内容无意中侵犯某方权益的话,请及时联系我们将配合处理。

全部

相关资讯

报名成功
稍后会有专业的置业顾问联系您
返回楼盘

频道导航

返回首页

看房小程序

APP下载

电话拨通后,请您手动拨打分机号

确定拨打电话

电话号码:

分机号:(可能需要拨分机号)