

最新消息:华侨城新玺项目位于蛇口街道南端,东南海玫瑰园三期,南面临深圳湾;与香港元朗隔海相望,连接香港的西部通道跨海大桥落脚于蛇口东角头。距离南山后海约4公里,与海上世界项目隔“小湾区”相望,
如需了解本楼盘更多详情,欢迎来电咨询深圳华侨城新玺·名苑开发商售楼处免费400咨询/预约电话:400-811-3080(已认证)中介请勿扰,因近期参观的人员太多,本项目营销中心暂不接受临时到访,为不耽误您的行程,过来楼盘现场参观样板房请务必记得提前来电预约,预约看房的话最终房价还能更加优惠,最终价格包您满意!
下面是我们楼盘营销中心实拍照片:

实景图
项目与南海玫瑰三期和半岛城邦为邻。深圳湾新玺名苑分为两期开发,主要由三栋高层建筑组成,其中:一期为2栋38层的商务公寓及公寓+办公综合楼,建筑高度约156.5米+171.1米;二期为1栋57层的办公及酒店综合楼,建筑高度约250米。

楼层和户型说明

基础信息
开发商:深圳华侨城新玺发展有限公司
占地:2.5万㎡
建面:17.6万㎡
产权年限:40年
1栋公寓:约230-700㎡大平层
总楼层:38层
层高:3.6米
梯户比:三梯一户、三梯两户
交楼标准:豪装
交楼时间:2023年12月
开发商电话:400 811 3080
管理费:14.8元/m²
物业公司:华侨城至尊物业华管家
展厅地址:南山区湾厦路1号华侨城新玺展示中心(需要提前预约)

交通:
新玺项目毗邻蛇口国际邮轮母港可快速辐射深圳国际机场、香港国际机场等城市核心交通要塞。更有“七纵三横一高速”的便捷交通路网环伺,高效畅达湾区核心城市半小时生活圈。




商业配套:
项目自带约5万平方米的商业设施,由华润运营。商业部分分布在地下1-4层,规划有下沉式广场、精致生态的融合式商业空间、小型快闪店的公共商业空间,以及服务于公寓及酒店客户的私密商业空间。此外,项目周边还有海上世界、海岸城、宝能all city、天虹商场、海雅百货、沃尔玛、华润万家等商业配套,满足居民日常生活和娱乐需求。

学校配套:
周边有半岛第二幼儿园、南海玫瑰为明幼儿园、双玺幼儿园、蛇口幼儿园、半岛第三幼儿园等。按南山区现行学区划分规则
六大国际学校:科爱赛国际学校、深圳深美国际学校

华侨城新玺户型图欣赏
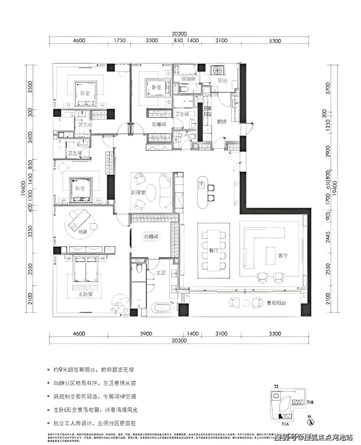
230㎡三房两厅三卫:主要分布在1栋一、二单元6-32层,为02、03户型。
采用双龙抱珠户型设计,户型方正实用。双套房朝南,可赏南向一线海景,配备广角视野景观阳台。

280㎡三房两厅四卫:位于1栋三、四单元24-32层,为05、08户型。拥有超8米超宽幕开间,厅出阳台可直面海景。采用三套房设计,主卧配备L形全景落地窗,占据270°最佳观海位。

350㎡四房两厅四卫:在1栋一、二单元6-32层有分布,为01、04户型。可享受南、西、北或南、东、北三面景观视野,能观看深圳湾海景、内海景和城市景观。户型有超9米超宽幕开间,三套房设计。

468㎡五房三厅六卫:位于1栋一、二单元高区33-38层,一层一户,仅6席。五房四套房设计,主卧L形全景落地窗,270°最佳观海位,南向超大三厅一体,动静分区布局有序。
500-700㎡超大户型:700㎡户型位于1栋一、二单元高区33-38层,由01+02户型组成。户型宽敞奢华,可尽享海景与城市景观,为高端客户提供极致居住体验。



商办产品面积从298到614平米不等,分为中区和高区:
中区户型:

· 05/04户型:298-314平米
· 01户型:305-371平米
· 02户型:308-314平米
· 04/03户型:323-381平米
· 06/05户型:362-372平米
高区户型:

· 01户型:553-614平米
· 02/03户型:432-499平米
· 03/04户型:567-570平米
所有商办产品均为精装交付,层高3.6米,梯户比为3梯1户或3梯2户,提供尊贵私密的办公环境。

看完以上图文介绍,您如果想要了解更多关于我们深圳蛇口华侨城新玺楼盘最新消息、当前剩余房源、这几天楼盘现场折扣优惠活动、近期周边房价走势、银行相关利率政策等情况的话,欢迎来电咨询华侨城新玺开发商售楼处免费400咨询/预约热线电话:400-811-3080(已认证)中介勿扰。
温馨提示:因本项目营销中心参观样板间采取预约制,为不耽误您的行程,过来营销中心现场看房前请务必记得提前来电预约,预约看房的话享受的优惠折扣比直接上门更多,最终成交价格也会更加划算,在此真诚感谢您对我们工作的支持和信赖,恭候您大驾光临。
免责声明:以上展示的关于蛇口华侨城新玺楼盘最新相关的最新图文资料可能部分来自网络,具体细节以最终签署的购房合同为准,如无意存在侵犯某方权益请及时联系我们处理。