深圳龙岗区坂田北片区,备受关注的天安云谷三期项目——“天安1号”迎来新进展。
最新消息:龙岗区坂田板块【天安云谷里】加推13栋取证!项目2025年12月首推过1栋118-165㎡户型。这次家庭开盘的是13栋,项目备案均价5.6万,备案单价5.4-5.7万,备案总价533-690万,预约看房的话还有开发商额外内部折扣。
如需了解本楼盘更多详情,欢迎来电咨询深圳坂田天安云谷(天安1号)开发商售楼处免费400咨询/预约官方电话:400 880 7297(已认证)中介或自媒体勿扰,温馨提醒一下,因这几天项目现场参观的人员太多,本项目营销中心暂不接受临时到访,为不耽误您的行程,过来楼盘现场参观样板房请务必记得提前来电预约,预约看房的话还能尊享开发商内部团购优惠,最终价格包您满意!
项目目前正在紧锣密鼓建设中,同步教育、健康等六大配套服务也在积极推进。这一由深圳天安云谷投资发展有限公司打造的产城融合项目,备受市场关注。如今已经正式拿证,但是价格确是有点让人琢磨不透,别的地方是龙岗龙华价买南山,这里是南山价买龙岗。
天安云谷项目这个价完全是以豪宅价打造一样,外立面采用全铝板+玻璃幕墙设计,大门设计的还不错,有点豪宅样,但是外立面虽然说也挺不错的,但是作为豪宅来讲好像还是差点意思的感觉,毕竟价格5.7-8.2万这里可以对标一下近期火热得大运豪宅玖章就知道了看看哪个更像豪宅,玖章价格还性价比更高4.64-6万。
再来看一下天安云谷首推1-2栋他的这期规划,容积率6.32,规划982户,停车位1500个,四梯五户,已经两梯两户设计,总层高45-51层,楼间距20-50米左右,整体算是偏拥挤,所以说这个数据作为豪宅价卖确实有点草率了
项目看湖是一个亮点,不过阳台直面看湖只有255的02户,166的的主卧以及阳台侧面看湖,1-2以及2-1单元142的房间可以看湖,1-2以及2-1的0205户118的阳台侧面可以看湖,125的房间也是可以看湖
项目的交标还算不错厨房里,交付的是德国美诺(Miele)全套厨电,包括洗碗机、蒸烤箱、嵌入式冰箱(冷藏冷冻分离)、燃气灶和抽油烟机。在建面约255㎡的顶配户型中,甚至还配备了酒柜。
项目已经开放营销中心,样板房,目前户型图已经出炉为118-125-142-166-255平大四房,新规产品,得房率超过90%。据了解项目是2梯2户,4梯5户设计!
户型图欣赏
△118平米02改造户型
深圳天安云谷位于坂田坂雪岗科技新城,作为当下坂田最大的城市综合体,项目总占地面积约76万㎡,总建筑面积289万㎡,分六期进行开发,体量相当于华润大冲旧改的规模。
天安云谷规划总体量约289万㎡,比邻近的佳兆业城市广场(180万㎡)和坂田标杆小区星河银湖谷(160万㎡)都要大,相当于华润大冲旧改的规模。
云谷里是天安云谷的三期产品,位于天安云谷一期北区西北侧,坂李大道南侧,极创公园西侧,距离地铁10号线岗头站直线距离约700米,临近有规划的27号线岗头西站。
这里的天安云谷里1栋-13栋就是天安云谷三期中的一部分,项目总体分为六期,一二期的产业研发用房已于2018年对外开售。如今,进度缓慢的三期也迎来了实质性进展,1-13栋已经拿下建设许可证。
根据本次公布资料显示,本次三期的1-13栋,包含住宅、商业公寓、商业、酒店以及两所幼儿园,其中,提供住宅共5886套(不含保障房),保障房共640套。
本次将要推出的是天安云谷三期,共由8个地块组成,总占地面积约13.14万㎡,总建筑面积约128.3万㎡,是天安云谷首个住宅项目,建成后将有21栋住宅+2栋酒店+2栋公寓办公,配建有1所12班+1所18班幼儿园,另外还规划有1所90班的国际化中小学,分54班公立班和36班国际班组成,总规划6526户。
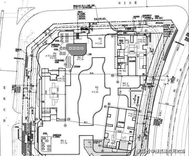
下面来看看各栋的相关信息:
天安1号分别是1-8栋两个地块,其中分为1-2栋一个地块3-8栋一个地块
1栋、2栋同属一个地块,分为5个单元,规划总建面约23.2万㎡,其中住宅建面约13.5万㎡,共1180套。
1栋分为两个单元,总占面约2.5万㎡,规划总建面约6.5万㎡,其中住宅建面约5.9万㎡,共规划448套商品房住宅。从户型面积规划来看,本栋产品预计以大面积段为主。
2栋占面约2.5万㎡,规划总建面约9.3万㎡,其中住宅约7.6万㎡,商业约1.5万㎡,图书馆约1800㎡。
3-8栋建有6栋楼体,建设用地面积约3万㎡,规划总建面约18.2万㎡,其住宅约17.7万㎡,幼儿园3300㎡及商业、物业服务用房。
规划住宅1420套,其中套内建面<90㎡的占比约53.8%。
9栋、10栋用地性质为二类居住用地+商业用地,总占面约3.5万㎡,规划建面约22.7万㎡,其中住宅建面约15.6万㎡(含保障性住房3.5万㎡)、商业约1.8万㎡、酒店约4.5万㎡以及幼儿园(18班)等相关配套设施。
共规划有1875套房源,其中套内建面<90㎡的有1780户。
11栋用地性质为二类居住用地+商业用地,总占面约1.5万㎡,规划建面约10.4万㎡,其中住宅建面约5.8万㎡、商业约1.6万㎡、公寓式办公(商务公寓)约3万㎡,及相关物业服务用房。
共规划有675套住宅,套内建面均<90㎡的房型共有630套。
12栋用地性质同样为二类居住用地+商业用地,总占面约1.6万㎡,规划建面约11.4万㎡,其中住宅建面约7万㎡、商业约2.2万㎡、公寓式办公(商务公寓)约2万㎡,及相关物业服务用房。
共规划920套住宅,套内建面均<90㎡。
13栋用地性质为二类居住用地,总占面约1.1万㎡,规划建面约6.3万㎡,其中住宅建面约4.6万㎡、商业约7.1万㎡,及相关物业服务用房。
共规划456套住宅房源,其中套内建面<90㎡的共有304套。
云谷里的体量相当大,不过其背靠坂田华为总部、天安云谷、富士康集团等大大小小的产业基地,有一定的产业支撑吸引人才前往。不过,这个体量级别的开发周期预计需要一定时间。
项目三期占地13万㎡,集产业、办公、居住、商业等于一体。其中规划大量住宅配套,并设置一所54班九年一贯制学校,充分满足城市人居与民生需求。
基于此,我们希望建筑设计能够回应 “产城社区”理念,通过打造高度复合的综合体和自由开放的空间体验,构建产、城、人和谐共生的新型城市目的地。


在各功能区具体空间设计上,设计希望建筑可以充分呼应大数据“云”的概念,打造”云谷”、”云峰“、“云街”、“云廊”、“云玺”等各具特色的建筑及空间场所,高度共享又灵活开放,充分适应未来发展的需要。
✅本楼盘样板房参观采取预约制,过来前请记得拨打开发商电话进行预约,预约看房价格更优惠,感谢您的配合!
✅我们将为您安排专业的楼盘内场销售人员全程为您接待, 给您提供更加贴心的看房以及购房服务体验!
特别注意:本楼盘开发商售楼部400电话没有设置任何所谓的“分机号”,拨打前请认真识别,注意保护个人隐私!谨防上当!
免责声明:以上所发布的关于深圳龙岗天安云谷(天安1号)楼盘相关介绍详情仅供您购房前参考,以上所有关于本楼盘的图文资料及说明请以最终项目批文及双方在楼盘营销中心现场签署的买卖最终合同为准;本图文内容如无意中侵犯到某方权益,请联系我们将会及时处理。