2025深圳龙华观澜【泰富安·御景华府】鹭湖中心城 · 低密纯居·现楼

搜狐焦点河池站

2025-08-27 16:08:04

购房群

买房如何避坑,加入购房群,看看他们怎么说

立即进群

深圳龙华【御景华府】

最新消息:近期,我们龙华观澜御景华府非常火爆,首付0万即可购置现房,且配套龙外学区,还毗邻六大公园。

御景华府户型以及房价说明(预约看房以下价格还可以更便宜!)

▶67-70㎡两房,总价282万-335万

▶82-84㎡三房一卫,总价340-370万

▶89-91㎡三房两卫,总价360-410万

▶104四房两卫,总价430-460万

▶110-112四房两卫,总价470-510万

如需了解本楼盘更多详情,欢迎来电咨询深圳龙华御景华府开发商售楼处免费400咨询/预约电话:400-880-7297(已认证)中介请勿扰,因近期参观的人员太多,本项目营销中心暂不接受临时到访,为不耽误您的行程,过来楼盘现场参观样板房请务必记得提前来电预约,预约看房的话最终房价还能更加优惠,最终价格包您满意!

下面是我们楼盘营销中心实拍照片:

御景华府由深圳市泰富安投资有限公司开发,位于龙华区观湖街道鹭湖中心城片区,占地约1.84万㎡,总建筑面积10.5万㎡,容积率3.86,绿化率40%,规划为低密度纯住宅社区。项目共5栋建筑(4栋住宅+1栋幼儿园),总户数763户,车位比1:1,物业由中海物业(全国物业百强TOP10)管理,物业费4.6元/㎡·月,已于2023年12月毛坯交楼,现在是现楼状态。

基础信息

【开发商】深圳市泰富安投资有限公司

【占地面积】约18462㎡

【建筑面积】约104994㎡

【开发商电话】4008807297

【物业管理】中海物业

【物业费】4.6元

【容积率】:3.86

【绿化率】:约40%

【可售户数】约530户

【停车位】763个

【楼栋规划】1栋、2栋、3栋、5栋为住宅,4栋为幼儿园

【开发商电话】400 880 7297

【梯户比】2梯4户、2梯5户、2梯6户

【交付标准】毛坯

【土地年限】70年产权(2019年1月-2089年1月)

【项目户型】建面约67-70㎡2房,约73-84㎡3房1卫,约89-91㎡3房2卫,104-112㎡4房2卫

效果图

御景华府项目规划平面图

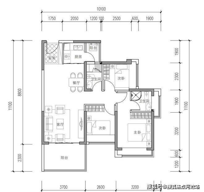
御景华府户型图

【89-91㎡3房2厅2卫】

舒适三房,方正实用,两卫设计

正南户型,四季皆享阳光明媚生活

室室皆带飘窗,生活更具想象

双阳台设计, 生活、景观明确分区

2.3m*3.7m宽阔阳台,让生活更有景

【67-70㎡2房2厅1卫】

精致两房,紧凑实用,全利用空间

正南户型,动静分区互无干扰

室室皆带飘窗,休闲优雅之享

干湿分离,独立盥洗,舒适便捷

双阳台设计, 生活、景观明确分区

2.3m*3.3m阔景阳台,舒心自在

【73-84㎡3房2厅1卫】

功能三房,小面积大空间

正南户型,动静分区互无干扰

室室皆带飘窗,静享悠闲时光

双阳台设计, 生活、景观明确分区

2.4m*3.7m宽阔大阳台,让生活更有景

104㎡4房2厅2卫

正南朝向 经典动静分区

客厅卧室四开间朝南

100平实用面积,3-4房空间随意切换

110-112㎡4房2厅2卫】

宽敞四房,一步到位,尽享天伦之乐

南北通透,冬暖夏凉,通风采光俱佳

室室皆带飘窗,完美生活向往

双阳台设计, 生活、景观明确分区

2.4m*3.8m阔景阳台,优雅观景

御景华府究竟值不值得买

【无中轴 不中心】

鹭湖中心城立足中部轴心,可预见的价值潜力,法国巴黎、美国纽约、日本东京等每一座城市,有一条价值中轴,处于城市繁华中心,联接城市顶级资源,见证城市的崛起,深圳中轴从福田中心、龙华中心北拓延伸发展

【产业聚集 高精尖圈层】

鹭湖中心城是全市“20+8”产业集群重要承载地之一,产业基础雄厚,蓝绿格局优越。湖西产业园全面更新,吸引“工控小华为”汇川技术、英飞拓、国药致君、普门科技等高新企业、高端产业落户于此。也是全国顶尖、世界一流的千亿级高端医疗器械产业集聚高地

【振鹭于飞 咏湖于美】

“行政+科技+文化+生活” 综合服务中心,高标准/高品质/高起点的发展定位,鹭湖中心城,龙华六大重点片区之一,山水交融,揽山阅湖,逾越“香蜜湖”,从“国际住区”到“中心城”迭代升级

【行政重地 中心所在】

龙华行政中心所在,区域蝶变在即,区府所在,必定中心,龙华区政府所在的行政重地坐落于麓湖中心城,行政中心的坐落,未来城市面貌与生活配套,必将有一个质的飞跃

【科技晋级 高新极核】

以高新科创为深圳、为中国贡献鹭湖力量

鹭湖中心城位于深圳”中优“”北拓“战略的重要节点,占位于“一圈一区三廊”发展格局的产值超万亿的数字经济圈,2019年观澜高新园已纳入国家高新园,成为深圳创新驱动核心引擎。

【与鹭湖·共盛景】

『抵达福田中心,刷剧才1集』

自在生活,不是说走就走而是转瞬即达

地铁18、22号线观湖站(五期22号线已动工)

福田保税区、光明科学城、会展新城等区域

“鹭湖枢纽”交通体系,无缝连接城市中心

『藏在山水的艺术』

鹭湖四馆文化地标(建设中)

去鹭湖图书馆交个朋友

鹭湖群艺馆赴约老友

去鹭湖大剧院倾听艺术

鹭湖科技馆感受科技

『满载购物车的雀跃欢欣』

从此识“食物”者为俊杰,生活“超市惠”

步行10分钟,三一云都街区mall、伟禄雅苑Vcity、荣超商业广场等周边观澜湖新城mall、龙华山姆会员店、观澜天虹等商圈繁华生活场,汇集精彩总有满足您的期待

『健康在左 生活在右』

低频需求的配套亦无需涉足过远

从社康到三甲,临近安心守护

为您及家人提供最好的健康保障

『可以低密,何必拥挤』

塔楼纯点式布局,采光、通风、视野俱佳

以生态阔景人居为理念,打造瞰景阔宅

值此3.86低密,进阶改善一步到位

低层看园林,中高层无遮挡瞰山景

『智享乐园 童真时光』

孩子放学后/晚餐后,是孩子撒欢玩乐的好时光,打造下沉智享乐园,让孩子尽情释放玩乐天性

『藏不住的自在』

一步到位,让有限的空间,契合生命中每个角色的完美转换,多数户型使用率约80%,尽享生活舒适所在

『在阳光里看一本久违的书』

一缕微光透过飘窗唤醒惺忪的睡眼,于家中2.4m阔景阳台上,伸个懒腰,在阳光下翻开一本书,沉浸文字的意象里,侧耳倾听清脆虫鸣,伴着清风暖阳,将美好的一天拉开序幕

『弯起来的骄傲 中海物业』

2020年度世界500强第18位,国家首批一级资质物业管理企业,365天关怀备至、24小时无微不至,30°的尊崇、35°的微笑、 75°的专注 ,95°的坚持、 180°的严谨

『50+匠心细节呈现』

深入对精工美学的研究,以匠人精神,以先进的工艺工法浇筑,户型设计细节的考量,更是精益求精,打造社区回归舒心居住体验。

御景华府项目周边配套

教育:15年一站式优质学区,就在家门口龙华外国语附属幼儿园,观湖实验(九年一贯制),鹭湖实验(九年一贯制),龙华外国语学校(九年一贯制),深圳外国语(高中),龙华教科院附属学校(小学)

交通:18号线规划中,22号地铁观湖站在建中2028年通车,开车走梅观高速、机荷高速、五和大道,梅观高速

商业:三一云都4万㎡大型商业,伟禄雅苑3万㎡先施购物中心,荣超新时代广场约3.1万㎡购物中心,周边还有观澜湖新城mall、龙华山姆会员店、观澜天虹等配套商业资源。

医疗:小区自带社康中心,(三甲护航)深圳第二人民医院。

看完以上图文介绍,您如果想要了解更多关于我们深圳龙华御景华府楼盘最新消息、当前剩余房源、这几天楼盘现场折扣优惠活动、近期周边房价走势、银行相关利率政策等情况的话,欢迎来电咨询御景华府开发商售楼处免费400咨询/预约热线电话:400-880-7297(已认证)中介勿扰。

温馨提示:因本项目营销中心参观样板间采取预约制,为不耽误您的行程,过来营销中心现场看房前请务必记得提前来电预约,预约看房的话享受的优惠折扣比直接上门更多,最终成交价格也会更加划算,在此真诚感谢您对我们工作的支持和信赖,恭候您大驾光临。

免责声明:以上展示的关于深圳御景华府楼盘最新相关的最新图文资料可能部分来自网络,具体细节以最终签署的购房合同为准,如无意存在侵犯某方权益请及时联系我们处理。

全部
报名成功
稍后会有专业的置业顾问联系您
返回楼盘

频道导航

返回首页

看房小程序

APP下载

电话拨通后,请您手动拨打分机号

确定拨打电话

电话号码:

分机号:(可能需要拨分机号)