【鸿荣源珈誉玖玺】面积约775-97㎡全能三房 122-199㎡臻奢4房!

搜狐焦点河池站

2026-03-01 11:12:00

购房群

买房如何避坑,加入购房群,看看他们怎么说

立即进群

深圳【鸿荣源·珈誉玖玺】

央媒报道:2023/24/25年,连续3年蝉联深圳销售冠军

下面是我们楼盘营销中心实拍照片:

开盘现场实拍照片

如需了解本楼盘更多详情,欢迎来电咨询深圳宝安鸿荣源珈誉玖玺楼盘开发商售楼处免费400咨询/预约电话:400-880-7297(官方发布)中介请勿扰,因近期参观的人员太多,本项目营销中心暂不接受临时到访,为不耽误您的行程,过来楼盘现场参观样板房请务必记得提前来电预约,预约看房的话最终房价还能更加优惠,最终价格包您满意!

楼栋和户型分布示意图

在售户型信息:

【建面84㎡3居】389-413万,3室2厅2卫, 东南·南·西南朝向,楼栋分布于10栋二单元

【建面94㎡3居】473-488万,3室2厅2卫, 西南·西·西北·北·东北朝向,楼栋分布于10栋二单元

【建面97㎡3居】490-511万,3室2厅2卫, 西南·西·西北·北·东北朝向,楼栋分布于12栋

【建面75㎡3居】357-370万,3室2厅1卫, 东南·南·西南朝向,楼栋分布于12栋/10栋二单元

【建面78㎡3居】367-388万,3室2厅1卫, 东南·南·西南朝向,楼栋分布于12栋

【建面78㎡3居】367-388万,3室2厅1卫, 西南朝向,楼栋分布于12栋

【建面83㎡3居】383-627万,3室2厅2卫, 西南·东北朝向,楼栋分布于9栋一单元

【建面89㎡3居】435-478万,3室2厅2卫, 南·西南朝向,楼栋分布于9栋一单元

【建面90㎡3居】411-435万,3室2厅2卫, 南·北朝向,楼栋分布于13栋

【建面77㎡3居】346-370万,3室2厅1卫, 西南朝向,楼栋分布于13栋

【建面93㎡3居】457-482万,3室2厅2卫, 东朝向,楼栋分布于13栋 【建面84㎡3居】380-405万,3室2厅1卫, 东南朝向

【建面94㎡3居】427-452万,3室2厅2卫, 南朝向,楼栋分布于7栋 【建面98㎡3居】448-469万,3室2厅2卫, 南朝向,楼栋分布于7栋 【建面169㎡4居】970-1000万,4室2厅3卫, 南·北朝向,楼栋分布于6栋

【建面137㎡4居】744-766万,4室2厅2卫, 东南·南朝向,楼栋分布于12栋

【建面124㎡4居】680-710万,4室2厅2卫, 东南·南朝向,楼栋分布于12栋

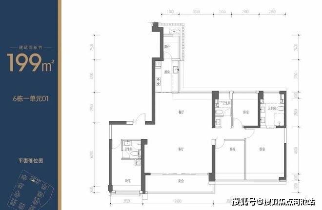
【建面199㎡4居】1150-1200万,4室2厅3卫, 南·北朝向,楼栋分布于6栋

【建面122㎡4居】660-680万,4室2厅2卫, 南·西南·西朝向,楼栋分布于8栋

【建面126㎡4居】700-720万,4室2厅2卫, 东南·南·西南朝向,楼栋分布于8栋

【建面110㎡4居】608-627万,4室2厅2卫, 西朝向,楼栋分布于9栋一单元

【建面137㎡4居】711-750万,4室2厅2卫, 南·北朝向

【建面109㎡4居】557-576万,4室2厅2卫, 南朝向,楼栋分布于7栋

项目规划平面图

项目基本信息:

楼盘名称:鸿荣源·珈誉玖玺

总栋数:12栋

总户数:2479户

产权年限:70年

建筑类型:塔板结合

开发商电话:400 880 7297

占地面积:47900平米

建筑面积:445293平米

容积率:5.76

绿化面积:29000

绿化率:40%

楼高:31-48层

层高:2.9-3.15米

梯户比:2T2,3T5/6/7

总车位数:2831

车位配比:1:1.1.42

车位属性:出租

出租价格:0.3-0.3K

物业费:5.9元

交房时间:2026年12月31日

所属开发商产品线:深圳市鸿荣源物业服务有限公司

项目地址:广东省深圳市11号线塘尾站

项目介绍

鸿荣源珈誉府位于宝安大道于凤塘大道交汇处东南侧,该项目原是"塘尾片区城市更新单元“,由鸿荣源集团一手打造,也号称是第二个壹城中心升级版,地处沙井核心板块,周边1公里内涵盖3个重量级商业(万丰海岸城购物中心+鸿荣源壹方奥特莱斯+华强购物中心),11号地铁线”塘尾站“距离约300米。

鸿荣源珈誉府,总建面约248万㎡,将打造近8000套住宅,其中住宅面积70万㎡,商业面积50万㎡,共分4期开发,是鸿荣源集团全新开发的地标级综合体大盘,涵盖高端住宅、商业办公、星级酒店、优质教育、大型购物中心等业态。

而本次壹方奥莱商业中心,也是鸿荣源”奥特莱斯“产品线的首个项目,商业中心通过空中绿道与塘尾地铁站相连,现代感十足,也是鸿荣源继前海壹方城,龙华壹方天地之后开发的第3个超大商住综合体项目。

鸿荣源珈誉玖玺,由鸿荣源集团打造,总占地面积约4.79万㎡,总建筑面积约40.53万㎡,计容建筑面积约27.63万㎡,容积率5.42,绿化率40%,共由10栋总高31-48F住宅组成,其中6栋1/2单元住宅44F,7栋/8栋住宅48F,9栋1单元住宅46F,9栋2单元住宅45F,10栋1单元住宅47F,10栋2单元住宅31F,11栋住宅46F,12栋/13栋住宅48F。

总规划2479户,全部都是商品房,地下室有3层,规划停车位2795个,车位占比约1:1.127。

鸿荣源珈誉府三期采用围合式布局,约2.9万㎡艺术大园林,采用世界名画“记忆的永恒”为灵感打造,最大楼间距约161米,全龄段子母双泳池。

项目周边配套

商业配套:鸿荣源珈誉府,自带50万㎡壹方奥特莱斯商业,汇集了壹方+奥莱的商业模式,在项目北侧还有万丰海岸城近18万㎡的购物中心,另外还有山姆会员商店在建,这个片区以后也将会是整个沙井最高端最集中的商业购物中心。

学校配套:鸿荣源珈誉府旁边,所规划的2个教育用地,已经正式出了红头文件,为深圳外国语宝安学校(集团)南校区,分别为1所63班九年一贯制学校,1所为27班九年一贯制学校(珈誉玖玺旁边),另外根据宝安区2024年最新的学区划分:

小学学区划分在桥头学校小学部、塘尾万里学校小学部、滨海小学(集团)福桥小学、立新湖学校小学部、凤凰学校小学部、滨海小学(集团)文昌小学;

初中学区划分在桥头学校初中部、塘尾万里学校初中部、立新湖学校初中部、福永中学、新安中学(集团)第二外国语学校(初中部)、航星学校初中部、凤凰学校初中部。

地铁配套:鸿荣源珈誉玖玺家门口就是宝安大道及凤塘大道等交通主干道,11号地铁线“塘尾站”,距离约300米,4站到宝安机场,6站到宝中,7站到前海湾,8站到南山,11站到车公庙。鸿荣源珈誉玖玺家门口就是宝安大道及凤塘大道等交通主干道,

项目特点:

项目自带约50万㎡湾区壹方商业;下楼即达四大名校深圳外国语宝安学校。地铁11号快线塘尾站直连。

围合式大社区,内看约2.9万㎡艺术大园林,最大楼间距约161米;

南向外看凤凰山景、立新湖景,远眺稀缺深圳海景,纵览豪宅奢景;

北向外看约50万㎡"湾区壹方"城市级商业地标,西部中心都市新封面。

鸿荣源珈誉玖玺户型图鉴赏:

看完以上图文介绍,您如果想要了解更多关于我们深圳宝安沙井鸿荣源珈誉玖玺楼盘最新消息、当前剩余房源、这几天楼盘现场折扣优惠活动、近期周边房价走势、银行相关利率政策等情况的话,欢迎来电咨询鸿荣源珈誉玖玺楼盘开发商售楼处免费400咨询/预约热线电话:400-880-7297(官网发布)中介勿扰。

温馨提示:因本项目营销中心参观样板间采取预约制,为不耽误您的行程,过来营销中心现场看房前请务必记得提前来电预约,预约看房的话享受的优惠折扣比直接上门更多,最终成交价格也会更加划算,在此真诚感谢您对我们工作的支持和信赖,恭候您大驾光临。

免责声明:以上展示的关于深圳鸿荣源珈誉玖玺楼盘最新相关的最新图文资料可能部分来自网络,具体细节以最终签署的购房合同为准,如无意存在侵犯某方权益请及时联系我们处理。

全部
报名成功
稍后会有专业的置业顾问联系您
返回楼盘

频道导航

返回首页

看房小程序

APP下载

电话拨通后,请您手动拨打分机号

确定拨打电话

电话号码:

分机号:(可能需要拨分机号)