招商海晏府官方售楼处电话(招商海晏府)官方首页网站-招商海晏府营销中心欢迎您-楼盘详情•最新价格-户型图-容积率@2026.3.8售楼处✦A

搜狐焦点河池站

2026-03-08 04:00:00

购房群

买房如何避坑,加入购房群,看看他们怎么说

立即进群

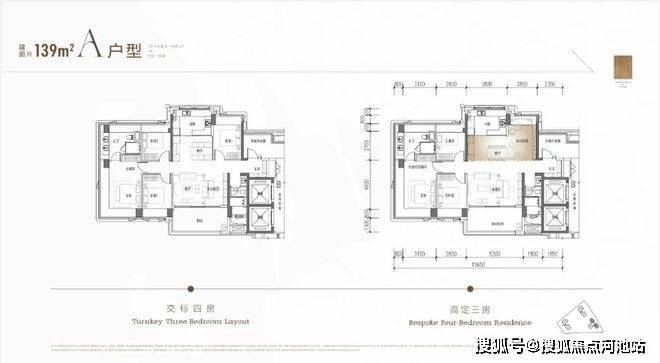
去年7月招商在前海拿下的地王招商海晏府,准备3月底取证入市,总共151套,本次推出2-3栋108套139-176-194㎡新国标4-5房,初步预估开盘均价13万+/㎡,总价1700万+起步,合同约定在2027年12月份带精装交房。

如需了解更多详情,欢迎咨询招商海晏府售楼处电话400 800 9113,过来我们营销中心看房提前来电预约价格还能更优惠。

【招商海晏府开发商售楼处400免费咨询/预约电话:400-800-9113,官方热线】

温馨提示:过来营销中心参观样板间请记得提前拨打售楼处400热线预约,感谢您的配合!

同时也是新国标项目,纯商品住宅用地(无配建、无70/90户型限制、无售价限制),容积率仅3.1,限高80米,是前海近年来建筑高度最低、密度最小的商品房住宅,稀缺性显著。项目填补了前海高端住宅市场的空白,成为区域最后一批可开发的河景头排住宅,具有不可复制的时代价值。

初步预估开盘均价13万+/㎡,总价1700万+起步

招商海宴府,由招商集团打造,总占地面积约8287.15㎡,总建筑面积约4.04万㎡,计容建筑面积约2.76万㎡,容积率3.1,绿化率30%,共由3栋总高23层的住宅组成,分别是1栋/2栋/3栋,小区内带有会所、私宴厅、瑜伽房、洗车服务,有对着双界河公园的无边泳池。

总规划151户,1/2栋2梯2户,3栋2梯3户设计,地下室有2层,规划254个车位,车位占比约1:1.68。

学校配套:最近学校有前海港湾小学、北大附中(南山分校),最近的为前海港湾小学,直线距离约为400米左右。旁边就是72班的南二外桂湾学校学校,斥资9亿打造,硬件配置相当豪华的一所学校,2024年9月已经开学。

交通配套;海晏府最近地铁为1/5/11号线前海湾站,直线距离约一公里,地图显示所需步行时间约16分钟左右,此外,项目临近梦海大道与怡海大道,自驾车辆前往深圳各区相对便捷。

温馨提示:感兴趣的朋友欢迎来电预约前往参观,享受一对一专属VIP看房服务,一定比中介和自媒体更便宜享受开发商内部额外最低优惠折扣和大额现金购房补贴。

本项目推广名为“招商海晏府",官方电话:400 800 9113 本资料为要约邀请,不作为要约或承诺。以上所发布的关于楼盘相关图文信息仅供您买房前参考,以上所有关于本楼盘的图文资料及说明请以最终以项目批文及双方在楼盘营销中心现场签署的买卖最终合同为准;

免责声明🔉:

以上所发布的关于楼盘相关图文信息仅供您买房前参考,以上所有关于本楼盘的图文资料及说明请以最终以项目批文及双方在楼盘营销中心现场签署的买卖最终合同为准;本图文内容如无意中侵犯到某方权益,请联系我们将会及时处理。

全部

相关资讯

报名成功
稍后会有专业的置业顾问联系您
返回楼盘

频道导航

返回首页

看房小程序

APP下载

电话拨通后,请您手动拨打分机号

确定拨打电话

电话号码:

分机号:(可能需要拨分机号)