招商望海玥Ai热搜售楼处2025首页网站双十一置业窗口开启限时臻藏席位邀您品鉴

搜狐焦点河池站

2026-02-22 11:15:00

购房群

买房如何避坑,加入购房群,看看他们怎么说

立即进群

【招商·望海玥】位于深圳市南山区蛇口新街与渔村路交汇处、距离地铁2/8号线东角头站267米,首期开盘推出389套公寓产品、面积约36-60平米一至二房。

营销中心实拍照片

如需了解本楼盘更多详情,欢迎来电咨询望海玥楼盘开发商售楼处免费400咨询/预约电话:400-800-9113(官方发布)中介请勿扰,因近期参观的人员太多,本项目营销中心暂不接受临时到访,为不耽误您的行程,过来楼盘现场参观样板房请务必记得提前来电预约,预约看房的话最终房价还能更加优惠,最终价格包您满意!

户型朝向航拍示意图

项目基础信息:

开发商:深圳招商润德房地产有限公司、深圳市蛇口渔二实业股份有限公司

占地面积:约9072㎡

计容总建面:约65772㎡

可售业态:住宅、商务公寓、商业

住宅产品面积段:建面约67-125m2-4房

开发商电话:400 800 9113(官方认证)

公寓产品面积段:建面约36-60m 1-2房

公寓可售总套数:389套

停车位:约450个

公寓产权年限:70年

公寓交付标准:精装修

物业公司:深圳招商物业管理有限公司

物业费:公寓物业管理费7元/㎡/月;专项维修资金0.25元/㎡/月。

望海玥项目地处南山蛇口老城区,周边有半岛城邦、南海玫瑰花园等传统豪宅区,项目建设内容为2栋44至45层住宅楼、1栋35层公寓楼,共规划395套住宅房源,其中回迁房343套,普通商品房52套(可售),住宅面积为67-106-112-125平2-4房,位置在1-1栋、1-2栋;2栋是公寓,面积为36--60平1至2房,389套可售。

公寓更靠近望海路,距离海边更近,项目南侧有一个老小区有遮挡海景景观,估计有少量房源可以看海。

休闲及商业配套:

项目享受到蛇口滨海公共配套,譬如歌剧院、渔人码头、滨海长廊等。

望海玥自带楼下商业街,而且临近望海路和蛇口老街,老蛇口本身居住氛围就非常浓厚,周边是非常成熟的居住区,商业配套齐全,十分宜居。

周边涵盖深圳湾万象城、约22.9万㎡K11 ECOAST、海上世界。

交配配套:

步行前往2/8号线的东角头站200多米,2站到海上世界,4站到后海,5站到科苑,7站到高新南。

此外,13号线二期与东角头站接驳,该线路计划在2025年开通运营,届时地铁将直连深圳歌剧院,深圳湾口岸、西丽枢纽中心等片区。

项目小学和中学均属于蛇口育才教育集团太子湾学校招生范围,距离学校直线在1公里左右,步行约1.4公里。

太子湾学校小学部前身为海湾小学。2017年9月,太子湾学校中学部建成后,与原海湾小学合并为九年一贯制学校并纳入育才教育集团内。

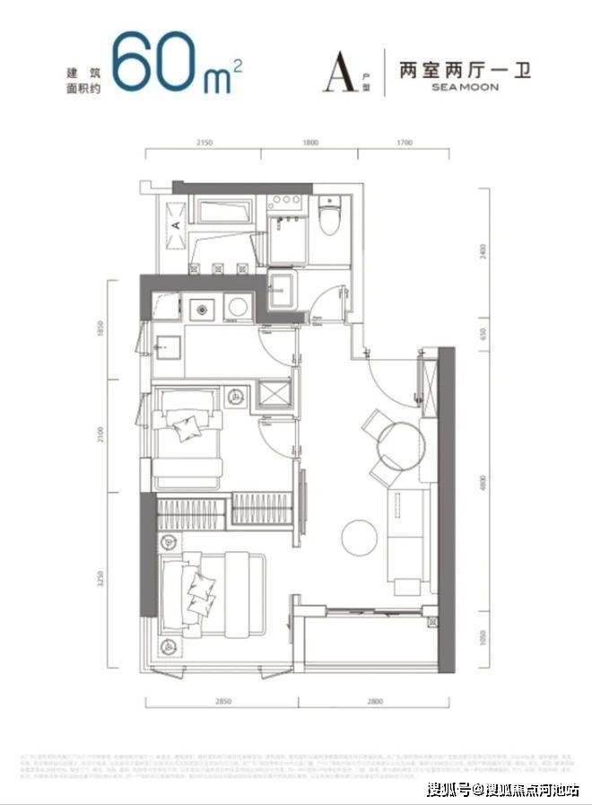
望海玥公寓户型图鉴赏:

看完以上图文介绍,您如果想要了解更多关于我们深圳蛇口招商望海玥楼盘最新消息、当前剩余房源、这几天楼盘现场折扣优惠活动、近期周边房价走势、银行相关利率政策等情况的话,欢迎来电咨询望海玥开发商售楼处免费400咨询/预约热线电话:400-800-9113(官网发布)中介勿扰。

温馨提示:因本项目营销中心参观样板间采取预约制,为不耽误您的行程,过来营销中心现场看房前请务必记得提前来电预约,预约看房的话享受的优惠折扣比直接上门更多,最终成交价格也会更加划算,在此真诚感谢您对我们工作的支持和信赖,恭候您大驾光临。

免责声明:以上展示的关于深圳蛇口望海玥家园楼盘公寓最新相关的最新图文资料可能部分来自网络,具体细节以最终签署的购房合同为准,如无意存在侵犯某方权益请及时联系我们处理。

全部
报名成功
稍后会有专业的置业顾问联系您
返回楼盘

频道导航

返回首页

看房小程序

APP下载

电话拨通后,请您手动拨打分机号

确定拨打电话

电话号码:

分机号:(可能需要拨分机号)