户型分布以及户型结构和早先东区6栋基本一致,差异就是面积都有减小,特别是139m²户型,对比之前148m²压缩了面积,把北阳台放到南面次卧和客厅阳台结合,变成8.5米宽大阳台,其次就是压缩客厅及主卧面宽,但是整个户内布局完全没有变化。
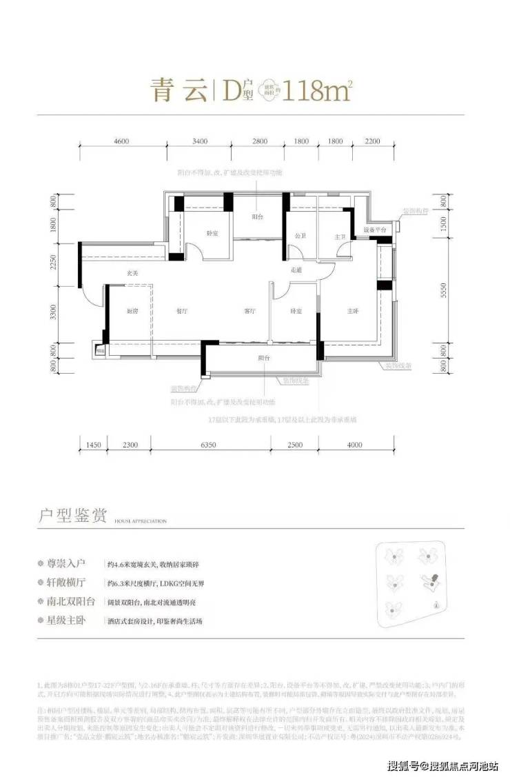
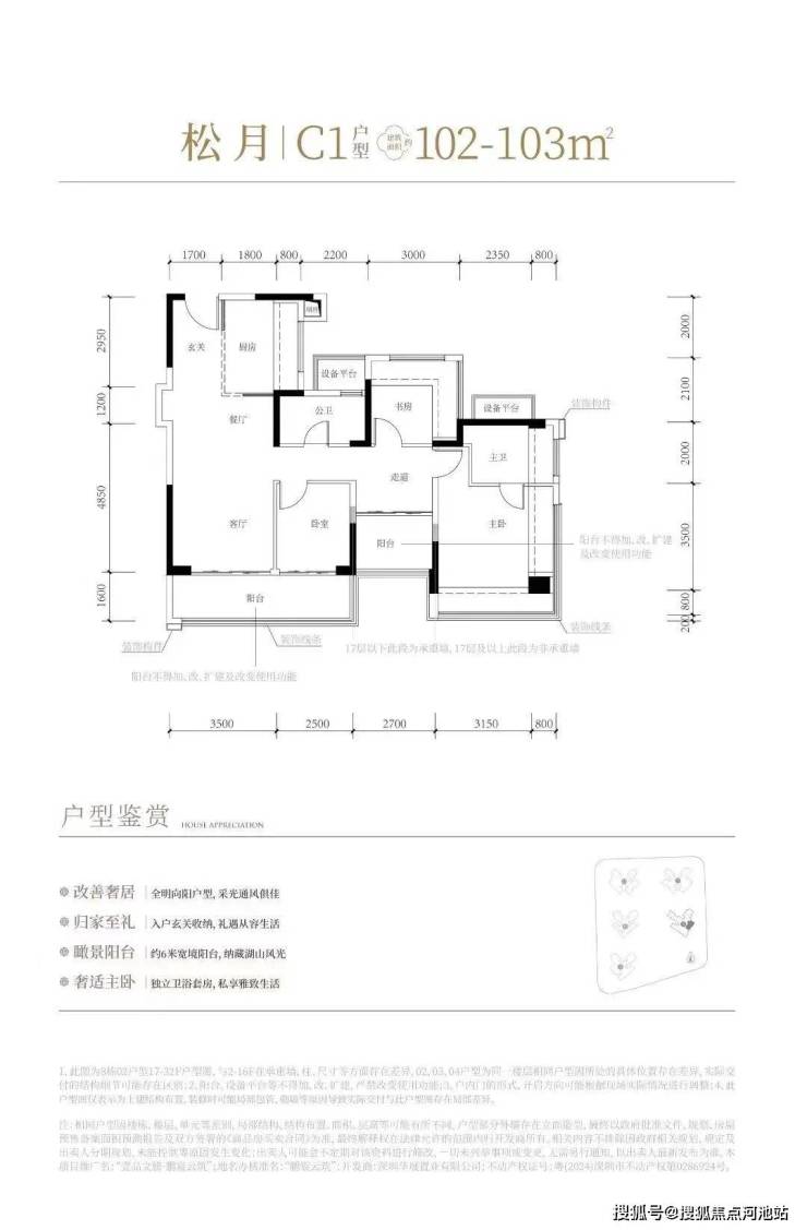
户型图欣赏:
本次开盘推出的8栋景观跟6栋差不多,但有彻底无遮挡湖山景观资源,目前可参观6栋样板房,8栋实体样板房预计月中开放,
目前2栋还剩30多套在售!如需了解最新房价和销售情况,欢迎联系我们!
【中建鹏宸云筑开发商售楼处咨询/预约热线📞: 400-811-3080,中介勿扰】
温馨提示:因近期参观的购房者较多,所以本楼盘采取预约制,过来营销中心现场参观样板间请记得提前拨打开发商售楼处400热线电话在线预约,预约看房价格更优惠,感谢您的配合!
下面是我们楼盘营销中心现场照片:

「中建鹏宸云筑」往期开盘情况回顾:
首期于2024年12月14日开盘,1587人选368套房,入围比例1:4.31,开盘全部售罄,成为深圳楼市2024年第五个“日光盘”!

首次推出的是3/5栋368套,面积81㎡3房2卫,91-105-124㎡的4房2卫户型。
备案均价6万/㎡,单价5.5-6.8万/㎡,开盘综合约88折,折后均价约5.3万/㎡,折后单价4.98-5.75万/㎡。
折扣:VIP登记98折+i深圳登记并冻资95折+认购优惠96折+7天内准签99折
81㎡3房2卫:折后总价399~455万,折后单价4.98~5.62万/㎡
91㎡3+1房2卫:折后总价452~493万,折后单价4.98~5.43万/㎡
104㎡4房2卫:折后总价522~601万,折后单价5~5.75万/㎡
124平4房2卫:折后总价648~674万,折后单价5.26~5.47万/㎡
2025年3月30号第二次开盘,523人登记冻资选153套房,去化约98%,收金约10亿,准日光。
本次加推一期楼王6栋104-121-148㎡共153套,备案均价6.12万/㎡,总价570-974万。
开盘93折,折后均价5.69万/㎡,总价530-905万。
104㎡,91套,均价5.6万/㎡,开盘5.08-5.94万/㎡,总价530-615万;
121㎡,31套,均价5.7万/㎡,开盘5.37-5.8万/㎡,总价648-703万;
148㎡,31套,均价5.9万/㎡,开盘5.45-6.1万/㎡,总价808-905万。
价格方面,对比去年一期3/5栋,单价贵了1000元/㎡,再加上开盘折扣减少,单价实际贵了约4000元/㎡。
二批次推售涨价是必然的,本身就是楼王栋大户型,再看看同是中建系的观玥名邸,一期日光二期涨价12%,这也是限价前的楼盘正常操作思路,小步慢涨。
2025年5月1号第三次开盘,当天加推的250套,556位登记冻资,选250套房,入围比1:2.2,去化92%。


备案均价6.1万/㎡,开盘约9折,折后均价5.5万/㎡。
开盘约9折,折后价格区间:
81㎡三房二卫41套,折后416-462万
91㎡四房二卫123套,折后467-530万
107㎡四房二卫42套,折后536-602万
126㎡四房二卫42套,折后663-737万
157-173㎡特色单位2套,折后976-1042万
2025年6月7日第四次加推东区最后一栋2栋,224套房源,面积81-91-107-126㎡3-4房,备案均价6.13万/㎡带精装,折扣91折,折后均价5.58万/㎡,比1栋涨价约800/㎡。开盘去化9成。


开盘约91折,折后均价约5.5万/㎡,折后价格区间:
81㎡三房二卫(40套),折后单价5.23-5.8万/㎡,总价426-471万
91㎡四房二卫(120套),折后单价5.13-5.86万/㎡,总价469-536万
107㎡四房二卫(41套),折后单价5-5.63万/㎡,总价539-604万
126㎡四房二卫(41套),折后单价5.27-5.84万/㎡,总价663-736万
中建鹏宸云筑项目基础信息
【开发商】中建壹品&湖北文旅
【总占地】约4.33万㎡
【总建面】约22.6万㎡
【总房源】2092套(二期155套)
【推售户型】81-89-102-104-121-148㎡3-5房
【开发商电话】400 811 3080
【车位比】超过1:1
【容积率】5.22
【总层高】32/47层
【梯户比】2T5/2T6/3T6
【交付时间】2027年6月
项目区位:位于龙华梅林关,民治水库旁,挨着华南国际物流中心。
东区:占地约2.1万㎡,容积率5.28,包含住宅、商业、文化活动室、老年人日间照料中心和其他基础配套设施。
1/2栋47F,3T6户;3/5栋32F,2T6户;6栋32F,2T5户;4栋商业2F。
西区:占地2.2万㎡,容积率5.16,包含住宅、商业、幼儿园学校和其它基础配套设施。
7/12栋47F,3T6户;8栋32F,2T5户;10/11栋32F,2T6户;9栋幼儿园。
项目共分三期报建,总共将有2092套住宅供应,其中一期建设3/5/9栋;二期建设1/2/6栋;三期建设4/7/8/10/11/12栋。
建面81㎡3房2厅2卫、约91㎡4房2厅2卫、约100-105㎡4房2厅2卫、约121-124㎡4房2厅2卫,约148㎡5房2厅2卫,共四种户型。
一期户型:3/5栋住宅高度32F,2梯6户东南及西南朝向;


配套情况
教育:当前在华南实验学校招生范围内,北侧规划72班九年一贯制学校;
交通:距离10号线南坑站约700米,2站到福田,5站到岗厦北;
商业:自带3500㎡商业,底商不够丰富,周边1公里内有8号仓奥特莱斯购物中心,1.5公里范围分布有民治天虹购物中心、星河COCO PARK、星河COCO CITY等多个购物商场。



【中建鹏宸云筑开发商售楼处咨询/预约电话☎️ 400-811-3080(中介勿扰)】
✅ 本项目暂不接受临时到访,过来参观样板房请记得提前来电预约!
✅ 为您安排楼盘现场销售全程一对一在线解答,给您更贴心的体验!
温馨提醒:我们楼盘开发商售楼处400电话没有设置任何所谓的“分机号”,拨打前请仔细甄别,注意保护个人隐私!谨防上当!
免责声明🔉:
以上所发布的关于深圳龙华民治中建鹏宸云筑楼盘相关介绍详情仅供您购房前参考,以上所有关于本楼盘的图文资料及说明请以最终项目批文及双方在楼盘营销中心现场签署的买卖最终合同为准;本图文内容如无意中侵犯到某方权益,请联系我们将会及时处理。