南山桑泰缙樾府|桑泰缙樾府(桑泰缙樾府)首页网站-2025楼盘测评_桑泰缙樾府|最新价格|配套户型

搜狐焦点河池站

2025-06-05 17:08:00

购房群

买房如何避坑,加入购房群,看看他们怎么说

立即进群

【桑泰缙樾府】

深湾上城舒配大邸

约114-133㎡4-5房,改善宽宅

户户南北通透,90%高使用率,低门槛即入!近南山科技园,开车10分钟到科兴。

如需了解更多详情,欢迎咨询桑泰缙樾府售楼处电话400 811 3080,过来我们营销中心看房提前来电预约价格还能更优惠。

【深圳桑泰缙樾府售楼中心400免费咨询/预约电话:400-811-3080,中介勿扰】

温馨提示:过来营销中心参观样板间请记得提前拨打售楼处400热线预约,感谢您的配合!

项目基础信息

【总用地面积】9054.12㎡

【总建筑面积】47780.16㎡

【物业类型】住宅

【产品年限】70年(2020-2090年)

【容积率】约3.62

【绿化率】50%

【产品面积】约114-115-118-133㎡4-5房

【总户数】220户

【总楼层】30-31层、层高3.1米

【梯户比】三梯四户

【使用率】约92%

【均价】约6.9万

【交房标准】精装

【交房时间】2026年6月30

【车位比】1:1.36(共300个)

【管理费】6.68元/㎡/月

【开发商电话】400 811 3080

【物业公司】深圳市厚德物业服务有限公司

【开发商】深圳市塘泰投资发展有限公司

【项目地址】深圳南山南头·地铁12号线同乐南站附近(同乐实验学校旁)

1、“深湾上城“价值集核

缙樾府择址南山核芯区——南头同乐,立处深湾中轴之上,谓之“深湾上城”。项目位处城市GDP第一的南山区,集合前海、后海、深圳湾三湾上城之势,串联起深圳湾超总、科技园、留仙洞等五大总部基地,将磁吸近260万人才聚集。

2、深湾核芯总部云集

缙樾府落位深湾核芯,周边三轴拱卫,深圳五大顶级总部基地环绕,联动西丽高铁新城增长极,形成立基于深湾之上的产业价值能级跃升。

【留仙洞总部基地】打造国际化战略新兴产业CBD,规划约60万高端就业人口,10万高素质居住人群。

【南山科技园】国家创新型城市的核心区域,就业人口约60万人。

【前海深港合作区】定位国家战略性门户枢纽,未来将打造成世界级城市新中心,规划就业人口约65万人,居住人口约15万人。

【后海金融总部基地、深圳湾超级总部基地】中国总部企业最为密集区域之一,规划就业人口约54万人。

3、五位一体格局深湾上城改善圈

缙樾府所处同乐区域规划能级跃升,实现五位一体联动发展,未来将汇聚大量的企业和人才,承接这几个片区人才的居住需求,打造南山区交通方便、配套完善、环境优美的多功能综合城区。

立处南山核芯——深湾上城,周边配套齐全,拥有丰富的教育、商业和休闲资源,是繁华与自然相融合的宜居之地。

1、真正的便捷世界举步即达

1枢纽

近距西丽高铁新城,距离高铁站约3km近享赣深客专、深茂铁路、深汕铁路、深珠城际4条高铁串联,深惠城际、深莞增城际2条珠三角城际铁路。

2地铁

地铁12号线(同乐南站)约800米,1站中山公园5站科技园;未来还有15号线南山核心环线(在建),串联前海、南山和宝安核心;以及24号线(规划中),开通后4站抵达高新园。

3路网

坐拥两横一纵路网交通,两横为:京港澳高速、北环大道,一纵为南海大道,占据南山区横纵两条主干道,可快速到达深圳各个区域。

2、家门口的学校,就是最好的学校

真正的“以学为邻”,南山区教科院(教育科学研究院)同乐实验学校下楼即达,实现目送式上学,大人小孩私享半小时睡眠休闲时光。

教科院:曾创办南山第二外国语学校,现已发展为南山第一梯队名校。教科院同乐实验学校是教科院成立以来的第一所实验学校,预计承袭南二外的成功经验和成果。

南山实验教育集团园丁学校、深圳市博纳学校在旁,12年教育资源一步到位(含规划中共有11所幼儿园+5所九年一贯制+1所小学+1所高中)。

近邻“深圳十强、广东省二十强”博纳学校、公办18班华泰幼儿园,人文优教荟萃,护航孩子成长。

3、寻谧自然公园簇拥的“家”

☘一面会晤城市繁华,一面悠享自然诗意。

周边近167万方的生态公园绿地,中山公园、南头古城、荷兰花卉小镇、荔香公园等优质生态配套,同时项目北侧规划2.5万方公园绿地,畅享南山3公里Citywalk生活圈。

4、黄金3公里丰盛生活圈

缙樾府集萃湾区黄金3公里范围内繁盛资源,予以张弛生活的尺度。

繁盛商业

南山农产品市场近在咫尺,一路之隔是约1万㎡隆尚minitown(开业在即),直线距海雅缤纷城约1.6km;

【3km范围内】中洲购物广场、勤诚达K+广场、云城万科里商业MALL聚集;

【5km范围内】畅享壹方城、万象前海等大型商业,繁华纳藏高级烟火情怀;

甲级医院

约3km范围内宝安区人民医院、南山区人民医院、宝安区中医院等三甲医院环伺,其中宝安区人民医院直线距离项目仅700m;

人文之源

还有1700年历史南头古城,居南山人文五朵金花之首;南山博物馆、图书馆、文体中心、文化馆毗邻,近距深圳大学,人文气质满格。

1、精工匠心雕琢生活品质

对标世界建筑的隽永审美,遴选高规格香槟灰铝板立面。

以现代简约的建筑风格,雕琢现代建筑的挺拔气质与精工质感。

围合式布局,围合生活私享领地的同时,匠心构筑“生命之树”主题园林;

5重园境聚场,落地一座趣味、愉悦、舒适的艺术社区生活秀场。

2、以阔绰尺度勾勒空间维度

精准洞察高端圈层定制化居住需求,致献城市高奢人居范本——缙樾府;

以8大樾级产品品质,升级人居体验,匠造城市进阶臻品。

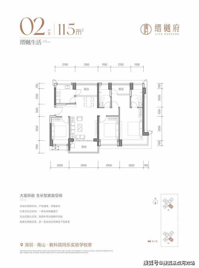
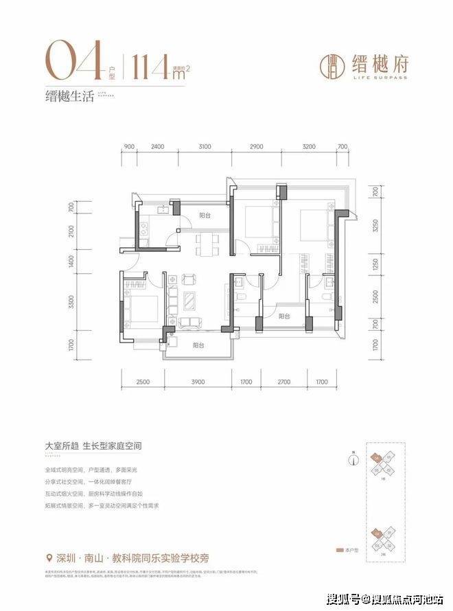
——户型赏析——

大室所趋生长型家庭空间

全域式明亮空间,户型通透,多面采光

分享式社交空间,一体化阔绰餐客厅

互动式烟火空间,厨房科学动线操作自如

拓展式情景空间,多一室灵动空间满足个性需求

奢阔宽境全龄成长空间

奢敞式感官空间,四开间,阳光满屋

聚场式互动空间,家庭奢阔欢聚宽厅

沉浸式观景空间,大面屏宽景阳台

进阶式休憩空间,高配版尊崇主卧套房

深圳桑泰缙樾府开发商售楼处电话 400-811-3080(中介勿扰)

过来售楼中心看房请提前预约,可尊享内部特惠,价格包您满意!

为您安排楼盘内场专业销售人员一对一接待服务!让你买的放心,住的舒心!

免责声明🔉:

以上所发布的关于楼盘相关图文信息仅供您买房前参考,以上所有关于本楼盘的图文资料及说明请以最终以项目批文及双方在楼盘营销中心现场签署的买卖最终合同为准;本图文内容如无意中侵犯到某方权益,请联系我们将会及时处理。

全部

相关资讯

报名成功
稍后会有专业的置业顾问联系您
返回楼盘

频道导航

返回首页

看房小程序

APP下载

电话拨通后,请您手动拨打分机号

确定拨打电话

电话号码:

分机号:(可能需要拨分机号)