最新消息:松茂御城二期,首推1栋B/G/H/E座这4栋。
【1栋B/G/H/E座折后总价区间】
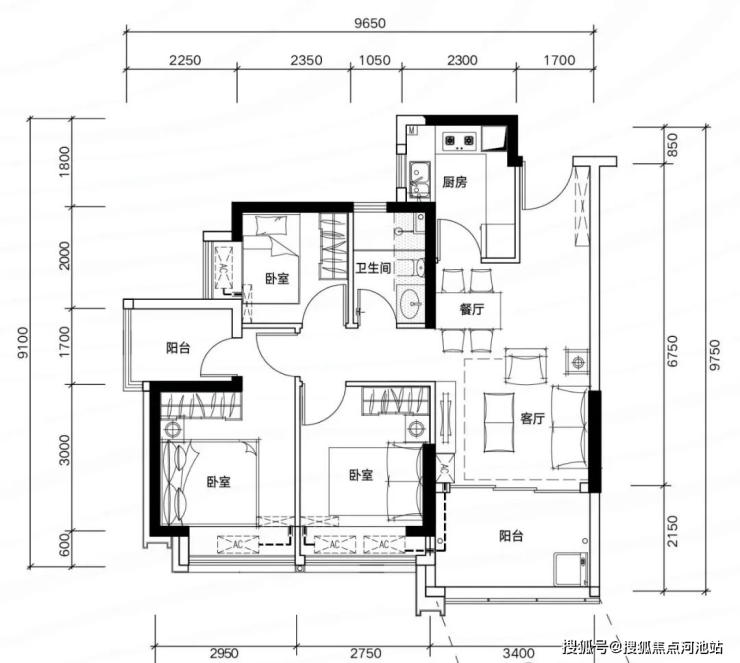
81㎡三房两卫277-305万
88㎡三、四房两卫308-350万
109㎡四房两卫409-450万
137㎡五房两卫508-548万
如需了解本楼盘更多详情,欢迎来电咨询深圳松茂御城开发商售楼处免费400咨询/预约电话:400-880-7297(官方发布)中介请勿扰,因近期参观的人员太多,本项目营销中心暂不接受临时到访,为不耽误您的行程,过来楼盘现场参观样板房请务必记得提前来电预约,预约看房的话最终房价还能更加优惠,最终价格包您满意!

项目基础数据
开发商:深圳市松茂房地产集团有限公司
开发商电话:400 880 7297
总建面:约30万㎡
容积率:约4.55
绿化率:约40%
车位数:2222个
物业费:3.8元/㎡/月
物业公司:深圳市海天泰物业管理有限公司
项目地址:深圳市光明区·13号线月亮路站西侧
二期规划平面图
项目核心价值
【全功能户型】约81-135㎡N+1全功能空间,满足不同家庭居住需求:
81㎡三房两厅两卫,空间利用极致,功能齐全。
89㎡四房两厅两卫,同等面积多一间房,二孩家庭也能三代同堂。
108㎡阔绰四房两厅两卫,部分独立入户,品质生活一步到位。
135㎡稀缺阔绰五房两厅两卫,奢阔平层独门独户,悦享宽境奢居。
【铝板外墙】光明新盘中少有的铝板外墙项目,铸就精工品质。
【幕墙式阳台】约1.8米高全定制一体成型外挂式阳台玻璃,双层夹胶中空LOW-E玻璃打造而成。
【高品质公区配置】首层、地库双层精装入户大堂,每个楼座均配备约33-68㎡首层入户大堂。
【超阔楼间距】南北约128米超阔楼间距,视野开阔无遮挡,私密性更好。
【社区大园林】约2万㎡全龄互动大园林,打造一园五境“度假公园”式社区园林。
【高抬水韵主入口】主入口叠水流瀑搭配罗汉松,高抬轩昂门庭彰显尊荣威仪,于步步高升中体验归家的仪式感。
【双层架空泛会所】约6500㎡三层屋顶花园与双层架空层,规划5大沉浸式休闲场景,满足老人、儿童、青年的日常休闲运动所需。
【林水主题艺术中庭】以“与自然为邻”为设计理念,将自然渗透社区,形成各有特色的林水主题艺术中庭,在居住区中演绎自然艺术生活场景。
【约410㎡浮光亲子双泳池、约300米元气健康跑道】沉浸式体验“度假公园”式社区园林。
【约30万㎡低密大社区】光明少有的非超高层低密度大社区,低密度更宜居。
精工准现楼】建筑品质、装修品质等所见即所得。
【核芯地段】归属凤凰街道,邻约383万㎡13号线重点城市更新,区域规划升级红利正逐步兑现。
【双地铁站】邻13号线(在建中)月亮路站与将围站,1站凤凰城,9站进南山。
【2+1实力学府】深实验光明明湖学校+深中光明科学城学校,光明区实验学校,周边还规划有两所九年一贯制学校。
匠心打造 铸就精工品质
铝板外墙 幕墙式阳台:立面甄选高品质铝板,以精湛工艺锻造精工品质,赋予建筑历久弥新的质感。搭配玻璃幕墙式阳台,勾勒简约时尚的建筑艺术,彰显人居价值与美学价值。

精装入户大堂 高品质区打造
首层、地库双层精装入户大堂,每个楼座均配备约33-68㎡首层入户大堂,首层大堂约4米挑高,营造高星级酒店般的尊崇归家体验。

南北约128米超阔楼间距
围合式布局,南北高达约128米阔绰楼间距,保障良好采光与生活私密性,于四季风光流转中,让生活与自然坦诚相见。

约2万㎡社区大园林
容纳双层架空泛会所、活力健康跑道、阳光草坪、露天亲子双泳池等多元休闲场景,打造“度假公园”式社区园林。
【高台阔府 水韵门庭】入口处叠水流瀑搭配罗汉松,高台轩昂门庭彰显尊荣威仪,于步步高升中体验归家的荣耀。
【双层架空泛会所 】融合儿童活动区、老年活动区、青年运动馆、会客厅等休闲场景,勾勒全龄温情日常。
【浮光亲子双泳池】约410㎡浮光亲子双泳池,配备成人泳池与独立儿童池,安全之上,更享自在畅泳的亲水时光。
【元气健康跑道】约300米环形跑道,穿行林荫花径激活满满能量,在自然中奔跑,邂逅运动的无限乐趣。


约30万㎡非超高层 低密大城 品质生活范本
项目总建面约30万㎡,是光明少有的非超高层低密度大社区;项目二期由8座塔楼和一所幼儿园围合而成。

精工准现楼 所见即所得
项目精工准现楼发售,建筑品质、装修品质等所见即所得。

松茂御城住宅户型鉴赏 :
H01户型:约81㎡ 三房两厅两卫:

H02/03户型:约81㎡ 三房两厅两卫:

G03户型:约81㎡ 三房两厅两卫:

G05户型:约82㎡ 三房两厅两卫:

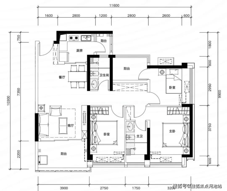
B01户型:约89㎡ 四房两厅两卫:

B02户型:约89㎡ 四房两厅两卫:

B03/05户型:约89㎡ 四房两厅两卫:

B06 户型:约109㎡ 阔绰四房两厅两卫:

G02户型:约109㎡ 四房两厅两卫:

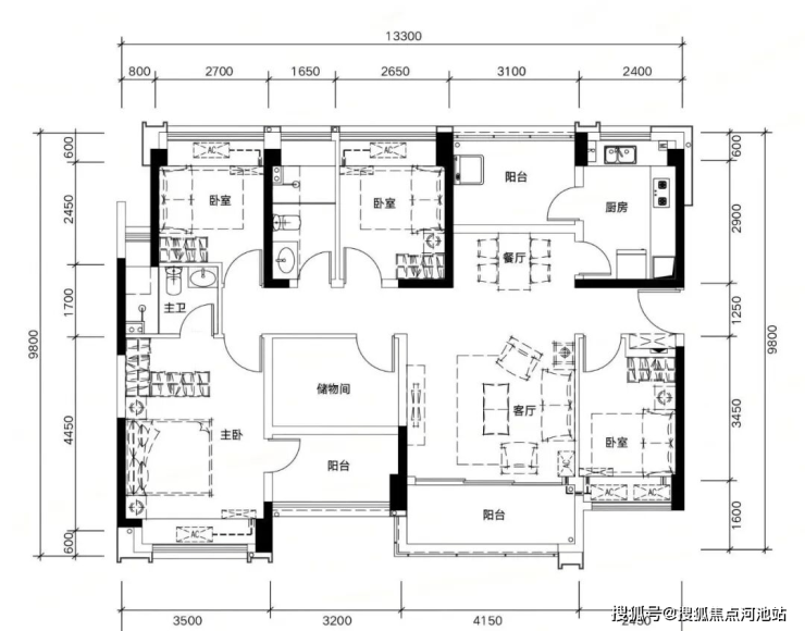
G01户型:约135㎡ 五房两厅两卫:

E03户型:约135㎡ 稀缺五房两厅两卫:

邻383万㎡13号线重点城市更新
项目位于广深港科创走廊重要节点的“世界一流科学城”光明,归属凤凰城街道,邻建面约383万㎡13号线重点城市更新单元(在建),占位光明城市发展的“价值洼地”,同享磅礴产业规划红利。13号线重点更新项目(在建),总投资约420亿元,其体量约为光明城站TOD的25倍。将结合13号线月亮路站塑造、城市蓝绿公园网络提升、产城空间更新,无限链接生产、生活、生态要素,建设成光明区“三生融合示范区”。

目前一期产业约36万㎡已竣备完工,预计2025年内交付;深实验光明明湖学校2025年已正式招生办学;凤凰文体中心等已立项,高规格城市配套正逐步兑现。
多维立体交通 便捷畅行大湾区
【13号线双地铁站】邻地铁13号线(预计2026年开通),近享月亮路站与将围站,未来1站凤凰城,9站进南山,快速接驳南山科技园。
其中地铁13号线一期(深圳湾口岸站—上屋站)的南段(深圳湾口岸站—高新中站)已于2024年12月28日正式开通初期运营。2025年5月19日,13号线一期工程北段(高新北站至上屋站)顺利完成热滑。北段预计2025年年底开通。
【三纵路网】松白路、南光高速、龙大高速,高效链接福田、南山。
【四横路网】光明大道、东明大道、周家大道、公明大道,畅行光明繁华。
【一高铁站】快速接驳光明城高铁站,1站深圳北,2站达福田,3站速达香港西九龙/广州南。
全龄学府邻立 滋养菁英未来
【自建幼儿园】社区自建约2400㎡9班公立幼儿园(在建),家门口的快乐启蒙。
【全龄优质学府】距深实验光明明湖学校(已正式招生办学)直线距离约800米,周边更有深圳市光明区实验学校、深圳中学光明科学城学校、深圳市光明区凤凰城实验学校等九年一贯制学校,护航孩子更好成长。

多维社区配套 畅享一站式生活体验
【商业服务】约1.3万㎡社区商业,涵括生鲜超市、社区邮局、银行等,满足生活所需。
【社区交通】社区公交首末站,无需辗转等待,高效通勤无缝接驳周边轨道交通,出行更便捷。
【颐乐康养】社区托育中心、老年活动中心、老人日间照料中心,给家人更多关爱。
【公共绿地】约1万㎡市政公共绿地(规划),拓展多元休闲,打造第二会客厅,提升日常幸福感。

醇熟商圈 尽享繁华
约38万㎡醇熟商业,享繁华万象:约1.3万㎡社区商业(在建)、约6万㎡13号线城市更新商业(在建),5公里内同享约15万㎡光明大仟里、约10万㎡蓝鲸世界、约6万㎡万达广场等醇熟商业。

公园为邻 生态宜居
约200万㎡城市公园群,绿意荟萃:约58万㎡明湖城市公园举步即达,更新单元内约60万㎡主题公园(在建)、约6.8km茅洲河生态长廊等绿意荟萃。

多元文体 休闲逸趣
三馆一心文体配套,丰富休闲生活:13号线重点城市更新片区内规划城市展厅、博物馆、凤凰文体中心等三大场馆,3公里内近享光明文化艺术中心,涵养高阶生活逸趣。

稳健致远 品质交付铸就基业长青
松茂集团,以深圳为核心,重点落子粤港澳大湾区城市群,辐射华南布局全国。集团严守交付承诺,以精工品质兑现理想人居,先后开发了福田鸿运阁、宝安御景湾、御龙湾、柏景湾等众多优质项目,无论是人居品质还是交付保障,都深受市场好评。二十余年稳健发展,集团构建了房地产开发、建筑工程施工、物业管理、智慧园区、金融投资管理、商业运营六大板块,屡获殊荣,成为本土知名品牌房企。


看完以上关于深圳光明区松茂御城楼盘二期最新相关的图文介绍,如果您对我们楼盘感兴趣的话,建议您可以联系我们松茂御城开发商售楼处电话:400-880-7297 进行免费咨询或对接楼盘现场销售人员(中介或自媒体请勿扰),我们可以为您安排本楼盘现场销售一对一在线服务,比如把楼盘的最新图文资料、样板间视频、通过微信发给您看、您不需要过来楼盘现场就能够熟悉个大概,还可以告诉您关于深圳“松茂御城”楼盘的优点缺点、楼盘近期优惠政策、银行贷款政策以及LPR利率、积分入学,等问题都给你讲解的明明白白,让您买房不踩坑,毕竟买房是大事。找现场销售咨询并不需要额外花钱,反而更省钱,而且可以避免中介虚报价格浪费你的时间和精力,我们会把额外认购优惠、按时签约优惠、贷款政策优惠、一次性付款的优惠告诉您,希望您能通过这个网络平台,全面了解我们的楼盘信息并顺利完成购房流程。