
如需了解本楼盘更多详情,欢迎来电咨询中信城开红树湾开发商售楼处免费400咨询/预约电话:400-811-3080(已认证)中介请勿扰,因近期参观的人员太多,本项目营销中心暂不接受临时到访,为不耽误您的行程,过来楼盘现场参观样板房请务必记得提前来电预约,预约看房的话最终房价还能更加优惠,最终价格包您满意!
最新消息:福田【中信城开红树湾】7套保留房源已推出,八万多的价格!
中信城开·红树湾位于深圳市福田保税区红花道与香樟道交汇处,毗邻福田红树林公园。总建筑面积66748.02㎡;计容积率建筑面积44638.62㎡;不计容积率建筑面积22109.4㎡;含商品房373户,安居房24户;以小户型为主,梯户比有2梯2户、2梯3户。
营销中心实拍照片
项目基本信息
【项目名称】:中信城开·红树湾
【建筑面积】:约32000㎡
【占地面积】:约9467平米
【 总层高 】:15层
【 梯户比 】:2梯2户/3户(亮点)
【可售房源】:317套
【户型面积】:59-63-79-93-119-143平,1房-4房
【开发商电话】:400 811 3080(官方认证)
【车位数量】:340个
【产权年限】:70年
【项目地址】:福田区红树林公园东侧红花道与香樟道交汇处
区域价值
从地理位置上看,项目紧邻福田CBD,北侧为香蜜湖金融中心;东侧为平安大厦、会展中心、市民中心;西侧是车公庙枢纽中心,南端是口岸,区位上讲是真正的福田中心区!
作为深圳市中心城区, 福田拥有全国含金量最高的中央商务区 —— 福田 CBD, 以及国家级科技创新平台 ——河套深港科技创新合作区。
站在新的历史节点, 福田将以河套深港科技创新合作区 , 香蜜湖新金融中心 ,环中心公园活力圈 , “ 三大新引擎 ” 为总牵引 ,突出科创、金融、时尚 “ 三大产业 ” ,瞄准中央创新区、中央商务区、中央活力区 ,“ 三大定位 ” , 奋力推动新三十年再出发,首善之区开新局, 启动全面建设 , 社会主义现代化典范城区的新征程!
三大金融聚集地
作为与北京金融街、上海陆家嘴并驾齐驱中国三大金融集聚地之一,福田拥有得天独厚的金融资源和区位优势,金融总量持续增长、机构密布。
近年来,福田高端机构扎堆集聚,本土世界 500 强总部企业增至 4 家,占全市的一半。2020 年,福田金融业增加值首次超过 2000 亿元,占全市近一半,深交所和全市近七成持牌金融机构齐聚福田。
交通配套
地铁:三号延长线福保站去年已经开通,距离1.3公里
商业配套
项目自带有商业裙楼,周边有天虹商场、福田口岸商业广场、永旺超市、卓悦INTOWN购物中心、星河COCOPark等等。
教育配套
周边配套小学是福苑小学(公办),初中是福田外国语中学(原名福田保税区实验学校);幼儿园则在距离项目约350米处有福田第八幼儿园。
医疗配套
项目距离最近的是福田妇幼保健院。
生态配套
项目隔壁就是最大的湿地公园-福田红树林湿地公园,运动休闲都能满足。部分中高层户型还可看深圳湾海景及红树林湿地景色。
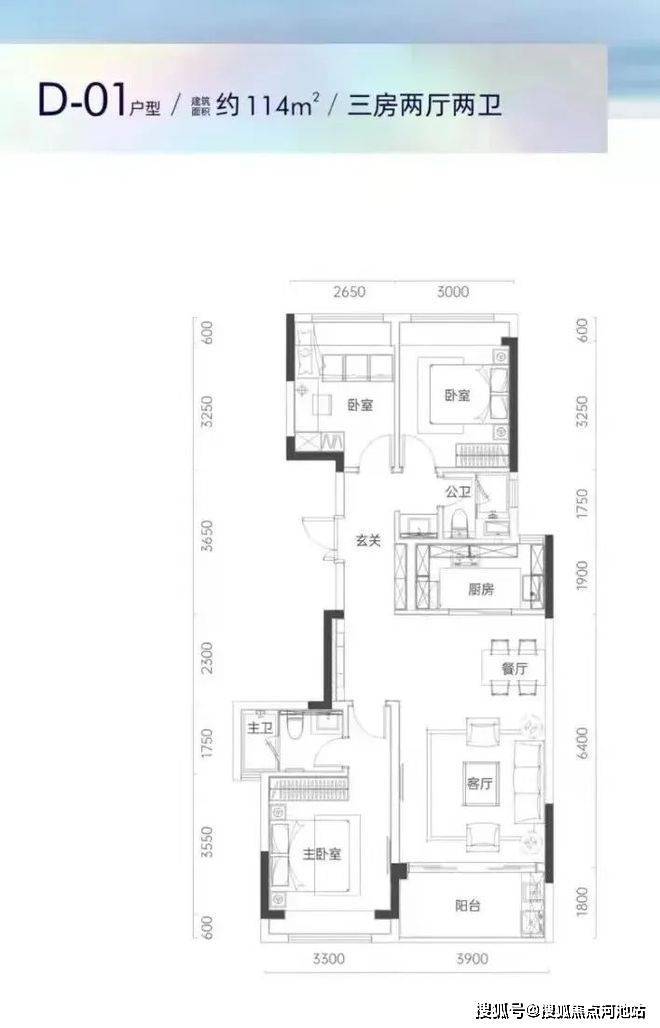
户型鉴赏
看完以上介绍,如需了解更多关于我们深圳福田中信城开红树湾楼盘最新消息、剩余房源、折扣优惠活动、近期房价走势等情况,欢迎咨询中信城开红树湾开发商售楼处咨询/预约电话:400-811-3080(已认证)中介勿扰。
温馨提示:因本项目营销中心参观样板间采取预约制,为不耽误您的行程,过来营销中心现场看房前请务必记得提前来电预约,预约看房的话享受的优惠折扣比直接上门更多,最终成交价格也会更加划算,在此真诚感谢您对我们工作的支持和信赖,恭候您大驾光临。
免责声明:以上展示的关于福田区中信城开红树湾楼盘最新图文资料可能部分来自网络,具体细节以最终签署的购房合同为准,如无意存在侵犯某方权益请及时联系我们处理。