深圳盐田【望辰府.山海天成】建面约89-129平3-4房,精装现房,地铁2/8号线深外高站!

搜狐焦点河池站

2026-01-12 13:36:01

购房群

买房如何避坑,加入购房群,看看他们怎么说

立即进群

深圳盐田山海天成(备案名:望辰府)于2022年12月20日取证并开盘入市,本次推出1/2/3/4/7栋,共323套住宅房源,建筑面积有89㎡的3房2厅2卫,106-112-129㎡的4房2厅2卫,141-151㎡的复式洋房户型,原来备案均价5.24万/㎡,备案单价4.76-6.62万/㎡,总价在461-998万/套望辰府在2024年10月31日交房,交房带装修

最新消息:2024年3月盐田望辰府楼盘目前针对2号楼/4号楼单位,推出了工抵房单位,过来看房提前拨打望辰府楼盘开发商售楼处电话:400-811-3080 (中介勿扰)进行在线预约的话,可尊享开发商内部折后单价仅2.98万/平起,总的单价在2.98-3.5万/㎡区间,优惠相当于打了6.3折!数量有限,遇到千万别错过!

总价在317万起就能入手一套106平的4房!交房还送了精装!对比106平最低的备案价格502万,相当于直接优惠了185万!这个优惠力度不可谓不大,要知道目前盐田价格最低的新盘臻湾云庭,折后均价也要去到4.1万/㎡,还只是简装交房!

楼盘简介:

山海天成(望辰府),位于深圳市盐田区盐田港中青路中海半山溪谷西侧,梧桐山半山腰上,项目所在的板块属于盐田港全新开发的区域,该片区的楼盘基本上都是在2015年之后开发的,整体面貌较新,都是高档小区,附近有2/8号地铁线“深外高中地铁站”。

项目户型分布图

开发商介绍:

望辰府开发商是世纪金源集团,本公司是1所综合性跨行业的国际企业集团,项目总占地面积约3.08万㎡,总建筑面积约8.46万㎡,计容建筑面积约5.77万㎡,容积率1.8,绿化率40%,共由5栋总高16-26F的住宅+2栋6-10层的洋房组成,其中1/2/5栋住宅26F,3栋住宅16F,4栋住宅45F,6栋洋房10F,7栋洋房6F,8栋和9栋是2层高的商业,10栋规划1所幼儿园。

总规划474户,高层住宅全部2梯3户或2梯4户设计,停车位439个,其中充电车位132个。

望辰府户型图介绍:

90㎡的3房2厅2卫,设计的是经典竖厅格局,客厅3.4米开间,餐客厅一体化,三开间朝南,3个卧室分别是3米/2.9米/2.5米的宽度,L型厨房,得房率:78.38%(不含赠送),阳台朝东南或西南朝向,本次推出来的2栋朝东南向,看花园景观。

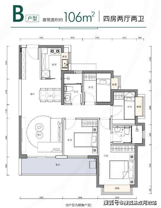
106㎡的4房2厅2卫,设计的是竖厅格局,客厅3.5米开间,三开间朝南,4个卧室分别是3.2米/2.9米/2.45/2米的宽度,L型厨房,得房率:80.14%(不含赠送),客厅连接卧室有1个6.4米长的超大阳台,朝正南或西南朝向,看花园景观。

109㎡的4房2厅2卫,设计的是竖厅南北通透格局,客厅3.6米开间,四开间朝南,4个卧室分别是3.2米/2.9米/2.7/2.2米的宽度,全屋飘设计,U型厨房,得房率:78.39%(不含赠送),客厅连接卧室有1个6.3米长的超大阳台,主朝东南或西南向,看花园景观。

112㎡的4房2厅2卫,设计的是横厅南北通透格局,客餐厅6.2米开间,三开间朝南,4个卧室分别是3.3米/2.9米/2.5/2.4米的宽度,全屋飘窗,U型厨房,公卫三段式分离设计,得房率:80.14%(不含赠送),6.2米长的超大阳台,朝正南或西南朝向,看花园景观。

128㎡的4房2厅2卫,设计的是横厅南北通透格局,客餐厅6.3米开间,三开间朝南,4个卧室分别是3.5米/3米/2.9/2.8米的宽度,全屋飘窗,U型厨房,公卫三段式分离设计,得房率:81.07%(不含赠送),6.3米长的超大阳台,朝正南向看花园景观。

129㎡的4房2厅2卫,设计的是竖厅双龙抱珠格局,客厅3.8米开间,四开间朝南,4个卧室分别是3.6米/3.2米/3米/2.7米的宽度,U型厨房,得房率:81.07%(不含赠送),客厅连接卧室有1个6.8米长的超大阳台,朝正南向看花园景观。

141-151㎡的复式洋房,上下2层,一层2户设计,客餐厅6.95米开间,中空客厅6米挑高,U型厨房,得房率86.17%(不含赠送),空间可塑性比较强。

项目周边配套

学校配套:项目自带1所12班制的幼儿园,根据2023年盐田区教育局划分,小学学区划分在云海学校小学部,初中学区划分在云海学校初中部,盐田区实验学校初中部,香港中文大学(深圳)附属山海学校初中部组成的大学区招生范围,旁边还有深外高中部。

其中云海学校小学部在2023年的录取积分是81.17分,根据盐田区教育局公布的积分政策来看,属于D类生源招生,学位还是相对充足的。

商业配套:项目周边都有社区底商可以满足日常生活需求,大型商业可以乘坐地铁2站到海山站,这里有盐田最大的壹海城购物中心,里面品牌众多,吃喝玩乐一条龙搞定。

交通配套:山海天成距离2/8号地铁线“深外高中站”约990米,步行需要15分钟,2站到海山站,3站到沙头角,4站到罗湖,整体的交通还是比较便捷的。

【望辰府开发商售楼处咨询/预约电话:☎️400-811-3080(中介勿扰)】

✅本楼盘样板房参观采取预约制,过来前请记得拨打开发商电话进行预约,预约看房价格更优惠,感谢您的配合!

✅我们将为您安排专业的楼盘内场销售人员全程为您接待, 给您提供更加贴心的看房以及购房服务体验!

特别注意:本楼盘开发商售楼部400电话没有设置任何所谓的“分机号”,拨打前请认真识别,注意保护个人隐私!谨防上当!

免责声明🔉:

以上所发布的关于深圳盐田望辰府楼盘相关介绍详情仅供您购房前参考,以上所有关于本楼盘的图文资料及说明请以最终项目批文及双方在楼盘营销中心现场签署的买卖最终合同为准;本图文内容如无意中侵犯到某方权益,请联系我们将会及时处理。

全部
报名成功
稍后会有专业的置业顾问联系您
返回楼盘

频道导航

返回首页

看房小程序

APP下载

电话拨通后,请您手动拨打分机号

确定拨打电话

电话号码:

分机号:(可能需要拨分机号)