位于龙岗大运的新楼盘——乐城3期(备案名:乐宸花园)新规住宅,得房率高达100%,本次开盘首推1-3栋住宅,共528套房源,其中83㎡做到了3房2卫(仅112套),99㎡竟做4房2卫,还有115-132m²的4房2卫户型。
乐城3期都是非超高层(29-32层),所有单元均为3梯6户,户型朝向错开设计,确保每一户都是全南向户型,采光充足。在装修方面,也进行了全面升级:
1、跑马客厅+跑马阳台媲美顶级豪宅装修品质;
2、户户朝南,超高窗墙比;
3、全三面采光巨幕全景舱,酒店化五进式归家场景,星空顶+双大堂+车马厅,全屋一线品牌豪装精装。
——✨乐城二期在售户型✨——
🔹 89㎡三房两厅两卫:爆款小面积 𝟯𝟭𝟬-𝟯𝟮𝟱万
🔹114㎡四房两厅两卫:舒居山景𝟰𝟬𝟯-𝟰𝟭𝟬万
🔹116㎡四房两厅两卫:南北通四房𝟰𝟯𝟬-𝟰𝟰𝟬万
🔹126㎡四房两厅两卫:南北通东南向大四房 𝟰𝟳𝟬-𝟰𝟴𝟬万
————✨项目价值✨————
1⃣深圳东部唯一双地铁项目
2⃣大运新城唯一城央公园大盘
3⃣龙岗唯一新规超100%使用项目
4⃣颐安集团深圳首个宸系作品
5⃣蕞美园林东方美学十二境,深圳首个园林科普系统
6⃣深圳蕞豪华归家礼序,深圳最豪60米门口+星空顶+双大堂+车马厅
7⃣【新规】产品约83-133㎡三四房
8⃣深圳东唯一约99㎡实现四房2卫
9⃣全屋收纳系统+9大精工细节+豪装交标
乐城3期,位于龙岗区园山街道龙岗大道与坳园路交汇处西北侧,项目北靠大运中心,大运软件小镇,西侧紧挨乐城公园,东南侧是阿波罗未来城。
颐安乐城,总共分5期开发,大运是深圳的六大城市会客厅之一,是整个东部的中心,大运中心市政配套、交通便利、教育配套、商业设施在整个东部来说是最好,项目靠近大运体育馆,承接了深圳60%的赛事,包括世界杯预选赛,各大明星演唱会都选择在这里,有世界级的恒温游泳池,篮球馆,羽毛球馆等公共设施,包括华润万象天地商业。
《乐城》由龙岗本土名企,颐安集团开发,总占地面积约1.88万㎡,总建筑面积约12.53万㎡,计容建筑面积约9.3万㎡,容积率4.8,绿化率40%,共由6栋总高31-32F的住宅组成,其中1栋1/4单元住宅32F,1栋2/3单元住宅31F,2/3栋住宅32F。
总规划887户,其中可售商品房460套,2梯4户/2梯5户/3梯6户设计,地下1层,停车位610个,车位占比约1:0.69。
项目基本信息
【项目名称】乐城二期
【占地面积】18832.14 m²
【建筑面积】125366.56 m²
【户型面积】79㎡-128㎡3房-4房
【交楼标准】精装交付
【交楼时间】2023年12月
【住宅套数】887户
【产权性质】住宅
【产权年限】70年
【车位数】610个
【容积率】约4.8
【开发商电话】400 811 3080
【绿化率】40%
【梯户比】2梯4户、3梯6户
【开发商】深圳市荷康房地产开发有限公司
【物业管理】深圳市颐安物业服务有限公司
【项目地址】龙岗大运新城荷坳地铁站D出口

平面图及户型图

二期住宅户型图




三期住宅户型图:
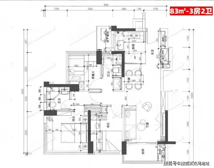
83㎡的3房2厅2卫,设计的是经典竖厅格局,客厅3.35米开间,LDKB一体化,S墙设计预留双开门冰箱卡槽位,三开间朝南,动静分区,U型厨房,公卫三段式干湿分离,赠送1.98平设备平台,得房率约77.15%(不含赠送),阳台5.02m²西南或东南朝向。靓点:83平做到了3房2卫,主卧270°无柱转角飘窗,厨房烟道外置+额外赠送设备平台,并且是纯南向格局。
99㎡的4房2厅2卫,设计的是竖厅格局,客厅3.35米开间,LDKB一体化,S墙设计预留双开门冰箱卡槽位,三开间朝南,动静分区,U型厨房,公卫三段式干湿分离,赠送设备平台,得房率约78.27%(不含赠送),客厅连接次卧出9.37m²大阳台西南或东南朝向。靓点:99平做到了4房2卫,主卧270°无柱转角飘窗,厨房烟道外置+额外赠送设备平台,并且是纯南向格局。


115㎡的4房2厅2卫,设计的是竖厅南北通透格局,进门入户玄关,客厅4.45米开间,餐客厅分离设计,客厅连接次卧出10.87m²的观景大阳台,L型中式+岛台灵动式厨房,公卫三段式干湿分离,得房率约78.27%(不含赠送),阳台主朝东南或西南向。靓点:南北对流+7.25米长超大观景南向阳台,超大主卧+270°无柱转角飘窗
133㎡的4房2厅2卫,设计的是竖厅南北通透格局,进门入户玄关,客厅5.4米开间,餐客厅分离设计,客厅连接次卧出12.3m²的观景大阳台,L型中式+岛台灵动式厨房,公卫三段式干湿分离,得房率约78.27%(不含赠送),阳台主朝东南或西南向。靓点:超大客餐厅南北对流+8.2米长超大观景南向阳台,超大主卧+270°无柱转角飘窗

项目周边拥有多维立体交通轨道,已经开通的地铁3号线荷坳站和14号线坳背站5站到罗湖,7站到福田。双地铁配套,一站即可到达4轨交汇的大运综合枢纽(预计2022年建成使用)。
而且项目临近龙岗大道、水官高速、机荷高速等,自驾出行也极为便利。
项目自带建面约4.5万㎡一站式商业(规划中),与COCO park、山姆会员店、颐安都会中央、深港国际中心等高端商业配套聚合为建面约50万㎡高端时尚商业圈,近享三馆一城(科技馆、青少年宫、公共艺术馆和书城)、大运中心体育馆、深圳露台(预计2023年投入运营)等高端城市级醇熟市政配套,从容悦享封面生活的无尽繁盛。

THE TOWN乐城自带一所12班幼儿园,斥巨资与龙岗区政府联合引进华南师范大学附属乐城小学,毗邻国际大学城,香港中文大学(深圳)、北理莫斯科大学、深圳音乐学院等十余所国际、国内知名学府云集,荟萃塔尖精英,成就未来菁英。
周边三公里内,医疗资源丰沛,涵盖龙岗大运中医院、龙城医院及中国医科院肿瘤医院三家三甲医院,为居民健康筑起坚实防线。龙岗大运中医院,中医精粹汇聚之地,集医疗、教学、科研于一身,以其精湛的中医技艺享誉四方,资深中医团队护航健康。龙城医院,综合医疗典范,内科外科及专科并蓄,专业高效,服务全面。而中国医科院肿瘤医院,肿瘤治疗领域的领航者,依托国际尖端设备与顶尖专家,为患者量身打造精准治疗策略
THE TOWN乐城二期背靠约45万㎡乐城公园,周边有大运公园、龙城公园等生态公园环抱,于繁华都芯坐享自然宁静,在璀璨都市舒享观景宜居。

乐城三期优点/SUMMARY

结尾:以上就是关于深圳龙岗大运乐城三期(乐宸花园)楼盘最新图文介绍和说明,在此感谢您的认真阅读,希望为您的购房置业选择上提供帮助。如果您还想咨询了解乐宸项目认购优惠、按时签约优惠、贷款优惠、一次性优惠、团购折扣等信息,欢迎联系龙岗乐城三期楼盘开发商售楼处全国400免费服务热线电话Tel:400-811-3080(中介或自媒体请勿扰),另外温馨提醒一下,因近期营销中心看房人数较多,参观样板间采取预约制,为了不影响您的行程,过来楼盘实地看房之前请记得拨打开发商400热线进行预约,预约看房的话还可以尊享楼盘内部额外优惠,最终价格包您满意!