深圳坪山区财富城二期弘德苑楼盘好不好?在售户型怎么样?值得推荐吗?

搜狐焦点河池站

2025-10-10 20:05:00

购房群

买房如何避坑,加入购房群,看看他们怎么说

立即进群

最新消息:深圳坪山【财富城二期·弘德苑】现在预约看房可尊享内部单价2.5万起/平米!

财富城二期最新总价说明(预约看房还可以更便宜)

75m²三房总价188万~218万

89m²三房总价250~275万

105m²四房总价306~326万

120m²四房总价342~358万

140m²五房总价503~522万

双实验学校:50米坪山最好坪山实验学校&350米东师坪实

三条地铁:300米到14号地铁坪山广场站,500米16号地铁新和站,150米19号地铁剧院站。

【深圳财富城开发商售楼处咨询/预约热线:400-811-3080,中介勿扰】

温馨提示:因近期参观的购房者较多,所以本楼盘采取预约制,过来营销中心现场参观样板间请记得提前拨打开发商售楼处400热线电话在线预约,预约看房价格更优惠,感谢您的配合!

财富城二期这个楼盘究竟值不值得买?

—坪山中心 百万大城 极致生活体—

约75-140㎡极致3-5房 全周期产品

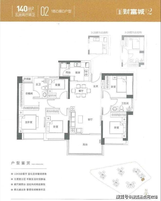
深圳坪山中心区新楼盘——财富城二期·弘德苑已全部封顶,在去年2024年深圳第三季度预售中,项目已经开盘,当时开盘约86折,折后227万买坪山中心区三房,推出613套住宅,性价比非常高。带装修交付,营销中心,样板间已经开放面积有75㎡的3房1卫,89㎡的3房2卫,105-120㎡的4房2卫,140㎡的5房2卫户型。

箭头是阳台的朝向:

财富城·弘德苑备案总价表

财富城二期项目即将加推另外一个小地块育德苑,单价会便宜一点点,预计在2.5万左右,据了解育德苑有68的两房,以及84-86的三房一卫为主,目前户型图已经发布,有兴趣的可以联系我们开发商售楼处电话4008113080,预计近期就要拿证加推!

财富城·育德苑推出户型为68-84-86㎡

财富城二期户型图

△68㎡2房户型

△84㎡3房户型

△84㎡南北通透双阳台3房户型

财富城二期用地面积4.56万㎡,建筑面积25.5万㎡,分三个小区,分别是育德苑、弘德苑、明德苑,共计2538户。

财富城弘德苑:占地面积约2.16万㎡,总建筑面积约18万㎡,计容建筑面积约14.2万㎡,容积率6.58,绿化率35%,共由1栋6座住宅组成,其中1栋A座住宅52F,1栋B/C/D座住宅54F,1栋E/F座住宅32F

总规划1207户,其中户型套内建筑面积<90㎡的有910户,停车位1268个其中机动车位1076个,非机动车位425个

首推地块财富城弘德苑:占地面积约2.16万㎡,总建筑面积约18万㎡,计容建筑面积约14.2万㎡,容积率6.58,绿化率35%,共由1栋6座住宅组成,其中1栋A座住宅52F,1栋B/C/D座住宅54F,1栋E/F座住宅32F

总规划1207户,其中户型套内建筑面积<90㎡的有910户,停车位1268个(占

从产品打造的细节来看,财富城2期的优势不言自明:

项目采用了“北高南低”的布局设计

这样能加大住宅享受到最佳的采光和通风条件,还让居住者能够拥有更为开阔的视野,将半月环公园(规划中)的绝美风光尽收眼底,真正让自然美景成为日常生活的一部分。

2梯4/5户、3梯4/5户的稀缺舒奢配置

这样的设计不仅大幅提升了居住的舒适度,还减少了等待电梯的时间,让日常出行更加便捷高效。

超1:1的社区车位配比

此外,项目还充分考虑到了停车难的问题,确保了每一位居住者都能轻松找到停车位,无论是日常归家还是朋友来访,再也不用为停车问题而烦恼。

项目效果图

回归到户型本身,建面约75-140平的3-5房户型, 做到了户户双阳台设计,既满足了不同家庭的居住需求,又兼顾了实用性。

财富城应该是坪山中心区的一个大盘。在坪山来说财富城是可以重点关注的一个楼盘。

为什么考虑这个项目呢。财富城的位置,是属于坪山中心区板块,是坪山最中心位置。任何一个区域的中心地带都是那个地方发展最有前景的地方。

坪山政府就在项目附近,自然各种各样的资源也都会往这边集中。

坪山中心区呈三角形状,以“半月环公园”绿廊串联起商务办公、生活服务、行政文化三大功能板块。

从地理位置来看,财富城正好处于坪山中心区地理位置的中心,中心中的中心,辐射三大功能区,可享中心区全配套生活。

【财富城开发商售楼处咨询/预约电话☎️ 400-811-3080(中介勿扰)】

✅ 本项目暂不接受临时到访,过来参观样板房请记得提前来电预约!

✅ 为您安排楼盘现场销售全程一对一在线解答,给您更贴心的体验!

温馨提醒:我们楼盘开发商售楼处400电话没有设置任何所谓的“分机号”,拨打前请仔细甄别,注意保护个人隐私!谨防上当!

免责声明:

以上所发布的关于深圳坪山财富城楼盘相关介绍详情仅供您购房前参考,以上所有关于本楼盘的图文资料及说明请以最终项目批文及双方在楼盘营销中心现场签署的买卖最终合同为准;本图文内容如无意中侵犯到某方权益,请联系我们将会及时处理。

全部

相关资讯

报名成功
稍后会有专业的置业顾问联系您
返回楼盘

频道导航

返回首页

看房小程序

APP下载

电话拨通后,请您手动拨打分机号

确定拨打电话

电话号码:

分机号:(可能需要拨分机号)