龙华中建鹏宸云筑,双国企中建壹品 & 湖北文旅匠造,工程质量稳交付,置业零风险

搜狐焦点河池站

2026-04-17 19:28:48

购房群

买房如何避坑,加入购房群,看看他们怎么说

立即进群

深圳龙华【鹏宸云筑】

深圳北部龙华壹品文旅·鹏宸云筑,位于虽在龙华但靠近梅林关,距离地铁坂田南坑站大概600米,地铁4站到福田,教育目前划分华南实验九年制学校、商业自带底商约3500㎡。

鹏宸云筑楼盘营销中心实拍照片

如果您还想了解更多关于我们龙华中建鹏宸云筑楼盘最新消息和房价优惠,欢迎来电咨询中建鹏宸云筑开发商售楼处全国唯一400官方服务电话:400 880 7297(官方认证·非中介),因本项目营销中心这几天过来现场参观的客户实在太多了,采取预约制,暂不接受临时到访,为不耽误您的行程,过来楼盘营销中心之前请提前来电进行在线预约,感谢您对我们工作的理解与配合,恭候您大驾光临!

鹏宸云筑位置以及周边配套航拍示意图:

中建鹏宸云筑项目周边配套:

交通配套

10号地铁线“南坑站”距离约600米,22号地铁线“横岭站”距离约800米,2站到福田冬瓜岭,4站到岗厦北,6站香蜜湖,7站车公庙。约2.5公里还有深圳最大北站枢纽,快速通达深圳各大区域。

商业配套

中建鹏宸云筑600米范围内有8号仓奥特莱斯,在1.6公里范围内还有龙华印象汇、星河coco city、星河cocopaek,天虹商场等商业综合体,举步即是繁华。

教育配套

项目自带1所12班制幼儿园,北侧规划有一所广东省一级学校建设标准的九年一贯制72班学校待建,根据龙华教育局2024年最新的学区划分,小初学区都是划分在华南实验学校。

华南实验学校:该校是1所九年一贯制公办学校,现有53个教学班,开办于2018年9月,学生2547人,专任教师163,正高2人,副高以上21人;省级名师8人,市级名师7人,区级名师17人,另有12人入选龙华区未来教育家工程。

生态配套

项目1公里左右的明治体育公园

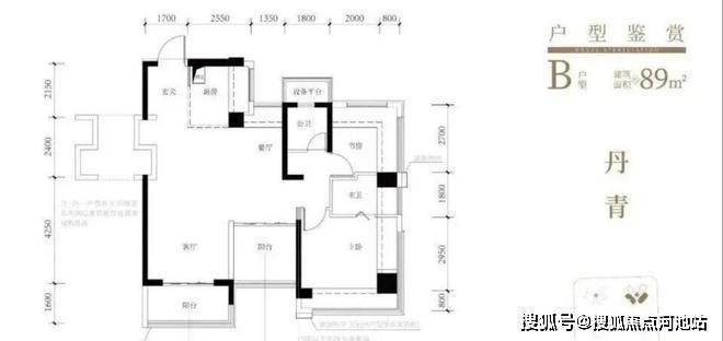
中建鹏宸云筑户型图鉴赏

项目分为东、西两个地块开发。总占地4.2万,总建面31万,计容积率5.37,总户数1992户,东区1016户,西区976户,总停车位2155个,东区1059个,西区1096个停车位

东区:占地约2.1万㎡,容积率5.28,包含住宅、商业、文化活动室、老年人日间照料中心和其他基础配套设施。1栋、2栋总高47F,3T6户;3栋、5栋总高32F,2T6户;6栋总高32F,2T5户;4栋属于商业,总高2层。

西区:占地2.2万㎡,容积率5.16,包含住宅、商业、幼儿园学校和其它基础配套设施。7栋栋总高47F,3T6户;8栋、9栋、10栋总高32F,2T5户;11栋总高46F,3T6户,2T5户;1栋是幼儿园。

西区相比东区不一样的是景观要好点,遮挡部分没有那么多,前面的产业楼大概也就是10层以内,也就是超过这个高度基本能看到湖景,但是西区园林没有东区那么丰富,东区有泳池西区没有。

东区1号楼折后价

81㎡:折后416-462w

91㎡:折后467-530w

107㎡:折后536-602w

126㎡:折后663-737w

东区91的467万起,由于东区小2平米总价450多万,横厅103的相比东区107小4平米总价低20万左右

在售的西区户型:

△6栋104㎡样板房,即将加推8栋0304也有这个景观朝向,其中03的户型比较接近,04因为主卧只有一面朝湖,另外一面朝花园

△这是早期其他栋的124㎡样板房视频,跟现在的118一模一样格局

△这是6栋148㎡样板房,如今8栋是139㎡格局也是一模一样

交楼标准如下图

以上就是关于深圳龙华中建鹏宸云筑楼盘相关的详细介绍,看完以上内容如果您对我们楼盘还有任何疑问,欢迎联系鹏宸云筑楼盘开发商售楼处官方电话:400 880 7297(已认证 · 中介或自媒体请勿扰)进行免费咨询或预约看房,可以安排本楼盘现场销售在线为您一对一服务,现场销售人员会把鹏宸云筑楼盘的新资料、样板间图片或视频,通过聊天软件发给您看,您不需要过来楼盘现场都能够熟悉个大概,还可以了解到本楼盘的优点缺点、房产政策、银行贷款政策、积分入学、都给您讲解的明明白白。现场销售还可以为您对我们这个楼盘进行全面更详细的介绍,包含项目开盘详情、近期房价、楼层高低、户型朝向分析、最新折扣优惠活动等更多详情情况,而且还可以避免市场上一些中介虚报价格,耽误您的时间和精力,中介所给的优惠我们全都可以给,让您买的放心,住的舒心!买房是大事,记得及时联系我们。

全部

相关资讯

报名成功
稍后会有专业的置业顾问联系您
返回楼盘

频道导航

返回首页

看房小程序

APP下载

电话拨通后,请您手动拨打分机号

确定拨打电话

电话号码:

分机号:(可能需要拨分机号)