深圳南山中心【翰熙典居】与深圳大学、腾讯全球总部为邻,地段之王!

搜狐焦点河池站

2025-11-12 14:32:48

购房群

买房如何避坑,加入购房群,看看他们怎么说

立即进群

2025年6月6日,位于深圳市南山区粤海中心新楼盘翰熙典居获批预售。首推产品建面约105-140㎡,备案均价11万出头,折后均价10万出头,一批房源9字头,更有部分单位低至8字头起。完成冻资30万后可率先锁定开盘当天购房9折优惠。

项目未售先火程度堪称核爆级!展示中心开放首日,就以雷霆之势席卷市场,狂揽市场流量!

▲营销中心现场实拍图

【翰熙典居开发商售楼处咨询/预约电话 400-880-7297,已认证,中介勿扰】

温馨提示:因近期参观的购房者较多,所以本楼盘采取预约制,过来营销中心现场参观样板间请记得提前拨打开发商售楼处400热线电话在线预约,预约看房价格更优惠,感谢您的配合!

在流量为王的时代,一个楼盘的人气无疑是其自身实力的象征!作为粤海街道核心区十年一遇的矜贵恒产,翰熙典居自展示中心开放即开启“流量收割机”模式,人气值如火箭升空,直指2025年深圳楼市人气之巅,大有成为2025现象级红盘之势。

为何翰熙典居一亮相,市场关注度就爆棚?

前几天,壹地产在南山粤海的翰熙典居展示中心遇到几批看房客户,购房意向都很强烈,交谈之下发现他们主要分为两类:

一类是,多年前就买了科技园板块的房子,如今想要寻求品质升级的改善型买家;

一类是,长期租住在科技园周边,深谙区域价值,现如今想买房子自住的大厂精英。

其中,一大厂高管的购房心路历程颇具代表性,他坦言,看翰熙典居之前已悉数考察过科技园板块的二手房&其他区域板块核心的新盘,但总觉得差点意思。

后来有朋友向他推荐翰熙典居,觉得还不错就到现场了解。看过项目后当即决定,就是翰熙典居了。

问其缘由,说了三点:

1、地段的不可复制性,未来走路就可通勤,生活便捷与舒适兼得;

2、产品力有硬核支撑,项目交付品质,产品竞争力都不错;

3、新规后产品,空间设计亮眼,买房就一步到位了!

诚然,购房之事,相较于“买到”,更重要的是“买对”。在纷繁复杂的市场中,唯有如翰熙典居这般,集地段、产品、设计于一身的臻品,方能成为购房者心中的“最优解”。

翰熙典居位于南山粤海核心,是一个总体量逾50万㎡,集住宅、办公、约5.7万㎡未来潮流街区(以运营房最终业态及功能为准)、约1.9万㎡精奢酒店等多元业态为一体的TOD+综合体大城项目,地铁9/15号线(在建)深大南站上盖,紧邻深大,背靠腾讯滨海大厦,周边联想、创维、TCL等科技巨头大厦环伺。

且有别于常规的综合体项目“推倒重建”,翰熙典居在桂庙新村原址之上,规划保留和融合了桂庙的文化元素,以宗祠广场为源点,让桂庙的 “贵脉” 与 “烟火气” 融入项目的规划并得以传承,让翰熙典居在百年桂脉之上重塑片区生态,进而屹立于时代之巅,或成为片区人居新标杆。

▲深圳大学,图源深圳大学官网,仅供参考

总而言之,翰熙典居作为一个位于深圳核心科创板块的综合体项目,拥有着交通、商业、教育、医疗、生态等多维生活配套、承袭百年桂脉历史人文气息,当之无愧的高端科创人居范本。

02.

即将引爆全城

翰熙典居产品力Max!

地段决定了项目的价值下限,而品质则决定着一个项目的上限。

要知道,当下深圳新房市场,早已进入技术流时代!

一个项目在“地段好”的基础上,还需加上超强产品力加持,才能真正脱颖而出。

对于众多意向购房者而言,翰熙典居的地段是第一优势,也是率先吸引到他们的点,而让他们准备出手拿下的“驱动力”,是项目那“拉满”的「品质感」。

▲实拍图,仅供参考

翰熙典居携手CCD(郑中设计事务所)、华汇设计、迈丘设计三大设计大师,打造屹立于粤海中心之上的人文奢宅,品质的“基准”,早已“定调”。

静雅奢华风格立面,叠加幕墙集成系统,定调豪宅风貌。

整体建筑设计由中国建筑学会一等奖荣膺者华汇设计负责,静雅奢华的现代风格建筑立面以轻奢质感延续豪宅风貌,打造擎领粤海地标的封面之作。

▲效果图,仅供参考

住宅塔楼以公建化设计语言重构高端居住美学基因,以幕墙集成系统为笔触,勾勒出简约而不失奢华且可历久弥新的当代建筑肌理,与腾讯滨海大厦等地标群形成视觉对话,构建起现代美学符号矩阵。

▲效果图,仅供参考

系统门窗大面积采用双银LOW-E中空夹胶、三层钢化超白玻璃(深灰色),以高透光率重塑光影哲学,在降噪节能的科技内核外,包裹着永不褪色的艺术锋芒,让建筑立面成为镌刻城市精神的立体画布,为片区注入兼具人文温度与未来质感的建筑美学新范式。

新东方都市风格园林,园林景观叠加人文符号重构社区空间价值。

为打造舒适的社区环境,翰熙典居采用整体围合式布局,楼间距更大,可更大程度保证每栋的通风采光。

▲效果图,仅供参考

体量约1万余㎡的园林设计,由国际景观设计单位迈丘设计担纲,以五重景观、樱花大道、松林景观组团、无边际泳池社区生态景观&奢享级泛休闲空间,叠加桂庙百年人文印记,将传统东方造园美学与现代都市生活需求深度融合,打造了一个兼具东方意境与都市功能的新东方都市风格园林

既能满足科技人群日常的社区生活需求,也能满足其对“诗意栖居”的精神追求。

▲效果图,仅供参考

大师高定艺术公区,用材考究,生活质感已初步“显现”。

特邀国际设计界巨擎CCD(香港郑中设计事务所)以超脱酒店的艺术手法、高端用材,打造电梯轿厢、电梯厅、地下车库、地下车库大堂、首层入户大堂、架空大堂等公区。

▲实拍图,仅供参考

看得见的品质,永远是项目的加分项。目前公区部分已实景呈现,极具品质感,匹配时代精英品味。

▲实拍图,仅供参考

首层入户大堂,地面采用欧洲灰石材(局部黑白格纹装饰)、背景墙采用牛油果色奢石,辅以局部的深色木饰面及莱姆石石材。

▲实拍图,仅供参考

电梯厅内侧墙面精选佛罗伦萨灰石材,电梯厅地面和墙面全部采用了大板通铺的岩板,简洁流畅,立面层次感非常强,高级感扑面而来。

▲实拍图,仅供参考

电梯轿厢所见及所得,六大核心部件全进口的日立电梯,5m/s的梯速,出入更高效便捷。

超脱酒店品质的首层归家大堂、地库大堂、架空层大堂,三重归家礼序,进一步构筑出尊崇的归家仪式感。

既有三大师联袂匠造由外到内层层递进的品质定调,又有看得见的品质感,这样的翰熙典居的确是更容易让精英人群为之倾心。

首推105-140㎡全维户型

新规产品匹配科技新贵高效生活需求

除了有极高品质感外,翰熙典居还是新规后产品,叠加“粤海街道时隔10年再上新的综合体项目”这层buff,直接把户型优势拉满。

要知道户型是决定一个项目产品竞争力、居住体验以及长期价值的核心要素之一,主要原因在于,优质的户型除了可以增强项目的市场竞争力与议价能力外,还能够提升居住舒适度与功能性,满足不同人群的居住需求。

据壹地产了解,翰熙典居户型为新规后产品,其120C户型与片区内网红盘-华润城润玺一期建面约121㎡的户型相比,阳台更大,留白更多,能够承载更多的生活可能,在未来市场竞争力更大。

▲左:华润城润玺一期121㎡户型示意图,右:翰熙典居120C户型示意图,仅供参考

户型执行新规的翰熙典居,3个创意样板间亦看点十足。

一是,创意样板间里,蕴含着不少设计巧思,细节处彰显品质。

高端定制的入户装甲门,筑就安全第一道防线。入户定制玄关柜具有多重收纳功能,兼具功能性与美学价值。

客餐厅通阳台,形成约1.8-2.1米进深阔绰公区,视野开阔且空间延展性极佳;电视背景墙采用自然肌理的木饰面+岩板,吊顶天花板强化空间层次,演绎现代精工美学。

▲创意样板间实拍图,仅供参考

客厅及卧室地面铺设多层实木地板,主卧室系统门窗采用双银LOW-E中空夹胶、三层钢化超白玻璃(深灰色),具备良好的隔音、节能效果、及高透光率,居住更静谧。

U型厨房动线规划科学,吊轨推拉门释放地面空间,墙面地面采用大板通铺的岩板,搭配一线豪宅常用的国际品牌厨电四件套(燃气灶+抽油烟机+洗碗机+冰箱),将实用与美学完美统一。

▲创意样板间实拍图,仅供参考

配置三段式干湿分离客卫,主卫墙面均为大板通铺的岩板,搭载高定镜柜、浴室柜,马桶、台盆、五金洁具等,以德系品质诠释现代居住哲学。

二是,户型全维匹配:从二人世界到三代同堂,翰熙典居用户型承载家的成长。

翰熙典居首推产品为建面约105-140㎡奢雅空间,每个户型各有亮点,精准覆盖首次置业、改善置业家庭。

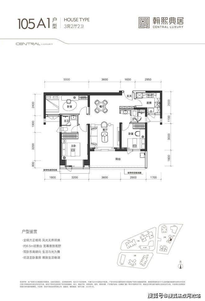
先看,105A1户型:

▲户型示意图,仅供参考(左右滑动)

该户型为3房设计+最长6.5米景观阳台+U型厨房,主卧带观景飘窗,满足小家庭通勤储物居住需求。

入户玄关+竖厅设计,双龙抱珠格局,主卧套间16㎡,打造男女主人、小孩、老人独立的私人空间同时,将居住私密感拉满。

▲创意样板间实拍图,仅供参考

客餐厅高标配置岩板电视背景墙+地面多层实木地板,约23㎡阔气通厅营造日常舒适居住体验,同时增强家庭成员间的互动和联系。

开间约6.5米大阳台以逾10㎡的奢阔尺度延展生活空间,让日常更有松弛感;阳台正南、东南朝向,腾讯滨海大厦的「城市“科技”景观」一览无余。

▲实拍图,仅供参考

再看,120B户型:

▲户型示意图,仅供参考(左右滑动)

该户型为3房双阳台+竖厅布局,空间灵活多变,功能性更强,容纳生活更多可能,适合社交型精英家庭。

主卧+客餐厅+双阳台开间合计超12米,约24.5㎡阔气通厅,客餐厅一体化设计,在厨房烹饪美食也可无界与家人亲密互动,温馨的家庭在此刻具像化。

▲创意样板间实拍图,仅供参考

高标配置木饰面&岩板背景墙,地面铺设多层实木地板,约6.15米开间景观阳台,畅享近10㎡奢阔尺度。

U型厨房+入户玄关收纳+明显动静分区,整体空间尺度更大,居住舒适度更高。

▲创意样板间实拍图,仅供参考

约30多㎡奢阔主卧大套房,既可设置步入式衣帽间+独立景观阳台,整体私密性强;也可分割出一个多功能空间,承载更多维的生活需求。

最后,看140户型:

▲户型示意图,仅供参考

该户型设计上实现了「私享独门独户前厅」,南北通透+大横厅布局+三面采光,客厅连接开间约5.4米环幕阳台,进深约2.1米,同时还是一个“全生命周期”户型,匹配成长型家庭。

约32㎡大横厅,高标配置木饰面&岩板电视背景墙,客餐厅地面铺设多层实木地板,品质感十足。

▲创意样板间实拍图,仅供参考

约40㎡奢阔主卧,即可实现「卧室套房+衣帽间+阳台」多重居住空间,也可以将衣帽间多功能化,或做茶室、游戏空间,也可以做小孩的游乐天地。

带270度宽幕飘窗的次卧,得益于“新规”,尺度更奢阔。

▲创意样板间实拍图,仅供参考

可以说,该户型不仅能满足不同家庭的多元生活需求,也能同步匹配一个家庭从两口之家“成长”至三代同堂的居住需求,是一个成长型&全生命周期多维户型。

核心地段+超强产品力+新规户型=矜贵恒产

毋庸置疑,核心地段是定调一个项目价值的“底层逻辑”之一!而真正决定项目的核心价值,还需要“区位、社区配套、项目品质”多方面综合,才能成就其为「矜贵恒产」,吸引买房人下场买单。

当下,全球经济形势动荡,而去年下半年开始,中国楼市利好不断。

今年5月初央行明确降准、降息;5月底,高盛认为房地产股未来表现优异,明显看好中国房地产市场。

城市核心地段的优质产品,才是值得关注的优质资产。

深圳核心板块南山粤海,周边是深圳含金量极高的科创企业,汇聚高学历、高收入且对生活&居住有着高需求的精英人群。翰熙典居占据城市核心地段,为粤海街道最后一块居住版图,匹配精英人群居住需求,为当今时代的「矜贵恒产」。

翰熙典居已获批预售,首推新规后建面约105-140㎡奢雅空间,备案均价11万出头,折后均价10万出头,一批房源9字头,更有部分单位低至8字头起,6月下旬开盘,完成冻资30万后可率先锁定开盘当天购房9折优惠,想买房的朋友,记得先登记同步准备购房资金。

【翰熙典居开发商售楼处咨询/预约电话:☎️400-880-7297(已认证,中介勿扰)】

✅本楼盘样板房参观采取预约制,过来前请记得拨打开发商电话进行预约,预约看房价格更优惠,感谢您的配合!

✅我们将为您安排专业的楼盘内场销售人员全程为您接待, 给您提供更加贴心的看房以及购房服务体验!

特别注意:本楼盘开发商售楼部400电话没有设置任何所谓的“分机号”,拨打前请认真识别,注意保护个人隐私!谨防上当!

免责声明:

以上所发布的关于深圳南山翰熙典居楼盘相关介绍详情仅供您购房前参考,以上所有关于本楼盘的图文资料及说明请以最终项目批文及双方在楼盘营销中心现场签署的买卖最终合同为准;本图文内容如无意中侵犯到某方权益,请联系我们将会及时处理。

全部
报名成功
稍后会有专业的置业顾问联系您
返回楼盘

频道导航

返回首页

看房小程序

APP下载

电话拨通后,请您手动拨打分机号

确定拨打电话

电话号码:

分机号:(可能需要拨分机号)