总价210万起买入深圳湾【望海玥】稀缺小户型海景房在售中

搜狐焦点河池站

2025-06-06 21:58:00

购房群

买房如何避坑,加入购房群,看看他们怎么说

立即进群

深圳【招商·望海玥】

最新消息:深圳蛇口新楼盘「招商望海玥家园」将于2025年6月份开盘入市,首推是海景公寓产品,带精装交楼,预计单价6-9万/㎡,总价低至200万起。

【望海玥】为招商渔二村旧改,项目从2006年启动,2018年开拆,直到2022年招商正式接手后才开始动工,从启动到入市,耗时将近18年。

项目总占地9072平方米、建面65772平方米,建设内容为2栋44至45层住宅楼、1栋35层公寓楼,共规划395套住宅房源,其中回迁房343套,普通商品房52套(可售),住宅面积为67-106-112-125平2-4房,位置在1-1栋、1-2栋;2栋是公寓,面积为36--60平1至2房,389套可售。

如需了解本楼盘更多详情,欢迎来电咨询深圳蛇口望海玥开发商售楼处免费400咨询/预约电话:400-880-7297(已认证)中介请勿扰,因近期我们楼盘参观的人员太多,本项目营销中心暂不接受临时到访,为不耽误您的行程,过来楼盘现场参观样板房请务必记得提前来电预约,预约看房的话最终房价还能更加优惠,包您满意!

营销中心实景(过来参观情记得来电预约!防止跑空)

项目实景图

项目基础信息:

开发商:招商地产、润德地产、渔二实业

物业:深圳招商物业管理有限公司

占地面积:9072平方米

建筑面积:65772平方米

总栋数:3栋(2栋住宅+1栋公寓)

总楼层:公寓39层,住宅45层

总户数:784套(住宅395套,公寓389套)

开发商电话:400 880 7297(已认证)

容积率:7.25

产品类型:(住宅、公寓)

梯户比:三梯五户

状态:(公寓样板房已开,住宅样板房未开)

学校:育才太子湾学校

工地航拍实景图

户型面积:

公寓:36/44--46/60平(一至二房,70年产权)

住宅:67/95/106--112/125平(二至四房)

望海玥到底值不值得买?

01地段位置

首先,「望海玥」的地理位置不错,临近大家熟知的「半岛城邦」,距离年底入市的王炸「中信元湾府」也很近,基本上享受到蛇口滨海公共配套,譬如歌剧院、渔人码头、滨海长廊等。

地段特点

①位于蛇口板块,拥有滨海公共配套和海景资源;

② 户型偏刚需,上车门槛不高;

③ 临近「半岛城邦」/「新玺」生活圈,配建华润商业;

④ 临近蛇口渔港升级改造,连接深圳湾-蛇口滨海长廊;

⑤ 周边是蛇口老街区,生活气息浓厚,非常接地气。

02产品信息

「望海玥」整个项目地块不大,有三栋高楼和底商,车位470个。

其中1-1栋、1-2栋为住宅,共395套,其中52套为可售商品房,其余为回迁房。2栋为公寓,可售389套。

望海玥公寓介绍:

「望海玥」首推公寓389套,高度为35F,户型为36-44-46-60㎡的1-2房,精装交付。

公寓基本上跟住宅的面积错开,蛮适合喜欢蛇口的单身或者小两口自住,目前南向15F以上可以看海。

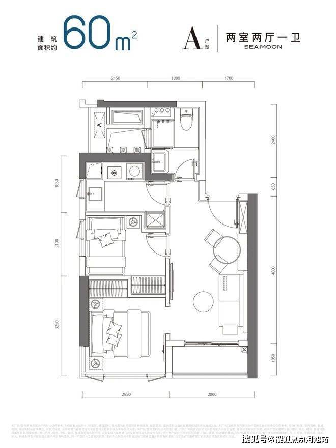
在售户型(精装)

60㎡两室两厅一卫

46㎡一室一厅一卫

44㎡一室一厅一卫

36㎡一室一卫

「望海玥」项目不是豪宅定位,针对的是刚需及初步改善的居住需求,业态也相对复杂,跟「半岛城邦」及「双玺」这类豪宅的是明显区分开的。不过产品力比周边的一些普通二手盘还是要强点,而且还有部分景观房。

望海玥住宅产品介绍:

住宅为67-88-95-106-112-125㎡的2-4房,总户数395户。其中包括回迁房有343套,可售商品房仅52套,据悉招商有可能自己消化不对外入市。

其中1-1栋临近望海路,为45F三梯五户住宅楼,这一栋多数户型享有海景资源。

1-2栋在小区内侧,为44F三梯五户住宅楼,前方有35F公寓遮挡。这一栋不临近大马路,没有路噪影响。

03望海玥配套资源

商业配套

「望海玥」自带楼下商业街,而且临近望海路和蛇口老街,周边是非常成熟的居住区,商业配套齐全。

高端的可以到即将开业的「新玺」华润万象商业、蛇口海上世界,驾车还能到即将开业的太子湾K11.

蛇口属于改革开放的早期发展区域,数十年的发展周边还有不少接地气的老街和商铺,像「百草堂」、「鱼仔档」这些老字号就在附近。

交通配套

临近东角头地铁站约200米,目前通蛇口线(2/8号线),未来还会加入13号线南延线,届时东角头站会变为换乘站。蛇口线被称为豪宅线,通达深圳蛇口、后海、超总、华侨城、香蜜湖、市中心区等核心地段,而13号线则通达深圳南北直达光明科学城。

道路交通方面,楼下的望海路作为蛇口的主干道之一,通达深圳湾沙河西路、滨海大道等城市主路,同时也承载了大量的交通压力。

由于蛇口开发过早,拥堵是常态,目前也没有办法快速改善,若望海路下沉能早日落实,应该会优化很多。不过庆幸的是,「望海玥」在望海路东端,没有深入到蛇口内部,交通压力不算大。

教育配套

学校为蛇口育才太子湾学校,属于育才品牌后入驻的学校,比不上传统的育才牌子。

公共资源

正如本文开头所言,蛇口滨海的公共配套比较丰富。除了现成大家都清楚的深圳湾公园长廊、海上世界、艺术馆以及太子湾的配套之外,距离最近的蛇口渔港也即将升级改造,会打造海洋博物馆和文化博览园,不再是一股腥味的内湾。

此后还有不远处的深圳歌剧院加持,未来深圳湾蛇口一带的公共配套是肉眼可见的丰富,如果把交通再完善一点就更好了。

04往事回味

「渔二村」位于蛇口街道,始建于20世纪20年代初,至今历史已近百年,也是深圳蛇口最古老的渔村之一。

2006年,「渔二村」列入旧改;

2011年,「渔二村」举办项目启动暨合作签约仪式;

2014年,「渔二村」业主签约,于2015年基本完成签约;

2018年,「渔二村」开拆,拆除完毕后便一直作为临时停车场;

2021年,招商接手「渔二村」,并于2022年年底正式开工;

2023年,Sir发布户型图,项目曝出定名「望海玥家园」;

2025年,「望海玥」率先入市公寓产品。

看完以上介绍,如需了解更多关于我们招商望海玥开盘最新消息、首期推出的房源、折扣优惠活动、近期蛇口周边房价走势等情况,欢迎咨询深圳望海玥开发商售楼处咨询/预约电话:400-880-7297(已认证)中介勿扰。

温馨提示:因本项目营销中心参观样板间采取预约制,为不耽误您的行程,过来营销中心现场看房前请务必记得提前来电预约,预约看房的话享受的优惠折扣比直接上门更多,最终成交价格也会更加划算,在此真诚感谢您对我们工作的支持和信赖,恭候您大驾光临。

免责声明:以上展示的图文资料可能部分来自网络,具体细节以最终签署的购房合同为准,如无意存在侵犯某方权益请及时联系我们处理。

全部

相关资讯

报名成功
稍后会有专业的置业顾问联系您
返回楼盘

频道导航

返回首页

看房小程序

APP下载

电话拨通后,请您手动拨打分机号

确定拨打电话

电话号码:

分机号:(可能需要拨分机号)