深圳坪山区14号线坪山围站,花样年好时光,现房清盘钜惠!
在售的住宅面积有70㎡的2房2厅1卫,80㎡的3房2厅1卫,95-100-110㎡的3房2厅2卫,118㎡的4房2厅2卫户型,现房精装交付。
花样年好时光,是坪山老城区域为数不多在售的新盘,且是现房即买即住,一路之隔就是坪山最有名的益田假日广场,周边居住氛围浓厚,商业配套完善,14/16号双地铁线坪山围站交汇。
【花样年好时光开发商售楼处咨询/预约电话📞: 400-811-3080,已认证,中介勿扰】
温馨提示:因近期参观的购房者较多,所以本楼盘采取预约制,过来营销中心现场参观样板间请记得提前拨打开发商售楼处400热线电话在线预约,感谢您的配合!
花样年好时光,从21年开盘至今03+04地块住宅加在一起1289套房源,已经销控超850套房源,整体去化率达到了66%,还有约400多套房源在售,据了解,该楼盘在近期也做了价格调整,整体折后均价约2.73万/㎡,折后单价2.5-2.97万/㎡,总价在191-335万/套,现房精装即买即住!
70㎡的2房2厅1卫,折后总价191-195万,单价2.72-2.78万/㎡。
80㎡的3房2厅1卫,折后总价221-226万,单价2.76-2.82万/㎡。
96-110㎡的3房2厅2卫,折后总价250-286万,单价2.5-2.97万/㎡。
121㎡的4房2厅2卫,折后总价325-335万,单价2.68-2.76万/㎡。
花样年好时光值不值得买?
1、项目区域及楼盘介绍
花样年好时光,位于坪山区东纵路与金碧路交汇处,位居坪山区中心城区核心地段,毗邻地铁14/16号线换乘站坪山围站(步行约200米),是双地铁覆盖的TOD综合体项目。项目地处坪山“六馆一城”文化中心辐射范围,紧邻坪山大道、南坪快速等主干道,30分钟可直达福田中心区,1小时接驳香港西九龙站,形成“轨道交通+高速路网”的立体交通体系。
项目周边集聚坪山区重点发展的新能源汽车、生物医药、人工智能等战略性新兴产业。坪山区2024年规上工业总产值突破6000亿元,战略性新兴产业占比超九成,依托“6+3”产业集群政策,已形成千亿级先进制造业基地,项目邻近比亚迪总部、大工业区及坪山高新南等产业园区,与规划中的大运AI小镇(龙岗)形成产业联动,吸引高精尖人才聚集。
花样年好时光,由花样年集团打造,总占地面积约3.87万㎡,总建筑面积约33.44万㎡,计容建筑面积约23.95万㎡,容积率约6.18,绿化率约40%,分03/04两个地块开发,有连廊相连,共9栋住宅。
目前在售的是03地块,总占地面积约2.25万㎡,总建筑面积约18.61万㎡,计容建筑面积约13.31万㎡,容积率5.49,绿化率40%,共由6栋43-46层高的住宅组成,其中1栋A/B/E座住宅44F,1栋C座住宅46F,1栋D/F座住宅43F,2栋规划1所九班制幼儿园。
04地块,总占地面积约1.61万㎡,总建筑面积约14.81万㎡,计容建筑面积约10.64万㎡,容积率6.32,绿化率30%,共由3栋43层高的住宅组成,其中1栋A/B/C座住宅43F,1栋D座写字楼21F。
总规划1696户,其中商品房1289户,回迁房407户,1栋B座3梯4户,其它全部3梯5户设计,规划停车位2321个,其中可供业主使用车位1770个,车位占比约1:1.4。

【项目基本信息】
开发商:深圳市花样年房地产开发有限公司
物业公司:深圳市花样年国际物业服务有限公司龙岗分公司
物业管理费:3.8元/㎡
总占地面积:约3.87万㎡
总建筑面积:约33.44万㎡
容积率:5.49
绿化率:40%
产权年限:2019.10-2089.10(70年)
总户数:1696户,可售商品房1289套
总栋数及楼高:9栋,43-44-46F。
梯户比:1栋B座3梯4户,其它全部3梯5户
开发商电话:400 811 3080(已认证)
停车位:1770个
车位占比:1:1.04
交房时间:现房
交付标准:精装修
2、项目平面图以及户型介绍
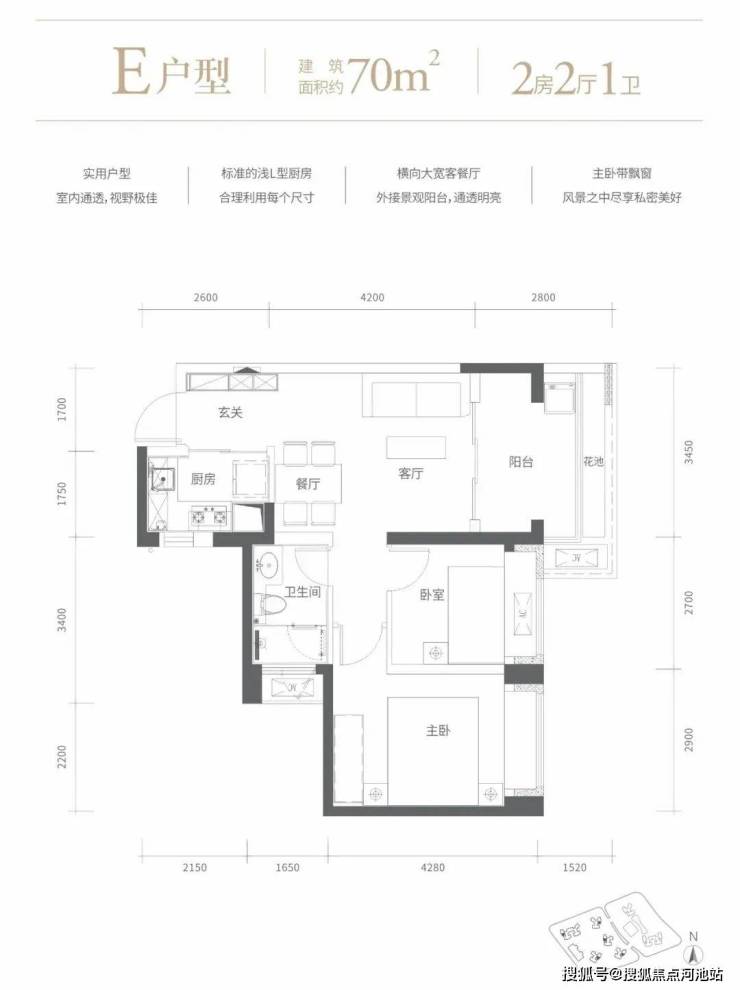
70㎡的2房2厅1卫,设计的是竖厅格局,客厅3.45米开间,进门玄关,LDKB一体化设计,2个卧室分别做到了主卧13.2㎡/次卧8.64㎡(包含墙体飘窗),L型厨房,卫生间干湿分离,得房率72.47%(不含赠送),有朝东向或西向。
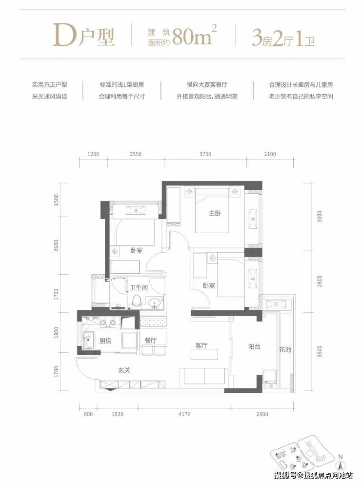
85㎡的3房2厅1卫,设计的是经典竖厅格局,客厅3.5米开间,进门玄关,LDKB一体化设计,动静分区,3个卧室分别做到了主卧12.9㎡/次卧8.96㎡/次卧8.16㎡(包含墙体飘窗),L型厨房,卫生间干湿分离,得房率72.48%(不含赠送),有朝东向或西向。



95㎡的3房2厅2卫,设计的是经典竖厅格局,客厅3.55米开间,进门玄关,LDKB一体化设计,动静分区,三开间朝南,3个卧室分别做到了主卧15.19㎡/次卧8.64㎡/次卧7.56㎡(包含墙体飘窗),L型厨房,卫生间干湿分离,得房率72.48%(不含赠送),有东南、西南或正南朝向。
100㎡的3房2厅2卫,A1户型,设计的是竖厅格局,客厅3.55米开间,进门玄关,LDKB一体化设计,动静分区,3个卧室分别做到了主卧15.19㎡/次卧8.64㎡/次卧7.93㎡(包含墙体飘窗),L型厨房,卫生间干湿分离,得房率72.63%(不含赠送),阳台主朝西北向。



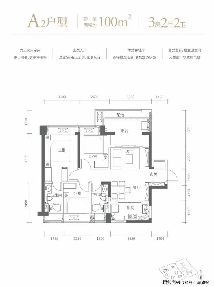
100㎡的3房2厅2卫,A2户型,设计的是竖厅格局,客厅3.65米开间,进门玄关,LDKB一体化设计,动静分区,3个卧室分别做到了主卧15.19㎡/次卧8.32㎡/次卧7.76㎡(包含墙体飘窗),L型厨房,卫生间干湿分离,得房率72.63%(不含赠送),阳台主朝东北向。
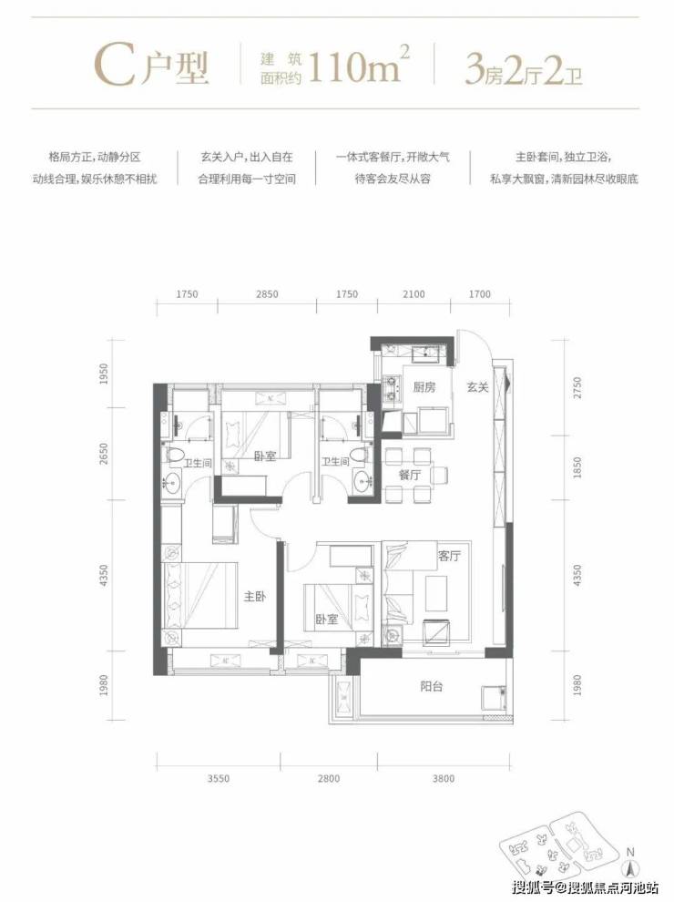
110㎡的3房2厅2卫,A2户型,设计的是经典竖厅格局,客厅3.8米开间,进门玄关,LDKB一体化设计,动静分区,三开间朝南,3个卧室分别做到了主卧17.57㎡/次卧9.26㎡/次卧8.96㎡(包含墙体飘窗),L型厨房,卫生间干湿分离,得房率73.97%(不含赠送),西南朝向。
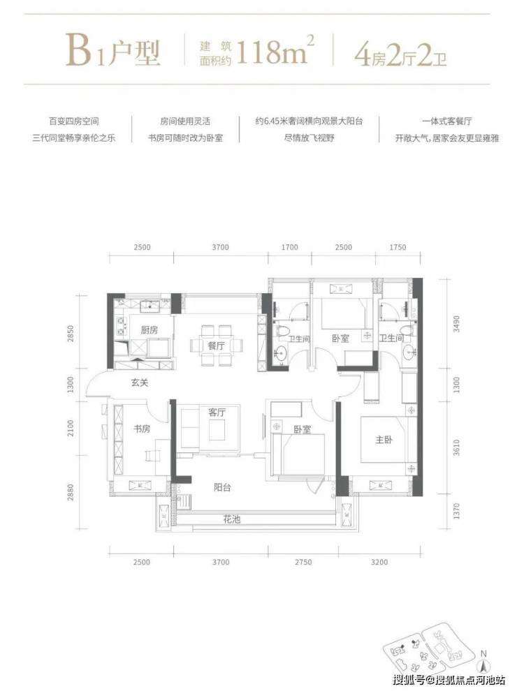
118㎡的4房2厅2卫,设计的是竖厅南北通透格局,客厅3.7米开间,进门玄关,四开间朝南,4个卧室分别做到了主卧15.71㎡/次卧9.02㎡/次卧8.72㎡/次卧8.27㎡(包含墙体飘窗),客厅连接次卧出6.45米长的大阳台,U型厨房,卫生间干湿分离,得房率73.44%(不含赠送),阳台主朝东南或西南向。

3、项目周边配套
学校配套:花样年好时光自带1所9班制幼儿园,根据2024年坪山区教育局最新的学区划分,小学学区划分在中山小学、锦龙小学、新合实验学校小学部、日新小学,初中学区划分在中山中学、新合实验学校初中部、科源实验学校初中部、碧玲实验学校初中部、深圳实验坪山学校初中部、深实验科韵学校初中部。
地铁配套:14/16号地铁线交汇站“坪山围站”F出口距离约400米,其中14号线设计时速120公里,5站到大运,10站到布吉,11站到罗湖,13站可到福田岗厦北,从坪山围站到岗厦北只要45分钟。16号线是从坪山田心通往龙岗大运的普线,设计时速80公里。
商业配套:项目家门口是坪山最有名的商业中心,益田假日广场,吃喝玩乐一条龙全搞定,另外距离约1.5公里,还有坪山首个万象城进驻(在建),官方公布计划在2025年开业运营,也是深圳第三座万象城,总占地面积30公顷,规划商业规模超12万平方米,其中集中商业9万平方米,街区商业3万平方米,该项目建成后将成为集购物,娱乐,文化,餐饮和社交于一体的城市综合体。

1、首先说下地段,花样年好时光所在的板块是坪山锦龙片区,也是坪山老中心地带,周边居住氛围浓厚,不过周边都是城中村居多,虽然多数都已经纳入了城市更新地块,但是因为近期的经济大环境影响,整体的旧改进度也比较缓慢,城市面貌需要长周期改善。
2、从买房必备3件套来分析,家门口的益田假日世界购物中心也是坪山最有名的商业,14/16号地铁线坪山围站距离仅400米,楼下的幼儿园跟日新小学也可以做到目送式教育,如果想读好点的初中也有深实验是在学区范围,总体评分还是不错的。
3、花样年好时光也是现房精装交付,即买即住,所见即所得,不用担心烂尾或者质量问题,也可以做到买哪套看哪套。
4、花样年好时光这次给到的优惠力度还是比较大的,是该楼盘有史以来的最低折扣跟价格,190万出头就可以买2房,220万出头买3房,330万出头买4房,且都是精装现房。
5、光样年好时光不加赠送得房率普遍在73%左右,加上赠送后是85%的得房率,比较中规中矩。
如果看完关于我们深圳坪山花样年好时光楼盘详情介绍后,如果您还对花样年好时光房价,售楼处地址,备案价,最新户型图,剩余房源,房贷利率多少,能不能使用公积金,小区详细规划图,营销中心位置,周边配套,楼盘优缺点,开发商售楼处电话,开盘多少钱一平,附近地铁交通怎么样,楼盘最新消息以及近期开发商折扣优惠、特价房,售楼部最新销售详情,工程进度情况,学校学区划分等具体详情需要了解的话,欢迎咨询我们开发商营销中心电话进行沟通。
【花样年好时光开发商售楼处咨询/预约电话☎️ 400-811-3080(已认证,中介勿扰)】
✅ 本项目暂不接受临时到访,过来参观样板房请记得提前来电预约!
✅ 为您安排楼盘现场销售全程一对一在线解答,给您更贴心的体验!
温馨提醒:我们楼盘开发商售楼处400电话没有设置任何所谓的“分机号”,拨打前请仔细甄别,注意保护个人隐私!谨防上当!
免责声明🔉:
以上所发布的关于深圳坪山花样年好时光楼盘相关介绍详情仅供您购房前参考,以上所有关于本楼盘的图文资料及说明请以最终项目批文及双方在楼盘营销中心现场签署的买卖最终合同为准;本图文内容如无意中侵犯到某方权益,请联系我们将会及时处理。