2025(鸿荣源观城)首页网站-鸿荣源观城欢迎您-鸿荣源观城楼盘详情/价格/户型

搜狐焦点河池站

2025-08-26 22:09:00

购房群

买房如何避坑,加入购房群,看看他们怎么说

立即进群

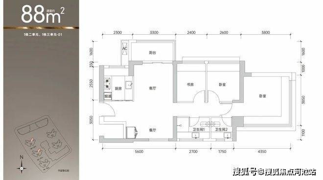
接最新通知:鸿荣源观城在继首推爆卖后基本所剩房源不多后,视野很开阔,170米楼间距,楼王位置!已经爆出折后价3.86万~4.21万!89㎡总价约344万起!99㎡约377万起!3栋1单元新品共计312套,约88㎡(3房2卫)约104套,约98㎡(3房2卫)约208套。

如需了解更多详情,欢迎咨询鸿荣源观城售楼处电话400 880 7297,过来我们营销中心看房提前来电预约价格还能更优惠。

【深圳鸿荣源观城开发商售楼处400免费咨询/预约电话:400-880-7297,中介勿扰】

温馨提示:过来营销中心参观样板间请记得提前拨打售楼处400热线预约,感谢您的配合!

鸿荣源观城-2025年深圳置业必看,「商业+公园+地铁」主题大城首发!龙华巨无霸旧改「鸿荣源观城」超级大城,无敌配套,首创高速直达地库,公园做到家楼下!!

王炸89㎡的3+1改四房户型!

最新户型图及平面图!

在深圳“北拓”战略的推动下,龙华观澜正成为城市发展的新引擎。作为鸿荣源集团继“壹成中心”后的又一巨作,鸿荣源观城以总建面超300万㎡的体量,打造集住宅、商业、办公、教育、文体于一体的超级综合体。项目首期产品即将入市,主推建面88-143㎡三至四房,以“全能配套+价格洼地”优势抢占市场焦点。

交通配套

双轨交汇:紧邻地铁4号线观澜站(步行约300米),10站直达深圳北站,16站至福田CBD;未来深大城际线开通后,可快速连接宝安机场及光明科学城。

深圳鸿荣源观城开发商售楼处电话 400-880-7297(中介勿扰)

过来售楼中心看房请提前预约,可尊享内部特惠,价格包您满意!

为您安排楼盘内场专业销售人员一对一接待服务!让你买的放心,住的舒心!

免责声明🔉:

以上所发布的关于楼盘相关图文信息仅供您买房前参考,以上所有关于本楼盘的图文资料及说明请以最终以项目批文及双方在楼盘营销中心现场签署的买卖最终合同为准;本图文内容如无意中侵犯到某方权益,请联系我们将会及时处理。

全部

相关资讯

报名成功
稍后会有专业的置业顾问联系您
返回楼盘

频道导航

返回首页

看房小程序

APP下载

电话拨通后,请您手动拨打分机号

确定拨打电话

电话号码:

分机号:(可能需要拨分机号)