基础信息:
开发商:深圳市航运集团有限公司
物业:深圳市航总物业管理有限公司
占地面积:9467.16平方米
建筑面积:66608.74平方米
容积率:7.0
总房源:397套
可售套数:320套
车位:380个
绿化率:30%
物业费:7.8元/㎡/月
总楼层:15层
梯户比:两梯两户/两梯三户
学校:福苑小学、福田外国语
产品类型:(住宅)
状态:(已开放样板房)
在售户型:
59--75--81--99--103--111--115--119--134--142--207--233平(一至四房)
总价:482万起
首付:144.6万起
单价:7.3--16.1万
备案均价:9.6万/平
交楼:2024年1月31日(59--142㎡平层精装,206--233㎡复式毛坯)
卖点:小高层、景观好。
中信城开红树湾位于深圳市福田区红花道与香樟道交汇处;距离地铁3号线益田站1.1公里、福保站1.3公里。
备案价
项目为小高层全景住宅,建面约59--233㎡湾际生态纯居,奢适梯户比,糅合城市繁华与自然宁静,为每一种城市极致的偏好者定制生活范本。
一、周围配套
地铁:
三号延长线福保站去年已经开通,距离1.3公里;
学校:
周边配套小学是福苑小学(公办),初中是福田外国语中学(原名福田保税区实验学校);幼儿园则在距离项目约350米处有福田第八幼儿园。
商超:
楼下自带商业,目前距离比较近的益田中心广场,中港城的CTMALL。
医院:
项目距离最近的是福田妇幼保健院。
公园:
项目隔壁就是最大的湿地公园-福田红树林湿地公园,运动休闲都能满足。
二、周边房价,预计价格
保税区同带相同学位的小区单价区间在8-15万/㎡之间,最便宜的是城市三米六,最贵的也是最新的天健时尚名苑均价到了15万,因为是复式的原因。
三、项目户型图
59平1房1卫户型
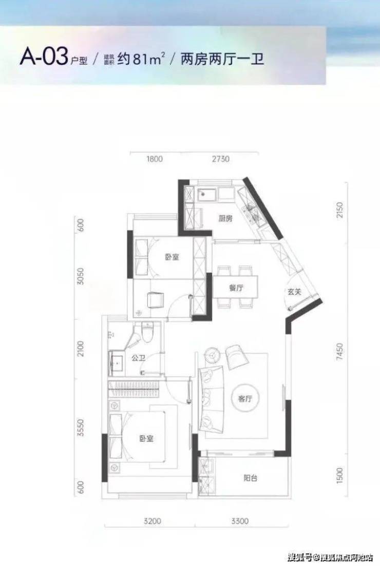
69--81平2房1卫户型
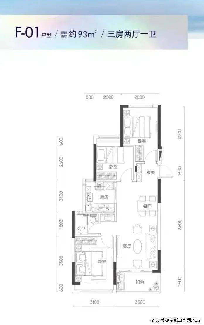
93--99平3房1卫户型
103--119平3房2卫户型
134--143平4房2卫户型
四、综合评价
优势:
1、保税区新盘,稀缺性,近十年来应该除了加福华尔登府邸之外的第二个新盘;
2、小高层,居住很舒适;
3、距离福田口岸近,深港双城生活便利;
4、福外初中学位加持,二梯队很不错的龙头。
劣势:
1、周围环境一般,保税区内20年楼龄居多;
2、距离地铁口略微偏远,高峰期交通比较堵。

深圳中信城开红树湾开发商售楼处咨询/预约热线:400-811-3080( 中介勿扰)
温馨提示:过来本楼盘营销中心看房请务必提前拨打400来电进行在线预约,感谢配合!
免责声明:
· 本文中所提到的中信城开红树湾项目名称均为本项目的网络推广名。
· 本资料仅作为要约邀请,相关内容不排除因政府相关规划、规定及开发商未能控制的原因而发生变化,本公司保留对宣传资料修改的权利,敬请留意最新资料。本资料对项目或产品的介绍,旨在提供相关信息,不意味着本公司对此作出了承诺,买卖双方的权利义务以双方签订的《商品房买卖合同》及附件等协议为准。
· 本文部分图片来源于国际互联网,版权归原作者所有,如涉及版权等问题,请立即联系我们,我们会给予更改或相关处理。对使用本网站信息和服务所引起的后果,本网站不作任何承诺。