在深圳这座充满活力的现代化都市中,每一个新楼盘的亮相都牵动着无数购房者的心弦。今天,我们满怀期待地为大家揭晓一个备受瞩目的项目——后海招商玺,它不仅承载着对高品质生活的追求,更将成为深圳豪宅市场的新标杆。
如需了解更多详情,欢迎咨询后海招商玺售楼处电话400 800 9113,过来我们营销中心看房提前来电预约价格还能更优惠。
【后海招商玺开发商售楼处400免费咨询/预约电话:400-800-9113,官方热线】
温馨提示:过来营销中心参观样板间请记得提前拨打售楼处400热线预约,感谢您的配合!

深圳豪宅长期存在“为溢价牺牲功能”的通病,但后海招商玺约95%使用率,在深圳湾新盘中堪称异类。
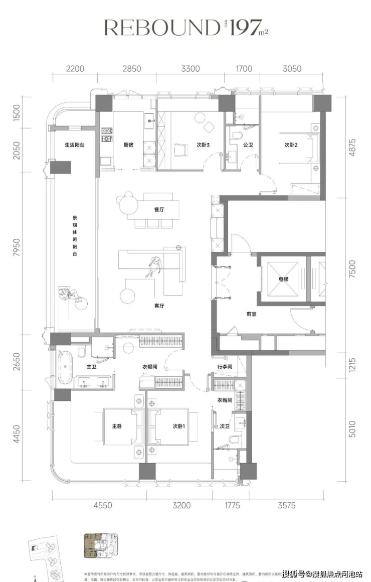
年底首推的产品,建面约197-237㎡大平层户型,两梯两户配置,一层仅两户,且享受专梯入户,私密度很高。我们抢先拿到户型图,跟大家分享。

建面约197㎡户型,含电梯厅综合赠送后使用率可达93-95%。
户型方正,三面采光,是主次卧以餐客厅分隔的双龙抱珠布局,实现动静分区,保障大家庭起居的私密性。
一体化餐客厅进深约6米,开间约8米,连接观景阳台,面积高达约48㎡,塑造休闲会客的尺度感。超大阳台做了景观、家政功能的双区分,阳台总面积约22㎡,休闲与晾晒互不干扰。
配置了U型明厨,操作动线更加高效合理,全屋卫生间都有开窗,采光无暗角。
南向双套间,都配置了衣帽间,视野最好的一个主卧可以设置浴缸及双台盆洗漱池。
主卧打造约4.6米开间,进深约4.5米(含飘窗约0.8米),面积约38㎡,且享受270°巨幕窗景。
次卧套间,约3.2米开间,进深约4.5米(含飘窗约0.8米),面积约22㎡,空间同样舒阔。且每个卧室都设计了宽景飘窗,可以利用起来增加收纳功能,延伸更多窗边休闲功能场景。

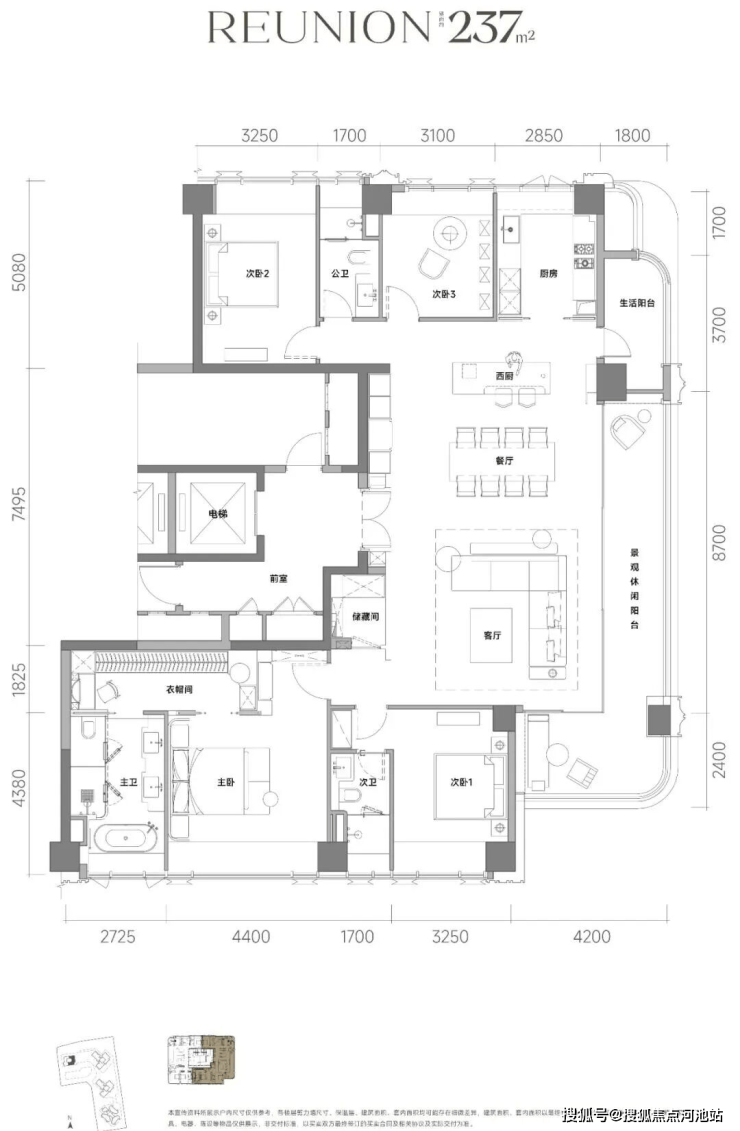
建面约237㎡户型,含电梯厅综合赠送后使用率可达93-95%。
也是三面采光设计,双龙抱珠,主次卧分布餐客厅两侧,实现动静分区。
餐客厅空间尺度很大,面积约60㎡,夸张点说,在里面打羽毛球都不嫌挤,且配置了西厨功能区。
阳台总面积约31㎡,长约18.9米,观景与生活功能区分。L型拐角,可设置为休闲观景区,270°瞰景,还增加“X”百变空间(约10㎡,最宽进深约2.4米)。
南向双套间,主卧套间配置超长步入式衣帽间,收纳功能拉满。主卧的开间约7.05米、进深约6.3米(含飘窗约0.8米),面积约44㎡,尺度与太子湾招商玺建面约425㎡户型的主卧相当。

项目优缺点总结:稀缺地段,品质之选
优势:
地段稀缺性:位于深圳湾与蛇口交汇点,同时享受两大板块的顶级配套资源,地段无可替代。
教育资源:育才系学区加持,教育资源在深圳属于第一梯队。
产品纯粹度:全大户型社区确保居住圈层统一,居住体验更加纯粹与舒适。
品牌背书:招商蛇口品牌背书,“玺系”产品线有品质保障;设计团队阵容强大,从建筑到室内均为行业顶尖水准。

深圳后海招商玺开发商售楼处电话 400-800-9113(官方热线)
过来售楼中心看房请提前预约,可尊享内部特惠,价格包您满意!
为您安排楼盘内场专业销售人员一对一接待服务!让你买的放心,住的舒心!
免责声明🔉:
以上所发布的关于楼盘相关图文信息仅供您买房前参考,以上所有关于本楼盘的图文资料及说明请以最终以项目批文及双方在楼盘营销中心现场签署的买卖最终合同为准;本图文内容如无意中侵犯到某方权益,请联系我们将会及时处理。