最新消息:神光明新楼盘——松茂御城二期,刚刚已拿证,单价3.45万/㎡起,8月28日正式认筹,诚意登记即可锁定房号,享开盘98折,认筹交5万诚意金享开盘95折!
【折后价格区间】预约看房还能更优惠!
81㎡三房两卫280-305万
88㎡四房两卫320-350万
109㎡四房两卫420-450万
137㎡五房两卫516-548万
8月28日拿证,同步开放实景样板房,首推1栋B/G/H/E座,共约333套,面积81㎡-135㎡!
如需了解本楼盘更多详情,欢迎来电咨询深圳光明松茂御城开发商售楼处免费400咨询/预约电话:400-880-7297(已认证)中介请勿扰,因近期参观的人员太多,本项目营销中心暂不接受临时到访,为不耽误您的行程,过来楼盘现场参观样板房请务必记得提前来电预约,预约看房的话最终房价还能更加优惠,最终价格包您满意!

盛典启幕 共鉴大城焕新
2025年8月28日,“大城盛启 御鉴新篇”松茂御城二期产品发布会暨样板展示空间盛大开放圆满落幕,为期待已久的城市居者开启了一场融合品质与美学的盛典。
发布会现场,深圳权威媒体、地产界意见领袖、行业精英等齐聚一堂,共同见证这一融合品质与美学的时代之作。松茂御城二期秉持松茂集团“稳中求发展”的经营理念,坚持“高成本、高标准、高品质”,锻造精工品质,用心为居者打造能够承载爱与理想、能够兑现美好生活的“好房子”。
松茂御城这个楼盘究竟值不值得买?
价值深研 解码人居“豪”基因
01
全能户型 惊艳光明
约81-135㎡三至五房,满足多元居住需求
松茂御城二期深研城市家庭居住痛点,以多元优质户型重构空间价值,从二人世界到三代同堂,让每一种生活理想都能从容安放。
约81㎡三房两厅两卫
堪称“空间魔术师”,实现了功能与舒适度的完美平衡,无论是三代共居还是二孩家庭,都能从容舒享。双卫生间设计,空间功能更优越,早晚高峰期不再拥挤,居家生活更高效。主卧独立套房,精巧三房也能私享私密与尊崇,满足年轻家庭对品质生活的追求。
松茂御城样板房照片:
左右滑动查看样板房
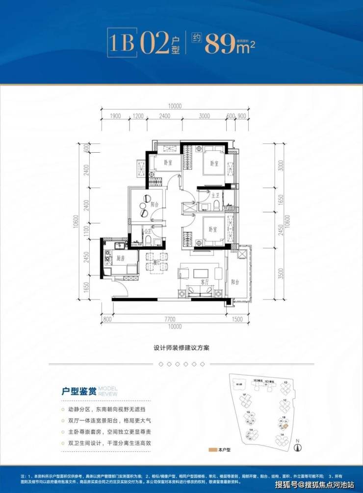
约89㎡四房两厅两卫
突破性实现四房布局,真正做到了“同等面积多一间房”,既保留了客餐厅的开阔尺度,又为二胎家庭或三代同住预留了充足空间,让成长型家庭无需为换房烦恼,一步到位实现“全生命周期居住自由”。
左右滑动查看样板房
约109㎡四房两厅两卫
阔绰大四房,尺度舒居,二孩家庭或是三代同堂,皆能各得其乐,是精英家庭一步到位的理想之选。部分独立入户,营造归家仪式感,主卧套房带衣帽间,尽显宽居气度。
左右滑动查看样板房
此外,约135㎡稀缺央景大五房,四开间朝南,将约2万㎡园林景观尽收眼底,双阳台与方正户型设计,让大宅生活的尊崇与舒适淋漓展现。
02
铝板外墙 幕墙式阳台
匠心精工,铸造品质人居
外墙甄选高品质铝板,采用先进工艺锻造更加平整、色泽均匀历久弥新的精工品质,赋予建筑奢豪质感。搭配玻璃幕墙式阳台,勾勒简约时尚的建筑艺术,提升人居价值与美学价值。如此豪宅用材精工品质,遍寻光明难觅其二。
03
约2万㎡全龄互动大园林
一座自然生长的“度假公园”
园林以“水岸绿洲”为蓝本,引水为邻诗意栖居。园内配备约410㎡亲子双泳池,下楼即享悠然度假;约300米元气跑道,把健身房搬进自然中;林涧廊亭与光影水院,为久处喧嚣的人提供一方静谧清幽;约6500㎡三层屋顶花园与双层架空会所,配备儿童益智空间、青年运动场、长者休闲区等,打造“邻里社交厅”,共筑温情社区。
*园林实景图
04
豪宅范品质公区
尊贵与仪式感共存的归家体验
地面地库精装双大堂,回家的每一步都是荣耀之路;地面精装入户大堂,约4米挑高,约33-68㎡奢阔入户大堂,复刻高星级酒店般的尊崇归家体验;宽阔明亮精装电梯厅,以细腻材质与精湛工艺,礼呈豪宅般的归家礼遇。
05
精工准现楼
所见即所得,置业更安心
项目实景准现楼呈现,园林景观、建筑品质、户型格局、装修品质等所见即所得,置业省心无风险。
精工准现楼 家期不久候
06
约30万㎡低密大社区
超高层时代,回归人居本真
项目是光明少有的低密大社区,总建筑面积约30万㎡,以31-32层臻稀非超高层建筑,重构光明低密舒居。二期容积率约4.55,匠心铸造8座高层与1所幼儿园,约2万㎡大园林,南北高达128米超阔楼间距,让建筑与自然从容对话。
*项目渲染效果图,最终以实际交付为准
07
13号线双地铁站
1站凤凰城 9站进南山
近邻13号线(预计2025年底开通)月亮路站(在建)直线距离约600米,距将围站(在建)直线距离约800米,未来1站凤凰城,9站进南山,一线直达南山科技园、深圳湾 口岸。13号线正式进入列车调试阶段,向下一步通车试运营迈出了关键性一步。

*图片来自于网络,如有侵权请联系删除,以政府规划实施为准。
08
全龄教育矩阵
从启蒙到高中的“一站式成长”
社区自建约2400㎡9班公立幼儿园(在建),家门口的快乐启蒙。距深实验光明明湖学校直线距离约800米,周边更有深圳市光明实验学校、深圳中学光明科学城学校、深大附属光明学校(玉塘学校)、深圳市光明区凤凰城实验学校等九年一贯制学校,护航孩子更好成长。
教育
书香为邻

*图片来自于网络,如有侵权请联系删除,以政府规划实施为准。
09
集优生活主场
一城精粹,畅享万千繁华
繁华商圈:同享约38万㎡醇熟商业
约1.75万㎡社区商业(在建)、约6万㎡13号线城市更新商业(在建),5公里内同享约15万㎡光明大仟里、约10万㎡蓝鲸世界、约6万㎡万达广场等醇熟商业。

*图片来源于网络,如有侵权请联系删除
公园为邻:约200万㎡城市公园绿意荟萃
约58万㎡明湖城市公园举步即达,更新单元内约60万㎡主题公园(在建)、约6.8km茅洲河生态长廊等绿意荟萃。
*明湖城市公园,图片来源于网络,如有侵权请联系删除
多元文体:三馆一心丰富休闲生活
13号线重点城市更新片区内规划城市展厅、博物馆、凤凰文体中心等三大场馆,3公里内近享光明文化艺术中心,涵养高阶生活逸趣。

松茂御城户型图欣赏
户型品鉴,启幕人生进阶
看完以上关于深圳光明松茂御城二期楼盘相关的图文介绍,如果您对我们楼盘感兴趣的话,建议您可以联系我们开发商售楼处全国免费400热线电话:400-880-7297(已认证)在线进行免费咨询或对接楼盘现场销售人员(中介请勿扰),我们可以为您安排本楼盘现场销售一对一在线服务,比如说把楼盘的最新图文资料、样板房视频、通过手机的方式发给您看一看、您不需要立即过来楼盘现场就能够对我们楼盘熟悉个大概,还可以告诉您关于我们松茂御城二期楼盘对比周边楼盘的优点缺点、楼盘这几天最新的优惠政策、银行政策以及LPR利率、积分入学,等相关购房方面的问题都给你讲解的明明白白,让您买房不踩坑,毕竟买房是大事。找现场销售咨询并不需要额外花钱,反而更省钱,而且可以避免一些中介虚报价格浪费你宝贵的时间和精力,我们会把额外认购优惠、按时签约优惠、房贷优惠、一次性付款的优惠都告诉您,希望您能通过这个平台,全面了解我们的楼盘信息并顺利、开心的完成购房流程。

免责声明:以上展示的关于深圳光明松茂御城二期楼盘最新相关图文资料可能有部分来自于网络,一切信息以最终在在我们楼盘现场签署的购房合同为准,如图文内容可能无意中侵犯某方权益的话,请及时联系我们将配合处理。