招商臻城位于深圳市龙岗区吉华街道联中路与联东路交汇处;距离地铁5号线下水径站1.1公里。更多详情可咨询招商臻城开发商售楼处电话: 400-811-3080,中介勿扰,过来看房提前预约可尊享开发商内部优惠,价格包您满意!

项目基础信息:

开发商:深圳招商安业投资发展有限公司
物业:深圳市招商物业管理有限公司
总占地面积:170325.4㎡
总建筑面积:约96万㎡
容积率:5.64
总户数:2408
车位:待定
绿化率:40%
物业费:待定
梯户比:3梯4户
产品类型:(住宅)


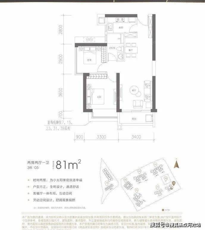
户型面积:
建面约51/72-80/90/96/101/136㎡(一至四房)
备案单价:4.6--5.9万/平
备案均价:5.4万/平
折扣单价:4.1万起(预约看房价格更优惠)
交楼:精装交楼
卖点:品牌开发商、周边配套成熟。
招商臻城项目交通:
【3大动脉】布龙路、龙岗大道、水官高速
【地铁】目前已经开通地铁3/5号线,14号线(在建中),距离项目最近的是上水径站。
【枢纽】深圳东站,深圳东站作为深圳“三主四辅”规划的七大枢纽之一,是目前深圳少有的同时拥有“1个枢纽、3条地铁线、3动脉”的TOD枢纽交通。
商业配套:
【商业】项目自带约4.4万㎡精品街区商业(规划中),周边聚集5大成熟商圈,凯旋荟MALL、天虹商场、万象汇、布吉佳兆业广场、星都里,享受繁华布吉商圈;
【医疗】项目周边有深圳市第三人民医院、规划中的吉华医院(香港中文大学深圳直属附属医院),两所三级甲等医院。
【生态】项目周边有龙岗东部规模较大的生态郊野公园三联郊野公园(规划中)、“深圳第二座莲花山公园”石芽岭公园、银湖郊野山公园三大公园环伺。
【文体】布吉文体中心(规划中),超11万㎡布吉文体中心新标杆。
周边学校:
根据目前最新的学区划分,招商三联片区整体的学区划分为大学区,小学可以选择南京师范大学附属龙岗学校和水径小学,中学可以选择南京师范大学附属龙岗学校和布吉中学。
休闲配套:
项目周边有两大公园,南向800米有石芽岭公园。北侧靠161万平米的三联郊野公园,规划建设自行车道、市民休闲登山道及相关服务配套,三清观和关公文化景观也将落户于此。华侨城打造甘坑文旅小镇,占地1200万平米,预计年接待游客500万,产值近千亿。
【招商臻城开发商售楼处电话☎️ 400-811-3080(中介勿扰)】
✅ 本项目暂不接受临时到访,过来参观样板房请记得提前来电预约!预约看房价格更优惠!
✅ 为您安排楼盘现场销售全程接待并讲解,给您更贴心的看房体验!
温馨提醒:我们招商臻城花园楼盘开发商售楼部400电话没有设置任何所谓的“分机号”,拨打前请仔细甄别,注意保护个人隐私!谨防上当!
【免责声明】
1、本文部分信息和图片来源其开发商推广内容,对项目周围交通、商业、文化教育、医疗以及其他市政条件的介绍,具体以政府规划及现场实际为准。
2、效果图是规划意向的概念设计展示,非最终规划方案,不作为开发商承诺,最终以向政府报批报建的方案为准。
3、本文所述内容和意见仅供参考,不构成市场交易依据和投资建议,买卖双方权利义务以双方签署的买卖合同为准。