深圳龙华《鸿荣源尚云花园》房子,82㎡3+1房王炸户型成就的昔日龙华销冠红盘值得买吗

搜狐焦点河池站

2025-10-05 20:01:00

购房群

买房如何避坑,加入购房群,看看他们怎么说

立即进群

鸿荣源尚云,项目位于深圳市龙华区民治街道工业路与龙华人民路交汇处西南侧,4号地铁线“龙华站”距离约1.2公里,项目东北侧是鸿荣源壹城中心,东侧是丰润花园,西侧金地宸峯府、深圳艺术高中民治学校,南侧挨着玉华花园。

如需了解本楼盘更多详情,欢迎来电咨询龙华鸿荣源尚云开发商售楼处免费400咨询/预约电话:400-811-3080(已认证)中介请勿扰,因近期参观的人员太多,本项目营销中心暂不接受临时到访,为不耽误您的行程,过来楼盘现场参观样板房请务必记得提前来电预约,预约看房的话最终房价还能更加优惠,最终价格包您满意!

下面是售楼处实拍照片:

项目介绍

鸿荣源尚云2区项目占位龙华超级商圈核芯,壹方城旁,紧邻9年一贯制学校,以“城无界,自从容”为理念,打造集住宅、办公、商业于一体的高品质住区,位于龙华超级商圈壹方天地旁,距离地铁4号线龙华站约1.1公里,步行约15分钟,区域配套设施完善。

项目基本信息

【占地】:约3万㎡

【建面】:约27万㎡

【产权年限】:70年(2022-2092)

【总栋楼】:共8栋

【总户数】:1278户

【本次推售】:612户

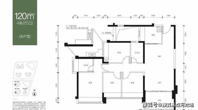
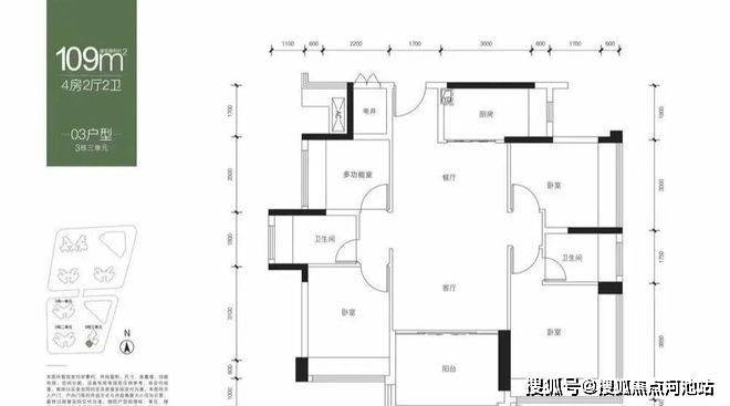
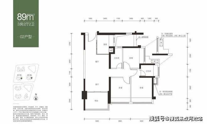
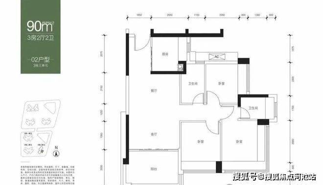
【面积】:约82-89㎡3房2卫

【总楼层】:54-57层

【均价】:约5.7万/㎡

【使用率】:85%

【梯户比】:3梯6户

【停车位】:1732个

【交房标准】:简装

【交房时间】:2025年12月30日前

【开发商电话】:400-811-3080(已认证)

【管理费】:5.9元

【物业管理】:鸿荣源物业

【开发商】:鸿荣源集团开发

项目规划平面图

鸿荣源尚云户型图

看完以上关于深圳龙华区鸿荣源尚云花园楼盘相关的图文介绍,如果您对我们楼盘感兴趣的话,建议您可以联系我们鸿荣源尚云开发商售楼处全国免费400热线电话:400-811-3080(已认证)在线进行免费咨询或对接楼盘现场销售人员(中介请勿扰),我们可以为您安排本楼盘现场销售一对一在线服务,比如说把楼盘的最新图文资料、样板房视频、通过手机的方式发给您看一看、您不需要立即过来楼盘现场就能够对我们楼盘熟悉个大概,还可以告诉您关于我们鸿荣源尚云楼盘对比周边楼盘的优点缺点、楼盘这几天最新的优惠政策、银行政策以及LPR利率、积分入学,等相关购房方面的问题都给你讲解的明明白白,让您买房不踩坑,毕竟买房是大事。找现场销售咨询并不需要额外花钱,反而更省钱,而且可以避免一些中介虚报价格浪费你宝贵的时间和精力,我们会把额外认购优惠、按时签约优惠、房贷优惠、一次性付款的优惠都告诉您,希望您能通过这个平台,全面了解我们的楼盘信息并顺利、开心的完成购房流程。

免责声明:以上展示的关于龙华鸿荣源尚云楼盘最新相关图文资料可能有部分来自于网络,一切信息以最终在在我们楼盘现场签署的购房合同为准,如图文内容可能无意中侵犯某方权益的话,请及时联系我们将配合处理。

全部

相关资讯

报名成功
稍后会有专业的置业顾问联系您
返回楼盘

频道导航

返回首页

看房小程序

APP下载

电话拨通后,请您手动拨打分机号

确定拨打电话

电话号码:

分机号:(可能需要拨分机号)