2026宝安福永商品房公寓【会展湾云岸/水岸/里岸】

搜狐焦点河池站

2026-01-03 05:16:00

购房群

买房如何避坑,加入购房群,看看他们怎么说

立即进群

深圳西部宝安国际会展中心旁项目——会展湾云岸/水岸/里岸,项目再次推出精装工抵房,拼团一口价仅2万/㎡,最低65.8万就能拿下33㎡精装现楼,即买即享!这样的价格在会展新城核心区,堪称史无前例的抄底窗口期,不管是投资还是刚需过渡,都是闭眼入的优选!

要知道,项目可是两大央企华侨城&招商联袂打造,地铁20号线国展南站上盖,1站直达机场,坐拥一线海景+河景双重景观,超低容积率+户户带阳台,再叠加全球最大会展中心的经济红利,价值潜力肉眼可见。此次工抵房名额有限,想抢占福利的朋友务必抓紧!

会展湾云岸 / 里岸 / 水岸项目位置航拍示意图:

如需了解本楼盘更多详情,欢迎来电咨询深圳会展湾云岸项目开发商售楼处免费400咨询/预约电话:400-800 9113(官方发布)中介请勿扰,因近期参观的人员太多,本项目营销中心暂不接受临时到访,为不耽误您的行程,过来楼盘现场参观样板房请务必记得提前来电预约,预约看房的话最终房价还能更加优惠,最终价格包您满意!

【工抵房核心福利&专属指引】

▌拼团一口价:2万/㎡(精装交付,现楼入住)

会展湾云岸 / 里岸 / 水岸究竟值不值得买?

央企联袂+全球会展芯!9倍经济效应,价值爆发在即

买房跟着核心规划走,才能稳稳拿捏价值风口。会展湾云岸立足湾区核心,坐拥多重战略区位叠加优势,堪称深圳经济增长极上的黄金资产。

项目鼎立全球第一大会展综合体门户,依托约160万㎡深圳国际会展中心——这是深圳面向全球的窗口,带来1:9的会展经济带动效应,堪称深圳经济加速器。不完全统计,仅2023年展会排期就超40场,总展览面积超400万㎡,参展人数预计超600万人,海量人流直接拉动周边住宿、消费需求,目前会展湾周边酒店供不应求,公寓租赁需求缺口巨大,价值凸显。

更有29平方公里会展新城加持,由“三城一港”(国际会展城、海洋新城、会展田园城、综合港区)构成,打造全球会展产业发展高地。超300万方深圳会展湾形成复合功能物业群,涵盖产业总部、商业中心、国际酒店群等,构建全球信息交流与消费体验平台。加上华发冰雪文旅城等世界级文旅配套赋能,区域价值腾飞在即。项目由华侨城、招商两大央企联袂打造,品牌实力护航,资产更具保障。

地铁上盖+五维交通!1站机场,20分钟直达市中心

交通的便捷度,直接决定资产的流通性与居住的幸福感。会展湾云岸坐拥“海陆空铁轨”五维立体交通网络,构建湾区1小时经济圈,出行效率拉满。

最核心的优势是地铁20号线国展南站园区上盖,拥有4个出站口,1站即可抵达机场北站,换乘地铁11号线就能直达宝中、前海湾、后海、福田等核心区域。已通车的12号线途经南山和宝安,无缝衔接11号线、6号线,20分钟就能抵达市中心区,通勤十分便捷。

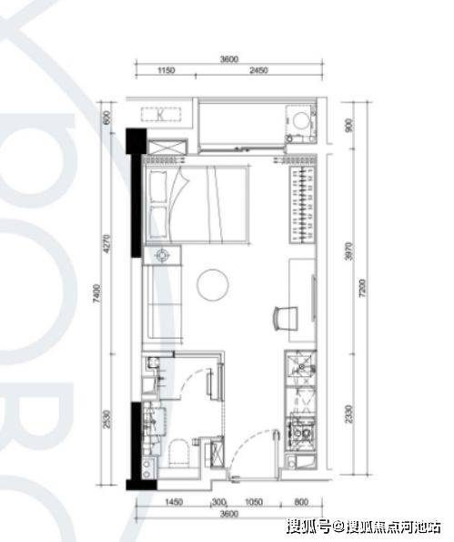
户型图欣赏

陆路方面,现有沿江、广深、外环、京港澳4条快速干道环绕,在建深中通道、规划中滨江大道将进一步完善大湾区交通网络;轨道上,穗莞深城际可快速链接市内各区及珠三角城市;航空方面,深圳宝安国际机场T3航站楼已启用,T4航站楼与机场第三跑道在建,未来可直飞全球超120个城市;加上周边港口资源,轻松实现全球便捷出行。

全维醇熟配套!商业、文旅、生态一应俱全

项目周边配套堪称“顶配”,商业、文旅、生态、教育、医疗全维覆盖,不管是居住还是出租,都能满足高品质需求。

周边配套情况说明:

商业配套:依托约32万㎡国际体验式商业中心,集休闲、家庭、娱乐、美食于一体,打造辐射湾区的城市级商业中心;周边还有约69.7万㎡国际高端商务公寓集群,荟萃丰富商业生活配套,满足全球会展客户及周边人群的消费需求。约25万㎡国际五星级酒店群环聚,已确定引入希尔顿、洲际皇冠假日等知名品牌,高端商务接待需求轻松满足。

文旅生态:三大世界级文旅配套带动区域蝶变——融创冰雪城拥有全球最大室内雪世界、冰雪主题酒店;新海上田园规划全球最大全天候室内游乐城、全亚洲最大室内水上乐园;华润金蚝小镇耗资千亿打造,规模是大冲旧改的4.4倍。此外,项目紧邻占地面积约163万平方米的海上田园,这是“国家4A级综合景区”“世界级梦幻水乡”,也是粤港澳大湾区生态绿核,休闲健身好去处。

教育医疗:教育方面,周边已投入使用塘尾万里学校、茭塘小学、沙井中学(宝安一级)、荣根学校(省一级)等多所优质学校,还有市一级幼儿园,片区还规划两所九年一贯制学校,教育资源持续升级。医疗方面,5公里内有深圳市中西结合医院、沙井人民医院2家三甲医院,还有宝安区沙井坣岗医院、深圳万丰医院等,为健康保驾护航。

低密墅级品质!一线双景+户户带阳台,现楼即享

作为现楼项目,会展湾云岸的品质看得见、摸得着,彻底告别期房焦虑,入手即可享受成熟生活。

项目总建面约8.8万㎡,除了会展行政公寓、独栋总部办公,还规划了开放式商业街区,业态丰富。最难得的是,项目容积率低至1.66,在深圳实属罕见,居住舒适度远超同类产品。户型方正实用,实用率高达73%,层高3.2-3.6米,比普通住宅(层高多为2.8米)更宽敞开阔,空间通透感十足。

更值得一提的是,项目是区域内唯一拥有海景+河景双重景观的项目,直面6.4公里会展河,坐拥零遮挡一线河景,推窗就能欣赏一线海景与河景交织的墅级景观。而且户户带阳台,明厨明卫、明厅明卧,采光通风俱佳,精装交付标准更是省去装修繁琐,即买即入住、即买即出租。

多元优质户型!适配全需求,投资自住皆可

项目打造多元户型,从单身公寓到三房两厅,精准适配不同人群需求,不管是单身精英自住、小家庭过渡,还是投资出租,都能找到合适的选择。

▌A1户型(33㎡酒店式公寓):朝向东南、西北,3.6米开阔开间,搭配独立阳台,空间布局紧凑实用,低总价低门槛,是投资出租的优选;

▌B2户型(63㎡两房一厅一卫):西南、东南朝向,端头位设计实现双面采光,坐拥无敌景观,适合小家庭居住;

▌B1户型(72㎡2+1房一厅一卫):西北、东南朝向,户型方正,带多功能房,可根据需求灵活改造,无敌景观加持,居住体验升级;

▌C1户型(92㎡三房两厅两卫):正南朝向,端头位双面采光,主客分区设计保障私密性,瞰河无敌景观,适合改善家庭或高端商务出租。

抄底窗口期告急!2万/㎡抢央企现楼,手慢无

在会展新城核心区,央企开发、地铁上盖、一线双景、低密纯居的现楼本就稀缺,如今精装工抵房仅2万/㎡起,65.8万就能拿下33㎡房源,这样的性价比堪称“地板价”,错过再无!

要知道,依托全球最大会展中心的9倍经济带动效应,周边公寓租赁需求缺口巨大,未来租金收益可观。而且项目是现楼交付,入手即可出租,快速实现投资回报,无需漫长等待。

看完以上介绍,如需了解更多关于我们深圳宝安沙井会展湾云岸/里岸/水岸楼盘最新消息、剩余房源以及楼层、这几天房价优惠活动、在卖的户型、限购政策、房贷相关问题等情况,欢迎来电咨询会展湾云岸开发商售楼处全国免费400咨询/预约电话:400 800 9113(官网认证)中介请勿扰。

温馨提示:因近期本项目售楼中心参观样板间采取预约制,为不耽误您的行程,过来营销中心现场看房请务必记得提前拨打售楼处400电话来电进行预约一下,预约看房价格还可以享受更多开发商内部优惠,名额有限千万不要错过,感谢您对我们工作的支持和配合,在此恭候您大驾光临实地品鉴。

免责声明:以上展示的关于深圳宝安会展湾楼盘最新图文资料可能有部分来自网络,一切信息以最终在现场签署的购房合同为准,如图文内容无意中侵犯某方权益的话,请及时联系我们将配合处理。

全部
报名成功
稍后会有专业的置业顾问联系您
返回楼盘

频道导航

返回首页

看房小程序

APP下载

电话拨通后,请您手动拨打分机号

确定拨打电话

电话号码:

分机号:(可能需要拨分机号)