中海新都荟-深圳(龙岗中海新都荟)首页网站-2025最新房价+中海新都荟户型图+小区环境+配套+销售情况

搜狐焦点河池站

2025-07-27 18:57:41

购房群

买房如何避坑,加入购房群,看看他们怎么说

立即进群

中海新都荟(备案名:阳光新都荟花园)位于龙岗区宝龙街道深汕路与同富路交汇处,项目西侧是中信龙盛广场,北侧是一大片菜地,视野开阔,东侧靠近中骏四季阳光,南侧以工业园区及民房为主,16号地铁线“龙东站”就在家门口。项目为16-31层小高层,容积率3.18,总价212万起买地铁口南北通透精装三房;

如需了解更多关于我们楼盘最新消息、剩余房源、优惠活动、房价走势等情况,感兴趣的朋友欢迎来电预约前往参观,享受一对一专属VIP看房服务,免费专车接送,一定比中介和自媒体更便宜享受开发商内部额外最低优惠折扣和大额现金购房补贴。

Vip Tel:400 811 3080【已认证】

配套方面,约500米沈海(深汕)高速龙岗出入口,项目自带一所9班制幼儿园,距离深圳市龙岗区同心实验学校仅约900m,建制45班,2022年加入华中师范大学龙岗附属中学(集团)。项目自带约1.2万㎡集萃商业,近邻约2.2万㎡中信龙盛广场,出门即达16号线地铁商业下沉广场

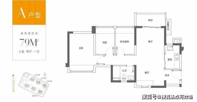
户型介绍:79㎡三房一卫、82平米三房一卫、89平米三房两卫

区域发展现状

提到龙岗,大部分人脑海中首先浮现便是龙岗中心城,这个已发展30余年的板块,几乎成为了龙岗的代名词。本案所在的龙东片区距离龙岗中心城约5公里,临近地铁16号线龙东站,在龙岗“一轴、两带、三通廊”城市规划中,地铁16号线是特殊且重要的一条线路,它的开通是进一步落实东进战略的重要举措,将链接龙岗中心城、大运中心、坪山高铁中心三大板块,推动龙中居住区域板块整体向东外拓,建设“龙城2.0”居住区。

深圳中海新都荟开发商售楼处电话 400-811-3080(中介勿扰)

过来售楼中心看房请提前预约,可尊享内部特惠,价格包您满意!

为您安排楼盘内场专业销售人员一对一接待服务!让你买的放心,住的舒心!

免责声明🔉:

以上所发布的关于楼盘相关图文信息仅供您买房前参考,以上所有关于本楼盘的图文资料及说明请以最终以项目批文及双方在楼盘营销中心现场签署的买卖最终合同为准;本图文内容如无意中侵犯到某方权益,请联系我们将会及时处理。

全部

相关资讯

报名成功
稍后会有专业的置业顾问联系您
返回楼盘

频道导航

返回首页

看房小程序

APP下载

电话拨通后,请您手动拨打分机号

确定拨打电话

电话号码:

分机号:(可能需要拨分机号)