深圳豪宅市场再掀波澜!富通九曜公馆悬空泳池+玻璃幕墙,颠覆传统人居体验!

搜狐焦点河池站

2026-02-04 17:13:00

购房群

买房如何避坑,加入购房群,看看他们怎么说

立即进群

深圳【富通九曜公馆 】

作为23年刚交房的产品,这个盘距离cocopark也就一公里,并且整体都很新,而且自带高尔夫景观!

如需了解本楼盘更多详情,欢迎来电咨询深圳福田富通九曜公馆 开发商售楼处免费400咨询/预约电话:400-880-7297(官方发布)中介请勿扰,因近期参观的人员太多,本项目营销中心暂不接受临时到访,为不耽误您的行程,过来楼盘现场参观样板房请务必记得提前来电预约,预约看房的话最终房价还能更加优惠,最终价格包您满意!

01

基础数据

【项目名称】富通九曜公馆

【开发商】富通新光房地产开发有限公司

【项目地址】福田区新沙路18号

【物业公司】世邦魏理仕

【占地面积】约1.7万㎡

【总建筑面积】11.8万㎡

【建筑类型】住宅、公寓,幼儿园 商业裙楼

【开发商电话】400 880 7297

【楼栋数】4栋

【总户数】1387户

【产品面积段】

住宅:96-116-121㎡-360㎡

公寓:245-337㎡ 3-4房 665㎡顶复

【梯户比】1栋2单元4梯6户,46-56层2梯2户,3单元公寓2梯3户

【容积率】7.05

【绿化率】30%

【车位】1360 1:1

【楼高】住宅最高59层

【层高】3.15m 公寓:3.6米 住宅大户型3.4米

【交付标准】现楼毛坯

【产权年限】70年

02

户型介绍

富通九曜公馆

【富通九曜公馆】

共4栋楼,包含了住宅和公寓,住宅面积有96-116-121㎡-360㎡,

公寓有245-337㎡ 3-4房 665㎡顶复;一栋二单元为住宅项目,59层高,4梯6户,46-56层2梯2户;三单元为公寓,共41层,公寓2梯3户。

*住宅户型图:

约96平2房1卫

厨房、洗手间采光面受限,且只做了两房一卫,户型使用率一般,更多是考虑整个小区了。

约116平3房2卫

入户玄关处宽敞,可以做收纳,客厅双面采光面,厨房自带生活阳台,整体户型实用性不错。

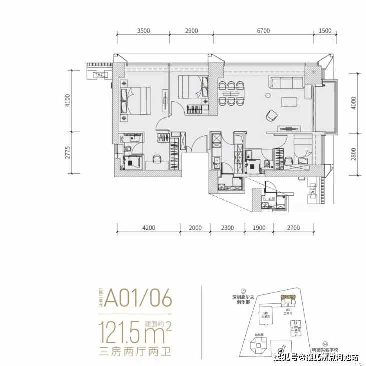
约121平3房2卫

客厅双面采光,主卧套房设计,厨房外面带个小生活阳台,总体来说分布合理,比较实用。

约360平4房5卫

玄关处宽敞可以做收纳,狭长走廊,3个套房设计非常舒适,尺度宽敞,客餐厅一体。

*公寓户型图:

约246平3房2卫

套房设计让生活起居更舒适并且有私密性,主卧带步入式衣帽间,厨房动线流畅带岛台,客餐厅一体。

户型小结

【富通九曜公馆】主力户型以96-360㎡为主,有2-5房多种选择。

其中,96㎡为2房2卫,适合单身或年轻夫妻;

121㎡为3房2卫,横厅设计兼顾景观;

360㎡大平层为4+1房2厅5卫,空间宽敞,配备中西厨、独立工人房及多个卫生间,适合追求极致居住体验的客户。

部分户型设计注重景观视野,但是牺牲户型舒适度!

如96㎡东北向户型配备6米阳台,可眺望福田CBD,但是户型实用性不好!

121㎡横厅户型拥有270°景观面,3+1房设计满足多样化需求。

360㎡大平层分布在45-59层高区,一层两户,采用2梯2户配置,保障私密性与出行舒适度。

景观资源

多数户型可可以深圳高尔夫景观,部分高层户型红树湾公园、深圳湾海景及福田CBD天际线,双面采光最大限度观景!

03

实景情况

富通九曜公馆

实景图

看完以上关于深圳福田香蜜湖富通九曜公馆 楼盘相关的图文介绍,如果您对我们楼盘感兴趣的话,建议您可以联系我们开发商售楼处全国免费400热线电话:400-880-7297(官方发布)在线进行免费咨询或对接楼盘现场销售人员(中介请勿扰),我们可以为您安排本楼盘现场销售一对一在线服务,比如说把楼盘的最新图文资料、样板房视频、通过手机的方式发给您看一看、您不需要立即过来楼盘现场就能够对我们楼盘熟悉个大概,还可以告诉您关于我们富通九曜公馆 楼盘对比周边楼盘的优点缺点、楼盘这几天最新的优惠政策、银行政策以及LPR利率、积分入学,等相关购房方面的问题都给你讲解的明明白白,让您买房不踩坑,毕竟买房是大事。找现场销售咨询并不需要额外花钱,反而更省钱,而且可以避免一些中介虚报价格浪费你宝贵的时间和精力,我们会把额外认购优惠、按时签约优惠、房贷优惠、一次性付款的优惠都告诉您,希望您能通过这个平台,全面了解我们的楼盘信息并顺利、开心的完成购房流程。

免责声明:以上展示的关于深圳富通九曜公馆 楼盘最新相关图文资料可能有部分来自于网络,一切信息以最终在在我们楼盘现场签署的购房合同为准,如图文内容可能无意中侵犯某方权益的话,请及时联系我们将配合处理。

全部
报名成功
稍后会有专业的置业顾问联系您
返回楼盘

频道导航

返回首页

看房小程序

APP下载

电话拨通后,请您手动拨打分机号

确定拨打电话

电话号码:

分机号:(可能需要拨分机号)