深圳沙井【拾悦城·楠园】
拾悦城一期以备案住宅949套,均价约4.3万/㎡毛坯价格,2023年的今天,沙井拾悦城二期约4.5万均价带装修的口号,解去装修后直接打回到2017年一期的价格!
拾悦城二期·楠园,本次首推房源约530套!已经正式开放样板!过来现场看房需要提前拨打开发商售楼处电话400-811-3080, 进行在线预约,我们项目规划总户数约2015套,可售房源约1307套,车位2398个,户型详细户型段为建面约86-95㎡(三房两厅一卫),约100-107㎡(三房两厅两卫),约115平-125平(四房两厅两卫),约140平(五房两厅两卫)已经正式开盘了!

近期,沙井可谓赚足了热度,接下来,沙井将有新菜上场!2017年推的拾悦城,如今二期将映入大众眼帘!
建设进度实拍



实景图
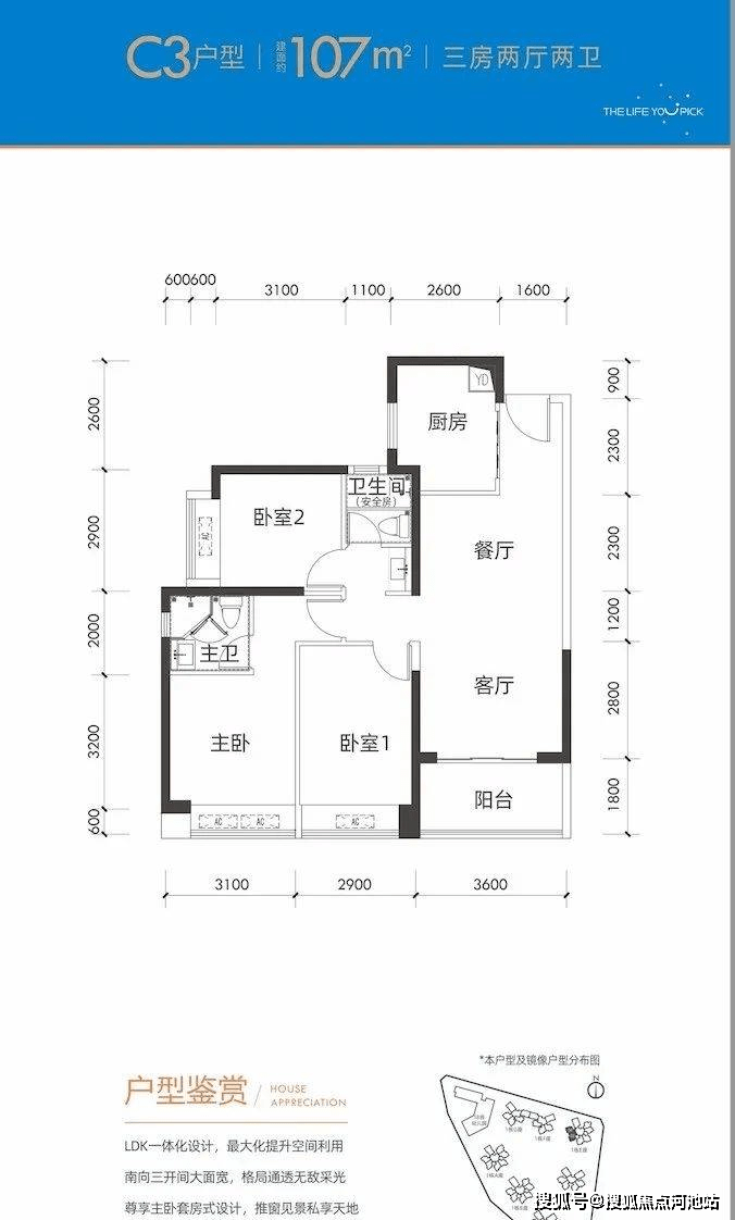
二期楠园户型分布平面图
拾悦城户型图介绍:
86平刚需上车最优解,成就多元而精致的生活方式
建面约86㎡3房2厅1卫户型,标准大三房的格局,经典的竖厅设计,非常适合首置的购房者,整个空间兼具实用性与舒适性。


100-107平升级版三房,pro max次卧,二孩家庭的幸福居室
约100-107平的三房户型,三开间全部朝南,通风采光无死角,尽享阳光的宠溺。



115-140平阔绰横厅四房,三代同堂的亲情大宅
该户型皆处于端头位置,最大程度避免其他住户的遮挡,四房设计,让室内布局变的灵动起来。


拾悦城二期占地约3.54万㎡,计容建面约23.5万㎡,自带4500平商业,7栋住宅➕1所幼儿园组建而成,Abc三栋层高53,defg四栋层高48,一路之隔还规划了九年一贯制36班学校、一所18班幼儿园。效果图
项目整体分3期开发,此次入市的楠园、沁园属于项目2期,具体户型图将会在近期公布。
作为全国首批三星级绿色建筑住宅,安全耐久、健康舒适、节约资源的绿色健康人居空间;

采用围合式布局,园林以“全维社区共享生活体系”为概念,打造全龄段、多元化、动静分明的社区园林,静享超万平米中央园林,归家沉浸理想全维生活。
交通配套:项目紧邻11号线沙井站约800米,5站到机场,8站通宝中,快速通达前海湾、后海总部基地,深超总、福田中心。
教育配套:值得一提的是,项目一期旁边就是拾悦小学,二期内建设有一所18班幼儿园,北侧还规划有一所九年一贯制学校,教育配套比较丰富。
且之前有传闻拾悦城二期自带的九年一贯制学校将引入宝安中学教育集团分校,如果消息属实,那项目在教育这点上在同片区的新房中,还是非常有卖点的。
商业配套:约3公里内超48万㎡商荟集群,享天虹、沃尔玛、京基百纳广场核心商圈,未来周边还会进驻山姆会员店(建设中)、百佳华Max City(建设中)、海岸城等。
示意图
休闲配套:楼下举步即达约9.5万㎡占地的定岗湖湿地公园,茶余饭后可漫步于丰盈绿意的天然氧吧,周边还有大钟山公园、壆岗湖公园等森境围合,独享自然生态谧境。

定岗湖公园实拍图
17年入市的拾悦城一期已经有不少住户入住,整体生活氛围不错,且二期比一期相对远离地铁11号线轨道,免受地铁噪音干扰。
营销中心及样板已开放,过来看房记得其他来电预约,恭候您大驾光临!
【深圳拾悦城开发商售楼处咨询/预约电话:☎️400-811-3080(中介勿扰)】
✅ 本项目暂不接受临时到访,过来参观样板房请记得提前来电预约!
✅ 为您安排楼盘现场销售全程接待并讲解,给您更贴心的看房体验!
特别注意:本楼盘开发商售楼部400电话没有设置任何所谓的“分机号”,拨打前请认真识别,注意保护个人隐私!谨防上当!
免责声明🔉:
以上所发布的关于深圳宝安沙井拾悦城二期楠园楼盘相关介绍详情仅供您购房前参考,以上所有关于本楼盘的图文资料及说明请以最终项目批文及双方在楼盘营销中心现场签署的买卖最终合同为准;本图文内容如无意中侵犯到某方权益,请联系我们将会及时处理。