最新消息:深圳光明新湖街道楼村楼盘,满京华·金硕华府建筑面积97-140㎡,备案单价4.2-5.1万/㎡,均价4.68万/㎡。如需了解更多详情,欢迎咨询满京华·金硕华府售楼处电话400 811 3080,过来我们营销中心看房提前来电预约价格还能更优惠。
【满京华金硕华府售楼中心400免费咨询/预约电话📞:400-811-3080,中介勿扰】
温馨提示:本项目参观样板间采取预约制,过来现场看房请提前来电预约,感谢您的配合。

本次新推1栋(1栋一单元、1栋二单元)430套住宅,建筑面积约98-141平住宅产品,均为毛坯价备案,全装修交付。备案区间价格在4.2-5.1万/平方米,备案均价约4.68万/平。
项目此前开盘,折后价格可以说是同类住宅中价格比较低的,折后最低约3.66万/平起。
开盘销售流程和时间为:
11月29日9:00-11月30日9:00,意向登记阶段;
11月29日9:00-11月30日9:00,保证金冻结阶段;
11月30日-12月1日,意向登记人名册公示及公证摇号阶段;
12月1日15:00,线下公证选房。
下面是满京华金硕华府备案价格清单:(以下是没打折的价格),过来看房提前拨打开发商官方400电话在线预约的话,价格会更优惠!!

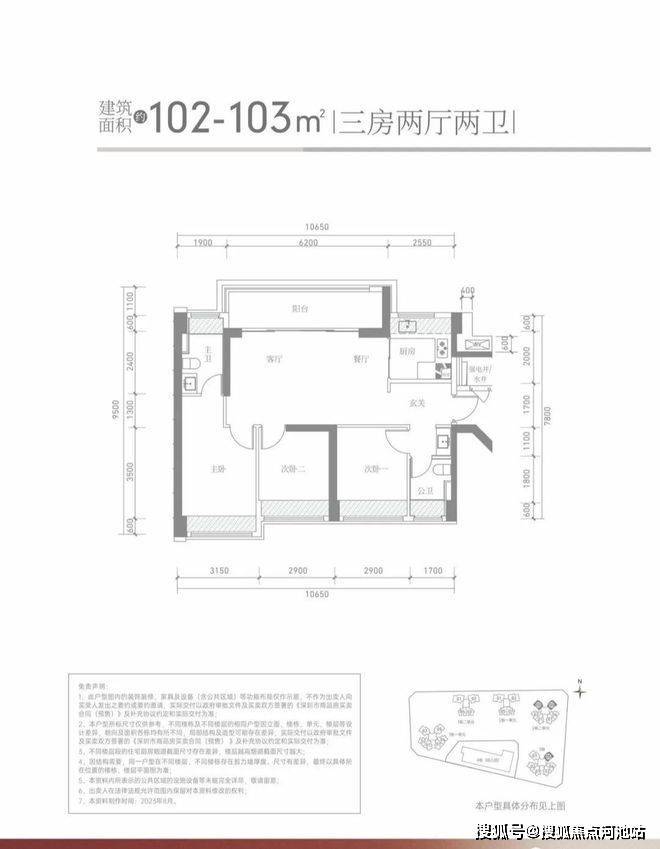
平面图及户型图

满京华金硕华府开发商售楼处电话 400-811-3080(中介勿扰)
过来售楼中心看房请提前预约,可尊享内部特惠,价格包您满意!
为您安排楼盘内场专业销售人员一对一接待服务!让你买的放心,住的舒心!
免责声明🔉:
以上所发布的关于楼盘相关图文信息仅供您买房前参考,以上所有关于本楼盘的图文资料及说明请以最终以项目批文及双方在楼盘营销中心现场签署的买卖最终合同为准;本图文内容如无意中侵犯到某方权益,请联系我们将会及时处理。