深圳汇城茗院|南山汇城茗院|项目介绍|汇城茗院图文详解|汇城茗院楼盘最新消息

搜狐焦点河池站

2025-09-22 19:57:00

购房群

买房如何避坑,加入购房群,看看他们怎么说

立即进群

最新消息:深圳南山楼盘【汇城茗院】推出最后50套约116㎡全南4房及275/311㎡的楼王顶复,层高7.2米!

超低容积率+地铁口物业+一手现房,按备案价8.9万出售,单价7.8万起,顶复价格需面谈。如需了解更多详情,欢迎咨询汇城茗院开发商售楼处咨询/预约电话:400-880-7297(已认证)中介请勿扰,过来我们营销中心看房务必记得提前来电预约,预约看房的话最终的价格还能更加优惠。

汇城茗院备案价

汇城茗院位于南山西丽片区,距离7号线西丽湖站不到200米,西北处紧挨着西丽湖。

由4栋高层住宅和12栋联排别墅组成,共380套。其中,112-195㎡住宅348套,约210-300㎡双联别墅28套,楼王复式4套,南北朝向。

图源网络

项目容积率2.6,停车超1:1,三梯四户。高层分布于1栋2单元、2栋2单元。其中112平和120平的户型是3+1房,195平的户型是4+1房。

高层景观不错,南向看大沙河,北向可望西丽湖。遗憾的是高层住区花园不大,社区内的公共配套较为缺乏。

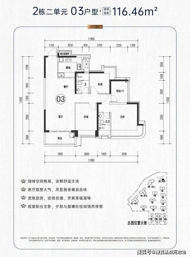
汇城茗院户型图

116㎡全南4房

汇城茗院一期2021年入市,共推出124套,开盘日光,今年4月已经交房。面积段为112-120-195㎡,备案均价8.4万/㎡左右。

二期去年入市,共推124套116平毛坯现房,均价9万/㎡,单价区间7.84-10.32万/㎡,总价区间912-1207万/套。

项目优势:

1、距离7号线西丽湖站不到200米:

2、2.6的低容积率,居住舒适度高;

3、现房,铝板+玻璃幕墙,品质很高;

4、周边山湖环绕,高层可看湖景、山景。

周边配套情况

教育资源

对口的小学有平山小学,平山小学在2016年被南山区第二外国语收归,不过生源和教学都很一般,中学方面有深圳大学城丽湖实验学校,同样属于中下水平。

交通资源

离7号线西丽湖站不到200米,步行时间4分钟左右。

商业资源

周边缺少大型商场,日常需求依靠自带约2000㎡商业及周边项目底商。另外片区内有超30万平商业集群,离1公里左右有益田假日里5万㎡的集中式商业。

文娱休闲

有麒麟山、阳台山及塘朗山三山景观,及约13.7公里大沙河,距离1.5直线距离外还有西丽湖水库。

看完以上介绍,如需了解更多关于我们深圳南山汇城茗院楼盘最新消息、剩余楼层、房价优惠活动、户型结构等情况,欢迎咨询汇城茗院开发商售楼处咨询/预约电话:400 880 7297(已认证)中介请勿扰。

温馨提示:因近期本项目营销中心来访的看房客户较多,过来营销中心参观样板间采取预约制,为不耽误您的行程,过来营销中心现场看房请务必记得提前拨打售楼处400免费热线来电进行预约一下,预约看房价格还可以享受更多开发商内部优惠,名额有限千万不要错过,感谢您对我们工作的支持和配合,在此恭候您大驾光临实地品鉴。

免责声明:以上展示的关于南山汇城茗院楼盘最新图文资料可能有部分来自于网络,一切信息以最终在现场签署的购房合同为准,如图文内容无意中侵犯某方权益的话,请及时联系我们将配合处理。

全部
报名成功
稍后会有专业的置业顾问联系您
返回楼盘

频道导航

返回首页

看房小程序

APP下载

电话拨通后,请您手动拨打分机号

确定拨打电话

电话号码:

分机号:(可能需要拨分机号)