宝安国际会展中心红本房【会展湾云岸/里岸/南岸】三房总价太便宜了,即买即住,地铁口200米

搜狐焦点河池站

2025-10-04 20:22:00

购房群

买房如何避坑,加入购房群,看看他们怎么说

立即进群

深圳【会展湾云岸/里岸/南岸】

深圳宝安国际会展湾核心抄底现楼公寓

会展湾项目最新房价说明(价格仅供参考,预约看房价格还可以更优惠)

33㎡一房一厅

【总价约82万起】

62㎡两房一厅

【总价约155万起】

72㎡两房一厅

【总价约180万‬】

92-97㎡三房两厅

【总价约230万】

120-130㎡四房两厅

【总价276万起】

我们会展湾项目有云岸、里岸、南岸,售楼处位置都在一个地方!欢迎联系售楼处安排销售人员发送营销中心的具体位置给您!

如需了解本楼盘更多详情,欢迎来电咨询会展湾项目开发商售楼处免费400咨询/预约电话:400-800-9113(已认证)中介请勿扰,因近期参观的人员太多,本项目营销中心暂不接受临时到访,为不耽误您的行程,过来楼盘现场参观样板房请务必记得提前来电预约,预约看房的话最终房价还能更加优惠,最终价格包您满意!

项目基础信息:

【项目地址】:深圳宝安区展云路与重庆路交汇处

【总占地】:约5.3万㎡

【总建面】:约8.8万㎡

【产权年限】 :40年

【容积率】:1.66

【商务公寓】 :约35016㎡

【商业】 :约10316㎡

【办公】:约42500㎡

【停车位】:773个

【物业公司】:深圳华侨城湾区发展有限公司

【开发商电话】:400 800 9113

【物业费】:7元/㎡

【交付时间】:现楼交付

区域•地段

立足湾区核心,多重战略区位叠加,深圳经济增长极

全球第一大会展综合体,鼎立湾区门户

全球最大会展中心,深圳面向全球的窗口

9倍会展经济带动效应,深圳经济加速器350万会展经济圈

华发冰雪文旅城,世界级文旅配套

两大央企华侨城&招商联袂,品牌保障实力护航

湾区五维立体交通,构建跨越时区的交通网

会展湾云岸/里岸/南岸五大必买理由

一个核心—粤港澳之核、大湾区之心

29平方公里会展新城—珠三角广深港发展走廊核心,由“三城一港”构成—国际会展城、海洋新城、会展田园城和综合港区,打造深圳在全球科技创新和海洋中心城市的重要战略之称

国际会展城—全球会展产业发展高地,形成“会展+科创”的世界会展产业示范区

超300万方深圳会展湾,拉动区域经济引擎

约160万㎡深圳会展中心,约154万㎡会展综合配套,形成包含城市地标、产业总部、商业中心、国际酒店群、产业展馆、精品公寓、生态公园、交通枢纽等复合功能物业群,构建集全球信息交流和消费体验于一体的会展商务平台

交通配套

海陆空铁轨、湾区1小时经济圈

地铁:20号线地铁国展南站园区上盖,1站可达国际机场;12号线途经南山和宝安两个行政区,无缝衔接11号线和6号线,实现20分钟抵达市中心区,均已通车

轨道:穗莞深城际,迅速链接市内各区及珠三角城市,预计2024年通车

陆路:现有4条快速干道(沿江,广深。外环,京港澳)在建深中通道,滨江大道规划中,即将全面构建大湾区交通网络

航空:深圳宝安国际机场T3航站楼已启用,T4航站楼与机场第三跑道在建,未来可实现多条航线直飞全球超120个城市

休闲•生态

三大世界级文旅配套

带动区域蝶变

融创冰雪城:世界最大冰雪主题文旅项目,拥有全球最大室内雪世界、冰雪主题酒店

新海上田园:规划全球最大的全天候室内游乐城、全亚洲最大的室内水上乐园等

华润金蚝小镇:大冲旧改4.4倍,耗资千亿打造深圳文旅融合发展的全新范式?

西部最大生态旅游区海上田园:占地面积约163万平方米,“国家4A级综合景区 ”、“世界级梦幻水乡”,定位粤港澳大湾区生态绿核、国际会展中心高端度假区

商业•配套

国际高端商务公寓,超级潜力傲立湾区

约69.7万㎡国际高端商务公寓,依托深圳国际会展中心,荟萃丰富商业生活配套,拥有高效的地铁、高铁枢纽资源,将满足全球会展客户及会展新城周边区域的多类别居住需求,未来更将以超国际化居住体验及发展潜力,瞩目大湾区。

国际体验式商业中心,全业态休闲购物目的地

约32万㎡国际体验式商业中心,辐射湾区的城市级商业中心,集休闲、家庭、娱乐、美食于一体,为繁忙都市生活提供舒适休闲体验,为全球会展商务客流、消费者提供便捷的全业态商业体验。

国际五星级酒店环聚,打造高端酒店群

约25万㎡国际五星级酒店群,提供领航国际的接待、宴请、住宿商务配套,目前已确定引入希尔顿、洲际皇冠假日等国际知名酒店品牌进驻。

教育• 医疗

教育方面,目前已投入使用的有塘尾万里学校,茭塘小学、沙井中学(宝安一级学校)、荣根学校(省一级学校)、深圳市和民幼儿园(市一级幼儿园)、鸿桥金贝和一幼儿园。片区规划两所九年一贯制学校

周边医院:5公里内2家三甲医院—深圳市中西结合医院、沙井人民医院宝安区沙井坣岗医院,与深圳万丰医院。

小区•品质

项目拥享160万平全球最大会展馆;还有约154万平会展综合配套,包括会展中央公园、会展河、国际商业、星级酒店群、商务办公等。

此外,总建面约8.8万平的会展湾云岸,除了会展行政公寓、独栋总部办公,还规划了开放式商业街区。

可贵之处在于,项目还属于地铁20号线国展南站上盖,拥有4个出站口,可以一站抵达“机场北站” 。换乘地铁11号线,直达宝中、前海湾、后海、福田。

会展湾云岸实拍图

一线海景+一线河景,超低容积率+带阳台。

值得注意的是,项目坐拥一线海景+一线河景的墅级景观,直面6.4公里的会展河,坐拥零遮挡一线河景,而且是区域内唯一拥有海景+河景双重景观的项目。

会展湾云岸实拍图

会展湾云岸整体密度低至1.66,户型方正实用,实用率高达73%,层高3.2-3.6米,比很多住宅(层高多为2.8米)更加宽敞开阔,重点是,户户带阳台,明厨明卫、明厅明卧。

会展湾户型图鉴赏:

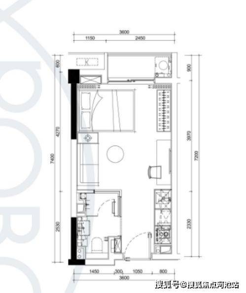
【A1户型:33㎡】

房型:酒店式公寓

朝向:E1、E2(东南、西北)

户型优势:户型方案、3.6米开间、独立阳台

【B2户型:63㎡】

房型:两房一厅一卫

朝向:E1、E2(西南、东南)

户型优势:端头位、双面采光、无敌景观

【B1户型:72㎡】

房型:2+1房一厅一卫

朝向:E1、E2(西北、东南)

户型优势:户型方正、多功能房、无敌景观

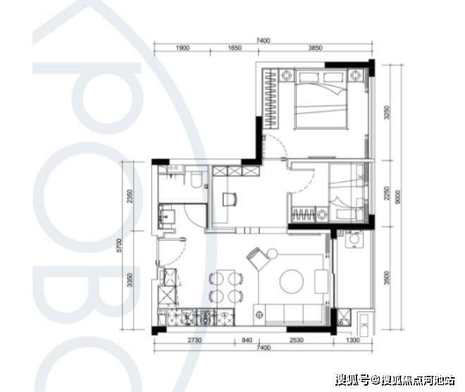
【C1户型:92㎡】

房型:三房两厅两卫

朝向:T5、T6(正南)

户型优势:端头位、双面采光、主客分区、无敌景观 (瞰河

看完以上图文介绍,您如果想要了解更多关于我们深圳会展湾楼盘最新消息、当前剩余房源、这几天楼盘现场折扣优惠活动、近期周边房价走势、银行相关利率政策等情况的话,欢迎来电咨询会展湾云岸开发商售楼处免费400咨询/预约热线电话:400-800-9113(已认证)中介勿扰。

温馨提示:因本项目营销中心参观样板间采取预约制,为不耽误您的行程,过来营销中心现场看房前请务必记得提前来电预约,预约看房的话享受的优惠折扣比直接上门更多,最终成交价格也会更加划算,在此真诚感谢您对我们工作的支持和信赖,恭候您大驾光临。

免责声明:以上展示的关于深圳宝安沙井会展湾云岸广场项目最新相关图文资料可能部分来自网络,具体细节以最终签署的购房合同为准,如无意存在侵犯某方权益请及时联系我们处理。

全部
报名成功
稍后会有专业的置业顾问联系您
返回楼盘

频道导航

返回首页

看房小程序

APP下载

电话拨通后,请您手动拨打分机号

确定拨打电话

电话号码:

分机号:(可能需要拨分机号)