深圳南山【桑泰缙樾府】
最新消息:本项目小区里面一共就两栋楼,可售房源147套,产品很纯粹,都是纯商品房4房,户型面积为114-115-118㎡的4房2卫和133㎡的5房2卫!目前所剩房源不多。
缙樾府备案均价约72953元/㎡,过来看房可预约看房尊享内部93折,折后均价6.6万起。
【桑泰缙樾府开发商售楼处咨询/预约电话📞: 400-811-3080,中介勿扰】
温馨提示:本楼盘采取预约制,过来营销中心现场参观样板间请记得提前拨打开发商售楼处400热线电话在线预约,感谢您的配合!
94折折后总价如下:
114㎡的4房2厅2卫,04户型,折后总价745-783万/套
115㎡的4房2厅2卫,02户型,折后总价758-795万/套
118㎡的4房2厅2卫,03户型,折后总价794-833万/套
133㎡的5房2厅2卫,01户型,折后总价898-953万/套

01
项目概况
缙樾府位于南山南头同乐北,中山园路与铁二路交汇处,步行850米可达12号线同乐南站A口,毗邻同乐学校。
桑泰缙樾府总建筑面积约4.77万㎡,总用地面积约9054.12㎡,容积率约为3.62,绿化率为30%。
由2栋总高30-31F的住宅组成,其中1栋住宅31F,2栋住宅30F。总规划220户,全部都是商品房,3梯4户设计,地下2层,规划停车位300个, 车位占比1:1.36。
户型涵盖114㎡-133㎡的4-5房,可满足不同家庭的居住需求。
02
桑泰缙樾府项目配套:
交通配套:
离12号线南乐南站750米,步行约10分钟。乘车2站即可在灵芝站换乘5号线。另外,在建的15号线也在此设有“同乐关”站。周边还有南坪快速、北环大道及南海大道,驾车出行也比较便利。
学校配套:
对口学校为同乐实验学校,距离约100米,是南山首个教科院系实验学校&九年一贯制学校,不过教学质量和生源都很一般,在南山排名比较靠后。
商业配套:
距离大型商场比较远,附近有南山农产品市场和一些社区商业,一路之隔是约1万㎡隆尚minitown,直线距海雅缤纷城约1.6km;
3km范围内中洲购物广场、勤诚达K+广场、云城万科里;5km范围内壹方城、万象前海等
休闲配套:
周边环绕着近167万㎡的生态公园绿地,涵盖中山公园、南头古城、荷兰花卉小镇及荔香公园等优质配套。
03
户型介绍
建面约114㎡4房2厅2卫:
西北朝向,折后总价737-774万/套,单价6.51-6.81万/㎡。
设计为竖厅南北通透格局,客厅朝东北主卧朝西南,客厅3.9米开间,4个房间分别做到了主卧17.48㎡/次卧11.14㎡/次卧10㎡/次卧8.64㎡(包含墙体飘窗),所有次卧都不需要利用飘窗搭床,使用率达88.58%(含赠送),在市面上属于中上水平,非常适合四房刚需家庭。
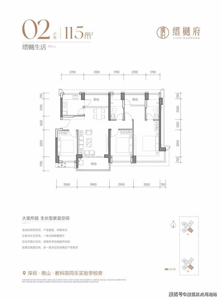
建面约115㎡4房2厅2卫:
西南朝向,折后总价750-787万/套,单价6.55-6.85万/㎡。尺度与114㎡除了厨房有细微差异,其它完全一样。进门独立玄关,客厅3.9米开间,4个房间分别做到了主卧17.48㎡/次卧11.14㎡/次卧9.87㎡/次卧8.64㎡(包含墙体飘窗),主卧大套间设计,卫生间干湿分离,得房率87.97%(含赠送)。
建面约118㎡4房2厅2卫:
东南朝向,折后总价785-823万/套,单价6.7-7万/㎡。
竖厅设计,南北通透格局。L型厨房,阳台开间3.9米,其中1栋可看小区花园景观,与114/115㎡的差别在于玄关处,入户门没有直面客厅,保障隐私性,得房率88.15%(含赠送)。
建面约133㎡5房2厅2卫:
东南朝向,折后总价888-943万/套,单价6.64-7.1万/㎡。
同样是竖厅南北通透格局,客厅4.3米的大开间,采光通风佳。5个房间分别做到了主卧17.75㎡/次卧11.6㎡/次卧10.4㎡/次卧8.99㎡/次卧7.75㎡(包含墙体飘窗),得房率90.4%(含赠送)。
这个面积段能做到5房并且还带一个储物间,属于市面上少见的超高使用率大户型产品。
05
项目点评
桑泰缙樾府项目优点:
1、价格优势:南山区以7字头折后价格能买到4房和5房产品,相比区域内二手盘具有一定性价比;
2、通勤优势:地段属于南山,虽然比较偏僻,直线但是3-5公里范围可以通勤到南山科技园、留仙洞总部基地、前海自贸区、宝安中心区等,地理优势依旧存在;
3、产品优势:纯四房起步改善,户型设计合理,南北通透,采光通风也不错,有一定赠送面积,对于改善家庭来说性价比不错
4、非超高层:总高30-31层,非超高层设计,车位比超1:1,在市面上也算少见。
【桑泰缙樾府开发商售楼处咨询/预约电话:☎️400-811-3080(中介勿扰)】
✅本楼盘样板房参观采取预约制,过来前请记得拨打开发商电话进行预约,预约看房价格更优惠,感谢您的配合!
✅我们将为您安排专业的楼盘内场销售人员全程为您接待, 给您提供更加贴心的看房以及购房服务体验!
特别注意:本楼盘开发商售楼部400电话没有设置任何所谓的“分机号”,拨打前请认真识别,注意保护个人隐私!谨防上当!
免责声明🔉:
以上所发布的关于深圳南山桑泰.缙樾府楼盘相关介绍详情仅供您购房前参考,以上所有关于本楼盘的图文资料及说明请以最终项目批文及双方在楼盘营销中心现场签署的买卖最终合同为准;本图文内容如无意中侵犯到某方权益,请联系我们将会及时处理。