正在认筹中!南山粤海新楼盘「翰熙典居」南二外┃科技园大盘┃新规户型约100%使用率!

搜狐焦点河池站

2025-06-09 21:48:00

购房群

买房如何避坑,加入购房群,看看他们怎么说

立即进群

最新消息:深圳最值得期待现象级红盘【翰熙典居】即将揭幕,位于科技园深大旁的地铁口桂庙新村旧改,「翰熙典居」目前已经开放展厅和样板房,本周五或下周五取证,项目总建设用地面积:约41659㎡ ,总建筑面积:约516339㎡ ,首推位于三、四单元的344套新规户型,建面约105㎡3房2卫、120㎡3+1房2卫、140㎡3+1房2卫。

翰熙典居售楼处实景图

如需了解本楼盘更多详情,欢迎来电咨询深圳南山翰熙典居开发商售楼处免费400咨询/预约电话:400-880-7297(已认证)中介请勿扰,因近期参观的人员太多,本项目营销中心暂不接受临时到访,为不耽误您的行程,过来楼盘现场参观样板房请务必记得提前来电预约,预约看房的话最终房价还能更加优惠,包您满意!

作为片区十年来首个入市的改善型奢宅,单层层高:3米,梯户比:3梯5户,预计2027年精装交付。已按新规调整户型,实用率将超90%!

南山科技园的新盘供应极为稀缺,上一次入市还得追溯到三年前的润玺二期,因此翰熙典居周边无竞品,地段好,十分稀缺!

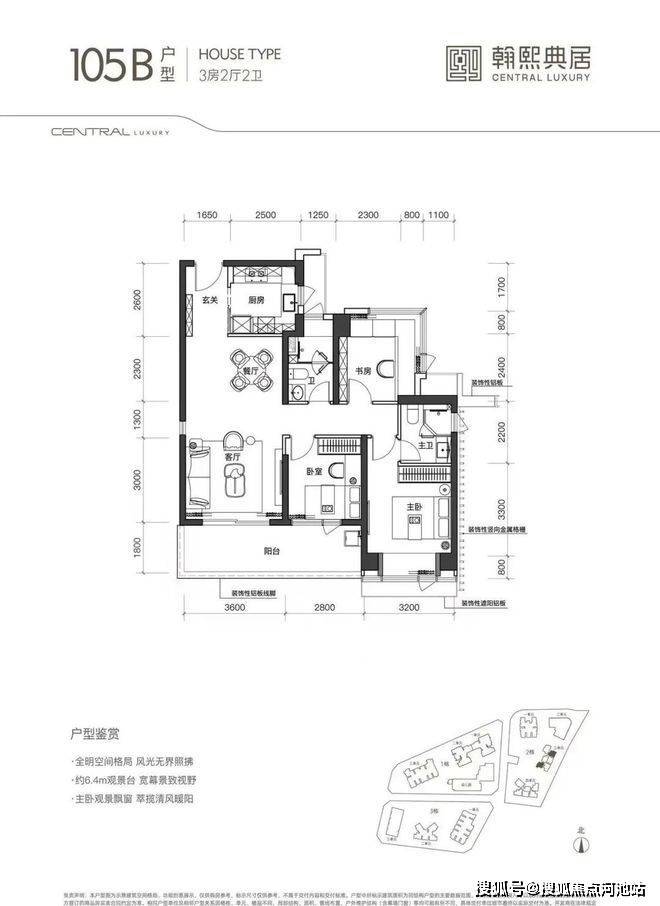
翰熙典居户型图分析:

建面约105㎡的3房2厅2卫

经典的双龙抱珠布局,主人空间与客卧空间互不干扰,具备私密性优势。并且户型方正,实用三房两厅两卫。朝南向四开间面宽共约 13.2m,全明空间,采光极佳。这个户型含赠送半阳台和飘窗的面积后使用率可达约 83%,这在超高层中是比较高的使用率。

本次首推的 02 地块 ,户型有这个双龙抱珠的,还有一个户型是竖厅格局,各有优势,看个人喜好选择。

(这是105平样板房外看到的视野,可以看到楼下的地铁口)

建面约120㎡的3+1房2厅2卫,

户型为大三房两厅两卫,东南朝向,含赠送半,阳台和飘窗等平台部分后使用率可达约 88%左右,这在超高层中是非常高的使用率。其中主客卧、客厅、双阳台合计开间超 12m,大尺度四面宽朝南,带约 6.15 米奢阔观景台,堪比一线豪宅的观景尺度;主卧超奢阔大套房,且预留了室内后期业主自行改造的灵动空间。

建面约140㎡的3房2厅2卫

该户型为 02 地块的唯一一条腿,非常稀缺。户型南北通透,带大主卧套房的奢居型三房。带 5.4m 观景台,大横厅奢阔空间设计,主卧同客厅阳台、餐厅三面宽朝西南。北向双次卧、双卫生间、拓展空间共五面宽一字排开,视野全面俯瞰社区内园林,静谧舒适。

看完以上关于深圳南山翰熙典居楼盘相关的图文介绍,如果您对我们楼盘感兴趣的话,建议您可以联系我们翰熙典居开发商售楼处全国免费400热线电话:400-880-7297(已认证)在线进行免费咨询或对接楼盘现场销售人员(中介请勿扰),我们可以为您安排本楼盘现场销售一对一在线服务,比如说把楼盘的最新图文资料、样板房视频、通过手机的方式发给您看一看、您不需要立即过来楼盘现场就能够对我们楼盘熟悉个大概,还可以告诉您关于我们翰熙典居楼盘对比周边楼盘的优点缺点、楼盘这几天最新的优惠政策、银行政策以及LPR利率、积分入学,等相关购房方面的问题都给你讲解的明明白白,让您买房不踩坑,毕竟买房是大事。找现场销售咨询并不需要额外花钱,反而更省钱,而且可以避免一些中介虚报价格浪费你宝贵的时间和精力,我们会把额外认购优惠、按时签约优惠、房贷优惠、一次性付款的优惠都告诉您,希望您能通过这个平台,全面了解我们的楼盘信息并顺利、开心的完成购房流程。

免责声明:以上展示的关于深圳南山翰熙典居楼盘最新相关图文资料可能有部分来自于网络,一切信息以最终在在我们楼盘现场签署的购房合同为准,如图文内容可能无意中侵犯某方权益的话,请及时联系我们将配合处理。

全部

相关资讯

报名成功
稍后会有专业的置业顾问联系您
返回楼盘

频道导航

返回首页

看房小程序

APP下载

电话拨通后,请您手动拨打分机号

确定拨打电话

电话号码:

分机号:(可能需要拨分机号)