最新消息:深圳光明凤凰城新楼盘——松茂御城·雅苑2期已于2025年8月27日拿证,8月28日开放实体样板房,本次开盘首推1栋B/G/H/E座,共约333套,面积81㎡-135㎡,81㎡三房二卫,89㎡四房二卫,109㎡四房二卫,135㎡五房二卫,光明户型天花板,得房率最高100%。共1225套房源,二期预计价格4万/㎡,准现房精装交楼。
如需了解本楼盘更多详情,欢迎来电咨询深圳松茂御城开发商售楼处免费400咨询/预约电话:400-880-7297(已认证)中介请勿扰,因近期参观的人员太多,本项目营销中心暂不接受临时到访,为不耽误您的行程,过来楼盘现场参观样板房请务必记得提前来电预约,预约看房的话最终房价还能更加优惠,最终价格包您满意!
下面是我们松茂御城楼盘售楼处内部实拍照片:
松茂御城一期现在清盘消息:按照之前价格,开发商只打了9.X折!最近内部消息,给出了清盘价超惊喜优惠,且已经是现楼,84㎡做到了3.8米的客厅!超100%使用率!
绝版户型·收官钜惠
超100%使用率·即买即住·赠送品牌精装
建面约84-89㎡ 精装现房 13号线双地铁口
82㎡的3房2厅1卫,折后总价284万~312万/套,单价3.46~3.80万/㎡。
84㎡的3房2厅1卫,折后总价328-334万/套,单价3.9-3.97万/㎡。
86㎡的3房2厅1卫,折后总价289-321万/套,单价3.73-4.04万/㎡。
88㎡的3房2厅2卫,折后总价311-393万/套,单价3.5-4.46万/㎡。
89㎡的3房2厅2卫,折后总价317-345万/套,单价3.56-3.87万/㎡。

1、楼盘区位以及基本信息:
松茂御城2期,位于光明区凤凰街道塘尾社区松白路与塘尾路交汇处,光明对外交通便捷。区内南光、龙大2条高速北连东莞市,南接福田区、南山区,距深圳中心区、宝安国际机场、前海蛇口自贸片区仅30分钟车程;大外环高速贯穿深圳东西,地铁6号线串联宝安、光明、龙华、福田等区,6号线支线将与东莞市轨道交通衔接,13号线北延段将经光明直达东莞市松山湖;广深港客专与赣深客专、深莞增城际(规划中)途经光明,在光明城站乘坐高铁30分钟可达广州、香港。
松茂御城,由松茂集团开发,总占地面积约4.53万㎡,总建筑面积约29.78万㎡,容积率4.67,绿化率40%,共分2期开发打造,后期将会有风雨连廊连接在一起,总规划2130户,停车位2321个,车位占比约1:1.09。
首推的松茂御城1期,总占地面积约1.4万㎡,总建筑面积约10.21万㎡,共由4栋住宅组成,其中1栋A/B座住宅33F,1栋C座住宅32F,2栋公寓32F,共规划905户,其中商品房279套,回迁房112套,公租房124套,另外还有390套商务公寓,停车位773个。
本次将推出的松茂御城2期,总占地面积约3.13万㎡,总建筑面积约20.74万㎡,计容建筑面积约16.21万㎡,容积率4.55,绿化率40%,共由8栋总高31-32层高的住宅组成,其中1栋A/B/C/D/E/H座住宅32F,1栋F/G座住宅31F,2栋规划1所幼儿园。
总规划1225户,其中回迁房有380多套,其余全部都是商品房,其中1栋E座是楼王2梯4户,1栋A座跟1栋H座2梯6户,其它栋数2梯5户设计,地下室有2层,规划1548个车位,其中充电桩车位465个,车位比约1:1.26。
楼盘基础信息
1、开发商:深圳市松茂房地产集团有限公司
2、物业公司:深圳市海天泰物业管理有限公司
3、物业管理费:3.8元/㎡
4、总占地面积:84.53万/㎡
5、总建筑面积:29.78万/㎡
6、容积率:4.55
7、开发商电话:400 880 7297
8、产权年限:2022年7月25日-2092年7月24日(70年)
9、总户数:2130户
10、总栋数及楼高:12栋,31-32F
11、梯户比:2梯4户/2梯5户/2梯6户
12、车位数:2321个
13、车位占比:1:1.09
14、交楼时间:一期现房,二期准现房
15、交楼标准:精装
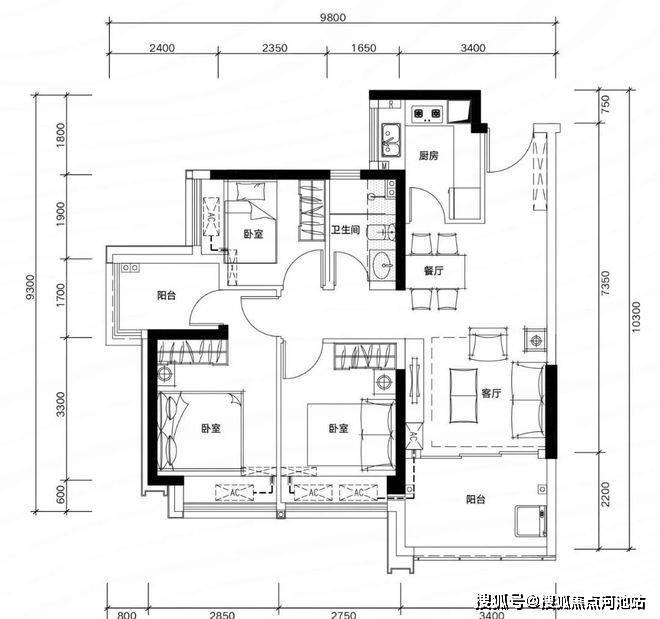
2、项目平面图和户型介绍
松茂御城户型图分析:
81m²的3房2厅2卫,1H栋01户型,设计的是竖厅南北通透格局,得房率79.6%(不含赠送),阳台东北朝向看花园。套内面积64.48m²+赠送面积11.25m²=实用面积75.73m²,加上赠送后得房率93.49%。
81m²的3房2厅2卫,1H栋03户型,设计的是经典竖厅格局,得房率79.6%(不含赠送),阳台西南朝向。套内面积64.48m²+赠送面积9.64m²=实用面积74.12m²,加上赠送后得房率91.5%。
81m²的3房2厅2卫,1G栋03户型,设计的是经典竖厅格局,得房率79.6%(不含赠送),阳台东南向看花园。套内面积64.48m²+赠送面积10.33m²=实用面积74.81m²,加上赠送后得房率92.35%。
82m²的3房2厅2卫,1G栋05户型,设计的是经典竖厅格局,得房率79.6%(不含赠送),阳台西南朝向。套内面积65.27m²+赠送面积10.31m²=实用面积75.58m²,加上赠送后得房率92.17%。
89m²的4房2厅2卫,1B栋01户型,设计的是竖厅南北通透格局,得房率79.6%(不含赠送),阳台东南朝向看松白路。套内面积70.85m²+赠送面积15.02m²=实用面积85.87m²,加上赠送后得房率96.48%。
89m²的4房2厅2卫,1B栋02户型,设计的是经典竖厅格局,得房率79.6%(不含赠送),U型厨房,卫生间干湿分离,阳台东南朝向看松白路。套内面积70.85m²+赠送面积11.85m²=实用面积82.7m²,加上赠送后得房率92.92%。
89m²的4房2厅2卫,1B栋03/05户型,设计的是经典竖厅格局,得房率79.6%(不含赠送),阳台西南朝向看花园。套内面积70.85m²+赠送面积12.45m²=实用面积83.3m²,加上赠送后得房率93.6%。
109m²的4房2厅2卫,1B栋06户型,设计的是竖厅南北通透格局,得房率79.6%(不含赠送),阳台西南朝向看花园。套内面积86.77m²+赠送面积16.43m²=实用面积103.2m²,加上赠送后得房率94.67%。
109m²的4房2厅2卫,1G栋02户型,设计的是经典竖厅格局,客厅3.9米开间,得房率79.6%(不含赠送),阳台6.43m²东南朝向看花园。套内面积86.77m²+赠送面积14.41m²=实用面积101.18m²,加上赠送后得房率92.82%。
135m²的5房2厅2卫,1G栋01户型,设计的是竖厅南北通透格局,客厅4.2米开间,得房率79.6%(不含赠送),阳台7.14m²东南朝向看花园。套内面积107.5m²+赠送面积21.81m²=实用面积129.31m²,加上赠送后得房率95.78%。
135m²的5房2厅2卫,1E栋03户型,楼王单位,设计的是竖厅南北通透格局,客厅4.15米开间,得房率79.6%(不含赠送),阳台6.64m²正南朝向看花园。套内面积107.5m²+赠送面积21.51m²=实用面积129.01m²,加上赠送后得房率95.56%。
3、松茂御城周边配套
学校配套:
根据2024年光明区教育局最新的学区划分,小学学区划分在教科院实验小学,秋硕小学,龙豪小学,光明实验学校,初中学区划分在深圳中学光明科学城学校二初中部,凤凰城实验学校初中部。
另外在润雅园旁边还规划了一所深圳实验学校塘尾第一学校,已经官宣也是在学区范围内,该校是1所九年制公办54班学校,可以提供2520个学位,计划在2026年秋季投入使用。
交通配套:
目前距离在建的13号地铁线“月亮路站”约400米,3站到光明城站,5站到石岩上屋站,计划在2025年通车运营。
商业配套:项目自带4.6万㎡的底商商业,周边润宏城规划了万象商业,在20分钟车程范围内还有光明最大的蓝鲸世界购物中心,万达广场,包括公明最好的大仟里购物中心。
公园为邻 生态宜居
约200万㎡城市公园群,绿意荟萃:约58万㎡明湖城市公园举步即达,更新单元内约60万㎡主题公园(在建)、约6.8km茅洲河生态长廊等绿意荟萃。
4、项目总结
优点/SUMMARY
1、从区域板块来看,松茂御城不是当前的光明核心地段,不过从塘尾这么大面积的规划旧改体量来看,以后板块属性也不会差,毕竟有人口力支撑。
2、从买房必备3件套分析,配套的深实验塘尾学校+深中光明科学城学校初中部,拥有2所四大名校加持,光明的生命线13号地铁线月亮路站距离400米,商业方面短期来看是短板,不过这么庞大的居住社区在周边,以后的商业体量肯定是不会差的,也会有大型商业会慢慢落地。
3、松茂御城的户型得房率虽然明面上看备案数据是在77.27-79.26%,但是实际得房率是达到了100%的,也是光明得房率最高的楼盘,绝对名副其实,户型也做的很很好。
5、松茂御城周边的公园配套比较丰富,目前已有的明湖城市公园,鹅颈水湿地公园,华星光电湿地公园,茅洲河公园,包括正在建造中的艺之丘车辆眼上盖公园,这个公园以后绝对是设计的非常漂亮的,大概率也是偏向于运动型的公园,以后会有足球场,篮球场,健身设备都会有,可以参考龙岗的活力谷公园,也是地铁上盖公园。
看完以上图文介绍,您如果想要了解更多关于我们深圳光明松茂御城楼盘最新消息、当前剩余房源、这几天楼盘现场折扣优惠活动、近期周边房价走势、银行相关利率政策等情况的话,欢迎来电咨询松茂御城开发商售楼处免费400咨询/预约热线电话:400-880-7297(已认证)中介勿扰。
温馨提示:因本项目营销中心参观样板间采取预约制,为不耽误您的行程,过来营销中心现场看房前请务必记得提前来电预约,预约看房的话享受的优惠折扣比直接上门更多,最终成交价格也会更加划算,在此真诚感谢您对我们工作的支持和信赖,恭候您大驾光临。
免责声明:以上展示的关于光明松茂御城楼盘最新相关的最新图文资料可能部分来自网络,具体细节以最终签署的购房合同为准,如无意存在侵犯某方权益请及时联系我们处理。