
项目最新介绍:备案价、折扣、地铁、交通、户型图、特价房、优缺点、得房率、优惠活动、开盘时间、交房时间、周边配套、最新详情等咨询。
深圳小梅沙觐海府(别名:特发小梅沙觐海广场)是深圳市特发小梅沙投资发展有限公司开发的楼盘,位于盐田区核心地带,紧邻海岸线
小梅沙投资匠心打造高端住居产品,倚山亲海间,奢适生活融入度假理念,承载深圳约260公里黄金海岸线宜居生态标杆。
统筹规划面积:约3.9万平方公里
总投资约:200亿元
总建面约:89万㎡
特发自持运营物业:约75%
六大业态:亲海住宅、商业、办公、星级酒店、小梅沙海洋世界、滨海公园等多元业态
【推售小梅沙·觐海府一期高端住宅】
小梅沙投资匠心打造高端住居产品,倚山亲海间,奢适生活融入度假理念,承载深圳约260公里黄金海岸线宜居生态标杆。
产品:建面约117-173㎡3-4房高端亲海大宅
梯户比:2梯2户/2梯3户
车位比:约1:1.5
物业管理费:3.9元/平方米/月
开发商:深圳市特发小梅沙投资发展有限公司
项目地址:盐田区盐葵路39号
深圳市特发集团有限公司
特发集团成立于1981年,注册资本45.38亿元,是深圳国资控股、中央企业参股的国有全资大型综合性企业集团。并表企业超100家,控股上市公司4家,孕育或培植了7家上市公司。
深圳宜居看盐田
盐田是粤港澳大湾区唯一与香港水陆相连的地区
广东省首个且唯一一个荣获“城市生态氧吧”称号的区域
PM2.5连续7年优于欧盟标准
全年空气优良率达98.6%
约19.5公里海滨栈道,69公里半山公园带,73个公园,257公里休闲绿道
小梅沙海洋世界
外观为“鹦鹉螺”,由日本佐藤综合计画设计,以海洋动物展示、科技演艺、多媒体互动科普为主体,近享国际一流海洋主题公园,动物约200多种,融合全球最大青蓝洞景观。
小梅沙滨海公园
小梅沙叠翠郊野公园
占地面积约80公顷,位于马峦山之上,内有2大水域,3个谷地,“三有”动物约49种,呈现全时段自然栖居生活场
-商业方面
项目规划约8.8万㎡滨海主题商业,以“商业体 + 街区”的模式,打造深圳“潮生活”文旅商综合体,集吃、住、行、娱、购、游于一体。
深圳市盐田区梅沙未来学校(原梅沙小学)创办于1934年,是盐田区人民政府投资兴办的深圳市第一所以“未来学校”命名的学校。学校占地面积18874平方米,建筑面积41383平方米,分别有博学楼、励志楼、达德楼、综合楼、居易楼5栋楼宇,设计规模为36个班。
盐田区外国语学校创办于2004年9月,是区人民政府投资兴办的一所高起点、高标准的初级中学。占地面积40457.90平方米、建筑面积35878.01平方米。学校拥有一支师德高尚、结构合理、业务精良、富有献身精神和创新意识的优良师资队伍。现有43个教学班,1791名学生,住宿生196名,156名教师,正高级、特级教师1人,高级教师44人,省、市区级以上名师38人。
智慧小梅沙 高效赋能品质生活
科技赋能:依托云计算、大数据、5G技术等现代化信息技术,提供高效便捷的生活服务。
文化赋能:以文化作为系统核心,以具有特色、多样性、艺术性的文化来链接人群。
服务赋能:依托数据链接业主与商户的“吃、住、行、娱、购、游”,实现高效服务。
管理赋能:包括智能居家、讯息发布、预测预警、应急指挥、公共服务等全流程服务
大师执笔·全球甄选
建面约117㎡-173㎡宽适之筑 觐海之容 山海扑面大户型住宅
小梅沙觐海府依山伴海,一字排开,户户朝南,最大8米宽景阳台,部分户型双套房设计。两梯两户/两梯三户的低梯户比,方寸之间,尽享专属于少数人的尊贵风范。
品位之致 尊荣所享 尊崇之至
多重归家礼序:小梅沙觐海府住宅“双大堂”,包含主入口精妆大堂及车库大堂;采用酒店式电梯厅,从容归家,礼序尽显。
双层高配泊车:小梅沙觐海府以双层地下停车场,提供约1:1.5的车位高配比,满足高阶家庭的多重泊车需求。
人车动线分流:小梅沙觐海府地块通过优化交通动线,分离行车道及园区步道,保护行人安全,关怀备至。
湾畔居境 多重景致 四季悠然
小梅沙觐海府景观北连叠翠,南踏梅沙,紧临湖区,南北双公园相携又自成一脉。清新海风相伴,拓宽山海视野,身心自然开阔。
亲海景致:植被应用棕榈、常绿、开花植物种植,不同区域单独造景各具特色。
架空空间:配套休闲会客厅区、老年活动休闲区、儿童活动区等功能。
梅沙风情:精心设置椰林休闲戏水区域,滨海度假风情踱步下楼即可体验。
叠层园林:台地园林与建筑融合,抬升式围合院境景观,隐密之域,幸福私享。
A户型建面约117㎡,3房2厅2卫
B户型建面约117㎡,3房2厅2卫
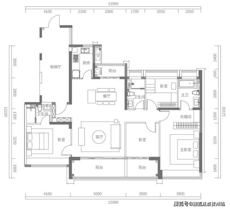
C户型建面约120㎡,3+1房2厅2卫
D户型建面约173㎡,4房2厅2卫
————【小梅沙觐海府】————
免责声明:本宣传资料不构成邀约邀请,对周边、政府规划、商业配套、教育资源、投资前景等数据和图文仅为提供相关信息,该信息以政府最终批文为准,开发商不对此作任何承诺。买卖双方的权利义务以双方签订的买卖合同约定及附件、实际交付为准,本公司保留对宣传资料修改的权利,敬请留意最新资料