深圳鸿荣源珈誉府&珈誉玖玺_2025详情首页|鸿荣源珈誉玖玺售楼中心电话

搜狐焦点贺州站

2025-07-22 19:40:56

购房群

买房如何避坑,加入购房群,看看他们怎么说

立即进群

深圳【鸿荣源珈誉玖玺】【“玖”系瑧品 湾区全能生活大城封笔钜著】

项目最新介绍:房价、折扣、户型图、特价房源、得房率、优惠活动、开盘时间、交房时间、周边配套、最新详情等咨询。

鸿荣源珈誉玖玺售楼处电话:400 033 9667

鸿荣源珈誉玖玺售楼中心24小时电话:400 033 9667【营销中心】

温馨提示:过来看房请记得提前来电预约,尊享售楼处1v1销售专业讲解,感谢您的来电!

约248万㎡人居全能生活大城,稀缺人居,私藏大平层,湾区圈层进阶首选!

位于宝安的鸿荣源珈誉玖玺计划在今年10月中旬取证入市,将首推6栋/12栋,共254套房源,面积有124-137㎡的4房2厅2卫,169-199㎡的4房3卫户型,价格可以参考鸿荣源珈誉府2期

开发商:深圳市鸿荣源控股集团有限公司

物业:深圳市鸿荣源物业服务有限公司

占地面积:约4.79万平方米,园林面积约2.9万平

建筑面积:约40.5万平方米

总栋数:10栋(即将首推248套6栋和12栋124/137/169/199平

总楼层:44--48层

层高:6栋楼王层高3.15米

总户数:2479户

车位:2831个

产品类型:(住宅)

梯户比:6栋两梯两户,12栋三梯五户

产权:70年(2022年5月至2092年5月)

状态:已开实体样板房(10月13号正式开盘)

区域价值【玖核·世界湾区国家战略加持 主导中心价值】

沙井不仅位于粤港澳大湾区发展轴心,更是国家重大战略所在地,前海扩容受益者。是深圳市空港新城的主要辐射和服务区,也是广深科技走廊的关键节点。随着大航空新城的建设,拥有海、陆、空、轨4维立体交通网络的沙井,将成为深圳西部的中心城区。

交通配套【玖畅·地铁直连 通达全城】

下楼即达地铁:直连地铁11号线,畅享都市便捷生活

地铁:家门口即11号线塘尾站,6站宝中、7站前海、9站后海、11站车公庙,便捷通达南山、福田核心片区

距离地铁口更近,更享便捷速达生活

商业配套【玖繁·百亿商业 咫尺繁华 】

下楼即享商业:百亿超级商圈,定鼎西部新中心

鸿荣源斥资打造又一湾区城市级购物中心

约50万㎡“湾区壹方”、约10万㎡“熊出没”主题华强广场

宝安首家山姆会员店、海岸城20万㎡商业,缤纷商业集聚

共筑百亿超级商圈,定义湾区城市商业新模式,定鼎西部新中心

教育配套

高质学府资源环绕,周边书香氛围浓厚

下楼即享学校:优教深外宝 目送式教育

项目周边04-09和12-01地块拟规划建设深外宝安学校(集团)南校区

深圳外国语学校(集团)宝安学校 深外优质教育环伺

【玖遇·围合式艺术大园林】

约2.9万㎡舒居艺术大园林

🌿围合式布局,最大楼间距约161米

源于西班牙著名画家《记忆的永恒》为灵感的超现实主义花园,打造多重梦境空间

【玖奢·品质生活—6栋】

纯板楼设计,二梯二户,外立面部分采用铝板,尽显品质;

入户大堂采用大理石地面及花纹石材墙面;

奢阔3.15m层高,体验归家礼序,尽享圈层人生

【玖享·全龄双泳池 礼遇归家礼仪轴线】

配备全龄子母双泳池、亲子乐园、交流花园,构建全龄活动功能配套,主出入口列阵式礼仪轴线,体现归家仪式感,品质尊崇感

压轴登场,精品之作,其核心价值体现出——稀缺。从地段到配套再到产品,是一种对稀缺资源的匹配。

首推的6#栋是169-199㎡的楼王单位,纯板楼设计,大开间的南北通透户型、梯户比是2梯2户,实现专梯入户!

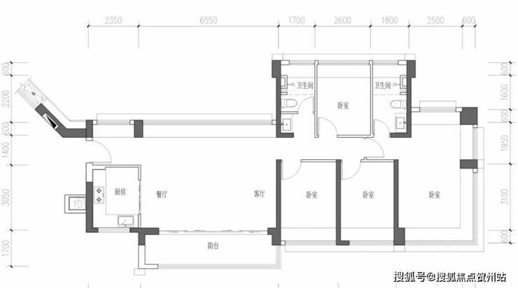
124平户型图

137平户型图

169平户型图

199平户型图

开发商售楼处热线:400 033 9667 【营销中心】

本文内容为广告推广,涉及房价或现有房源可能出现变更,请致电详询并以售楼部为准

免责声明:本文如无意中侵犯了某方的知识产权告知即删,部分内容图片可能来源于网络,无法核实其真实出处,如涉及侵权请联系本网站删除!!

全部

相关资讯

报名成功
稍后会有专业的置业顾问联系您
返回楼盘

频道导航

返回首页

看房小程序

APP下载

电话拨通后,请您手动拨打分机号

确定拨打电话

电话号码:

分机号:(可能需要拨分机号)