鸿荣源珈誉府首页网站最新介绍:房价、折扣、户型图、特价房源、得房率、优惠活动、开盘时间、交房时间、周边配套、最新详情等咨询。
鸿荣源珈誉府售楼处电话☎:400 065 2898【开发商已认证】✨
鸿荣源珈誉府售楼中心24小时电话☎:400 065 2898【开发商已认证】✨
鸿荣源珈誉府开发商电话☎:400 065 2898【开发商已认证】✨
温馨提示:过来看房请记得提前来电预约,尊享售楼处1v1销售专业讲解,感谢您的来电!
��本项目暂不接受临时到访,过来参观样板房请记得提前来电预约!✨✨
��为您安排楼盘现场销售全程接待并讲解,给您更贴心的看房体验!✨✨
开发商:深圳市鸿荣源控股(集团)有限公司
物业公司:深圳市鸿荣源物业服务有限公司
物业管理费:5.9元/㎡
总占地面积:约4.79万㎡
总建筑面积:约40.53万㎡
容积率:5.42
绿化率:40%
产权年限:2022.5-2092.5年(70年)
总户数:2479户
总栋数及楼高:10栋,31-44-45-46-47-48层。
梯户比:2梯2户/3梯5户/3梯7户
停车位:2795个
车位占比:1:1.127
交房时间:2026年12月
交付标准:精装修
交通配套
鸿荣源珈誉玖玺家门口就是宝安大道及凤塘大道等交通主干道,11号地铁线“塘尾站”,距离约300米,4站到宝安机场,6站到宝中,7站到前海湾,8站到南山,11站到车公庙。鸿荣源珈誉玖玺家门口就是宝安大道及凤塘大道等交通主干道,
商业配套
鸿荣源珈誉府,自带50万㎡奥特莱斯商业,汇集了壹方+奥莱的商业模式,在项目北侧还有万丰海岸城近18万㎡的购物中心,这个片区以后也将会是整个沙井最高端最集中的商业购物中心。
教育配套
鸿荣源珈誉府旁边,所规划的2个教育用地,已经正式出了红头文件,为深圳外国语宝安学校(集团)南校区,分别为1所63班九年一贯制学校,1所为27班九年一贯制学校。
该校目前所划分的深圳外国语学校宝安学校,在2023年小一的录取积分是96.9分,初一的录取积分是92.5分,按照宝安区教育局公布的积分政策,只要是深圳户籍(其它区)+学区内商品房,就有100分,深圳宝安户籍+学区内商品房,就有105分。
医疗配套
附近就医还是挺方便的。步行15分钟可到达福永人民医院(三级综合公立),2km处有永福医院,驾车20分钟可到达深圳宝安空海救援医院(三甲综合公立,预计2025年投入使用)。

休闲配套
项目距离凤凰山森林公园约3.5km,周边还有万丰湖湿地公园、立新湖公园等绿色休闲配套。
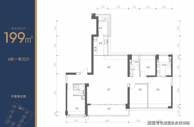
户型图;


鸿荣源珈誉府售楼处电话:☎400 065 2898【售楼处已认证】✨
鸿荣源珈誉府营销中心电话☎:400 065 2898【开发商已认证】✨
鸿荣源珈誉府开发商电话☎:400 065 2898【开发商已认证】✨
免责声明:部分信息来源于网络,如果侵权,请联系及时删除
本宣传资料不构成邀约邀请,对周边、政府规划、商业配套、教育资源、投资前景等数据和图文仅为提供相关信息,该信息以政府最终批文为准,开发商不对此作任何承诺。买卖双方的权利义务以双方签订的买卖合同约定及附件、实际交付为准,本公司保留对宣传资料修改的权利,敬请留意最新资料。联系号码☎:400 065 2898【开发商已认证】